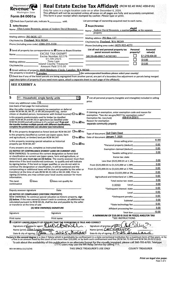
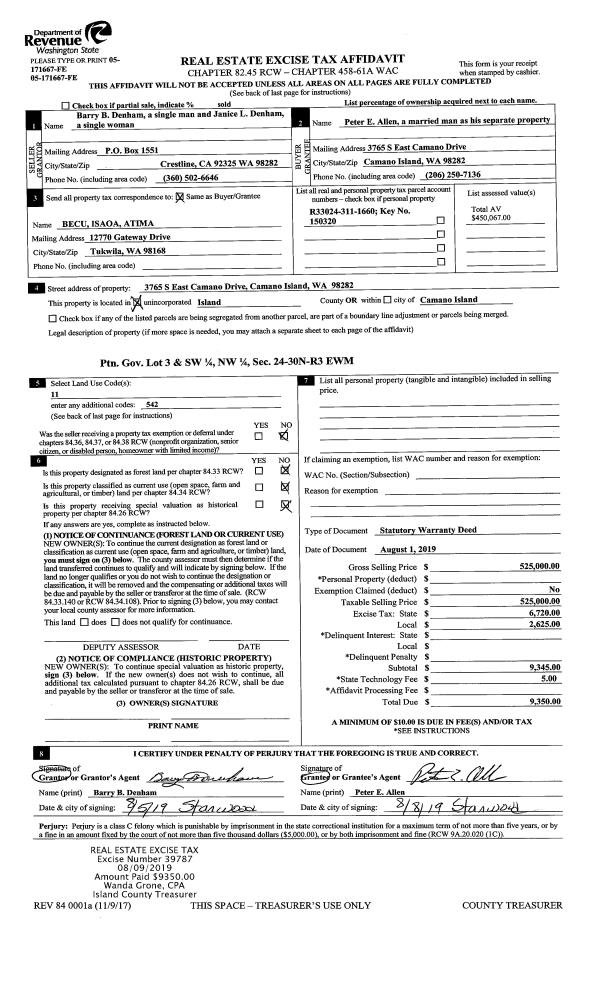
Property
Account |
| Property ID: | 306644 | Abbreviated Legal Description: | LONG BCH LOT 7 BLK 1 INCL ADJ TIDES TO A DEPTH OF 600' |
| Geographic ID: | S7395-00-01007-0 | Agent Code: | |
| Type: | Real | | |
| Tax Area: | 590 - APPRAISER-Stan/Cam Schl Dist, Special Dist, improved & less than 1 acre | Land Use Code | 11 |
| Open Space: | N | DFL | N |
| Historic Property: | N | Remodel Property: | N |
| Multi-Family Redevelopment: | N | | |
| Township: | | Section: | |
| Range: | |
Location |
| Address: | 215 IVERSON RD CAMANO ISLAND, WA 98282 | Mapsco: | |
| Neighborhood: | Cycle 5 | Map ID: | 915 |
| Neighborhood CD: | 5 |
Owner |
| Name: | RICHARDSON, MICHAEL E | Owner ID: | 313146 |
| Mailing Address: | CAROLYN M RICHARDSON PO BOX 1235 STANWOOD, WA 98292 | % Ownership: | 100.0000000000% |
| | | Exemptions: | |
Taxes and Assessment Details
Values
| (+) Improvement Homesite Value: | + | $0 | |
| (+) Improvement Non-Homesite Value: | + | $250,884 | |
| (+) Land Homesite Value: | + | $0 | |
| (+) Land Non-Homesite Value: | + | $775,600 | |
| (+) Curr Use (HS): | + | $0 | $0 |
| (+) Curr Use (NHS): | + | $0 | $0 |
| | | -------------------------- | |
| (=) Market Value: | = | $1,026,484 | |
| (–) Productivity Loss: | – | $0 | |
| | | -------------------------- | |
| (=) Subtotal: | = | $1,026,484 | |
| (+) Senior Appraised Value: | + | $0 | |
| (+) Non-Senior Appraised Value: | + | $1,026,484 | |
| | | -------------------------- | |
| (=) Total Appraised Value: | = | $1,026,484 | |
| (–) Senior Exemption Loss: | – | $0 | |
| (–) Exemption Loss: | – | $0 | |
| | | -------------------------- | |
| (=) Taxable Value: | = | $1,026,484 | |
Taxing Jurisdiction
| Owner: | RICHARDSON, MICHAEL E | | |
| % Ownership: | 100.0000000000% | | |
| Total Value: | $1,026,484 | | |
| Tax Area: | 590 - APPRAISER-Stan/Cam Schl Dist, Special Dist, improved & less than 1 acre |
| CF | Conservation Futures | 0.0316035091 | $1,026,484 | $1,026,484 | $32.44 | | |
| EMS1 | Fire & Rescue Dist #1 Camano GEN (EMS) | 0.3677864386 | $1,026,484 | $1,026,484 | $377.53 | | |
| FIRE1 | Fire & Rescue Dist #1 Camano GEN | 1.2502910536 | $1,026,484 | $1,026,484 | $1,283.40 | | |
| FIRE1BOND | Fire & Rescue Dist #1 Camano BOND | 0.1570001679 | $1,026,484 | $1,026,484 | $161.16 | | |
| CE | County Current Expense | 0.3708482477 | $1,026,484 | $1,026,484 | $380.67 | | |
| CR | County Roads | 0.4584763726 | $1,026,484 | $1,026,484 | $470.62 | | |
| LCIB | Library Sno-Isle BOND (Camano Island) | 0.0396325772 | $1,026,484 | $1,026,484 | $40.68 | | |
| LIB | Library Sno-Isle GEN | 0.3153421757 | $1,026,484 | $1,026,484 | $323.69 | | |
| SCH205_401 | School 205-401 Enrichment | 1.2698420524 | $1,026,484 | $1,026,484 | $1,303.47 | | |
| SCH205BOND | School 205-401 BOND | 0.9396497583 | $1,026,484 | $1,026,484 | $964.54 | | |
| ST | State School | 1.3035497053 | $1,026,484 | $1,026,484 | $1,338.07 | | |
| ST2 | State School Part 2 | 0.8169543533 | $1,026,484 | $1,026,484 | $838.59 | | |
| | Total Tax Rate: | 7.3209764117 | | | | | |
| | | | | Taxes w/Current Exemptions: | $7,514.86 | | |
| | | | | Taxes w/o Exemptions: | $7,514.86 | | |
Improvement / Building
| Improvement #1: | RESIDENTIAL | State Code: | Y | 838.0 sqft | Value: | $250,884 |
| Bathrooms: | 1.5 | Bedrooms: | 2 | | Ceiling: | DRYWALL PAINTED | Exterior Wall/Cover: | CEMENT FIBER | | Floor Covering: | CERAMIC TILE/CPT 40-60 | Floor Structure: | WOOD W/SUBFLOOR | | Foundation: | CONCRETE | Heating: | WALL HEAT ELECTRIC | | Interior Finish: | DRYWALL PAINT | Plumbing Fixture Cnt: | 8 | | Roof Slope: | 3" IN 12" | Roof Structure/Cover: | CJ ALUMINIUM HEAVY |
|
| | Type | Description | Class CD | Sub Class CD | Year Built | Area |
| | BAS | BASE/MAIN FLOOR | 3 | 0 | 2010 | 838.0 |
| | BIG | BUILT IN GARAGE | 3 | 0 | 2010 | 784.0 |
| | OWP | OPEN WOOD PORCH W/STEPS | 3 | 0 | 2010 | 424.0 |
| | OP1 | OPEN PORCH SLAB | 3 | 0 | 2010 | 280.0 |
Sketch
Property Image
Land
| 1 | LB | LOW BANK | 0.2500 | 10890.00 | 60.00 | 0.00 | 1.00 | $775,000 | $0 |
| 2 | 55 | TIDES | 0.2500 | 10890.00 | 60.00 | 0.00 | 1.00 | $600 | $0 |
Roll Value History
| 2026 | N/A | N/A | N/A | N/A | N/A |
| 2025 | $250,884 | $775,600 | $0 | $1,026,484 | $1,026,484 |
| 2024 | $253,759 | $775,600 | $0 | $1,029,359 | $1,029,359 |
| 2023 | $256,635 | $715,600 | $0 | $972,235 | $972,235 |
| 2022 | $234,344 | $650,600 | $0 | $884,944 | $884,944 |
| 2021 | $208,029 | $525,600 | $0 | $733,629 | $733,629 |
| 2020 | $201,406 | $450,600 | $0 | $652,006 | $652,006 |
| 2019 | $141,561 | $450,600 | $0 | $592,161 | $592,161 |
| 2018 | $141,948 | $375,600 | $0 | $517,548 | $517,548 |
| 2017 | $142,724 | $375,600 | $0 | $518,324 | $518,324 |
| 2016 | $144,275 | $350,600 | $0 | $494,875 | $494,875 |
| 2015 | $127,313 | $350,600 | $0 | $477,913 | $477,913 |
| 2014 | $128,668 | $350,600 | $0 | $479,268 | $479,268 |
| 2013 | $130,024 | $350,600 | $0 | $480,624 | $480,624 |
| 2012 | $131,377 | $389,198 | $0 | $520,575 | $520,575 |
| 2011 | $132,731 | $486,348 | $0 | $619,079 | $619,079 |
| 2010 | $115,030 | $486,348 | $0 | $601,378 | $601,378 |
| 2009 | $0 | $538,260 | $0 | $538,260 | $538,260 |
| 2008 | $0 | $559,414 | $0 | $559,414 | $559,414 |
| 2007 | $0 | $520,227 | $0 | $520,227 | $520,227 |
Deed and Sales History
| 1 | 06/19/2024 | WD | Warranty Deed | RICHARDSON, CAROLYN M | RICHARDSON, MICHAEL E | | | $0.00 | 60627 | 4574535 |
| 2 | 07/20/2021 | WD | Warranty Deed | RICHARDSON, PATRICK G | RICHARDSON, CAROLYN M | | | $0.00 | 49319 | 4525292 |
| 3 | 10/17/2005 | WD | Warranty Deed | MOYNIHAN, DE LIMA | RICHARDSON, PATRICK G | | | $0.00 | 40031 | 4470312 |
| 4 | 10/17/2005 | WD | Warranty Deed | MOYNIHAN, DELIMA M | RICHARDSON, PATRICK G | | | $475,000.00 | 55298 | 4151479 |
| 5 | 05/01/1983 | QCD | Quit Claim Deed | MOYNIHAN, J A | MOYNIHAN, DELIMA M | | | $0.00 | 31700 | 411302 |
| 6 | 01/01/1900 | OTHER | Other - Misc. Documents | Unknown | MOYNIHAN, J A | | | $0.00 | 0 | 0 |
Payout Agreement
| No payout information available.. |