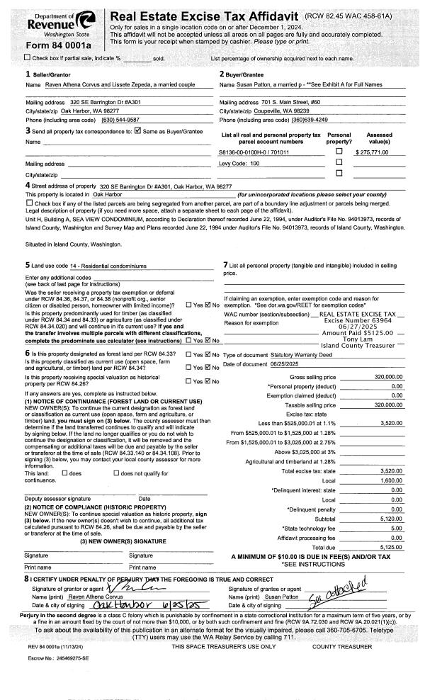
Property
Account |
| Property ID: | 30665 | Abbreviated Legal Description: | 29 - BG SECR GL6 W55.79' N1*E900.16' E146.42' N7*E 91.36' N15*W46' TPB N15*W80 .92' N47*W50' N65*E600' TO HITDLN SE ALG LN TP N56*E FR TPB S56*W615' TPB INCL ADJ TIDES TGW EZ SP 76-6 L38C |
| Geographic ID: | R13236-122-4250 | Agent Code: | |
| Type: | Real | | |
| Tax Area: | 312 - APPRAISER-Cpvl Schl Dist, outside Cpvl, improved, greater than 1 acre | Land Use Code | 11 |
| Open Space: | N | DFL | N |
| Historic Property: | N | Remodel Property: | N |
| Multi-Family Redevelopment: | N | | |
| Township: | 32 | Section: | 36 |
| Range: | R1 |
Location |
| Address: | 90 BUCK WAY COUPEVILLE, WA 98239 | Mapsco: | |
| Neighborhood: | Area 2 Waterfront Eastside Res | Map ID: | 186 |
| Neighborhood CD: | 2WFTE01R |
Owner |
| Name: | TAKISAKI TTEE, MARK J | Owner ID: | 309356 |
| Mailing Address: | CATHERINE A TAKISAKI TTEE 6231 LAKE SHORE DR S SEATTLE, WA 98118 | % Ownership: | 100.0000000000% |
| | | Exemptions: | |
Taxes and Assessment Details
Values
| (+) Improvement Homesite Value: | + | $0 | |
| (+) Improvement Non-Homesite Value: | + | $487,974 | |
| (+) Land Homesite Value: | + | $0 | |
| (+) Land Non-Homesite Value: | + | $460,450 | |
| (+) Curr Use (HS): | + | $0 | $0 |
| (+) Curr Use (NHS): | + | $0 | $0 |
| | | -------------------------- | |
| (=) Market Value: | = | $948,424 | |
| (–) Productivity Loss: | – | $0 | |
| | | -------------------------- | |
| (=) Subtotal: | = | $948,424 | |
| (+) Senior Appraised Value: | + | $0 | |
| (+) Non-Senior Appraised Value: | + | $948,424 | |
| | | -------------------------- | |
| (=) Total Appraised Value: | = | $948,424 | |
| (–) Senior Exemption Loss: | – | $0 | |
| (–) Exemption Loss: | – | $0 | |
| | | -------------------------- | |
| (=) Taxable Value: | = | $948,424 | |
Taxing Jurisdiction
| Owner: | TAKISAKI TTEE, MARK J | | |
| % Ownership: | 100.0000000000% | | |
| Total Value: | $948,424 | | |
| Tax Area: | 312 - APPRAISER-Cpvl Schl Dist, outside Cpvl, improved, greater than 1 acre |
| CF | Conservation Futures | 0.0316035091 | $948,424 | $948,424 | $29.97 | | |
| CEM2 | Cemetery #2 | 0.0095056933 | $948,424 | $948,424 | $9.02 | | |
| FIRE5 | Fire & Rescue Dist #5 C Whidbey GEN | 1.2008080668 | $948,424 | $948,424 | $1,138.88 | | |
| FIRE5BOND | Fire & Rescue Dist #5 C Whidbey BOND | 0.1400090713 | $948,424 | $948,424 | $132.79 | | |
| HOBOND | Hospital BOND | 0.1910887512 | $948,424 | $948,424 | $181.23 | | |
| HOGEN | Hospital GEN | 0.3902502903 | $948,424 | $948,424 | $370.12 | | |
| CE | County Current Expense | 0.3708482477 | $948,424 | $948,424 | $351.72 | | |
| CR | County Roads | 0.4584763726 | $948,424 | $948,424 | $434.83 | | |
| ISLANDEMS | Hospital GEN (EMS) | 0.5000000000 | $948,424 | $948,424 | $474.21 | | |
| LIB | Library Sno-Isle GEN | 0.3153421757 | $948,424 | $948,424 | $299.08 | | |
| LIBCAP | Library Sno-Isle BOND (Cap Fac Imp Area) | 0.0543427938 | $948,424 | $948,424 | $51.54 | | |
| POCOUP | Port of Coupeville GEN | 0.1093371703 | $948,424 | $948,424 | $103.70 | | |
| POCOUPIDD | Port of Coupeville IDD | 0.3409740022 | $948,424 | $948,424 | $323.39 | | |
| COUPSDTECH | School 204 CP (TECH) | 0.7545480007 | $948,424 | $948,424 | $715.63 | | |
| SCH204MO | School 204 Enrichment | 0.6716186034 | $948,424 | $948,424 | $636.98 | | |
| ST | State School | 1.3035497053 | $948,424 | $948,424 | $1,236.32 | | |
| ST2 | State School Part 2 | 0.8169543533 | $948,424 | $948,424 | $774.82 | | |
| | Total Tax Rate: | 7.6592568070 | | | | | |
| | | | | Taxes w/Current Exemptions: | $7,264.23 | | |
| | | | | Taxes w/o Exemptions: | $7,264.23 | | |
Improvement / Building
| Improvement #1: | RESIDENTIAL | State Code: | Y | 1772.0 sqft | Value: | $487,974 |
| Bathrooms: | 2 | Bedrooms: | 2 | | Ceiling: | DRYWALL PAINTED | Cooling: | HEAT PUMP/CONV/V | | Exterior Wall/Cover: | WOOD SIDING | Floor Covering: | HARDWOOD 100% | | Floor Structure: | WOOD W/SUBFLOOR | Foundation: | CONCRETE | | Interior Finish: | DRYWALL PAINT | Plumbing Fixture Cnt: | 10 | | Roof Slope: | 3" IN 12" | Roof Structure/Cover: | CJ ALUMINIUM HEAVY |
|
| | Type | Description | Class CD | Sub Class CD | Year Built | Area |
| | BAS | BASE/MAIN FLOOR | 4 | 0 | 2013 | 1772.0 |
| | OCP | OPEN CARPORT | 4 | 0 | 2013 | 312.0 |
| | OWP | OPEN WOOD PORCH W/STEPS | 4 | 0 | 2013 | 144.0 |
| | OWC | OPEN WOOD PORCH W/STEPS/ROOF/C | 4 | 0 | 2013 | 35.0 |
| | OWP | OPEN WOOD PORCH W/STEPS | 4 | 0 | 2013 | 108.0 |
| | OWR | OPEN WOOD PORCH W/STEPS/ROOF | 4 | 0 | 2013 | 192.0 |
| | OP3 | OPEN PORCH W/ROOF | 4 | 0 | 2013 | 20.0 |
Sketch
| No sketches available for this property. |
Property Image
Land
| 1 | HB | HIGH BLUFF | 1.0000 | 43560.00 | 80.00 | 0.00 | 1.00 | $460,000 | $0 |
| 2 | 55 | TIDES | 0.0000 | 0.00 | 45.00 | 0.00 | 1.00 | $450 | $0 |
Roll Value History
| 2026 | N/A | N/A | N/A | N/A | N/A |
| 2025 | $487,974 | $460,450 | $0 | $948,424 | $948,424 |
| 2024 | $491,880 | $410,450 | $0 | $902,330 | $902,330 |
| 2023 | $434,838 | $410,450 | $0 | $845,288 | $845,288 |
| 2022 | $396,971 | $390,450 | $0 | $787,421 | $787,421 |
| 2021 | $348,002 | $325,450 | $0 | $673,452 | $673,452 |
| 2020 | $337,931 | $300,450 | $0 | $638,381 | $638,381 |
| 2019 | $252,695 | $325,450 | $0 | $578,145 | $578,145 |
| 2018 | $216,779 | $275,450 | $0 | $492,229 | $492,229 |
| 2017 | $217,928 | $250,450 | $0 | $468,378 | $468,378 |
| 2016 | $220,222 | $250,450 | $0 | $470,672 | $470,672 |
| 2015 | $222,514 | $250,450 | $0 | $472,964 | $472,964 |
| 2014 | $224,809 | $250,450 | $0 | $475,259 | $475,259 |
| 2013 | $92,697 | $115,665 | $0 | $208,362 | $208,362 |
| 2012 | $0 | $115,665 | $0 | $115,665 | $115,665 |
| 2011 | $0 | $115,665 | $0 | $115,665 | $115,665 |
| 2010 | $0 | $115,665 | $0 | $115,665 | $115,665 |
| 2009 | $0 | $119,898 | $0 | $119,898 | $119,898 |
| 2008 | $0 | $119,898 | $0 | $119,898 | $119,898 |
| 2007 | $0 | $119,583 | $0 | $119,583 | $119,583 |
Deed and Sales History
| 1 | 07/18/2023 | WD | Warranty Deed | BEHRENDT TRUSTEE, LAWRENCE | TAKISAKI TTEE, MARK J | | | $930,000.00 | 57352 | 4562454 |
| 2 | 10/21/2010 | WD | Warranty Deed | MENTON, TIMOTHY P / MARY E | BEHRENDT TRUSTEE, LAWRENCE | | | $172,500.00 | 2670 | 4283468 |
| 3 | 08/01/1995 | WD | Warranty Deed | MADVIN, GARY F | MENTON, TIMOTHY P | | | $71,250.00 | 53273 | 95015065 |
| 4 | 11/01/1989 | WD | Warranty Deed | FAKKEMA, JOHN M | MADVIN, GARY F | | | $39,500.00 | 95752 | 89018443 |
| 5 | 11/01/1980 | EXECUTORD | Executor Deed | FAKKEMA, JOHN M | FAKKEMA, JOHN M | | | $42,500.00 | 3868 | 376501 |
| 6 | 10/01/1980 | EXECUTORD | Executor Deed | VAN, HOEVEN, J | FAKKEMA, JOHN M | | | $32,500.00 | 3691 | 375911 |
| 7 | 01/01/1900 | OTHER | Other - Misc. Documents | Unknown | VAN, HOEVEN, J | | | $0.00 | 0 | 0 |
Payout Agreement
| No payout information available.. |