Property
Account |
| Property ID: | 30683 | Abbreviated Legal Description: | 28 - BG SECR GL6 W55.79' N01*E900.16' E146.42' N7*E 91.36' N15*W126.92' N47*W50 TPB N22*W131.71' N76*E580' TO HITDLN SE ALG SD LN TP N65*E FR TPB S65*W600' TPB INCL ADJ TIDES TGW EZ SP 76-6 L38B |
| Geographic ID: | R13236-128-4180 | Agent Code: | |
| Type: | Real | | |
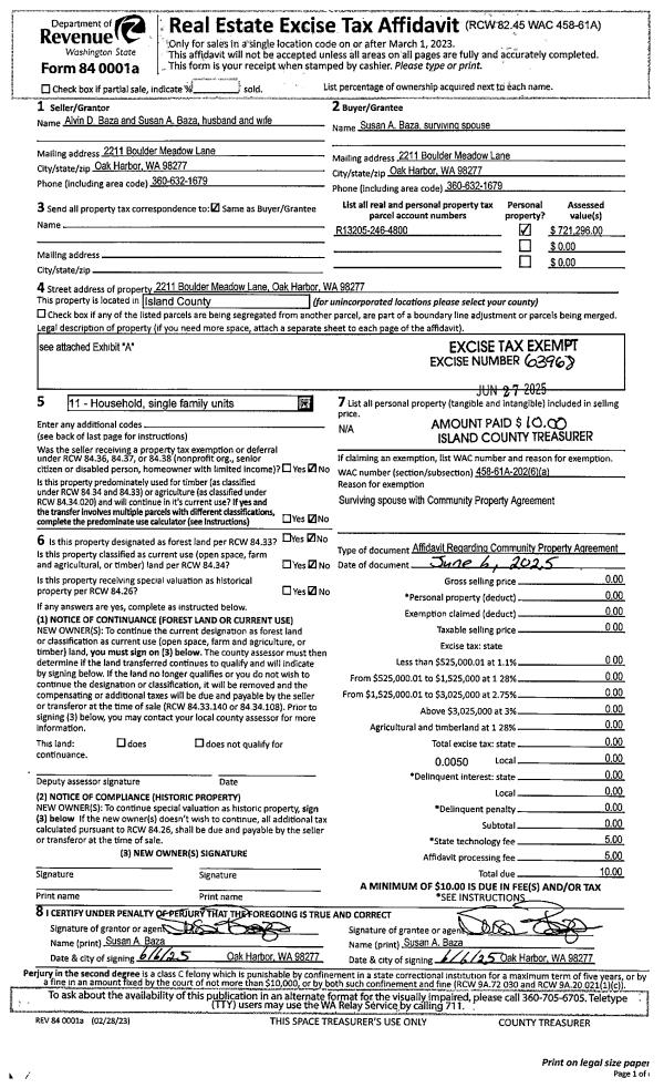
| Tax Area: | 312 - APPRAISER-Cpvl Schl Dist, outside Cpvl, improved, greater than 1 acre | Land Use Code | 11 |
| Open Space: | N | DFL | N |
| Historic Property: | N | Remodel Property: | N |
| Multi-Family Redevelopment: | N | | |
| Township: | 32 | Section: | 36 |
| Range: | R1 |
Location |
| Address: | 94 BUCK WAY COUPEVILLE, WA 98239 | Mapsco: | |
| Neighborhood: | Area 2 Waterfront Eastside Res | Map ID: | 186 |
| Neighborhood CD: | 2WFTE01R |
Owner |
| Name: | ROACH, RICHARD KEVIN | Owner ID: | 276750 |
| Mailing Address: | CYNTHIA ANN ROACH 14251 SILVER RIDGE RD POWAY, CA 92064 | % Ownership: | 100.0000000000% |
| | | Exemptions: | |
Taxes and Assessment Details
Values
| (+) Improvement Homesite Value: | + | $0 | |
| (+) Improvement Non-Homesite Value: | + | $502,401 | |
| (+) Land Homesite Value: | + | $0 | |
| (+) Land Non-Homesite Value: | + | $460,300 | |
| (+) Curr Use (HS): | + | $0 | $0 |
| (+) Curr Use (NHS): | + | $0 | $0 |
| | | -------------------------- | |
| (=) Market Value: | = | $962,701 | |
| (–) Productivity Loss: | – | $0 | |
| | | -------------------------- | |
| (=) Subtotal: | = | $962,701 | |
| (+) Senior Appraised Value: | + | $0 | |
| (+) Non-Senior Appraised Value: | + | $962,701 | |
| | | -------------------------- | |
| (=) Total Appraised Value: | = | $962,701 | |
| (–) Senior Exemption Loss: | – | $0 | |
| (–) Exemption Loss: | – | $0 | |
| | | -------------------------- | |
| (=) Taxable Value: | = | $962,701 | |
Taxing Jurisdiction
| Owner: | ROACH, RICHARD KEVIN | | |
| % Ownership: | 100.0000000000% | | |
| Total Value: | $962,701 | | |
| Tax Area: | 312 - APPRAISER-Cpvl Schl Dist, outside Cpvl, improved, greater than 1 acre |
| CF | Conservation Futures | 0.0316035091 | $962,701 | $962,701 | $30.42 | | |
| CEM2 | Cemetery #2 | 0.0095056933 | $962,701 | $962,701 | $9.15 | | |
| FIRE5 | Fire & Rescue Dist #5 C Whidbey GEN | 1.2008080668 | $962,701 | $962,701 | $1,156.02 | | |
| FIRE5BOND | Fire & Rescue Dist #5 C Whidbey BOND | 0.1400090713 | $962,701 | $962,701 | $134.79 | | |
| HOBOND | Hospital BOND | 0.1910887512 | $962,701 | $962,701 | $183.96 | | |
| HOGEN | Hospital GEN | 0.3902502903 | $962,701 | $962,701 | $375.69 | | |
| CE | County Current Expense | 0.3708482477 | $962,701 | $962,701 | $357.02 | | |
| CR | County Roads | 0.4584763726 | $962,701 | $962,701 | $441.38 | | |
| ISLANDEMS | Hospital GEN (EMS) | 0.5000000000 | $962,701 | $962,701 | $481.35 | | |
| LIB | Library Sno-Isle GEN | 0.3153421757 | $962,701 | $962,701 | $303.58 | | |
| LIBCAP | Library Sno-Isle BOND (Cap Fac Imp Area) | 0.0543427938 | $962,701 | $962,701 | $52.32 | | |
| POCOUP | Port of Coupeville GEN | 0.1093371703 | $962,701 | $962,701 | $105.26 | | |
| POCOUPIDD | Port of Coupeville IDD | 0.3409740022 | $962,701 | $962,701 | $328.26 | | |
| COUPSDTECH | School 204 CP (TECH) | 0.7545480007 | $962,701 | $962,701 | $726.40 | | |
| SCH204MO | School 204 Enrichment | 0.6716186034 | $962,701 | $962,701 | $646.57 | | |
| ST | State School | 1.3035497053 | $962,701 | $962,701 | $1,254.93 | | |
| ST2 | State School Part 2 | 0.8169543533 | $962,701 | $962,701 | $786.48 | | |
| | Total Tax Rate: | 7.6592568070 | | | | | |
| | | | | Taxes w/Current Exemptions: | $7,373.58 | | |
| | | | | Taxes w/o Exemptions: | $7,373.58 | | |
Improvement / Building
| Improvement #1: | RESIDENTIAL | State Code: | Y | 2429.0 sqft | Value: | $502,401 |
| Bathrooms: | 2.5 | Bedrooms: | 3 | | Ceiling: | TONGUE & GROOVE | Exterior Wall/Cover: | WOOD SIDING | | Floor Covering: | HARDWOOD/CARP 60-40 | Floor Structure: | WOOD W/SUBFLOOR | | Foundation: | CONCRETE | Heating: | WALL HEAT ELECTRIC | | Interior Finish: | DRYWALL PAINT | Plumbing Fixture Cnt: | 12 | | Roof Slope: | 10" IN 12" | Roof Structure/Cover: | BEAM ASPHALT |
|
| | Type | Description | Class CD | Sub Class CD | Year Built | Area |
| | BAS | BASE/MAIN FLOOR | 4 | 0 | 1991 | 896.0 |
| | AGR | ATTACHED GARAGE | 4 | 0 | 1991 | 420.0 |
| | OWP | OPEN WOOD PORCH W/STEPS | 4 | 0 | 1991 | 612.0 |
| | OWP | OPEN WOOD PORCH W/STEPS | 4 | 0 | 1991 | 160.0 |
| | LOF | LOFT | 4 | 0 | 1991 | 420.0 |
| | DWN | DOWNSTAIRS LIVING AREA | 4 | 0 | 1991 | 504.0 |
| | UTY | STORAGE/UTILITY | 4 | 0 | 1991 | 125.0 |
| | UPS | UPPER STORY | 4 | 0 | 1991 | 609.0 |
| | OWC | OPEN WOOD PORCH W/STEPS/ROOF/C | 4 | 0 | 1991 | 197.7 |
| | OWR | OPEN WOOD PORCH W/STEPS/ROOF | 4 | 0 | 1991 | 35.0 |
Sketch
| No sketches available for this property. |
Property Image
Land
| 1 | HB | HIGH BLUFF | 1.0000 | 43560.00 | 95.00 | 0.00 | 1.00 | $460,000 | $0 |
| 2 | 55 | TIDES | 0.0000 | 0.00 | 30.00 | 0.00 | 1.00 | $300 | $0 |
Roll Value History
| 2026 | N/A | N/A | N/A | N/A | N/A |
| 2025 | $502,401 | $460,300 | $0 | $962,701 | $962,701 |
| 2024 | $495,291 | $410,300 | $0 | $905,591 | $905,591 |
| 2023 | $501,135 | $410,300 | $0 | $911,435 | $911,435 |
| 2022 | $459,346 | $390,300 | $0 | $849,646 | $849,646 |
| 2021 | $404,423 | $325,300 | $0 | $729,723 | $729,723 |
| 2020 | $394,395 | $300,300 | $0 | $694,695 | $694,695 |
| 2019 | $298,682 | $325,300 | $0 | $623,982 | $623,982 |
| 2018 | $257,299 | $275,300 | $0 | $532,599 | $532,599 |
| 2017 | $298,093 | $250,300 | $0 | $548,393 | $548,393 |
| 2016 | $221,209 | $250,300 | $0 | $471,509 | $471,509 |
| 2015 | $224,006 | $250,300 | $0 | $474,306 | $474,306 |
| 2014 | $226,802 | $250,300 | $0 | $477,102 | $477,102 |
| 2013 | $229,601 | $207,716 | $0 | $437,317 | $437,317 |
| 2012 | $197,474 | $207,716 | $0 | $405,190 | $405,190 |
| 2011 | $199,749 | $207,716 | $0 | $407,465 | $407,465 |
| 2010 | $208,494 | $207,716 | $0 | $416,210 | $416,210 |
| 2009 | $217,050 | $241,566 | $0 | $458,616 | $458,616 |
| 2008 | $219,607 | $241,566 | $0 | $461,173 | $461,173 |
| 2007 | $222,130 | $241,356 | $0 | $463,486 | $463,486 |
Deed and Sales History
| 1 | 09/07/2016 | WD | Warranty Deed | HUNSLEY JR, ALBERT J | ROACH, RICHARD KEVIN | | | $595,000.00 | 26094 | 4407200 |
| 2 | 07/06/2003 | WD | Warranty Deed | MCHENRY, DONALD F | HUNSLEY JR, ALBERT J | | | $338,386.00 | 32967 | 4066209 |
| 3 | 06/01/1995 | QCD | Quit Claim Deed | MCHENRY, DONALD F | MCHENRY, DONALD F | | | $0.00 | 52208 | 95010169 |
| 4 | 10/01/1989 | WD | Warranty Deed | JANSMA, DONALD E | MCHENRY, DONALD F | | | $29,500.00 | 94895 | 89015850 |
| 5 | 07/01/1976 | EXECUTORD | Executor Deed | DUGGAN, R F | JANSMA, DONALD E | | | $0.00 | 62567 | 0 |
Payout Agreement
| No payout information available.. |