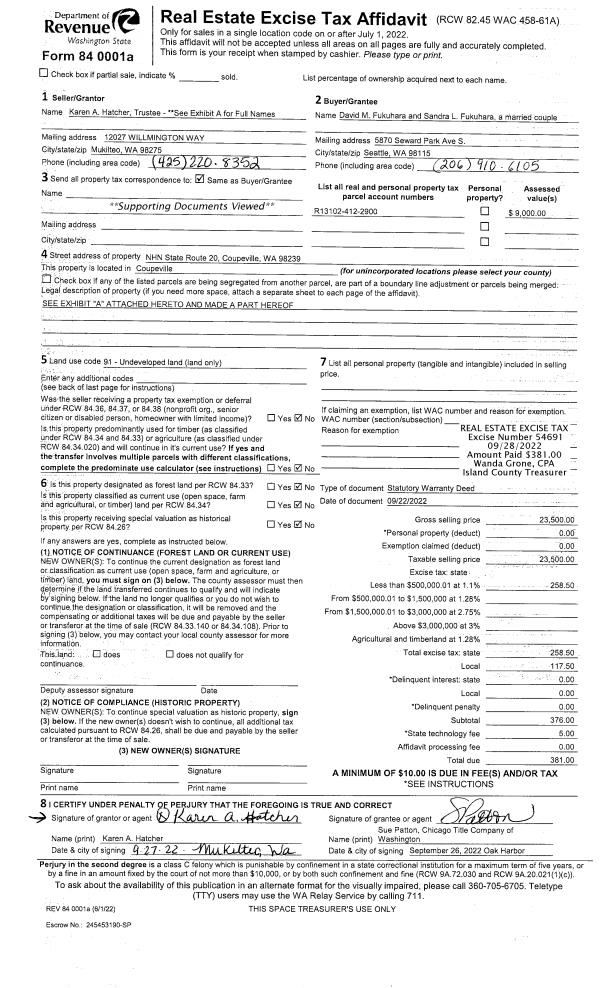
Property
Account |
| Property ID: | 307518 | Abbreviated Legal Description: | FRMLY ON 0000A-2 LONG PT MANOR PT TR A: BG WLN TR A LY N227.92' FR SWCR N75*E144 .73'TO ELN TR A N14*W91' S75*W120.65' S94.14'TPB TR A-3 SP 77-91 |
| Geographic ID: | S7400-00-0000A-3 | Agent Code: | |
| Type: | Real | | |
| Tax Area: | 319 - APPRAISER-Cpvl Schl Dist, outside Cpvl, vacant & 50 acres or less | Land Use Code | 99 |
| Open Space: | N | DFL | N |
| Historic Property: | N | Remodel Property: | N |
| Multi-Family Redevelopment: | N | | |
| Township: | | Section: | |
| Range: | |
Location |
| Address: | | Mapsco: | |
| Neighborhood: | Cycle 2 | Map ID: | 158 |
| Neighborhood CD: | 2 |
Owner |
| Name: | DOWD, CATHERINE J. | Owner ID: | 307095 |
| Mailing Address: | 7716 FOREST DR NE SEATTLE, WA 98115-5229 | % Ownership: | 100.0000000000% |
| | | Exemptions: | |
Taxes and Assessment Details
Values
| (+) Improvement Homesite Value: | + | $0 | |
| (+) Improvement Non-Homesite Value: | + | $0 | |
| (+) Land Homesite Value: | + | $0 | |
| (+) Land Non-Homesite Value: | + | $150,000 | |
| (+) Curr Use (HS): | + | $0 | $0 |
| (+) Curr Use (NHS): | + | $0 | $0 |
| | | -------------------------- | |
| (=) Market Value: | = | $150,000 | |
| (–) Productivity Loss: | – | $0 | |
| | | -------------------------- | |
| (=) Subtotal: | = | $150,000 | |
| (+) Senior Appraised Value: | + | $0 | |
| (+) Non-Senior Appraised Value: | + | $150,000 | |
| | | -------------------------- | |
| (=) Total Appraised Value: | = | $150,000 | |
| (–) Senior Exemption Loss: | – | $0 | |
| (–) Exemption Loss: | – | $0 | |
| | | -------------------------- | |
| (=) Taxable Value: | = | $150,000 | |
Taxing Jurisdiction
| Owner: | DOWD, CATHERINE J. | | |
| % Ownership: | 100.0000000000% | | |
| Total Value: | $150,000 | | |
| Tax Area: | 319 - APPRAISER-Cpvl Schl Dist, outside Cpvl, vacant & 50 acres or less |
| CF | Conservation Futures | 0.0316035091 | $150,000 | $150,000 | $4.74 | | |
| CEM2 | Cemetery #2 | 0.0095056933 | $150,000 | $150,000 | $1.43 | | |
| HOBOND | Hospital BOND | 0.1910887512 | $150,000 | $150,000 | $28.66 | | |
| HOGEN | Hospital GEN | 0.3902502903 | $150,000 | $150,000 | $58.54 | | |
| CE | County Current Expense | 0.3708482477 | $150,000 | $150,000 | $55.63 | | |
| CR | County Roads | 0.4584763726 | $150,000 | $150,000 | $68.77 | | |
| ISLANDEMS | Hospital GEN (EMS) | 0.5000000000 | $150,000 | $150,000 | $75.00 | | |
| LIB | Library Sno-Isle GEN | 0.3153421757 | $150,000 | $150,000 | $47.30 | | |
| LIBCAP | Library Sno-Isle BOND (Cap Fac Imp Area) | 0.0543427938 | $150,000 | $150,000 | $8.15 | | |
| POCOUP | Port of Coupeville GEN | 0.1093371703 | $150,000 | $150,000 | $16.40 | | |
| POCOUPIDD | Port of Coupeville IDD | 0.3409740022 | $150,000 | $150,000 | $51.15 | | |
| COUPSDTECH | School 204 CP (TECH) | 0.7545480007 | $150,000 | $150,000 | $113.18 | | |
| SCH204MO | School 204 Enrichment | 0.6716186034 | $150,000 | $150,000 | $100.74 | | |
| ST | State School | 1.3035497053 | $150,000 | $150,000 | $195.53 | | |
| ST2 | State School Part 2 | 0.8169543533 | $150,000 | $150,000 | $122.54 | | |
| | Total Tax Rate: | 6.3184396689 | | | | | |
| | | | | Taxes w/Current Exemptions: | $947.76 | | |
| | | | | Taxes w/o Exemptions: | $947.76 | | |
Improvement / Building
Sketch
| No sketches available for this property. |
Property Image
Land
| 1 | 15 | SQ (12001-21780) | 0.2800 | 12196.80 | 0.00 | 0.00 | 1.00 | $150,000 | $0 |
Roll Value History
| 2026 | N/A | N/A | N/A | N/A | N/A |
| 2025 | $0 | $150,000 | $0 | $150,000 | $150,000 |
| 2024 | $0 | $150,000 | $0 | $150,000 | $150,000 |
| 2023 | $0 | $150,000 | $0 | $150,000 | $150,000 |
| 2022 | $0 | $150,000 | $0 | $150,000 | $150,000 |
| 2021 | $0 | $140,000 | $0 | $140,000 | $140,000 |
| 2020 | $0 | $115,000 | $0 | $115,000 | $115,000 |
| 2019 | $0 | $115,000 | $0 | $115,000 | $115,000 |
| 2018 | $0 | $115,000 | $0 | $115,000 | $115,000 |
| 2017 | $0 | $75,000 | $0 | $75,000 | $75,000 |
| 2016 | $0 | $75,000 | $0 | $75,000 | $75,000 |
| 2015 | $0 | $75,000 | $0 | $75,000 | $75,000 |
| 2014 | $0 | $75,000 | $0 | $75,000 | $75,000 |
| 2013 | $0 | $75,000 | $0 | $75,000 | $75,000 |
| 2012 | $0 | $77,000 | $0 | $77,000 | $77,000 |
| 2011 | $0 | $77,000 | $0 | $77,000 | $77,000 |
| 2010 | $0 | $77,000 | $0 | $77,000 | $77,000 |
| 2009 | $0 | $111,000 | $0 | $111,000 | $111,000 |
| 2008 | $0 | $120,000 | $0 | $120,000 | $120,000 |
| 2007 | $0 | $114,900 | $0 | $114,900 | $114,900 |
Deed and Sales History
| 1 | 03/15/2022 | PRD | Personal Representatives Deed | DOWD, THOMAS J | DOWD, CATHERINE J. | | | $0.00 | 52444 | 4542181 |
| 2 | 06/01/1995 | OTHER | Other - Misc. Documents | DOWD, THOMAS J | DOWD, THOMAS J | | | $0.00 | 66450 | 0 |
| 3 | 07/01/1978 | OTHER | Other - Misc. Documents | BERVIN, ORVILLE J | DOWD, THOMAS J | | | $15,000.00 | 83108 | 335518 |
| 4 | 06/01/1978 | OTHER | Other - Misc. Documents | BERVEN, MARJORIE L | BERVIN, ORVILLE J | | | $12,500.00 | 83109 | 335519 |
| 5 | 01/01/1975 | PACD | Purchaser's Assignment | Unknown | BERVEN, MARJORIE L | | | $0.00 | 59219 | 0 |
Payout Agreement
| No payout information available.. |