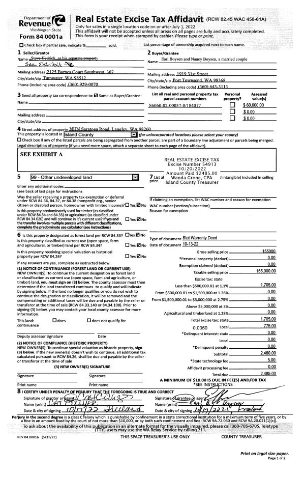
Property
Account |
| Property ID: | 307661 | Abbreviated Legal Description: | LONG PT MANOR LOT 11 BLK 1 EX 2'X 25' ALG NLN ALSO PT LOT 10: 2'X 25' ALG SLN UNDIV 1/2 INT EA |
| Geographic ID: | S7400-00-01011-0 | Agent Code: | |
| Type: | Real | | |
| Tax Area: | 310 - APPRAISER-Cpvl Schl Dist, outside Cpvl, improved & 1 acre or less | Land Use Code | 11 |
| Open Space: | N | DFL | N |
| Historic Property: | N | Remodel Property: | N |
| Multi-Family Redevelopment: | N | | |
| Township: | | Section: | |
| Range: | |
Location |
| Address: | 398 MARINE DR COUPEVILLE, WA 98239 | Mapsco: | |
| Neighborhood: | Cycle 2 | Map ID: | 184 |
| Neighborhood CD: | 2 |
Owner |
| Name: | SHANNON, BRIAN I | Owner ID: | 303855 |
| Mailing Address: | 4621 JOSHUAS WAY OAK HARBOR, WA 98277 | % Ownership: | 100.0000000000% |
| | | Exemptions: | |
Taxes and Assessment Details
Values
| (+) Improvement Homesite Value: | + | $0 | |
| (+) Improvement Non-Homesite Value: | + | $162,335 | |
| (+) Land Homesite Value: | + | $0 | |
| (+) Land Non-Homesite Value: | + | $600,000 | |
| (+) Curr Use (HS): | + | $0 | $0 |
| (+) Curr Use (NHS): | + | $0 | $0 |
| | | -------------------------- | |
| (=) Market Value: | = | $762,335 | |
| (–) Productivity Loss: | – | $0 | |
| | | -------------------------- | |
| (=) Subtotal: | = | $762,335 | |
| (+) Senior Appraised Value: | + | $0 | |
| (+) Non-Senior Appraised Value: | + | $762,335 | |
| | | -------------------------- | |
| (=) Total Appraised Value: | = | $762,335 | |
| (–) Senior Exemption Loss: | – | $0 | |
| (–) Exemption Loss: | – | $0 | |
| | | -------------------------- | |
| (=) Taxable Value: | = | $762,335 | |
Taxing Jurisdiction
| Owner: | SHANNON, BRIAN I | | |
| % Ownership: | 100.0000000000% | | |
| Total Value: | $762,335 | | |
| Tax Area: | 310 - APPRAISER-Cpvl Schl Dist, outside Cpvl, improved & 1 acre or less |
| CF | Conservation Futures | 0.0316035091 | $762,335 | $762,335 | $24.09 | | |
| CEM2 | Cemetery #2 | 0.0095056933 | $762,335 | $762,335 | $7.25 | | |
| FIRE5 | Fire & Rescue Dist #5 C Whidbey GEN | 1.2008080668 | $762,335 | $762,335 | $915.42 | | |
| FIRE5BOND | Fire & Rescue Dist #5 C Whidbey BOND | 0.1400090713 | $762,335 | $762,335 | $106.73 | | |
| HOBOND | Hospital BOND | 0.1910887512 | $762,335 | $762,335 | $145.67 | | |
| HOGEN | Hospital GEN | 0.3902502903 | $762,335 | $762,335 | $297.50 | | |
| CE | County Current Expense | 0.3708482477 | $762,335 | $762,335 | $282.71 | | |
| CR | County Roads | 0.4584763726 | $762,335 | $762,335 | $349.51 | | |
| ISLANDEMS | Hospital GEN (EMS) | 0.5000000000 | $762,335 | $762,335 | $381.17 | | |
| LIB | Library Sno-Isle GEN | 0.3153421757 | $762,335 | $762,335 | $240.40 | | |
| LIBCAP | Library Sno-Isle BOND (Cap Fac Imp Area) | 0.0543427938 | $762,335 | $762,335 | $41.43 | | |
| POCOUP | Port of Coupeville GEN | 0.1093371703 | $762,335 | $762,335 | $83.35 | | |
| POCOUPIDD | Port of Coupeville IDD | 0.3409740022 | $762,335 | $762,335 | $259.94 | | |
| COUPSDTECH | School 204 CP (TECH) | 0.7545480007 | $762,335 | $762,335 | $575.22 | | |
| SCH204MO | School 204 Enrichment | 0.6716186034 | $762,335 | $762,335 | $512.00 | | |
| ST | State School | 1.3035497053 | $762,335 | $762,335 | $993.74 | | |
| ST2 | State School Part 2 | 0.8169543533 | $762,335 | $762,335 | $622.79 | | |
| | Total Tax Rate: | 7.6592568070 | | | | | |
| | | | | Taxes w/Current Exemptions: | $5,838.92 | | |
| | | | | Taxes w/o Exemptions: | $5,838.92 | | |
Improvement / Building
| Improvement #1: | RESIDENTIAL | State Code: | Y | 1232.0 sqft | Value: | $162,335 |
| Bathrooms: | 2 | Bedrooms: | 3 | | Ceiling: | BEAM PAINTED | Cooling: | HEAT PUMP/CONV/V | | Exterior Wall/Cover: | WOOD SIDING | Floor Covering: | CARPET/VINYL 80-20 | | Floor Structure: | SLAB ON GRADE | Foundation: | SLAB | | Interior Finish: | DRYWALL PAINT | Plumbing Fixture Cnt: | 9 | | Roof Slope: | 3" IN 12" | Roof Structure/Cover: | BEAM BUILT-UP ROCK |
|
| | Type | Description | Class CD | Sub Class CD | Year Built | Area |
| | BAS | BASE/MAIN FLOOR | 3 | 0 | 1958 | 1232.0 |
| | OP1 | OPEN PORCH SLAB | 3 | 0 | 1958 | 268.0 |
| | OP3 | OPEN PORCH W/ROOF | 3 | 0 | 1958 | 144.0 |
| | AGR | ATTACHED GARAGE | 3 | 0 | 1958 | 816.0 |
| | UTY | STORAGE/UTILITY | 3 | 0 | 1958 | 384.0 |
Sketch
Property Image
Land
| 1 | LB | LOW BANK | 0.2700 | 11761.20 | 58.00 | 0.00 | 1.00 | $600,000 | $0 |
Roll Value History
| 2026 | N/A | N/A | N/A | N/A | N/A |
| 2025 | $162,335 | $600,000 | $0 | $762,335 | $762,335 |
| 2024 | $156,357 | $575,000 | $0 | $731,357 | $731,357 |
| 2023 | $159,349 | $575,000 | $0 | $734,349 | $734,349 |
| 2022 | $146,997 | $540,000 | $0 | $686,997 | $686,997 |
| 2021 | $130,183 | $450,000 | $0 | $580,183 | $580,183 |
| 2020 | $127,310 | $425,000 | $0 | $552,310 | $552,310 |
| 2019 | $89,727 | $450,000 | $0 | $539,727 | $539,727 |
| 2018 | $77,580 | $425,000 | $0 | $502,580 | $502,580 |
| 2017 | $78,365 | $400,000 | $0 | $478,365 | $478,365 |
| 2016 | $79,931 | $400,000 | $0 | $479,931 | $479,931 |
| 2015 | $81,498 | $350,000 | $0 | $431,498 | $431,498 |
| 2014 | $83,066 | $350,000 | $0 | $433,066 | $433,066 |
| 2013 | $84,633 | $363,835 | $0 | $448,468 | $448,468 |
| 2012 | $86,200 | $363,835 | $0 | $450,035 | $450,035 |
| 2011 | $87,767 | $363,835 | $0 | $451,602 | $451,602 |
| 2010 | $96,799 | $363,835 | $0 | $460,634 | $460,634 |
| 2009 | $101,256 | $439,860 | $0 | $541,116 | $541,116 |
| 2008 | $106,272 | $439,860 | $0 | $546,132 | $546,132 |
| 2007 | $107,906 | $439,860 | $0 | $547,766 | $547,766 |
Deed and Sales History
| 1 | 03/16/2022 | PRD | Personal Representatives Deed | SHANNON, BRIAN | SHANNON, BRIAN I | | | $0.00 | 52756 | 4543638 |
| 2 | 04/01/1995 | PRD | Personal Representatives Deed | MITCHELL, LOIS S | SHANNON, NANCY S | | | $0.00 | 51515 | 95007074 |
| 3 | 10/01/1986 | PRD | Personal Representatives Deed | MITCHELL, FRANK W | MITCHELL, LOIS S | | | $0.00 | 73655 | 87015905 |
| 4 | 06/01/1972 | CD | DNU - Correction Deed | MITCHELL, FRANK W | MITCHELL, FRANK W | | | $0.00 | 44532 | 0 |
| 5 | 01/01/1900 | OTHER | Other - Misc. Documents | Unknown | MITCHELL, FRANK W | | | $0.00 | 0 | 0 |
Payout Agreement
| No payout information available.. |