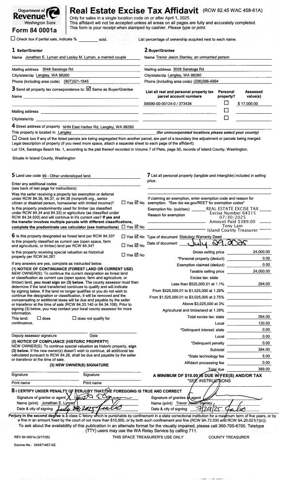
Property
Account |
| Property ID: | 307974 | Abbreviated Legal Description: | LONG PT MANOR LOT 1 BLK 2 |
| Geographic ID: | S7400-00-02001-0 | Agent Code: | |
| Type: | Real | | |
| Tax Area: | 310 - APPRAISER-Cpvl Schl Dist, outside Cpvl, improved & 1 acre or less | Land Use Code | 11 |
| Open Space: | N | DFL | N |
| Historic Property: | N | Remodel Property: | N |
| Multi-Family Redevelopment: | N | | |
| Township: | | Section: | |
| Range: | |
Location |
| Address: | 300 PORTAL PLACE COUPEVILLE, WA 98239 | Mapsco: | |
| Neighborhood: | Cycle 2 | Map ID: | 184 |
| Neighborhood CD: | 2 |
Owner |
| Name: | LOWANS, THURMAN W | Owner ID: | 295366 |
| Mailing Address: | 14769 SILVERDALE WAY NW POULSBO, WA 98370 | % Ownership: | 100.0000000000% |
| | | Exemptions: | |
Taxes and Assessment Details
Values
| (+) Improvement Homesite Value: | + | $0 | |
| (+) Improvement Non-Homesite Value: | + | $232,735 | |
| (+) Land Homesite Value: | + | $0 | |
| (+) Land Non-Homesite Value: | + | $320,000 | |
| (+) Curr Use (HS): | + | $0 | $0 |
| (+) Curr Use (NHS): | + | $0 | $0 |
| | | -------------------------- | |
| (=) Market Value: | = | $552,735 | |
| (–) Productivity Loss: | – | $0 | |
| | | -------------------------- | |
| (=) Subtotal: | = | $552,735 | |
| (+) Senior Appraised Value: | + | $0 | |
| (+) Non-Senior Appraised Value: | + | $552,735 | |
| | | -------------------------- | |
| (=) Total Appraised Value: | = | $552,735 | |
| (–) Senior Exemption Loss: | – | $0 | |
| (–) Exemption Loss: | – | $0 | |
| | | -------------------------- | |
| (=) Taxable Value: | = | $552,735 | |
Taxing Jurisdiction
| Owner: | LOWANS, THURMAN W | | |
| % Ownership: | 100.0000000000% | | |
| Total Value: | $552,735 | | |
| Tax Area: | 310 - APPRAISER-Cpvl Schl Dist, outside Cpvl, improved & 1 acre or less |
| CF | Conservation Futures | 0.0316035091 | $552,735 | $552,735 | $17.47 | | |
| CEM2 | Cemetery #2 | 0.0095056933 | $552,735 | $552,735 | $5.25 | | |
| FIRE5 | Fire & Rescue Dist #5 C Whidbey GEN | 1.2008080668 | $552,735 | $552,735 | $663.73 | | |
| FIRE5BOND | Fire & Rescue Dist #5 C Whidbey BOND | 0.1400090713 | $552,735 | $552,735 | $77.39 | | |
| HOBOND | Hospital BOND | 0.1910887512 | $552,735 | $552,735 | $105.62 | | |
| HOGEN | Hospital GEN | 0.3902502903 | $552,735 | $552,735 | $215.70 | | |
| CE | County Current Expense | 0.3708482477 | $552,735 | $552,735 | $204.98 | | |
| CR | County Roads | 0.4584763726 | $552,735 | $552,735 | $253.42 | | |
| ISLANDEMS | Hospital GEN (EMS) | 0.5000000000 | $552,735 | $552,735 | $276.37 | | |
| LIB | Library Sno-Isle GEN | 0.3153421757 | $552,735 | $552,735 | $174.30 | | |
| LIBCAP | Library Sno-Isle BOND (Cap Fac Imp Area) | 0.0543427938 | $552,735 | $552,735 | $30.04 | | |
| POCOUP | Port of Coupeville GEN | 0.1093371703 | $552,735 | $552,735 | $60.43 | | |
| POCOUPIDD | Port of Coupeville IDD | 0.3409740022 | $552,735 | $552,735 | $188.47 | | |
| COUPSDTECH | School 204 CP (TECH) | 0.7545480007 | $552,735 | $552,735 | $417.07 | | |
| SCH204MO | School 204 Enrichment | 0.6716186034 | $552,735 | $552,735 | $371.23 | | |
| ST | State School | 1.3035497053 | $552,735 | $552,735 | $720.52 | | |
| ST2 | State School Part 2 | 0.8169543533 | $552,735 | $552,735 | $451.56 | | |
| | Total Tax Rate: | 7.6592568070 | | | | | |
| | | | | Taxes w/Current Exemptions: | $4,233.55 | | |
| | | | | Taxes w/o Exemptions: | $4,233.55 | | |
Improvement / Building
| Improvement #1: | RESIDENTIAL | State Code: | Y | 1484.0 sqft | Value: | $232,735 |
| Bathrooms: | 2 | Bedrooms: | 2 | | Ceiling: | BEAM PAINTED | Exterior Wall/Cover: | PLY/HARDBOARD T-111 | | Floor Covering: | CARPET/VINYL 80-20 | Floor Structure: | WOOD W/SUBFLOOR | | Foundation: | CONCRETE | Heating: | FHA GAS | | Interior Finish: | DRYWALL PAINT | Plumbing Fixture Cnt: | 9 | | Roof Slope: | 4" IN 12" | Roof Structure/Cover: | CJ ASPHALT |
|
| | Type | Description | Class CD | Sub Class CD | Year Built | Area |
| | BAS | BASE/MAIN FLOOR | 3 | 0 | 1975 | 1484.0 |
| | OP3 | OPEN PORCH W/ROOF | 3 | 0 | 1975 | 150.0 |
| | AGR | ATTACHED GARAGE | 3 | 0 | 1975 | 672.0 |
| | OWP | OPEN WOOD PORCH W/STEPS | 3 | 0 | 1975 | 266.0 |
Sketch
Property Image
Land
| 1 | 15 | SQ (12001-21780) | 0.3200 | 13939.20 | 0.00 | 0.00 | 1.00 | $320,000 | $0 |
Roll Value History
| 2026 | N/A | N/A | N/A | N/A | N/A |
| 2025 | $232,735 | $320,000 | $0 | $552,735 | $552,735 |
| 2024 | $218,603 | $300,000 | $0 | $518,603 | $518,603 |
| 2023 | $221,903 | $300,000 | $0 | $521,903 | $521,903 |
| 2022 | $203,916 | $220,000 | $0 | $423,916 | $423,916 |
| 2021 | $179,920 | $180,000 | $0 | $359,920 | $359,920 |
| 2020 | $175,658 | $160,000 | $0 | $335,658 | $335,658 |
| 2019 | $127,653 | $200,000 | $0 | $327,653 | $327,653 |
| 2018 | $117,519 | $180,000 | $0 | $297,519 | $297,519 |
| 2017 | $118,430 | $155,000 | $0 | $273,430 | $273,430 |
| 2016 | $120,252 | $135,000 | $0 | $255,252 | $255,252 |
| 2015 | $122,073 | $100,000 | $0 | $222,073 | $222,073 |
| 2014 | $123,896 | $100,000 | $0 | $223,896 | $223,896 |
| 2013 | $125,718 | $100,000 | $0 | $225,718 | $225,718 |
| 2012 | $120,252 | $114,750 | $0 | $235,002 | $235,002 |
| 2011 | $122,073 | $135,000 | $0 | $257,073 | $257,073 |
| 2010 | $133,058 | $135,000 | $0 | $268,058 | $268,058 |
| 2009 | $138,915 | $125,000 | $0 | $263,915 | $263,915 |
| 2008 | $140,780 | $145,000 | $0 | $285,780 | $285,780 |
| 2007 | $142,730 | $145,000 | $0 | $287,730 | $287,730 |
Deed and Sales History
| 1 | 07/20/2020 | TOD | Transfer On Death Deed | LOWANS, WARREN H | LOWANS, THURMAN W | | | $0.00 | 43962 | 4433153 |
| 2 | 10/22/2002 | WD | Warranty Deed | LOWANS, WARREN H | LOWANS, WARREN H | | | $0.00 | 24430 | 4036481 |
| 3 | 01/01/1900 | OTHER | Other - Misc. Documents | Unknown | LOWANS, WARREN H | | | $0.00 | 0 | 0 |
Payout Agreement
| No payout information available.. |