Property
Account |
| Property ID: | 307992 | Abbreviated Legal Description: | LONG PT MANOR LOT 3 & W20'LOT 4 BLK 2 |
| Geographic ID: | S7400-00-02003-0 | Agent Code: | |
| Type: | Real | | |
| Tax Area: | 310 - APPRAISER-Cpvl Schl Dist, outside Cpvl, improved & 1 acre or less | Land Use Code | 11 |
| Open Space: | N | DFL | N |
| Historic Property: | N | Remodel Property: | N |
| Multi-Family Redevelopment: | N | | |
| Township: | | Section: | |
| Range: | |
Location |
| Address: | 287 MARINE DR COUPEVILLE, WA 98239 | Mapsco: | |
| Neighborhood: | Cycle 2 | Map ID: | 184 |
| Neighborhood CD: | 2 |
Owner |
| Name: | MCCALMAN TTEE, MARK A | Owner ID: | 304069 |
| Mailing Address: | 287 MARINE DR COUPEVILLE, WA 98239 | % Ownership: | 100.0000000000% |
| | | Exemptions: | |
Taxes and Assessment Details
Values
| (+) Improvement Homesite Value: | + | $0 | |
| (+) Improvement Non-Homesite Value: | + | $268,963 | |
| (+) Land Homesite Value: | + | $0 | |
| (+) Land Non-Homesite Value: | + | $260,000 | |
| (+) Curr Use (HS): | + | $0 | $0 |
| (+) Curr Use (NHS): | + | $0 | $0 |
| | | -------------------------- | |
| (=) Market Value: | = | $528,963 | |
| (–) Productivity Loss: | – | $0 | |
| | | -------------------------- | |
| (=) Subtotal: | = | $528,963 | |
| (+) Senior Appraised Value: | + | $0 | |
| (+) Non-Senior Appraised Value: | + | $528,963 | |
| | | -------------------------- | |
| (=) Total Appraised Value: | = | $528,963 | |
| (–) Senior Exemption Loss: | – | $0 | |
| (–) Exemption Loss: | – | $0 | |
| | | -------------------------- | |
| (=) Taxable Value: | = | $528,963 | |
Taxing Jurisdiction
| Owner: | MCCALMAN TTEE, MARK A | | |
| % Ownership: | 100.0000000000% | | |
| Total Value: | $528,963 | | |
| Tax Area: | 310 - APPRAISER-Cpvl Schl Dist, outside Cpvl, improved & 1 acre or less |
| CF | Conservation Futures | 0.0316035091 | $528,963 | $528,963 | $16.72 | | |
| CEM2 | Cemetery #2 | 0.0095056933 | $528,963 | $528,963 | $5.03 | | |
| FIRE5 | Fire & Rescue Dist #5 C Whidbey GEN | 1.2008080668 | $528,963 | $528,963 | $635.18 | | |
| FIRE5BOND | Fire & Rescue Dist #5 C Whidbey BOND | 0.1400090713 | $528,963 | $528,963 | $74.06 | | |
| HOBOND | Hospital BOND | 0.1910887512 | $528,963 | $528,963 | $101.08 | | |
| HOGEN | Hospital GEN | 0.3902502903 | $528,963 | $528,963 | $206.43 | | |
| CE | County Current Expense | 0.3708482477 | $528,963 | $528,963 | $196.17 | | |
| CR | County Roads | 0.4584763726 | $528,963 | $528,963 | $242.52 | | |
| ISLANDEMS | Hospital GEN (EMS) | 0.5000000000 | $528,963 | $528,963 | $264.48 | | |
| LIB | Library Sno-Isle GEN | 0.3153421757 | $528,963 | $528,963 | $166.80 | | |
| LIBCAP | Library Sno-Isle BOND (Cap Fac Imp Area) | 0.0543427938 | $528,963 | $528,963 | $28.75 | | |
| POCOUP | Port of Coupeville GEN | 0.1093371703 | $528,963 | $528,963 | $57.84 | | |
| POCOUPIDD | Port of Coupeville IDD | 0.3409740022 | $528,963 | $528,963 | $180.36 | | |
| COUPSDTECH | School 204 CP (TECH) | 0.7545480007 | $528,963 | $528,963 | $399.13 | | |
| SCH204MO | School 204 Enrichment | 0.6716186034 | $528,963 | $528,963 | $355.26 | | |
| ST | State School | 1.3035497053 | $528,963 | $528,963 | $689.53 | | |
| ST2 | State School Part 2 | 0.8169543533 | $528,963 | $528,963 | $432.14 | | |
| | Total Tax Rate: | 7.6592568070 | | | | | |
| | | | | Taxes w/Current Exemptions: | $4,051.48 | | |
| | | | | Taxes w/o Exemptions: | $4,051.48 | | |
Improvement / Building
| Improvement #1: | RESIDENTIAL | State Code: | Y | 1931.5 sqft | Value: | $268,963 |
| Bathrooms: | 2 | Bedrooms: | 3 | | Ceiling: | DRYWALL PAINTED | Exterior Wall/Cover: | WOOD SIDING | | Floor Covering: | CARPET/VINYL 20-80 | Floor Structure: | WOOD W/SUBFLOOR | | Foundation: | CONCRETE BLOCKS | Heating: | FHA GAS | | Interior Finish: | DRYWALL PAINT | Plumbing Fixture Cnt: | 8 | | Roof Slope: | 4" IN 12" | Roof Structure/Cover: | CJ ASPHALT |
|
| | Type | Description | Class CD | Sub Class CD | Year Built | Area |
| | BAS | BASE/MAIN FLOOR | 3 | 0 | 1957 | 1440.5 |
| | BIG | BUILT IN GARAGE | 3 | 0 | 1957 | 418.0 |
| | UTY | STORAGE/UTILITY | 3 | 0 | 1957 | 308.0 |
| | UPS | UPPER STORY | 3 | 0 | 1957 | 491.0 |
| | OWR | OPEN WOOD PORCH W/STEPS/ROOF | 3 | 0 | 1957 | 121.0 |
| | OWP | OPEN WOOD PORCH W/STEPS | 3 | 0 | 1957 | 189.0 |
| | OWP | OPEN WOOD PORCH W/STEPS | 3 | 0 | 1957 | 180.0 |
Sketch
| No sketches available for this property. |
Property Image
Land
| 1 | 15 | SQ (12001-21780) | 0.4200 | 18295.20 | 0.00 | 0.00 | 1.00 | $260,000 | $0 |
Roll Value History
| 2026 | N/A | N/A | N/A | N/A | N/A |
| 2025 | $268,963 | $260,000 | $0 | $528,963 | $528,963 |
| 2024 | $263,399 | $240,000 | $0 | $503,399 | $503,399 |
| 2023 | $267,046 | $240,000 | $0 | $507,046 | $507,046 |
| 2022 | $245,109 | $200,000 | $0 | $445,109 | $445,109 |
| 2021 | $216,007 | $150,000 | $0 | $366,007 | $366,007 |
| 2020 | $155,751 | $130,000 | $0 | $285,751 | $285,751 |
| 2019 | $98,890 | $170,000 | $0 | $268,890 | $268,890 |
| 2018 | $108,119 | $150,000 | $0 | $258,119 | $258,119 |
| 2017 | $109,149 | $130,000 | $0 | $239,149 | $239,149 |
| 2016 | $111,209 | $115,000 | $0 | $226,209 | $226,209 |
| 2015 | $113,267 | $90,000 | $0 | $203,267 | $203,267 |
| 2014 | $115,328 | $85,000 | $0 | $200,328 | $200,328 |
| 2013 | $117,385 | $85,000 | $0 | $202,385 | $202,385 |
| 2012 | $119,445 | $90,950 | $0 | $210,395 | $210,395 |
| 2011 | $121,504 | $107,000 | $0 | $228,504 | $228,504 |
| 2010 | $132,503 | $107,000 | $0 | $239,503 | $239,503 |
| 2009 | $138,590 | $125,000 | $0 | $263,590 | $263,590 |
| 2008 | $140,653 | $95,000 | $0 | $235,653 | $235,653 |
| 2007 | $142,717 | $95,000 | $0 | $237,717 | $237,717 |
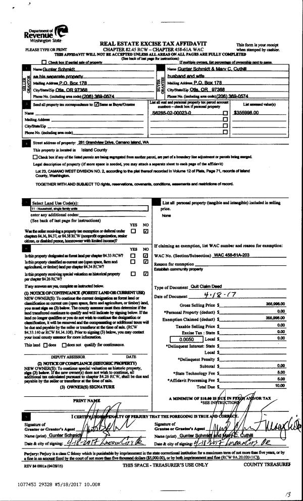
Deed and Sales History
| 1 | 04/30/2022 | WD | Warranty Deed | MCCALMAN, MARK A | MCCALMAN TTEE, MARK A | | | $0.00 | 52962 | 4544613 |
| 2 | 11/17/2021 | QCD | Quit Claim Deed | MCCALMAN INVESTMENT GROUP RESIDENTIAL, LLC | MCCALMAN, MARK A | | | $0.00 | 51039 | 4534316 |
| 3 | 11/25/2018 | QCD | Quit Claim Deed | MCCALMAN, MARK A | MCCALMAN INVESTMENT GROUP RESIDENTIAL, LLC | | | $0.00 | 37008 | 4456662 |
| 4 | 07/25/2018 | WD | Warranty Deed | WHITTAKER JR, GUY E | MCCALMAN, MARK A | | | $200,000.00 | 35416 | 4449761 |
| 5 | 05/12/2003 | ESTSEPPROP | Establish Separate Property | WHITTAKER, GUY E | WHITTAKER JR, GUY E | | | $0.00 | 32457 | 4062410 |
| 6 | 01/01/1995 | WD | Warranty Deed | BOGARDUS, RICHARD B | WHITTAKER, GUY E | | | $129,900.00 | 50152 | 95000782 |
| 7 | 01/01/1900 | OTHER | Other - Misc. Documents | Unknown | BOGARDUS, RICHARD B | | | $0.00 | 0 | 0 |
Payout Agreement
| No payout information available.. |