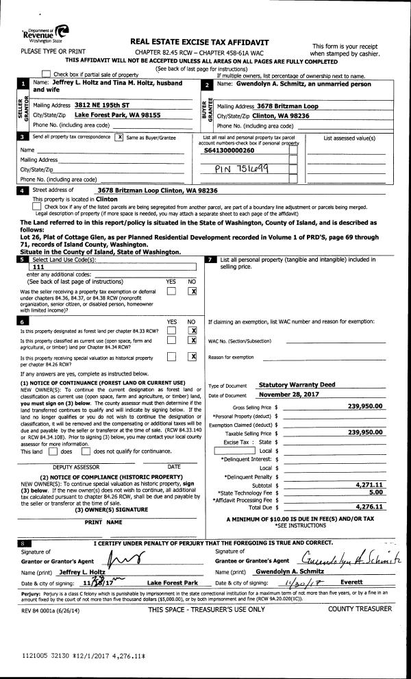
Property
Account |
| Property ID: | 308152 | Abbreviated Legal Description: | LONG PT MANOR LOT 4 BLK 3 EX NWLY 10' |
| Geographic ID: | S7400-00-03004-0 | Agent Code: | |
| Type: | Real | | |
| Tax Area: | 310 - APPRAISER-Cpvl Schl Dist, outside Cpvl, improved & 1 acre or less | Land Use Code | 11 |
| Open Space: | N | DFL | N |
| Historic Property: | N | Remodel Property: | N |
| Multi-Family Redevelopment: | N | | |
| Township: | | Section: | |
| Range: | |
Location |
| Address: | 347 MARINE DR COUPEVILLE, WA 98239 | Mapsco: | |
| Neighborhood: | Cycle 2 | Map ID: | 184 |
| Neighborhood CD: | 2 |
Owner |
| Name: | MARUMOTO, VICTOR KATSUMI | Owner ID: | 282178 |
| Mailing Address: | ERIKA JOYCE MARUMOTO #2004 - 8 LAGUNA COURT NEW WESTMINSTER BC V3M 6m6 | % Ownership: | 100.0000000000% |
| | | Exemptions: | |
Taxes and Assessment Details
Values
| (+) Improvement Homesite Value: | + | $0 | |
| (+) Improvement Non-Homesite Value: | + | $564,927 | |
| (+) Land Homesite Value: | + | $0 | |
| (+) Land Non-Homesite Value: | + | $320,000 | |
| (+) Curr Use (HS): | + | $0 | $0 |
| (+) Curr Use (NHS): | + | $0 | $0 |
| | | -------------------------- | |
| (=) Market Value: | = | $884,927 | |
| (–) Productivity Loss: | – | $0 | |
| | | -------------------------- | |
| (=) Subtotal: | = | $884,927 | |
| (+) Senior Appraised Value: | + | $0 | |
| (+) Non-Senior Appraised Value: | + | $884,927 | |
| | | -------------------------- | |
| (=) Total Appraised Value: | = | $884,927 | |
| (–) Senior Exemption Loss: | – | $0 | |
| (–) Exemption Loss: | – | $0 | |
| | | -------------------------- | |
| (=) Taxable Value: | = | $884,927 | |
Taxing Jurisdiction
| Owner: | MARUMOTO, VICTOR KATSUMI | | |
| % Ownership: | 100.0000000000% | | |
| Total Value: | $884,927 | | |
| Tax Area: | 310 - APPRAISER-Cpvl Schl Dist, outside Cpvl, improved & 1 acre or less |
| CF | Conservation Futures | 0.0316035091 | $884,927 | $884,927 | $27.97 | | |
| CEM2 | Cemetery #2 | 0.0095056933 | $884,927 | $884,927 | $8.41 | | |
| FIRE5 | Fire & Rescue Dist #5 C Whidbey GEN | 1.2008080668 | $884,927 | $884,927 | $1,062.63 | | |
| FIRE5BOND | Fire & Rescue Dist #5 C Whidbey BOND | 0.1400090713 | $884,927 | $884,927 | $123.90 | | |
| HOBOND | Hospital BOND | 0.1910887512 | $884,927 | $884,927 | $169.10 | | |
| HOGEN | Hospital GEN | 0.3902502903 | $884,927 | $884,927 | $345.34 | | |
| CE | County Current Expense | 0.3708482477 | $884,927 | $884,927 | $328.17 | | |
| CR | County Roads | 0.4584763726 | $884,927 | $884,927 | $405.72 | | |
| ISLANDEMS | Hospital GEN (EMS) | 0.5000000000 | $884,927 | $884,927 | $442.46 | | |
| LIB | Library Sno-Isle GEN | 0.3153421757 | $884,927 | $884,927 | $279.05 | | |
| LIBCAP | Library Sno-Isle BOND (Cap Fac Imp Area) | 0.0543427938 | $884,927 | $884,927 | $48.09 | | |
| POCOUP | Port of Coupeville GEN | 0.1093371703 | $884,927 | $884,927 | $96.76 | | |
| POCOUPIDD | Port of Coupeville IDD | 0.3409740022 | $884,927 | $884,927 | $301.74 | | |
| COUPSDTECH | School 204 CP (TECH) | 0.7545480007 | $884,927 | $884,927 | $667.72 | | |
| SCH204MO | School 204 Enrichment | 0.6716186034 | $884,927 | $884,927 | $594.33 | | |
| ST | State School | 1.3035497053 | $884,927 | $884,927 | $1,153.55 | | |
| ST2 | State School Part 2 | 0.8169543533 | $884,927 | $884,927 | $722.94 | | |
| | Total Tax Rate: | 7.6592568070 | | | | | |
| | | | | Taxes w/Current Exemptions: | $6,777.88 | | |
| | | | | Taxes w/o Exemptions: | $6,777.88 | | |
Improvement / Building
| Improvement #1: | RESIDENTIAL | State Code: | Y | 2789.0 sqft | Value: | $564,927 |
| Bathrooms: | 2 | Bedrooms: | 3 | | Ceiling: | DRYWALL PAINTED | Cooling: | HEAT PUMP/CONV/V | | Exterior Wall/Cover: | CEMENT FIBER | Floor Covering: | HARDWOOD/CARP 60-40 | | Floor Structure: | WOOD W/SUBFLOOR | Foundation: | CONCRETE | | Interior Finish: | DRYWALL PAINT | Plumbing Fixture Cnt: | 13 | | Roof Slope: | 3" IN 12" | Roof Structure/Cover: | CJ ALUMINIUM HEAVY |
|
| | Type | Description | Class CD | Sub Class CD | Year Built | Area |
| | BAS | BASE/MAIN FLOOR | 4 | 0 | 2019 | 1655.0 |
| | LOF | LOFT | 4 | 0 | 2019 | 468.0 |
| | BIG | BUILT IN GARAGE | 4 | 0 | 2019 | 689.0 |
| | DWN | DOWNSTAIRS LIVING AREA | 4 | 0 | 2019 | 666.0 |
| | OWP | OPEN WOOD PORCH W/STEPS | 4 | 0 | 2019 | 70.0 |
| | OCP | OPEN CARPORT | 4 | 0 | 2019 | 468.0 |
| | OWC | OPEN WOOD PORCH W/STEPS/ROOF/C | 4 | 0 | 2019 | 104.0 |
| | OWP | OPEN WOOD PORCH W/STEPS | 4 | 0 | 2019 | 392.0 |
Sketch
Property Image
Land
| 1 | 15 | SQ (12001-21780) | 0.3200 | 13939.20 | 0.00 | 0.00 | 1.00 | $320,000 | $0 |
Roll Value History
| 2026 | N/A | N/A | N/A | N/A | N/A |
| 2025 | $564,927 | $320,000 | $0 | $884,927 | $884,927 |
| 2024 | $569,445 | $300,000 | $0 | $869,445 | $869,445 |
| 2023 | $573,964 | $300,000 | $0 | $873,964 | $873,964 |
| 2022 | $525,181 | $220,000 | $0 | $745,181 | $745,181 |
| 2021 | $359,819 | $180,000 | $0 | $539,819 | $539,819 |
| 2020 | $333,045 | $160,000 | $0 | $493,045 | $493,045 |
| 2019 | $54,561 | $115,000 | $0 | $169,561 | $169,561 |
| 2018 | $0 | $115,000 | $0 | $115,000 | $115,000 |
| 2017 | $0 | $75,000 | $0 | $75,000 | $75,000 |
| 2016 | $0 | $75,000 | $0 | $75,000 | $75,000 |
| 2015 | $0 | $75,000 | $0 | $75,000 | $75,000 |
| 2014 | $0 | $75,000 | $0 | $75,000 | $75,000 |
| 2013 | $0 | $75,000 | $0 | $75,000 | $75,000 |
| 2012 | $0 | $81,000 | $0 | $81,000 | $81,000 |
| 2011 | $0 | $81,000 | $0 | $81,000 | $81,000 |
| 2010 | $0 | $81,000 | $0 | $81,000 | $81,000 |
| 2009 | $0 | $120,000 | $0 | $120,000 | $120,000 |
| 2008 | $0 | $120,000 | $0 | $120,000 | $120,000 |
| 2007 | $0 | $120,000 | $0 | $120,000 | $120,000 |
Deed and Sales History
| 1 | 09/21/2017 | WD | Warranty Deed | JOHNSON TRUSTEE, WILLIAM D | MARUMOTO, VICTOR KATSUMI | | | $115,000.00 | 31283 | 4431037 |
| 2 | 07/01/2011 | WD | Warranty Deed | LEABURN, KEITH E | JOHNSON TRUSTEE, WILLIAM D | | | $84,000.00 | 4909 | 4297815 |
| 3 | 01/01/1992 | WD | Warranty Deed | FLORIN, HANS W | LEABURN, KEITH E | | | $20,000.00 | 20920 | 92004708 |
| 4 | 01/01/1900 | OTHER | Other - Misc. Documents | Unknown | FLORIN, HANS W | | | $0.00 | 0 | 0 |
Payout Agreement
| No payout information available.. |