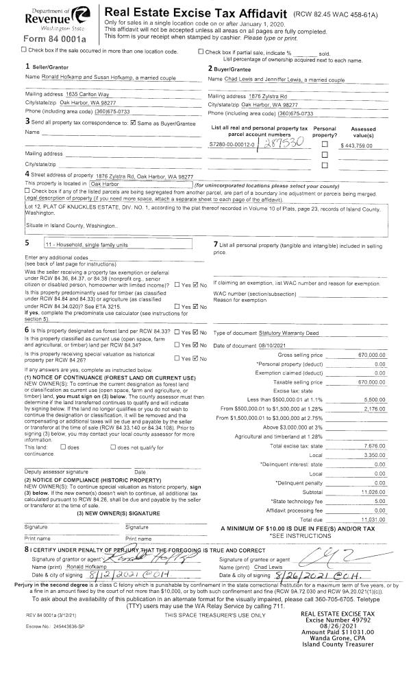
Property
Account |
| Property ID: | 308312 | Abbreviated Legal Description: | LONG PT MANOR LOT 18 BLK 3 |
| Geographic ID: | S7400-00-03018-0 | Agent Code: | |
| Type: | Real | | |
| Tax Area: | 310 - APPRAISER-Cpvl Schl Dist, outside Cpvl, improved & 1 acre or less | Land Use Code | 11 |
| Open Space: | N | DFL | N |
| Historic Property: | N | Remodel Property: | N |
| Multi-Family Redevelopment: | N | | |
| Township: | | Section: | |
| Range: | |
Location |
| Address: | 333 MARINE DR COUPEVILLE, WA 98239 | Mapsco: | |
| Neighborhood: | Cycle 2 | Map ID: | 184 |
| Neighborhood CD: | 2 |
Owner |
| Name: | MORTON, CHRISTOPHER | Owner ID: | 298327 |
| Mailing Address: | ALLIE MORTON 2250 SQUAK MOUNTAIN LOOP SW ISSAQUAH, WA 98027 | % Ownership: | 100.0000000000% |
| | | Exemptions: | |
Taxes and Assessment Details
Values
| (+) Improvement Homesite Value: | + | $0 | |
| (+) Improvement Non-Homesite Value: | + | $456,673 | |
| (+) Land Homesite Value: | + | $0 | |
| (+) Land Non-Homesite Value: | + | $320,000 | |
| (+) Curr Use (HS): | + | $0 | $0 |
| (+) Curr Use (NHS): | + | $0 | $0 |
| | | -------------------------- | |
| (=) Market Value: | = | $776,673 | |
| (–) Productivity Loss: | – | $0 | |
| | | -------------------------- | |
| (=) Subtotal: | = | $776,673 | |
| (+) Senior Appraised Value: | + | $0 | |
| (+) Non-Senior Appraised Value: | + | $776,673 | |
| | | -------------------------- | |
| (=) Total Appraised Value: | = | $776,673 | |
| (–) Senior Exemption Loss: | – | $0 | |
| (–) Exemption Loss: | – | $0 | |
| | | -------------------------- | |
| (=) Taxable Value: | = | $776,673 | |
Taxing Jurisdiction
| Owner: | MORTON, CHRISTOPHER | | |
| % Ownership: | 100.0000000000% | | |
| Total Value: | $776,673 | | |
| Tax Area: | 310 - APPRAISER-Cpvl Schl Dist, outside Cpvl, improved & 1 acre or less |
| CF | Conservation Futures | 0.0316035091 | $776,673 | $776,673 | $24.55 | | |
| CEM2 | Cemetery #2 | 0.0095056933 | $776,673 | $776,673 | $7.38 | | |
| FIRE5 | Fire & Rescue Dist #5 C Whidbey GEN | 1.2008080668 | $776,673 | $776,673 | $932.64 | | |
| FIRE5BOND | Fire & Rescue Dist #5 C Whidbey BOND | 0.1400090713 | $776,673 | $776,673 | $108.74 | | |
| HOBOND | Hospital BOND | 0.1910887512 | $776,673 | $776,673 | $148.41 | | |
| HOGEN | Hospital GEN | 0.3902502903 | $776,673 | $776,673 | $303.10 | | |
| CE | County Current Expense | 0.3708482477 | $776,673 | $776,673 | $288.03 | | |
| CR | County Roads | 0.4584763726 | $776,673 | $776,673 | $356.09 | | |
| ISLANDEMS | Hospital GEN (EMS) | 0.5000000000 | $776,673 | $776,673 | $388.34 | | |
| LIB | Library Sno-Isle GEN | 0.3153421757 | $776,673 | $776,673 | $244.92 | | |
| LIBCAP | Library Sno-Isle BOND (Cap Fac Imp Area) | 0.0543427938 | $776,673 | $776,673 | $42.21 | | |
| POCOUP | Port of Coupeville GEN | 0.1093371703 | $776,673 | $776,673 | $84.92 | | |
| POCOUPIDD | Port of Coupeville IDD | 0.3409740022 | $776,673 | $776,673 | $264.83 | | |
| COUPSDTECH | School 204 CP (TECH) | 0.7545480007 | $776,673 | $776,673 | $586.04 | | |
| SCH204MO | School 204 Enrichment | 0.6716186034 | $776,673 | $776,673 | $521.63 | | |
| ST | State School | 1.3035497053 | $776,673 | $776,673 | $1,012.43 | | |
| ST2 | State School Part 2 | 0.8169543533 | $776,673 | $776,673 | $634.51 | | |
| | Total Tax Rate: | 7.6592568070 | | | | | |
| | | | | Taxes w/Current Exemptions: | $5,948.77 | | |
| | | | | Taxes w/o Exemptions: | $5,948.77 | | |
Improvement / Building
| Improvement #1: | RESIDENTIAL | State Code: | Y | 2112.2 sqft | Value: | $456,673 |
| Bathrooms: | 2.5 | Bedrooms: | 3 | | Ceiling: | DRYWALL PAINTED | Exterior Wall/Cover: | CEMENT FIBER | | Floor Covering: | CARPET/VINYL 60-40 | Floor Structure: | WOOD W/SUBFLOOR | | Foundation: | CONCRETE | Heating: | FHA GAS | | Interior Finish: | DRYWALL PAINT | Plumbing Fixture Cnt: | 14 | | Roof Slope: | 5" IN 12" | Roof Structure/Cover: | CJ ASPHALT |
|
| | Type | Description | Class CD | Sub Class CD | Year Built | Area |
| | BAS | BASE/MAIN FLOOR | 4 | 0 | 2005 | 1664.2 |
| | DWN | DOWNSTAIRS LIVING AREA | 4 | 0 | 2005 | 448.0 |
| | OP1 | OPEN PORCH SLAB | 4 | 0 | 2005 | 575.0 |
| | BGR | BASEMENT GARAGE | 4 | 0 | 2005 | 588.0 |
| | OWP | OPEN WOOD PORCH W/STEPS | 4 | 0 | 2005 | 316.0 |
| | OWC | OPEN WOOD PORCH W/STEPS/ROOF/C | 4 | 0 | 2005 | 30.0 |
| | UTY | STORAGE/UTILITY | 4 | 0 | 2005 | 128.0 |
Sketch
| No sketches available for this property. |
Property Image
Land
| 1 | 15 | SQ (12001-21780) | 0.3800 | 16552.80 | 0.00 | 0.00 | 1.00 | $320,000 | $0 |
Roll Value History
| 2026 | N/A | N/A | N/A | N/A | N/A |
| 2025 | $456,673 | $320,000 | $0 | $776,673 | $776,673 |
| 2024 | $451,557 | $300,000 | $0 | $751,557 | $751,557 |
| 2023 | $456,673 | $300,000 | $0 | $756,673 | $756,673 |
| 2022 | $417,001 | $220,000 | $0 | $637,001 | $637,001 |
| 2021 | $304,164 | $180,000 | $0 | $484,164 | $484,164 |
| 2020 | $294,851 | $160,000 | $0 | $454,851 | $454,851 |
| 2019 | $224,606 | $200,000 | $0 | $424,606 | $424,606 |
| 2018 | $224,570 | $180,000 | $0 | $404,570 | $404,570 |
| 2017 | $225,827 | $155,000 | $0 | $380,827 | $380,827 |
| 2016 | $228,335 | $135,000 | $0 | $363,335 | $363,335 |
| 2015 | $223,456 | $100,000 | $0 | $323,456 | $323,456 |
| 2014 | $225,968 | $95,000 | $0 | $320,968 | $320,968 |
| 2013 | $228,478 | $95,000 | $0 | $323,478 | $323,478 |
| 2012 | $230,988 | $106,250 | $0 | $337,238 | $337,238 |
| 2011 | $233,500 | $125,000 | $0 | $358,500 | $358,500 |
| 2010 | $240,366 | $125,000 | $0 | $365,366 | $365,366 |
| 2009 | $247,788 | $125,000 | $0 | $372,788 | $372,788 |
| 2008 | $250,375 | $145,000 | $0 | $395,375 | $395,375 |
| 2007 | $252,947 | $145,000 | $0 | $397,947 | $397,947 |
Deed and Sales History
| 1 | 02/26/2021 | WD | Warranty Deed | NORTH, DAVID R | MORTON, CHRISTOPHER | | | $675,000.00 | 47172 | 4512449 |
| 2 | 03/02/2016 | WD | Warranty Deed | MANKER, GARY D | NORTH, DAVID R | | | $375,000.00 | 23362 | 4395127 |
| 3 | 07/23/2004 | WD | Warranty Deed | LAKE, ALBERT L | MANKER, GARY D | | | $71,250.00 | 43507 | 4108590 |
| 4 | 11/01/1993 | WD | Warranty Deed | BALTZLEY, PHILIP & | LAKE, ALBERT L | | | $44,950.00 | 34501 | 93023435 |
| 5 | 11/01/1990 | WD | Warranty Deed | SYREEN, JAMES P | BALTZLEY, PHILIP & | | | $42,000.00 | 6277 | 90021636 |
| 6 | 05/01/1990 | WD | Warranty Deed | DOLQUIST, JOHN D | SYREEN, JAMES P | | | $14,600.00 | 2907 | 90009432 |
| 7 | 05/01/1985 | WD | Warranty Deed | HANLEY, MARY E | DOLQUIST, JOHN D | | | $17,500.00 | 51267 | 85005184 |
| 8 | 04/01/1983 | QCD | Quit Claim Deed | HANLEY, ROBERT T | HANLEY, MARY E | | | $0.00 | 30940 | 408267 |
| 9 | 01/01/1900 | OTHER | Other - Misc. Documents | Unknown | HANLEY, ROBERT T | | | $0.00 | 0 | 0 |
Payout Agreement
| No payout information available.. |