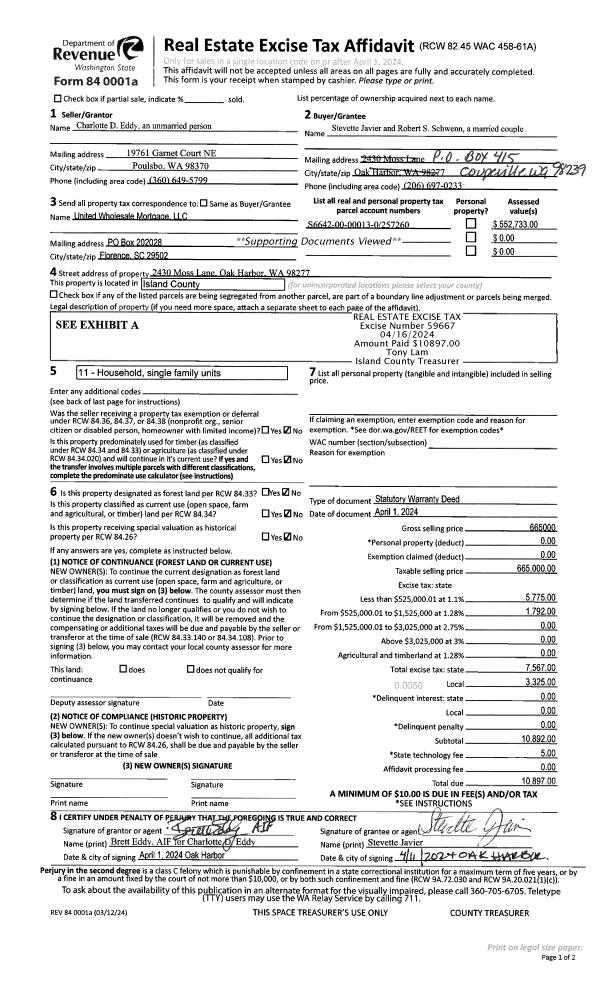
Property
Account |
| Property ID: | 308571 | Abbreviated Legal Description: | LONGWOOD LOT 1B FMLY TL 75 29-29-3E |
| Geographic ID: | S7405-00-00001-2 | Agent Code: | |
| Type: | Real | | |
| Tax Area: | 712 - APPRAISER-S Whid Schl Dist, outside Langley, improved, greater than 1 acre | Land Use Code | 11 |
| Open Space: | N | DFL | N |
| Historic Property: | N | Remodel Property: | N |
| Multi-Family Redevelopment: | N | | |
| Township: | | Section: | |
| Range: | |
Location |
| Address: | 6421 LONGWOOD LN CLINTON, WA 98236 | Mapsco: | |
| Neighborhood: | Cycle 4 | Map ID: | 831 |
| Neighborhood CD: | 4 |
Owner |
| Name: | LHUNDUP JTWROS, SAMPA | Owner ID: | 310717 |
| Mailing Address: | GADON THILLY JTWROS 6421 LONGWOOD LN CLINTON, WA 98236 | % Ownership: | 100.0000000000% |
| | | Exemptions: | |
Taxes and Assessment Details
Values
| (+) Improvement Homesite Value: | + | $0 | |
| (+) Improvement Non-Homesite Value: | + | $224,622 | |
| (+) Land Homesite Value: | + | $0 | |
| (+) Land Non-Homesite Value: | + | $290,000 | |
| (+) Curr Use (HS): | + | $0 | $0 |
| (+) Curr Use (NHS): | + | $0 | $0 |
| | | -------------------------- | |
| (=) Market Value: | = | $514,622 | |
| (–) Productivity Loss: | – | $0 | |
| | | -------------------------- | |
| (=) Subtotal: | = | $514,622 | |
| (+) Senior Appraised Value: | + | $0 | |
| (+) Non-Senior Appraised Value: | + | $514,622 | |
| | | -------------------------- | |
| (=) Total Appraised Value: | = | $514,622 | |
| (–) Senior Exemption Loss: | – | $0 | |
| (–) Exemption Loss: | – | $0 | |
| | | -------------------------- | |
| (=) Taxable Value: | = | $514,622 | |
Taxing Jurisdiction
| Owner: | LHUNDUP JTWROS, SAMPA | | |
| % Ownership: | 100.0000000000% | | |
| Total Value: | $514,622 | | |
| Tax Area: | 712 - APPRAISER-S Whid Schl Dist, outside Langley, improved, greater than 1 acre |
| CF | Conservation Futures | 0.0316035091 | $514,622 | $514,622 | $16.26 | | |
| FIRE3 | Fire & Rescue Dist #3 S Whidbey GEN | 1.2004855531 | $514,622 | $514,622 | $617.80 | | |
| HOBOND | Hospital BOND | 0.1910887512 | $514,622 | $514,622 | $98.34 | | |
| HOGEN | Hospital GEN | 0.3902502903 | $514,622 | $514,622 | $200.83 | | |
| CE | County Current Expense | 0.3708482477 | $514,622 | $514,622 | $190.85 | | |
| CR | County Roads | 0.4584763726 | $514,622 | $514,622 | $235.94 | | |
| ISLANDEMS | Hospital GEN (EMS) | 0.5000000000 | $514,622 | $514,622 | $257.31 | | |
| LIB | Library Sno-Isle GEN | 0.3153421757 | $514,622 | $514,622 | $162.28 | | |
| PORTWHID | Port of S Whidbey GEN | 0.1094540357 | $514,622 | $514,622 | $56.33 | | |
| SCH206BOND | School 206 BOND | 0.3161759235 | $514,622 | $514,622 | $162.71 | | |
| SCH206MO | School 206 Enrichment | 0.4547169547 | $514,622 | $514,622 | $234.01 | | |
| ST | State School | 1.3035497053 | $514,622 | $514,622 | $670.84 | | |
| ST2 | State School Part 2 | 0.8169543533 | $514,622 | $514,622 | $420.42 | | |
| SWHIDPRBD | P & R S Whidbey BOND | 0.0152817568 | $514,622 | $514,622 | $7.86 | | |
| SWHIDPRBD2 | P & R S Whidbey BOND2 | 0.0138911264 | $514,622 | $514,622 | $7.15 | | |
| SWHIDPRMT | P & R S Whidbey GEN | 0.2053334452 | $514,622 | $514,622 | $105.67 | | |
| | Total Tax Rate: | 6.6934522006 | | | | | |
| | | | | Taxes w/Current Exemptions: | $3,444.60 | | |
| | | | | Taxes w/o Exemptions: | $3,444.60 | | |
Improvement / Building
| Improvement #1: | RESIDENTIAL | State Code: | Y | 1578.0 sqft | Value: | $224,622 |
| Bathrooms: | 2 | Bedrooms: | 2 | | Ceiling: | DRYWALL PAINTED | Exterior Wall/Cover: | WOOD SIDING | | Floor Covering: | CARPET/VINYL 80-20 | Floor Structure: | WOOD W/SUBFLOOR | | Foundation: | CONCRETE | Heating: | FHA ELECTRIC | | Interior Finish: | DRYWALL PAINT | Plumbing Fixture Cnt: | 9 | | Roof Slope: | 4" IN 12" | Roof Structure/Cover: | CJ ALUMINIUM HEAVY |
|
| | Type | Description | Class CD | Sub Class CD | Year Built | Area |
| | BAS | BASE/MAIN FLOOR | 3 | 0 | 1977 | 816.0 |
| | DGR | DETACHED GARAGE | 3 | 0 | 1977 | 600.0 |
| | OWP | OPEN WOOD PORCH W/STEPS | 3 | 0 | 1977 | 128.0 |
| | DWN | DOWNSTAIRS LIVING AREA | 3 | 0 | 1977 | 762.0 |
Sketch
Property Image
Land
| 1 | 17 | AC (01.01-02.00) | 0.0000 | 0.00 | 0.00 | 0.00 | 1.00 | $290,000 | $0 |
Roll Value History
| 2026 | N/A | N/A | N/A | N/A | N/A |
| 2025 | $224,622 | $290,000 | $0 | $514,622 | $514,622 |
| 2024 | $227,688 | $280,000 | $0 | $507,688 | $507,688 |
| 2023 | $230,754 | $260,000 | $0 | $490,754 | $490,754 |
| 2022 | $211,731 | $250,000 | $0 | $461,731 | $461,731 |
| 2021 | $186,518 | $175,000 | $0 | $361,518 | $361,518 |
| 2020 | $174,927 | $165,000 | $0 | $339,927 | $339,927 |
| 2019 | $127,342 | $200,000 | $0 | $327,342 | $327,342 |
| 2018 | $127,781 | $170,000 | $0 | $297,781 | $297,781 |
| 2017 | $128,662 | $150,000 | $0 | $278,662 | $278,662 |
| 2016 | $130,424 | $135,000 | $0 | $265,424 | $265,424 |
| 2015 | $132,189 | $135,000 | $0 | $267,189 | $267,189 |
| 2014 | $117,238 | $98,345 | $0 | $215,583 | $215,583 |
| 2013 | $119,013 | $98,345 | $0 | $217,358 | $217,358 |
| 2012 | $120,789 | $98,345 | $0 | $219,134 | $219,134 |
| 2011 | $122,565 | $115,700 | $0 | $238,265 | $238,265 |
| 2010 | $130,730 | $115,700 | $0 | $246,430 | $246,430 |
| 2009 | $136,500 | $137,950 | $0 | $274,450 | $274,450 |
| 2008 | $137,678 | $151,300 | $0 | $288,978 | $288,978 |
| 2007 | $139,479 | $120,000 | $0 | $259,479 | $259,479 |
Deed and Sales History
| 1 | 11/06/2023 | WD | Warranty Deed | LHUNDUP, SAMPA | LHUNDUP JTWROS, SAMPA | | | $0.00 | 58543 | 4566811 |
| 2 | 10/30/2023 | WD | Warranty Deed | SHRUT, JOEL | LHUNDUP, SAMPA | | | $51,649.00 | 58484 | 4566644 |
| 3 | 11/02/2023 | WD | Warranty Deed | TSO, SONAM | LHUNDUP, SAMPA | | | $17,212.00 | 58483 | 4566643 |
| 4 | 12/13/2020 | QCD | Quit Claim Deed | TSO, SONAM | TSO, SONAM | | | $0.00 | 46138 | 4505358 |
| 5 | 12/13/2020 | QCD | Quit Claim Deed | TSO, SONAM | TSO, SONAM | | | $0.00 | 46137 | 4505357 |
| 6 | 11/30/2020 | WD | Warranty Deed | TURNINGPOINT, LLC | TSO, SONAM | | | $381,750.00 | 46136 | 4505356 |
| 7 | 08/04/2020 | WD | Warranty Deed | KIZER, RACHEL W | TURNINGPOINT, LLC | | | $375,000.00 | 44138 | 4493288 |
| 8 | 12/01/1990 | DECREE | Divorce Decree/Legal Separation | KIZER, PETER J | KIZER, RACHEL W | | | $0.00 | 10011 | 91000102 |
| 9 | 02/01/1987 | WD | Warranty Deed | LEES, DENNIS C | KIZER, PETER J | | | $59,950.00 | 70474 | 87002893 |
| 10 | 03/01/1980 | TRUSTEED | Trustee's Deed | KRAMER, ROBERT T | LEES, DENNIS C | | | $64,800.00 | 1660 | 368814 |
| 11 | 05/01/1979 | OTHER | Other - Misc. Documents | Unknown | KRAMER, ROBERT T | | | $59,000.00 | 92517 | 352953 |
Payout Agreement
| No payout information available.. |