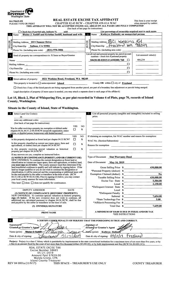
Property
Account |
| Property ID: | 308713 | Abbreviated Legal Description: | LONGWOOD LOT 9 FMLY TL 61 29-29-3E |
| Geographic ID: | S7405-00-00009-0 | Agent Code: | |
| Type: | Real | | |
| Tax Area: | 712 - APPRAISER-S Whid Schl Dist, outside Langley, improved, greater than 1 acre | Land Use Code | 11 |
| Open Space: | N | DFL | N |
| Historic Property: | N | Remodel Property: | N |
| Multi-Family Redevelopment: | N | | |
| Township: | | Section: | |
| Range: | |
Location |
| Address: | 6596 LONGWOOD LN CLINTON, WA 98236 | Mapsco: | |
| Neighborhood: | Cycle 4 | Map ID: | 831 |
| Neighborhood CD: | 4 |
Owner |
| Name: | MOORE, STEPHEN L | Owner ID: | 290354 |
| Mailing Address: | 6596 LONGWOOD LN CLINTON, WA 98236 | % Ownership: | 100.0000000000% |
| | | Exemptions: | |
Taxes and Assessment Details
Values
| (+) Improvement Homesite Value: | + | $0 | |
| (+) Improvement Non-Homesite Value: | + | $212,639 | |
| (+) Land Homesite Value: | + | $0 | |
| (+) Land Non-Homesite Value: | + | $370,000 | |
| (+) Curr Use (HS): | + | $0 | $0 |
| (+) Curr Use (NHS): | + | $0 | $0 |
| | | -------------------------- | |
| (=) Market Value: | = | $582,639 | |
| (–) Productivity Loss: | – | $0 | |
| | | -------------------------- | |
| (=) Subtotal: | = | $582,639 | |
| (+) Senior Appraised Value: | + | $0 | |
| (+) Non-Senior Appraised Value: | + | $582,639 | |
| | | -------------------------- | |
| (=) Total Appraised Value: | = | $582,639 | |
| (–) Senior Exemption Loss: | – | $0 | |
| (–) Exemption Loss: | – | $0 | |
| | | -------------------------- | |
| (=) Taxable Value: | = | $582,639 | |
Taxing Jurisdiction
| Owner: | MOORE, STEPHEN L | | |
| % Ownership: | 100.0000000000% | | |
| Total Value: | $582,639 | | |
| Tax Area: | 712 - APPRAISER-S Whid Schl Dist, outside Langley, improved, greater than 1 acre |
| CF | Conservation Futures | 0.0316035091 | $582,639 | $582,639 | $18.41 | | |
| FIRE3 | Fire & Rescue Dist #3 S Whidbey GEN | 1.2004855531 | $582,639 | $582,639 | $699.45 | | |
| HOBOND | Hospital BOND | 0.1910887512 | $582,639 | $582,639 | $111.34 | | |
| HOGEN | Hospital GEN | 0.3902502903 | $582,639 | $582,639 | $227.38 | | |
| CE | County Current Expense | 0.3708482477 | $582,639 | $582,639 | $216.07 | | |
| CR | County Roads | 0.4584763726 | $582,639 | $582,639 | $267.13 | | |
| ISLANDEMS | Hospital GEN (EMS) | 0.5000000000 | $582,639 | $582,639 | $291.32 | | |
| LIB | Library Sno-Isle GEN | 0.3153421757 | $582,639 | $582,639 | $183.73 | | |
| PORTWHID | Port of S Whidbey GEN | 0.1094540357 | $582,639 | $582,639 | $63.77 | | |
| SCH206BOND | School 206 BOND | 0.3161759235 | $582,639 | $582,639 | $184.22 | | |
| SCH206MO | School 206 Enrichment | 0.4547169547 | $582,639 | $582,639 | $264.94 | | |
| ST | State School | 1.3035497053 | $582,639 | $582,639 | $759.50 | | |
| ST2 | State School Part 2 | 0.8169543533 | $582,639 | $582,639 | $475.99 | | |
| SWHIDPRBD | P & R S Whidbey BOND | 0.0152817568 | $582,639 | $582,639 | $8.90 | | |
| SWHIDPRBD2 | P & R S Whidbey BOND2 | 0.0138911264 | $582,639 | $582,639 | $8.09 | | |
| SWHIDPRMT | P & R S Whidbey GEN | 0.2053334452 | $582,639 | $582,639 | $119.64 | | |
| | Total Tax Rate: | 6.6934522006 | | | | | |
| | | | | Taxes w/Current Exemptions: | $3,899.88 | | |
| | | | | Taxes w/o Exemptions: | $3,899.88 | | |
Improvement / Building
| Improvement #1: | RESIDENTIAL | State Code: | Y | 859.2 sqft | Value: | $212,639 |
| Bathrooms: | 1 | Bedrooms: | 1 | | Ceiling: | DRYWALL PAINTED | Cooling: | HEAT PUMP/CONV/V | | Exterior Wall/Cover: | PLY/HARDBOARD T-111 | Floor Covering: | VINYL TILE/HARWD 20-80 | | Floor Structure: | WOOD W/SUBFLOOR | Foundation: | CONCRETE | | Interior Finish: | DRYWALL PAINT | Plumbing Fixture Cnt: | 8 | | Roof Slope: | 5" IN 12" | Roof Structure/Cover: | CJ ASPHALT |
|
| | Type | Description | Class CD | Sub Class CD | Year Built | Area |
| | BAS | BASE/MAIN FLOOR | 3 | 0 | 2021 | 859.2 |
| | OWR | OPEN WOOD PORCH W/STEPS/ROOF | 3 | 0 | 2021 | 132.8 |
| | OWR | OPEN WOOD PORCH W/STEPS/ROOF | 3 | 0 | 2021 | 256.0 |
Sketch
Property Image
Land
| 1 | 32 | AC (03.01-09.99) | 5.0200 | 0.00 | 0.00 | 0.00 | 1.00 | $370,000 | $0 |
Roll Value History
| 2026 | N/A | N/A | N/A | N/A | N/A |
| 2025 | $212,639 | $370,000 | $0 | $582,639 | $582,639 |
| 2024 | $192,894 | $230,000 | $0 | $422,894 | $422,894 |
| 2023 | $194,919 | $200,000 | $0 | $394,919 | $394,919 |
| 2022 | $139,775 | $170,000 | $0 | $309,775 | $309,775 |
| 2021 | $17,959 | $150,000 | $0 | $167,959 | $167,959 |
| 2020 | $0 | $135,000 | $0 | $135,000 | $135,000 |
| 2019 | $0 | $135,000 | $0 | $135,000 | $135,000 |
| 2018 | $0 | $130,000 | $0 | $130,000 | $130,000 |
| 2017 | $0 | $130,000 | $0 | $130,000 | $130,000 |
| 2016 | $0 | $120,000 | $0 | $120,000 | $120,000 |
| 2015 | $0 | $100,000 | $0 | $100,000 | $100,000 |
| 2014 | $0 | $100,000 | $0 | $100,000 | $100,000 |
| 2013 | $0 | $100,000 | $0 | $100,000 | $100,000 |
| 2012 | $0 | $135,540 | $0 | $135,540 | $135,540 |
| 2011 | $0 | $135,540 | $0 | $135,540 | $135,540 |
| 2010 | $0 | $135,540 | $0 | $135,540 | $135,540 |
| 2009 | $0 | $170,680 | $0 | $170,680 | $170,680 |
| 2008 | $0 | $170,680 | $0 | $170,680 | $170,680 |
| 2007 | $0 | $149,094 | $0 | $149,094 | $149,094 |
Deed and Sales History
| 1 | 06/18/2019 | WD | Warranty Deed | BORGMAN, ELLIOT R | MOORE, STEPHEN L | | | $100,000.00 | 39079 | 4465828 |
| 2 | 07/29/2003 | WD | Warranty Deed | FOLSOM, PATRICIA & | BORGMAN, ELLIOT R | | | $78,500.00 | 33276 | 4068788 |
| 3 | 11/01/1983 | REC | Real Estate Contract | DELADECO, LTD | FOLSOM, PATRICIA & | | | $30,000.00 | 33254 | 417122 |
| 4 | 01/01/1980 | CD | DNU - Correction Deed | MAYNARD, JAMES E | DELADECO, LTD | | | $0.00 | 236 | 364246 |
| 5 | 01/01/1900 | OTHER | Other - Misc. Documents | Unknown | MAYNARD, JAMES E | | | $0.00 | 0 | 0 |
Payout Agreement
| No payout information available.. |