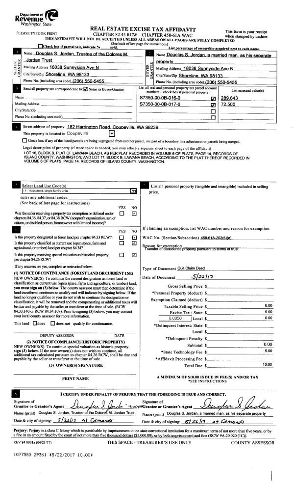
Property
Account |
| Property ID: | 308802 | Abbreviated Legal Description: | LOST LK GRV 1 SUBLOT 2 TR A: BG INTER NELY LN LOT 1 BLK 1 SD PLAT & SLN MONTICELLO DR SELY ALG NELY LN SD LOT 1 TO NWLY LN LAKEWOOD DR NLY ALG SD NWLY LN 65.63' TPB CONT ALG SD NWLY LN 65.50' NWLY TP ON SLN MONTICELLO DR 170 NELY OF INTER NELY LN LOT 1 BL |
| Geographic ID: | S7410-00-0000A-2 | Agent Code: | |
| Type: | Real | | |
| Tax Area: | 510 - APPRAISER-Stan/Cam Schl Dist, improved & 1 acre or less | Land Use Code | 11 |
| Open Space: | N | DFL | N |
| Historic Property: | N | Remodel Property: | N |
| Multi-Family Redevelopment: | N | | |
| Township: | | Section: | |
| Range: | |
Location |
| Address: | 1387 LAKEWOOD DR CAMANO ISLAND, WA 98282 | Mapsco: | |
| Neighborhood: | Cycle 5 | Map ID: | 505 |
| Neighborhood CD: | 5 |
Owner |
| Name: | BECK, JESSICA J | Owner ID: | 284687 |
| Mailing Address: | RHETT RANDALL 1387 LAKEWOOD DR CAMANO ISLAND, WA 98282 | % Ownership: | 100.0000000000% |
| | | Exemptions: | |
Taxes and Assessment Details
Values
| (+) Improvement Homesite Value: | + | $0 | |
| (+) Improvement Non-Homesite Value: | + | $176,119 | |
| (+) Land Homesite Value: | + | $0 | |
| (+) Land Non-Homesite Value: | + | $250,000 | |
| (+) Curr Use (HS): | + | $0 | $0 |
| (+) Curr Use (NHS): | + | $0 | $0 |
| | | -------------------------- | |
| (=) Market Value: | = | $426,119 | |
| (–) Productivity Loss: | – | $0 | |
| | | -------------------------- | |
| (=) Subtotal: | = | $426,119 | |
| (+) Senior Appraised Value: | + | $0 | |
| (+) Non-Senior Appraised Value: | + | $426,119 | |
| | | -------------------------- | |
| (=) Total Appraised Value: | = | $426,119 | |
| (–) Senior Exemption Loss: | – | $0 | |
| (–) Exemption Loss: | – | $0 | |
| | | -------------------------- | |
| (=) Taxable Value: | = | $426,119 | |
Taxing Jurisdiction
| Owner: | BECK, JESSICA J | | |
| % Ownership: | 100.0000000000% | | |
| Total Value: | $426,119 | | |
| Tax Area: | 510 - APPRAISER-Stan/Cam Schl Dist, improved & 1 acre or less |
| CF | Conservation Futures | 0.0316035091 | $426,119 | $426,119 | $13.47 | | |
| EMS1 | Fire & Rescue Dist #1 Camano GEN (EMS) | 0.3677864386 | $426,119 | $426,119 | $156.72 | | |
| FIRE1 | Fire & Rescue Dist #1 Camano GEN | 1.2502910536 | $426,119 | $426,119 | $532.77 | | |
| FIRE1BOND | Fire & Rescue Dist #1 Camano BOND | 0.1570001679 | $426,119 | $426,119 | $66.90 | | |
| CE | County Current Expense | 0.3708482477 | $426,119 | $426,119 | $158.03 | | |
| CR | County Roads | 0.4584763726 | $426,119 | $426,119 | $195.37 | | |
| LCIB | Library Sno-Isle BOND (Camano Island) | 0.0396325772 | $426,119 | $426,119 | $16.89 | | |
| LIB | Library Sno-Isle GEN | 0.3153421757 | $426,119 | $426,119 | $134.37 | | |
| SCH205_401 | School 205-401 Enrichment | 1.2698420524 | $426,119 | $426,119 | $541.10 | | |
| SCH205BOND | School 205-401 BOND | 0.9396497583 | $426,119 | $426,119 | $400.40 | | |
| ST | State School | 1.3035497053 | $426,119 | $426,119 | $555.47 | | |
| ST2 | State School Part 2 | 0.8169543533 | $426,119 | $426,119 | $348.12 | | |
| | Total Tax Rate: | 7.3209764117 | | | | | |
| | | | | Taxes w/Current Exemptions: | $3,119.61 | | |
| | | | | Taxes w/o Exemptions: | $3,119.61 | | |
Improvement / Building
| Improvement #1: | MANUFACTURED HOME | State Code: | Y | 1764.0 sqft | Value: | $176,119 |
| Bathrooms: | 0 | Bedrooms: | 0 | | Ceiling: | PLASTER PAINTED | Cooling: | EVAP NO DUCT | | Exterior Wall/Cover: | VINYL | Floor Covering: | CARPET 100% | | Floor Structure: | SLAB ON GRADE | Foundation: | SLAB | | Heating: | FHA ELECTRIC | Interior Finish: | PLASTER | | Plumbing Fixture Cnt: | 1 | Roof Slope: | FLAT | | Roof Structure/Cover: | CJ ALUMINIUM HEAVY |   |   |
|
| | Type | Description | Class CD | Sub Class CD | Year Built | Area |
| | BAS | BASE/MAIN FLOOR | 5 | 0 | 1996 | 1764.0 |
| | oGAR | GARAGE | 5 | 0 | 1996 | 0.0 |
| | OWP | OPEN WOOD PORCH W/STEPS | 5 | 0 | 1996 | 176.0 |
Sketch
Property Image
Land
| 1 | 15 | SQ (12001-21780) | 0.0000 | 0.00 | 0.00 | 0.00 | 1.00 | $250,000 | $0 |
Roll Value History
| 2026 | N/A | N/A | N/A | N/A | N/A |
| 2025 | $176,119 | $250,000 | $0 | $426,119 | $426,119 |
| 2024 | $180,431 | $240,000 | $0 | $420,431 | $420,431 |
| 2023 | $162,518 | $240,000 | $0 | $402,518 | $402,518 |
| 2022 | $151,923 | $210,000 | $0 | $361,923 | $361,923 |
| 2021 | $125,122 | $170,000 | $0 | $295,122 | $295,122 |
| 2020 | $124,762 | $130,000 | $0 | $254,762 | $254,762 |
| 2019 | $103,583 | $150,000 | $0 | $253,583 | $253,583 |
| 2018 | $105,842 | $125,000 | $0 | $230,842 | $230,842 |
| 2017 | $96,807 | $90,000 | $0 | $186,807 | $186,807 |
| 2016 | $99,004 | $75,000 | $0 | $174,004 | $174,004 |
| 2015 | $104,744 | $52,000 | $0 | $156,744 | $156,744 |
| 2014 | $105,830 | $52,000 | $0 | $157,830 | $93,201 |
| 2013 | $108,002 | $52,000 | $0 | $160,002 | $93,201 |
| 2012 | $110,173 | $52,000 | $0 | $162,173 | $143,386 |
| 2011 | $112,344 | $65,000 | $0 | $177,344 | $143,386 |
| 2010 | $115,970 | $84,000 | $0 | $199,970 | $143,386 |
| 2009 | $120,020 | $90,542 | $0 | $210,562 | $143,385 |
| 2008 | $123,869 | $89,699 | $0 | $213,568 | $143,385 |
| 2007 | $124,934 | $90,470 | $0 | $215,404 | $143,385 |
Deed and Sales History
| 1 | 04/09/2018 | WD | Warranty Deed | LINDER-BETTEN, DORA | BECK, JESSICA J | | | $313,000.00 | 33766 | 4442979 |
| 2 | 02/05/2015 | WD | Warranty Deed | PLETSCH, JAMES E | LINDER-BETTEN, DORA | | | $179,500.00 | 18428 | 4372855 |
| 3 | 07/24/2012 | TRUSTEED | Trustee's Deed | PLETSCH, JAMES E | PLETSCH, JAMES E | | | $0.00 | 8689 | 4322133 |
| 4 | 05/07/2008 | QCD | Quit Claim Deed | PLETSCH, JAMES E | PLETSCH, JAMES E | | | $0.00 | 81249 | 4228909 |
| 5 | 06/17/2003 | TRUSTEED | Trustee's Deed | NATIONAL ASSOCIATION, BANK ONE | PLETSCH, JAMES E | | | $131,000.00 | 32780 | 4064650 |
| 6 | 10/28/2002 | TRUSTEED | Trustee's Deed | SOARES, THERESA | NATIONAL ASSOCIATION, BANK ONE | | | $109,650.00 | 24325 | 4035860 |
| 7 | 05/21/1999 | OTHER | Other - Misc. Documents | SOARES, THERESA | SOARES, THERESA | | | $90,000.00 | 92170 | 0 |
| 8 | 05/21/1999 | WD | Warranty Deed | BESSINGER, SHAUN L | SOARES, THERESA | | | $47,000.00 | 92171 | 99013399 |
| 9 | 11/13/1998 | OTHER | Other - Misc. Documents | BESSINGER, SHAUN L | BESSINGER, SHAUN L | | | $69,998.00 | 84563 | 0 |
| 10 | 11/06/1998 | ESTSEPPROP | Establish Separate Property | BESSINGER, SHAUN L | BESSINGER, SHAUN L | | | $0.00 | 84546 | 98024727 |
| 11 | 11/06/1998 | WD | Warranty Deed | MOORE, BETTY D | BESSINGER, SHAUN L | | | $67,502.00 | 84562 | 98024759 |
| 12 | 12/01/1995 | OTHER | Other - Misc. Documents | MOORE, BETTY D | MOORE, BETTY D | | | $68,421.00 | 11111111 | 0 |
| 13 | 11/01/1995 | WD | Warranty Deed | LOHNES, KATHERINE H | MOORE, BETTY D | | | $17,550.00 | 54038 | 95018528 |
| 14 | 06/01/1967 | EXECUTORD | Executor Deed | LOHNES, KATHERINE H | LOHNES, KATHERINE H | | | $0.00 | 26579 | 0 |
| 15 | 01/01/1900 | OTHER | Other - Misc. Documents | Unknown | LOHNES, KATHERINE H | | | $0.00 | 0 | 0 |
Payout Agreement
| No payout information available.. |