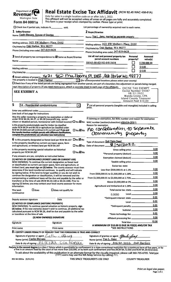
Property
Account |
| Property ID: | 308811 | Abbreviated Legal Description: | LOST LK GRV 1 SUBLOT 3 TR A: BG INTER NLY LN LOT 1 BLK 1 & SELY LN MONTICELLO DR S43*E186.07' TO NWLY LN LAKEWOOD DR NELY ALG SD RD 65.63' NWLY TP ON SELY LN MONTICELLO DR N58*E 85' FR TPB S58*W85' TPB TG |
| Geographic ID: | S7410-00-0000A-3 | Agent Code: | |
| Type: | Real | | |
| Tax Area: | 510 - APPRAISER-Stan/Cam Schl Dist, improved & 1 acre or less | Land Use Code | 11 |
| Open Space: | N | DFL | N |
| Historic Property: | N | Remodel Property: | N |
| Multi-Family Redevelopment: | N | | |
| Township: | | Section: | |
| Range: | |
Location |
| Address: | 1383 LAKEWOOD DR CAMANO ISLAND, WA 98282 | Mapsco: | |
| Neighborhood: | Cycle 5 | Map ID: | 505 |
| Neighborhood CD: | 5 |
Owner |
| Name: | SHAKIQ, MOHAMMED | Owner ID: | 306427 |
| Mailing Address: | MOHAMMED SHAIYAAZ ANGELICA AGUILAR 1383 LAKEWOOD DR CAMANO ISLAND, WA 98282 | % Ownership: | 100.0000000000% |
| | | Exemptions: | |
Taxes and Assessment Details
Values
| (+) Improvement Homesite Value: | + | $0 | |
| (+) Improvement Non-Homesite Value: | + | $123,494 | |
| (+) Land Homesite Value: | + | $0 | |
| (+) Land Non-Homesite Value: | + | $250,000 | |
| (+) Curr Use (HS): | + | $0 | $0 |
| (+) Curr Use (NHS): | + | $0 | $0 |
| | | -------------------------- | |
| (=) Market Value: | = | $373,494 | |
| (–) Productivity Loss: | – | $0 | |
| | | -------------------------- | |
| (=) Subtotal: | = | $373,494 | |
| (+) Senior Appraised Value: | + | $0 | |
| (+) Non-Senior Appraised Value: | + | $373,494 | |
| | | -------------------------- | |
| (=) Total Appraised Value: | = | $373,494 | |
| (–) Senior Exemption Loss: | – | $0 | |
| (–) Exemption Loss: | – | $0 | |
| | | -------------------------- | |
| (=) Taxable Value: | = | $373,494 | |
Taxing Jurisdiction
| Owner: | SHAKIQ, MOHAMMED | | |
| % Ownership: | 100.0000000000% | | |
| Total Value: | $373,494 | | |
| Tax Area: | 510 - APPRAISER-Stan/Cam Schl Dist, improved & 1 acre or less |
| CF | Conservation Futures | 0.0316035091 | $373,494 | $373,494 | $11.80 | | |
| EMS1 | Fire & Rescue Dist #1 Camano GEN (EMS) | 0.3677864386 | $373,494 | $373,494 | $137.37 | | |
| FIRE1 | Fire & Rescue Dist #1 Camano GEN | 1.2502910536 | $373,494 | $373,494 | $466.98 | | |
| FIRE1BOND | Fire & Rescue Dist #1 Camano BOND | 0.1570001679 | $373,494 | $373,494 | $58.64 | | |
| CE | County Current Expense | 0.3708482477 | $373,494 | $373,494 | $138.51 | | |
| CR | County Roads | 0.4584763726 | $373,494 | $373,494 | $171.24 | | |
| LCIB | Library Sno-Isle BOND (Camano Island) | 0.0396325772 | $373,494 | $373,494 | $14.80 | | |
| LIB | Library Sno-Isle GEN | 0.3153421757 | $373,494 | $373,494 | $117.78 | | |
| SCH205_401 | School 205-401 Enrichment | 1.2698420524 | $373,494 | $373,494 | $474.28 | | |
| SCH205BOND | School 205-401 BOND | 0.9396497583 | $373,494 | $373,494 | $350.95 | | |
| ST | State School | 1.3035497053 | $373,494 | $373,494 | $486.87 | | |
| ST2 | State School Part 2 | 0.8169543533 | $373,494 | $373,494 | $305.13 | | |
| | Total Tax Rate: | 7.3209764117 | | | | | |
| | | | | Taxes w/Current Exemptions: | $2,734.35 | | |
| | | | | Taxes w/o Exemptions: | $2,734.35 | | |
Improvement / Building
| Improvement #1: | MANUFACTURED HOME | State Code: | Y | 1782.0 sqft | Value: | $123,494 |
| Bathrooms: | 0 | Bedrooms: | 0 | | Ceiling: | PLASTER PAINTED | Cooling: | EVAP NO DUCT | | Exterior Wall/Cover: | VINYL | Floor Covering: | CARPET 100% | | Floor Structure: | SLAB ON GRADE | Foundation: | SLAB | | Heating: | FHA ELECTRIC | Interior Finish: | PLASTER | | Plumbing Fixture Cnt: | 1 | Roof Slope: | FLAT | | Roof Structure/Cover: | CJ ALUMINIUM HEAVY |   |   |
|
| | Type | Description | Class CD | Sub Class CD | Year Built | Area |
| | OWP | OPEN WOOD PORCH W/STEPS | 4 | 0 | 1992 | 100.0 |
| | BAS | BASE/MAIN FLOOR | 4 | 0 | 1992 | 1782.0 |
| | OWP | OPEN WOOD PORCH W/STEPS | 4 | 0 | 1992 | 168.0 |
| | UTY | STORAGE/UTILITY | 4 | 0 | 1992 | 76.0 |
| | CPD | OPEN CARPORT DIRT FLOOR | 4 | 0 | 1992 | 228.0 |
Sketch
Property Image
Land
| 1 | 15 | SQ (12001-21780) | 0.0000 | 0.00 | 0.00 | 0.00 | 1.00 | $250,000 | $0 |
Roll Value History
| 2026 | N/A | N/A | N/A | N/A | N/A |
| 2025 | $123,494 | $250,000 | $0 | $373,494 | $373,494 |
| 2024 | $127,610 | $240,000 | $0 | $367,610 | $367,610 |
| 2023 | $114,543 | $240,000 | $0 | $354,543 | $354,543 |
| 2022 | $106,958 | $210,000 | $0 | $316,958 | $316,958 |
| 2021 | $78,920 | $170,000 | $0 | $248,920 | $41,704 |
| 2020 | $79,000 | $130,000 | $0 | $209,000 | $41,704 |
| 2019 | $64,120 | $150,000 | $0 | $214,120 | $60,478 |
| 2018 | $66,007 | $125,000 | $0 | $191,007 | $61,031 |
| 2017 | $67,893 | $90,000 | $0 | $157,893 | $61,583 |
| 2016 | $68,835 | $75,000 | $0 | $143,835 | $61,859 |
| 2015 | $70,734 | $52,000 | $0 | $122,734 | $58,698 |
| 2014 | $72,548 | $52,000 | $0 | $124,548 | $59,229 |
| 2013 | $74,361 | $52,000 | $0 | $126,361 | $59,760 |
| 2012 | $76,175 | $52,000 | $0 | $128,175 | $47,226 |
| 2011 | $77,989 | $65,000 | $0 | $142,989 | $47,226 |
| 2010 | $73,105 | $84,000 | $0 | $157,105 | $47,226 |
| 2009 | $77,142 | $90,000 | $0 | $167,142 | $47,226 |
| 2008 | $79,591 | $89,752 | $0 | $169,343 | $47,226 |
| 2007 | $79,784 | $89,969 | $0 | $169,753 | $68,065 |
Deed and Sales History
| 1 | 09/12/2022 | WD | Warranty Deed | FORGET, VERDAYLE | SHAKIQ, MOHAMMED | | | $363,000.00 | 54807 | 4552334 |
| 2 | 03/01/1992 | OTHER | Other - Misc. Documents | FORGET, VERDAYLE | FORGET, VERDAYLE M | | | $54,450.00 | 11111111 | 0 |
| 3 | 08/01/1991 | WD | Warranty Deed | JENKERSON, ROBERT L | FORGET, VERDAYLE | | | $19,700.00 | 13120 | 91013273 |
| 4 | 07/01/1976 | TRUSTEED | Trustee's Deed | JENKERSON, ROBERT L | JENKERSON, ROBERT L | | | $0.00 | 62270 | 0 |
| 5 | 01/01/1900 | OTHER | Other - Misc. Documents | Unknown | JENKERSON, ROBERT L | | | $0.00 | 0 | 0 |
Payout Agreement
| No payout information available.. |