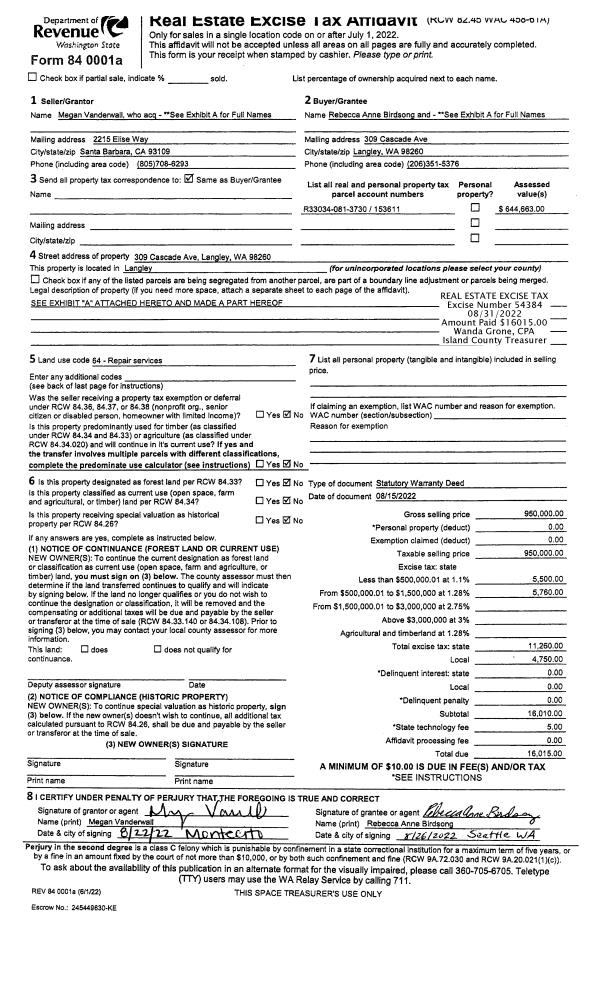
Property
Account |
| Property ID: | 308884 | Abbreviated Legal Description: | LOST LK GRV 1 LOT 4 BLK 1 |
| Geographic ID: | S7410-00-01004-0 | Agent Code: | |
| Type: | Real | | |
| Tax Area: | 510 - APPRAISER-Stan/Cam Schl Dist, improved & 1 acre or less | Land Use Code | 11 |
| Open Space: | N | DFL | N |
| Historic Property: | N | Remodel Property: | N |
| Multi-Family Redevelopment: | N | | |
| Township: | | Section: | |
| Range: | |
Location |
| Address: | 1371 LAKEWOOD DR CAMANO ISLAND, WA 98282 | Mapsco: | |
| Neighborhood: | Cycle 5 | Map ID: | 505 |
| Neighborhood CD: | 5 |
Owner |
| Name: | LEKKALA, DILEEP | Owner ID: | 310310 |
| Mailing Address: | 2804 E LAKE SAMMMAMISH PKWY NE SAMMAMISH, WA 98074 | % Ownership: | 100.0000000000% |
| | | Exemptions: | |
Taxes and Assessment Details
Values
| (+) Improvement Homesite Value: | + | $0 | |
| (+) Improvement Non-Homesite Value: | + | $95,014 | |
| (+) Land Homesite Value: | + | $0 | |
| (+) Land Non-Homesite Value: | + | $250,000 | |
| (+) Curr Use (HS): | + | $0 | $0 |
| (+) Curr Use (NHS): | + | $0 | $0 |
| | | -------------------------- | |
| (=) Market Value: | = | $345,014 | |
| (–) Productivity Loss: | – | $0 | |
| | | -------------------------- | |
| (=) Subtotal: | = | $345,014 | |
| (+) Senior Appraised Value: | + | $0 | |
| (+) Non-Senior Appraised Value: | + | $345,014 | |
| | | -------------------------- | |
| (=) Total Appraised Value: | = | $345,014 | |
| (–) Senior Exemption Loss: | – | $0 | |
| (–) Exemption Loss: | – | $0 | |
| | | -------------------------- | |
| (=) Taxable Value: | = | $345,014 | |
Taxing Jurisdiction
| Owner: | LEKKALA, DILEEP | | |
| % Ownership: | 100.0000000000% | | |
| Total Value: | $345,014 | | |
| Tax Area: | 510 - APPRAISER-Stan/Cam Schl Dist, improved & 1 acre or less |
| CF | Conservation Futures | 0.0316035091 | $345,014 | $345,014 | $10.90 | | |
| EMS1 | Fire & Rescue Dist #1 Camano GEN (EMS) | 0.3677864386 | $345,014 | $345,014 | $126.89 | | |
| FIRE1 | Fire & Rescue Dist #1 Camano GEN | 1.2502910536 | $345,014 | $345,014 | $431.37 | | |
| FIRE1BOND | Fire & Rescue Dist #1 Camano BOND | 0.1570001679 | $345,014 | $345,014 | $54.17 | | |
| CE | County Current Expense | 0.3708482477 | $345,014 | $345,014 | $127.95 | | |
| CR | County Roads | 0.4584763726 | $345,014 | $345,014 | $158.18 | | |
| LCIB | Library Sno-Isle BOND (Camano Island) | 0.0396325772 | $345,014 | $345,014 | $13.67 | | |
| LIB | Library Sno-Isle GEN | 0.3153421757 | $345,014 | $345,014 | $108.80 | | |
| SCH205_401 | School 205-401 Enrichment | 1.2698420524 | $345,014 | $345,014 | $438.11 | | |
| SCH205BOND | School 205-401 BOND | 0.9396497583 | $345,014 | $345,014 | $324.19 | | |
| ST | State School | 1.3035497053 | $345,014 | $345,014 | $449.74 | | |
| ST2 | State School Part 2 | 0.8169543533 | $345,014 | $345,014 | $281.86 | | |
| | Total Tax Rate: | 7.3209764117 | | | | | |
| | | | | Taxes w/Current Exemptions: | $2,525.83 | | |
| | | | | Taxes w/o Exemptions: | $2,525.83 | | |
Improvement / Building
| Improvement #1: | MANUFACTURED HOME | State Code: | Y | 1113.7 sqft | Value: | $95,014 |
| Bathrooms: | 0 | Bedrooms: | 0 | | Ceiling: | PLASTER PAINTED | Cooling: | EVAP NO DUCT | | Exterior Wall/Cover: | VINYL | Floor Covering: | CARPET 100% | | Floor Structure: | SLAB ON GRADE | Foundation: | SLAB | | Heating: | FHA ELECTRIC | Interior Finish: | PLASTER | | Plumbing Fixture Cnt: | 1 | Roof Slope: | FLAT | | Roof Structure/Cover: | CJ ALUMINIUM HEAVY |   |   |
|
| | Type | Description | Class CD | Sub Class CD | Year Built | Area |
| | BAS | BASE/MAIN FLOOR | 4 | 0 | 1992 | 1113.7 |
| | OWP | OPEN WOOD PORCH W/STEPS | 4 | 0 | 1992 | 144.0 |
| | OWP | OPEN WOOD PORCH W/STEPS | 4 | 0 | 1992 | 160.0 |
| | OWR | OPEN WOOD PORCH W/STEPS/ROOF | 4 | 0 | 1992 | 216.0 |
| | OWC | OPEN WOOD PORCH W/STEPS/ROOF/C | 4 | 0 | 1992 | 20.3 |
Sketch
Property Image
Land
| 1 | 15 | SQ (12001-21780) | 0.0000 | 0.00 | 0.00 | 0.00 | 1.00 | $250,000 | $0 |
Roll Value History
| 2026 | N/A | N/A | N/A | N/A | N/A |
| 2025 | $95,014 | $250,000 | $0 | $345,014 | $345,014 |
| 2024 | $97,983 | $240,000 | $0 | $337,983 | $337,983 |
| 2023 | $87,783 | $240,000 | $0 | $327,783 | $327,783 |
| 2022 | $81,827 | $210,000 | $0 | $291,827 | $291,827 |
| 2021 | $57,392 | $170,000 | $0 | $227,392 | $227,392 |
| 2020 | $57,459 | $130,000 | $0 | $187,459 | $187,459 |
| 2019 | $46,630 | $150,000 | $0 | $196,630 | $196,630 |
| 2018 | $54,314 | $125,000 | $0 | $179,314 | $179,314 |
| 2017 | $55,865 | $90,000 | $0 | $145,865 | $145,865 |
| 2016 | $56,641 | $75,000 | $0 | $131,641 | $131,641 |
| 2015 | $53,823 | $52,000 | $0 | $105,823 | $105,823 |
| 2014 | $55,038 | $52,000 | $0 | $107,038 | $107,038 |
| 2013 | $56,254 | $52,000 | $0 | $108,254 | $108,254 |
| 2012 | $57,469 | $52,000 | $0 | $109,469 | $109,469 |
| 2011 | $58,077 | $65,000 | $0 | $123,077 | $123,077 |
| 2010 | $63,806 | $84,000 | $0 | $147,806 | $147,806 |
| 2009 | $63,352 | $90,000 | $0 | $153,352 | $153,352 |
| 2008 | $65,568 | $90,000 | $0 | $155,568 | $155,568 |
| 2007 | $66,567 | $90,000 | $0 | $156,567 | $156,567 |
Deed and Sales History
| 1 | 10/02/2023 | TRUSTEED | Trustee's Deed | WELTON, CODY J R | LEKKALA, DILEEP | | | $10.00 | 58155 | 4565349 |
| 2 | 01/08/2019 | WD | Warranty Deed | DONOVAN, JAMES L | WELTON, CODY J R | | | $145,000.00 | 37286 | 4457777 |
| 3 | 02/11/2014 | WD | Warranty Deed | DONOVAN, DEBORAH A | DONOVAN, JAMES L | | | $44,500.00 | 14319 | 4355433 |
| 4 | 04/06/2009 | TRUSTEED | Trustee's Deed | US BANK NA TRUSTEE FOR NEW CEN | DONOVAN, DEBORAH A | | | $89,000.00 | 90774 | 4248425 |
| 5 | 02/27/2009 | TRUSTEED | Trustee's Deed | GRANT, DANIEL E | US BANK NA TRUSTEE FOR NEW CEN | | | $0.00 | 90429 | 4245527 |
| 6 | 02/25/2009 | TRUSTEED | Trustee's Deed | Unknown | US BANK NA TRUSTEE FOR NEW CEN | | | $124,934.00 | 90249 | 4245527 |
| 7 | 08/01/1995 | OTHER | Other - Misc. Documents | BURNS, EDWARD J | GRANT, DANIEL E | | | $35,919.00 | 52756 | 0 |
| 8 | 08/01/1995 | REC | Real Estate Contract | GRANT, DANIEL E | GRANT, DANIEL E | | | $69,031.00 | 52757 | 95012744 |
| 9 | 08/01/1992 | WD | Warranty Deed | BLOOM, MELVIN A | BURNS, EDWARD J | | | $33,000.00 | 23150 | 92015366 |
| 10 | 08/01/1986 | WD | Warranty Deed | EATON, WILLIAM | BLOOM, MELVIN A | | | $4,000.00 | 62211 | 86010222 |
Payout Agreement
| No payout information available.. |