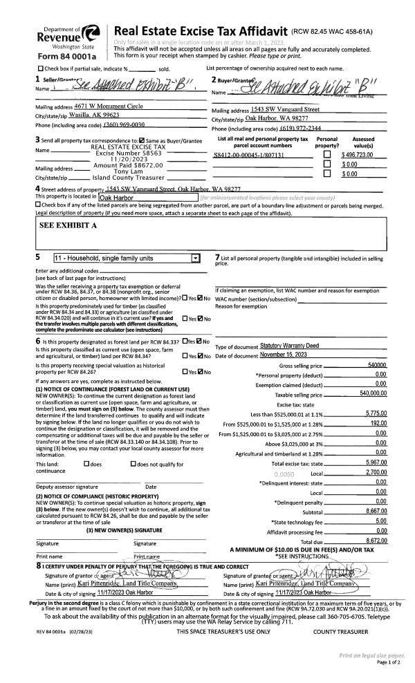
Property
Account |
| Property ID: | 309071 | Abbreviated Legal Description: | LOST LK GRV 1 LOT 24 BLK 1 |
| Geographic ID: | S7410-00-01024-0 | Agent Code: | |
| Type: | Real | | |
| Tax Area: | 510 - APPRAISER-Stan/Cam Schl Dist, improved & 1 acre or less | Land Use Code | 11 |
| Open Space: | N | DFL | N |
| Historic Property: | N | Remodel Property: | N |
| Multi-Family Redevelopment: | N | | |
| Township: | | Section: | |
| Range: | |
Location |
| Address: | 1532 LAKE DR CAMANO ISLAND, WA 98282 | Mapsco: | |
| Neighborhood: | Cycle 5 | Map ID: | 505 |
| Neighborhood CD: | 5 |
Owner |
| Name: | MUSHROW JR, KENNETH EARL | Owner ID: | 309349 |
| Mailing Address: | 1532 LAKE DR CAMANO ISLAND, WA 98282 | % Ownership: | 100.0000000000% |
| | | Exemptions: | |
Taxes and Assessment Details
Values
| (+) Improvement Homesite Value: | + | $0 | |
| (+) Improvement Non-Homesite Value: | + | $252,952 | |
| (+) Land Homesite Value: | + | $0 | |
| (+) Land Non-Homesite Value: | + | $250,000 | |
| (+) Curr Use (HS): | + | $0 | $0 |
| (+) Curr Use (NHS): | + | $0 | $0 |
| | | -------------------------- | |
| (=) Market Value: | = | $502,952 | |
| (–) Productivity Loss: | – | $0 | |
| | | -------------------------- | |
| (=) Subtotal: | = | $502,952 | |
| (+) Senior Appraised Value: | + | $0 | |
| (+) Non-Senior Appraised Value: | + | $502,952 | |
| | | -------------------------- | |
| (=) Total Appraised Value: | = | $502,952 | |
| (–) Senior Exemption Loss: | – | $0 | |
| (–) Exemption Loss: | – | $0 | |
| | | -------------------------- | |
| (=) Taxable Value: | = | $502,952 | |
Taxing Jurisdiction
| Owner: | MUSHROW JR, KENNETH EARL | | |
| % Ownership: | 100.0000000000% | | |
| Total Value: | $502,952 | | |
| Tax Area: | 510 - APPRAISER-Stan/Cam Schl Dist, improved & 1 acre or less |
| CF | Conservation Futures | 0.0316035091 | $502,952 | $502,952 | $15.90 | | |
| EMS1 | Fire & Rescue Dist #1 Camano GEN (EMS) | 0.3677864386 | $502,952 | $502,952 | $184.98 | | |
| FIRE1 | Fire & Rescue Dist #1 Camano GEN | 1.2502910536 | $502,952 | $502,952 | $628.84 | | |
| FIRE1BOND | Fire & Rescue Dist #1 Camano BOND | 0.1570001679 | $502,952 | $502,952 | $78.96 | | |
| CE | County Current Expense | 0.3708482477 | $502,952 | $502,952 | $186.52 | | |
| CR | County Roads | 0.4584763726 | $502,952 | $502,952 | $230.59 | | |
| LCIB | Library Sno-Isle BOND (Camano Island) | 0.0396325772 | $502,952 | $502,952 | $19.93 | | |
| LIB | Library Sno-Isle GEN | 0.3153421757 | $502,952 | $502,952 | $158.60 | | |
| SCH205_401 | School 205-401 Enrichment | 1.2698420524 | $502,952 | $502,952 | $638.67 | | |
| SCH205BOND | School 205-401 BOND | 0.9396497583 | $502,952 | $502,952 | $472.60 | | |
| ST | State School | 1.3035497053 | $502,952 | $502,952 | $655.62 | | |
| ST2 | State School Part 2 | 0.8169543533 | $502,952 | $502,952 | $410.89 | | |
| | Total Tax Rate: | 7.3209764117 | | | | | |
| | | | | Taxes w/Current Exemptions: | $3,682.10 | | |
| | | | | Taxes w/o Exemptions: | $3,682.10 | | |
Improvement / Building
| Improvement #1: | RESIDENTIAL | State Code: | Y | 1428.0 sqft | Value: | $252,952 |
| Bathrooms: | 2 | Bedrooms: | 3 | | Ceiling: | DRYWALL PAINTED | Exterior Wall/Cover: | VINYL | | Floor Covering: | VINYL 100% | Floor Structure: | WOOD W/SUBFLOOR | | Foundation: | CONCRETE | Heating: | WALL HEAT ELECTRIC | | Interior Finish: | DRYWALL PAINT | Plumbing Fixture Cnt: | 9 | | Roof Slope: | 4" IN 12" | Roof Structure/Cover: | CJ ASPHALT |
|
| | Type | Description | Class CD | Sub Class CD | Year Built | Area |
| | BAS | BASE/MAIN FLOOR | 3 | 0 | 2000 | 1428.0 |
| | OWR | OPEN WOOD PORCH W/STEPS/ROOF | 3 | 0 | 2000 | 40.0 |
| | OP3 | OPEN PORCH W/ROOF | 3 | 0 | 2000 | 144.0 |
| | AGR | ATTACHED GARAGE | 3 | 0 | 2000 | 400.0 |
Sketch
Property Image
Land
| 1 | 15 | SQ (12001-21780) | 0.0000 | 0.00 | 0.00 | 0.00 | 1.00 | $250,000 | $0 |
Roll Value History
| 2026 | N/A | N/A | N/A | N/A | N/A |
| 2025 | $252,952 | $250,000 | $0 | $502,952 | $502,952 |
| 2024 | $256,103 | $240,000 | $0 | $496,103 | $496,103 |
| 2023 | $250,098 | $240,000 | $0 | $490,098 | $490,098 |
| 2022 | $229,261 | $210,000 | $0 | $439,261 | $439,261 |
| 2021 | $196,935 | $170,000 | $0 | $366,935 | $366,935 |
| 2020 | $191,815 | $130,000 | $0 | $321,815 | $321,815 |
| 2019 | $138,653 | $150,000 | $0 | $288,653 | $288,653 |
| 2018 | $139,069 | $125,000 | $0 | $264,069 | $264,069 |
| 2017 | $139,902 | $90,000 | $0 | $229,902 | $229,902 |
| 2016 | $141,567 | $75,000 | $0 | $216,567 | $216,567 |
| 2015 | $137,186 | $52,000 | $0 | $189,186 | $189,186 |
| 2014 | $138,820 | $52,000 | $0 | $190,820 | $190,820 |
| 2013 | $140,452 | $52,000 | $0 | $192,452 | $192,452 |
| 2012 | $142,087 | $52,000 | $0 | $194,087 | $194,087 |
| 2011 | $143,718 | $65,000 | $0 | $208,718 | $208,718 |
| 2010 | $149,222 | $84,000 | $0 | $233,222 | $233,222 |
| 2009 | $160,513 | $90,000 | $0 | $250,513 | $250,513 |
| 2008 | $162,350 | $90,000 | $0 | $252,350 | $252,350 |
| 2007 | $162,490 | $90,000 | $0 | $252,490 | $252,490 |
Deed and Sales History
| 1 | 06/07/2023 | WD | Warranty Deed | DOBYNS FAMILY LLC | MUSHROW JR, KENNETH EARL | | | $460,000.00 | 57041 | 4561164 |
| 2 | 11/09/2021 | WD | Warranty Deed | BECKER, SCOTT J | DOBYNS FAMILY LLC | | | $337,400.00 | 50823 | 4533444 |
| 3 | 02/12/2003 | WD | Warranty Deed | DAVID, MICHAEL N | BECKER, SCOTT J | | | $163,000.00 | 30645 | 4048164 |
| 4 | 12/14/1998 | WD | Warranty Deed | SUNDBERG, KEVIN D | DAVID, MICHAEL N | | | $124,950.00 | 85009 | 98027513 |
| 5 | 06/18/1998 | WD | Warranty Deed | KYPUROS, LEO J | SUNDBERG, KEVIN D | | | $24,000.00 | 82462 | 98012840 |
| 6 | 05/01/1990 | WD | Warranty Deed | BJORKLUND, MILTON | KYPUROS, LEO J | | | $13,000.00 | 3117 | 90010147 |
| 7 | 01/01/1900 | OTHER | Other - Misc. Documents | Unknown | SUNDBERG, KEVIN D | | | $0.00 | 82462 | 98012840 |
| 8 | 01/01/1900 | OTHER | Other - Misc. Documents | SUNDBERG, KEVIN D | BJORKLUND, MILTON | | | $0.00 | 0 | 0 |
Payout Agreement
| No payout information available.. |