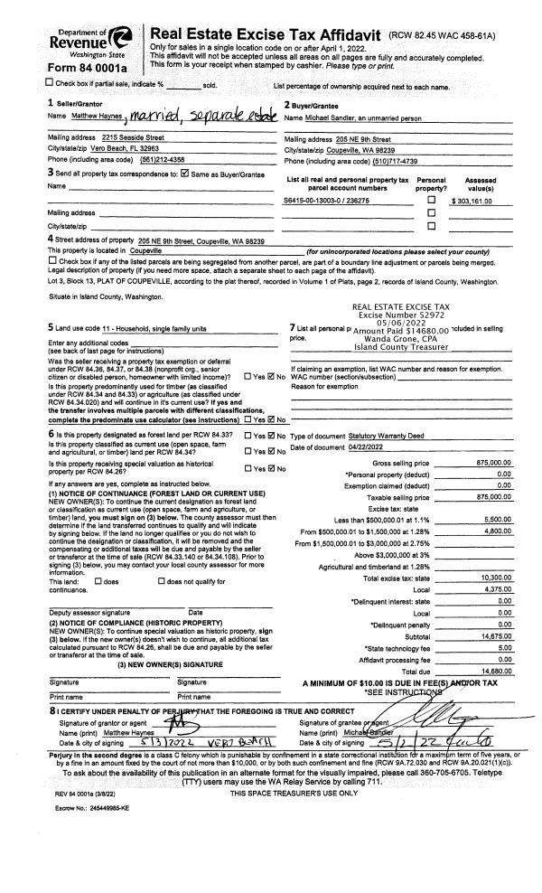
Property
Account |
| Property ID: | 309160 | Abbreviated Legal Description: | LOST LK GRV 1 LOT 33 BLK 1 |
| Geographic ID: | S7410-00-01033-0 | Agent Code: | |
| Type: | Real | | |
| Tax Area: | 510 - APPRAISER-Stan/Cam Schl Dist, improved & 1 acre or less | Land Use Code | 11 |
| Open Space: | N | DFL | N |
| Historic Property: | N | Remodel Property: | N |
| Multi-Family Redevelopment: | N | | |
| Township: | | Section: | |
| Range: | |
Location |
| Address: | 1592 POPLAR LN CAMANO ISLAND, WA 98282 | Mapsco: | |
| Neighborhood: | Cycle 5 | Map ID: | 505 |
| Neighborhood CD: | 5 |
Owner |
| Name: | TUCKER, BRIAN J | Owner ID: | 181671 |
| Mailing Address: | PHYLLIS R TUCKER 1592 POPLAR LN CAMANO ISLAND, WA 98282-7628 | % Ownership: | 100.0000000000% |
| | | Exemptions: | SNR/DSBL |
Taxes and Assessment Details
Values
| (+) Improvement Homesite Value: | + | $285,597 | |
| (+) Improvement Non-Homesite Value: | + | $0 | |
| (+) Land Homesite Value: | + | $250,000 | |
| (+) Land Non-Homesite Value: | + | $0 | |
| (+) Curr Use (HS): | + | $0 | $0 |
| (+) Curr Use (NHS): | + | $0 | $0 |
| | | -------------------------- | |
| (=) Market Value: | = | $535,597 | |
| (–) Productivity Loss: | – | $0 | |
| | | -------------------------- | |
| (=) Subtotal: | = | $535,597 | |
| (+) Senior Appraised Value: | + | $478,414 | |
| (+) Non-Senior Appraised Value: | + | $0 | |
| | | -------------------------- | |
| (=) Total Appraised Value: | = | $478,414 | |
| (–) Senior Exemption Loss: | – | $287,048 | |
| (–) Exemption Loss: | – | $0 | |
| | | -------------------------- | |
| (=) Taxable Value: | = | $191,366 | |
Taxing Jurisdiction
| Owner: | TUCKER, BRIAN J | | |
| % Ownership: | 100.0000000000% | | |
| Total Value: | $535,597 | | |
| Tax Area: | 510 - APPRAISER-Stan/Cam Schl Dist, improved & 1 acre or less |
| CF | Conservation Futures | 0.0316035091 | $535,597 | $191,366 | $6.05 | | |
| EMS1 | Fire & Rescue Dist #1 Camano GEN (EMS) | 0.3677864386 | $535,597 | $191,366 | $70.38 | | |
| FIRE1 | Fire & Rescue Dist #1 Camano GEN | 1.2502910536 | $535,597 | $191,366 | $239.26 | | |
| FIRE1BOND | Fire & Rescue Dist #1 Camano BOND | 0.0000000000 | $535,597 | $0 | $0.00 | | |
| CE | County Current Expense | 0.3708482477 | $535,597 | $191,366 | $70.97 | | |
| CR | County Roads | 0.4584763726 | $535,597 | $191,366 | $87.74 | | |
| LCIB | Library Sno-Isle BOND (Camano Island) | 0.0000000000 | $535,597 | $0 | $0.00 | | |
| LIB | Library Sno-Isle GEN | 0.3153421757 | $535,597 | $191,366 | $60.35 | | |
| SCH205_401 | School 205-401 Enrichment | 0.0000000000 | $535,597 | $0 | $0.00 | | |
| SCH205BOND | School 205-401 BOND | 0.0000000000 | $535,597 | $0 | $0.00 | | |
| ST | State School | 1.3035497053 | $535,597 | $191,366 | $249.46 | | |
| ST2 | State School Part 2 | 0.0000000000 | $535,597 | $0 | $0.00 | | |
| | Total Tax Rate: | 4.0978975026 | | | | | |
| | | | | Taxes w/Current Exemptions: | $784.21 | | |
| | | | | Taxes w/o Exemptions: | $3,921.11 | | |
Improvement / Building
| Improvement #1: | RESIDENTIAL | State Code: | Y | 1727.3 sqft | Value: | $285,597 |
| Bathrooms: | 2 | Bedrooms: | 3 | | Ceiling: | DRYWALL PAINTED | Cooling: | HEAT PUMP/CONV/V | | Exterior Wall/Cover: | CEMENT FIBER | Floor Covering: | CARPET/VINYL 80-20 | | Floor Structure: | WOOD W/SUBFLOOR | Foundation: | CONCRETE | | Interior Finish: | DRYWALL PAINT | Plumbing Fixture Cnt: | 10 | | Roof Slope: | 5" IN 12" | Roof Structure/Cover: | CJ ASPHALT |
|
| | Type | Description | Class CD | Sub Class CD | Year Built | Area |
| | BAS | BASE/MAIN FLOOR | 3 | 0 | 1997 | 1727.3 |
| | AGR | ATTACHED GARAGE | 3 | 0 | 1997 | 483.0 |
| | OWP | OPEN WOOD PORCH W/STEPS | 3 | 0 | 1997 | 371.0 |
| | OWC | OPEN WOOD PORCH W/STEPS/ROOF/C | 3 | 0 | 1997 | 38.8 |
Sketch
Property Image
Land
| 1 | 15 | SQ (12001-21780) | 0.0000 | 0.00 | 0.00 | 0.00 | 1.00 | $250,000 | $0 |
Roll Value History
| 2026 | N/A | N/A | N/A | N/A | N/A |
| 2025 | $285,597 | $250,000 | $0 | $535,597 | $191,366 |
| 2024 | $289,200 | $240,000 | $0 | $529,200 | $191,366 |
| 2023 | $292,804 | $240,000 | $0 | $532,804 | $191,366 |
| 2022 | $268,414 | $210,000 | $0 | $478,414 | $478,414 |
| 2021 | $221,721 | $170,000 | $0 | $391,721 | $391,721 |
| 2020 | $216,065 | $130,000 | $0 | $346,065 | $346,065 |
| 2019 | $158,614 | $150,000 | $0 | $308,614 | $308,614 |
| 2018 | $159,089 | $125,000 | $0 | $284,089 | $284,089 |
| 2017 | $160,065 | $90,000 | $0 | $250,065 | $250,065 |
| 2016 | $161,970 | $75,000 | $0 | $236,970 | $236,970 |
| 2015 | $158,719 | $52,000 | $0 | $210,719 | $210,719 |
| 2014 | $160,677 | $52,000 | $0 | $212,677 | $212,677 |
| 2013 | $162,637 | $52,000 | $0 | $214,637 | $214,637 |
| 2012 | $164,595 | $52,000 | $0 | $216,595 | $216,595 |
| 2011 | $166,556 | $65,000 | $0 | $231,556 | $231,556 |
| 2010 | $173,423 | $84,000 | $0 | $257,423 | $257,423 |
| 2009 | $189,074 | $90,000 | $0 | $279,074 | $279,074 |
| 2008 | $191,358 | $90,000 | $0 | $281,358 | $281,358 |
| 2007 | $193,623 | $90,000 | $0 | $283,623 | $283,623 |
Deed and Sales History
| 1 | 06/02/2005 | WD | Warranty Deed | GASKILL, LORI ANN | TUCKER, BRIAN J | | | $235,000.00 | 52818 | 4137807 |
| 2 | 08/15/2003 | WD | Warranty Deed | HALVORSON, JAMES D | GASKILL, LORI ANN | | | $207,500.00 | 33645 | 4071740 |
| 3 | 08/26/1999 | ESTSEPPROP | Establish Separate Property | HALVORSON, JAMES D | HALVORSON, JAMES D | | | $0.00 | 93703 | 99020873 |
| 4 | 08/26/1999 | WD | Warranty Deed | SMITH, CARL B | HALVORSON, JAMES D | | | $157,000.00 | 93702 | 99020872 |
| 5 | 07/01/1997 | WD | Warranty Deed | STAR, JERRY/PENNY & | SMITH, CARL B | | | $146,000.00 | 72347 | 97011084 |
| 6 | 09/01/1996 | WD | Warranty Deed | TUSS, JOHN M | STAR, JERRY/PENNY & | | | $25,000.00 | 63358 | 96016448 |
| 7 | 12/01/1995 | WD | Warranty Deed | PASCHAL, FRED B | TUSS, JOHN M | | | $20,475.00 | 60117 | 96000538 |
| 8 | 05/01/1987 | WD | Warranty Deed | TRONSON, SIGNE C | PASCHAL, FRED B | | | $7,000.00 | 71602 | 87007539 |
| 9 | 02/01/1986 | OTHER | Other - Misc. Documents | TRONSON, SIGNE C | TRONSON, SIGNE C | | | $0.00 | 61503 | 0 |
| 10 | 02/01/1985 | QCD | Quit Claim Deed | TRONSON, AARON T | TRONSON, SIGNE C | | | $0.00 | 50404 | 85001880 |
| 11 | 01/01/1900 | OTHER | Other - Misc. Documents | Unknown | TRONSON, AARON T | | | $0.00 | 0 | 0 |
Payout Agreement
| No payout information available.. |