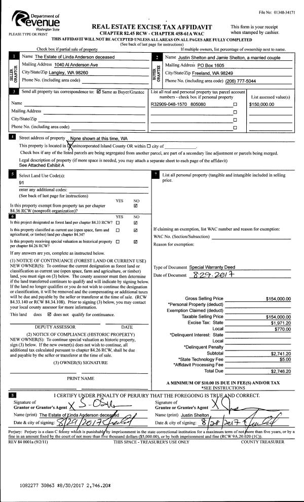
Property
Account |
| Property ID: | 309623 | Abbreviated Legal Description: | LOST LK GRV 1 LOT 5 BLK 6 |
| Geographic ID: | S7410-00-06005-0 | Agent Code: | |
| Type: | Real | | |
| Tax Area: | 510 - APPRAISER-Stan/Cam Schl Dist, improved & 1 acre or less | Land Use Code | 11 |
| Open Space: | N | DFL | N |
| Historic Property: | N | Remodel Property: | N |
| Multi-Family Redevelopment: | N | | |
| Township: | | Section: | |
| Range: | |
Location |
| Address: | 1877 LAKE DR CAMANO ISLAND, WA 98282 | Mapsco: | |
| Neighborhood: | Cycle 5 | Map ID: | 505 |
| Neighborhood CD: | 5 |
Owner |
| Name: | WILFONG TTEE, KERRI JOY | Owner ID: | 309046 |
| Mailing Address: | 1877 LAKE DR CAMANO ISLAND, WA 98282 | % Ownership: | 100.0000000000% |
| | | Exemptions: | |
Taxes and Assessment Details
Values
| (+) Improvement Homesite Value: | + | $0 | |
| (+) Improvement Non-Homesite Value: | + | $159,352 | |
| (+) Land Homesite Value: | + | $0 | |
| (+) Land Non-Homesite Value: | + | $290,000 | |
| (+) Curr Use (HS): | + | $0 | $0 |
| (+) Curr Use (NHS): | + | $0 | $0 |
| | | -------------------------- | |
| (=) Market Value: | = | $449,352 | |
| (–) Productivity Loss: | – | $0 | |
| | | -------------------------- | |
| (=) Subtotal: | = | $449,352 | |
| (+) Senior Appraised Value: | + | $0 | |
| (+) Non-Senior Appraised Value: | + | $449,352 | |
| | | -------------------------- | |
| (=) Total Appraised Value: | = | $449,352 | |
| (–) Senior Exemption Loss: | – | $0 | |
| (–) Exemption Loss: | – | $0 | |
| | | -------------------------- | |
| (=) Taxable Value: | = | $449,352 | |
Taxing Jurisdiction
| Owner: | WILFONG TTEE, KERRI JOY | | |
| % Ownership: | 100.0000000000% | | |
| Total Value: | $449,352 | | |
| Tax Area: | 510 - APPRAISER-Stan/Cam Schl Dist, improved & 1 acre or less |
| CF | Conservation Futures | 0.0316035091 | $449,352 | $449,352 | $14.20 | | |
| EMS1 | Fire & Rescue Dist #1 Camano GEN (EMS) | 0.3677864386 | $449,352 | $449,352 | $165.27 | | |
| FIRE1 | Fire & Rescue Dist #1 Camano GEN | 1.2502910536 | $449,352 | $449,352 | $561.82 | | |
| FIRE1BOND | Fire & Rescue Dist #1 Camano BOND | 0.1570001679 | $449,352 | $449,352 | $70.55 | | |
| CE | County Current Expense | 0.3708482477 | $449,352 | $449,352 | $166.64 | | |
| CR | County Roads | 0.4584763726 | $449,352 | $449,352 | $206.02 | | |
| LCIB | Library Sno-Isle BOND (Camano Island) | 0.0396325772 | $449,352 | $449,352 | $17.81 | | |
| LIB | Library Sno-Isle GEN | 0.3153421757 | $449,352 | $449,352 | $141.70 | | |
| SCH205_401 | School 205-401 Enrichment | 1.2698420524 | $449,352 | $449,352 | $570.61 | | |
| SCH205BOND | School 205-401 BOND | 0.9396497583 | $449,352 | $449,352 | $422.23 | | |
| ST | State School | 1.3035497053 | $449,352 | $449,352 | $585.75 | | |
| ST2 | State School Part 2 | 0.8169543533 | $449,352 | $449,352 | $367.10 | | |
| | Total Tax Rate: | 7.3209764117 | | | | | |
| | | | | Taxes w/Current Exemptions: | $3,289.70 | | |
| | | | | Taxes w/o Exemptions: | $3,289.70 | | |
Improvement / Building
| Improvement #1: | RESIDENTIAL | State Code: | Y | 816.0 sqft | Value: | $159,352 |
| Bathrooms: | 1 | Bedrooms: | 2 | | Ceiling: | DRYWALL PAINTED | Cooling: | HEAT PUMP/CONV/V | | Exterior Wall/Cover: | PLY/HARDBOARD T-111 | Floor Covering: | CERAMIC TILE/CPT 40-60 | | Floor Structure: | WOOD W/SUBFLOOR | Foundation: | CONCRETE | | Interior Finish: | DRYWALL PAINT | Plumbing Fixture Cnt: | 6 | | Roof Slope: | 4" IN 12" | Roof Structure/Cover: | CJ ASPHALT |
|
| | Type | Description | Class CD | Sub Class CD | Year Built | Area |
| | BAS | BASE/MAIN FLOOR | 3 | 0 | 1991 | 816.0 |
| | AGR | ATTACHED GARAGE | 3 | 0 | 1991 | 240.0 |
| | OWP | OPEN WOOD PORCH W/STEPS | 3 | 0 | 1991 | 96.0 |
Sketch
Property Image
Land
| 1 | 15 | SQ (12001-21780) | 0.0000 | 0.00 | 0.00 | 0.00 | 1.00 | $290,000 | $0 |
Roll Value History
| 2026 | N/A | N/A | N/A | N/A | N/A |
| 2025 | $159,352 | $290,000 | $0 | $449,352 | $449,352 |
| 2024 | $161,362 | $280,000 | $0 | $441,362 | $441,362 |
| 2023 | $163,373 | $270,000 | $0 | $433,373 | $433,373 |
| 2022 | $149,752 | $270,000 | $0 | $419,752 | $419,752 |
| 2021 | $131,806 | $190,000 | $0 | $321,806 | $321,806 |
| 2020 | $128,253 | $150,000 | $0 | $278,253 | $278,253 |
| 2019 | $84,374 | $180,000 | $0 | $264,374 | $264,374 |
| 2018 | $84,627 | $150,000 | $0 | $234,627 | $234,627 |
| 2017 | $85,134 | $100,000 | $0 | $185,134 | $185,134 |
| 2016 | $86,148 | $100,000 | $0 | $186,148 | $186,148 |
| 2015 | $74,364 | $52,000 | $0 | $126,364 | $126,364 |
| 2014 | $75,354 | $52,000 | $0 | $127,354 | $127,354 |
| 2013 | $76,346 | $64,000 | $0 | $140,346 | $140,346 |
| 2012 | $77,338 | $64,000 | $0 | $141,338 | $141,338 |
| 2011 | $78,330 | $80,000 | $0 | $158,330 | $158,330 |
| 2010 | $78,019 | $90,000 | $0 | $168,019 | $168,019 |
| 2009 | $81,379 | $90,000 | $0 | $171,379 | $171,379 |
| 2008 | $82,342 | $115,000 | $0 | $197,342 | $197,342 |
| 2007 | $83,305 | $115,000 | $0 | $198,305 | $198,305 |
Deed and Sales History
| 1 | 06/01/2023 | QCD | Quit Claim Deed | WILFONG, KERRI J | WILFONG TTEE, KERRI JOY | | | $0.00 | 57075 | 4561398 |
| 2 | 07/18/2017 | WD | Warranty Deed | NORTON, DANIELLE | WILFONG, KERRI J | | | $235,000.00 | 30241 | 4426520 |
| 3 | 03/23/2016 | WD | Warranty Deed | OGDEN, JULIA M | NORTON, DANIELLE | | | $189,950.00 | 23673 | 4396475 |
| 4 | 03/17/2014 | SPWARDEED | Special Warranty Deed | FEDERAL NATIONAL MORTGAGE ASSOCIATION | OGDEN, JULIA M | | | $138,700.00 | 14701 | 4356985 |
| 5 | 01/24/2013 | WD | Warranty Deed | KREUTZER, ADAM J | FEDERAL NATIONAL MORTGAGE ASSOCIATION | | | $0.00 | 10437 | 4333629 |
| 6 | 03/17/2006 | WD | Warranty Deed | JOHNSON, STEVEN M | KREUTZER, ADAM J | | | $158,500.00 | 61232 | 4165648 |
| 7 | 05/01/1990 | WD | Warranty Deed | LEE, LAWRENCE L | JOHNSON, STEVEN M | | | $19,500.00 | 3270 | 90010663 |
| 8 | 01/01/1900 | OTHER | Other - Misc. Documents | Unknown | LEE, LAWRENCE L | | | $0.00 | 0 | 0 |
Payout Agreement
| No payout information available.. |