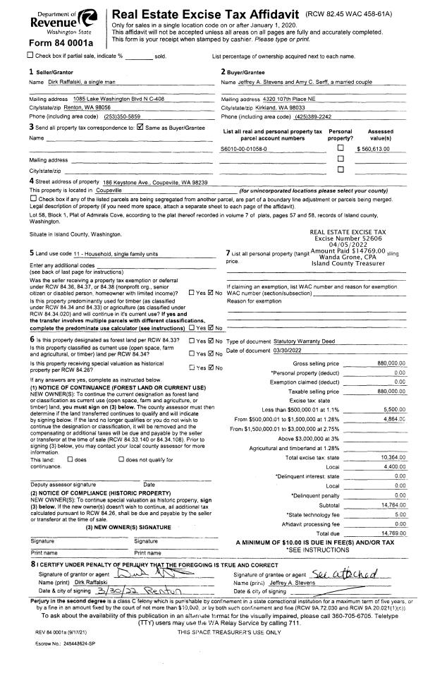
Property
Account |
| Property ID: | 309776 | Abbreviated Legal Description: | LOST LK GRV 1 LOT 20 BLK 6 |
| Geographic ID: | S7410-00-06020-0 | Agent Code: | |
| Type: | Real | | |
| Tax Area: | 510 - APPRAISER-Stan/Cam Schl Dist, improved & 1 acre or less | Land Use Code | 11 |
| Open Space: | N | DFL | N |
| Historic Property: | N | Remodel Property: | N |
| Multi-Family Redevelopment: | N | | |
| Township: | | Section: | |
| Range: | |
Location |
| Address: | 1507 LAKE DR CAMANO ISLAND, WA 98282 | Mapsco: | |
| Neighborhood: | Cycle 5 | Map ID: | 505 |
| Neighborhood CD: | 5 |
Owner |
| Name: | BRULOTTE, BARBARA | Owner ID: | 65427 |
| Mailing Address: | PO BOX 1655 STANWOOD, WA 98292-1655 | % Ownership: | 100.0000000000% |
| | | Exemptions: | SNR/DSBL |
Taxes and Assessment Details
Values
| (+) Improvement Homesite Value: | + | $86,079 | |
| (+) Improvement Non-Homesite Value: | + | $0 | |
| (+) Land Homesite Value: | + | $290,000 | |
| (+) Land Non-Homesite Value: | + | $0 | |
| (+) Curr Use (HS): | + | $0 | $0 |
| (+) Curr Use (NHS): | + | $0 | $0 |
| | | -------------------------- | |
| (=) Market Value: | = | $376,079 | |
| (–) Productivity Loss: | – | $0 | |
| | | -------------------------- | |
| (=) Subtotal: | = | $376,079 | |
| (+) Senior Appraised Value: | + | $151,037 | |
| (+) Non-Senior Appraised Value: | + | $0 | |
| | | -------------------------- | |
| (=) Total Appraised Value: | = | $151,037 | |
| (–) Senior Exemption Loss: | – | $90,622 | |
| (–) Exemption Loss: | – | $0 | |
| | | -------------------------- | |
| (=) Taxable Value: | = | $60,415 | |
Taxing Jurisdiction
| Owner: | BRULOTTE, BARBARA | | |
| % Ownership: | 100.0000000000% | | |
| Total Value: | $376,079 | | |
| Tax Area: | 510 - APPRAISER-Stan/Cam Schl Dist, improved & 1 acre or less |
| CF | Conservation Futures | 0.0316035091 | $376,079 | $60,415 | $1.91 | | |
| EMS1 | Fire & Rescue Dist #1 Camano GEN (EMS) | 0.3677864386 | $376,079 | $60,415 | $22.22 | | |
| FIRE1 | Fire & Rescue Dist #1 Camano GEN | 1.2502910536 | $376,079 | $60,415 | $75.54 | | |
| FIRE1BOND | Fire & Rescue Dist #1 Camano BOND | 0.0000000000 | $376,079 | $0 | $0.00 | | |
| CE | County Current Expense | 0.3708482477 | $376,079 | $60,415 | $22.40 | | |
| CR | County Roads | 0.4584763726 | $376,079 | $60,415 | $27.70 | | |
| LCIB | Library Sno-Isle BOND (Camano Island) | 0.0000000000 | $376,079 | $0 | $0.00 | | |
| LIB | Library Sno-Isle GEN | 0.3153421757 | $376,079 | $60,415 | $19.05 | | |
| SCH205_401 | School 205-401 Enrichment | 0.0000000000 | $376,079 | $0 | $0.00 | | |
| SCH205BOND | School 205-401 BOND | 0.0000000000 | $376,079 | $0 | $0.00 | | |
| ST | State School | 1.3035497053 | $376,079 | $60,415 | $78.75 | | |
| ST2 | State School Part 2 | 0.0000000000 | $376,079 | $0 | $0.00 | | |
| | Total Tax Rate: | 4.0978975026 | | | | | |
| | | | | Taxes w/Current Exemptions: | $247.57 | | |
| | | | | Taxes w/o Exemptions: | $2,753.26 | | |
Improvement / Building
| Improvement #1: | MANUFACTURED HOME | State Code: | Y | 864.0 sqft | Value: | $86,079 |
| Bathrooms: | 0 | Bedrooms: | 0 | | Ceiling: | PLASTER PAINTED | Cooling: | EVAP NO DUCT | | Exterior Wall/Cover: | VINYL | Floor Covering: | CARPET 100% | | Floor Structure: | SLAB ON GRADE | Foundation: | SLAB | | Heating: | FHA ELECTRIC | Interior Finish: | PLASTER | | Plumbing Fixture Cnt: | 1 | Roof Slope: | FLAT | | Roof Structure/Cover: | CJ ALUMINIUM HEAVY |   |   |
|
| | Type | Description | Class CD | Sub Class CD | Year Built | Area |
| | BAS | BASE/MAIN FLOOR | 4 | 0 | 1992 | 864.0 |
| | OWR | OPEN WOOD PORCH W/STEPS/ROOF | 4 | 0 | 1992 | 70.0 |
| | UTY | STORAGE/UTILITY | 4 | 0 | 1992 | 50.0 |
| | OWP | OPEN WOOD PORCH W/STEPS | 4 | 0 | 1992 | 295.0 |
Sketch
Property Image
Land
| 1 | 15 | SQ (12001-21780) | 0.0000 | 0.00 | 0.00 | 0.00 | 1.00 | $290,000 | $0 |
Roll Value History
| 2026 | N/A | N/A | N/A | N/A | N/A |
| 2025 | $86,079 | $290,000 | $0 | $376,079 | $60,415 |
| 2024 | $88,610 | $280,000 | $0 | $368,610 | $60,415 |
| 2023 | $79,255 | $270,000 | $0 | $349,255 | $60,415 |
| 2022 | $72,766 | $270,000 | $0 | $342,766 | $151,037 |
| 2021 | $58,939 | $190,000 | $0 | $248,939 | $151,037 |
| 2020 | $58,901 | $150,000 | $0 | $208,901 | $151,037 |
| 2019 | $47,723 | $180,000 | $0 | $227,723 | $151,037 |
| 2018 | $48,385 | $150,000 | $0 | $198,385 | $151,037 |
| 2017 | $49,711 | $100,000 | $0 | $149,711 | $149,711 |
| 2016 | $51,037 | $100,000 | $0 | $151,037 | $151,037 |
| 2015 | $45,085 | $52,000 | $0 | $97,085 | $97,085 |
| 2014 | $46,110 | $52,000 | $0 | $98,110 | $98,110 |
| 2013 | $47,135 | $64,000 | $0 | $111,135 | $111,135 |
| 2012 | $48,161 | $64,000 | $0 | $112,161 | $112,161 |
| 2011 | $49,186 | $80,000 | $0 | $129,186 | $55,750 |
| 2010 | $55,020 | $90,000 | $0 | $145,020 | $55,750 |
| 2009 | $64,857 | $89,564 | $0 | $154,421 | $55,749 |
| 2008 | $65,257 | $90,116 | $0 | $155,373 | $55,749 |
| 2007 | $67,722 | $89,771 | $0 | $157,493 | $55,749 |
Deed and Sales History
| 1 | 10/01/1991 | WD | Warranty Deed | KNAACK, NORMAN C | BRULOTTE, BARBARA | | | $32,000.00 | 13905 | 91016642 |
| 2 | 08/01/1989 | WD | Warranty Deed | HAHN, ROBERT G | KNAACK, NORMAN C | | | $20,000.00 | 94041 | 89013358 |
| 3 | 11/01/1988 | QCD | Quit Claim Deed | BIRKINSHAW, HOWARD J | HAHN, ROBERT G | | | $0.00 | 83786 | 88014090 |
| 4 | 03/01/1984 | WD | Warranty Deed | HAHN, ROBERT G | BIRKINSHAW, HOWARD J | | | $20,000.00 | 40551 | 421693 |
| 5 | 01/01/1900 | OTHER | Other - Misc. Documents | Unknown | HAHN, ROBERT G | | | $0.00 | 0 | 0 |
Payout Agreement
| No payout information available.. |