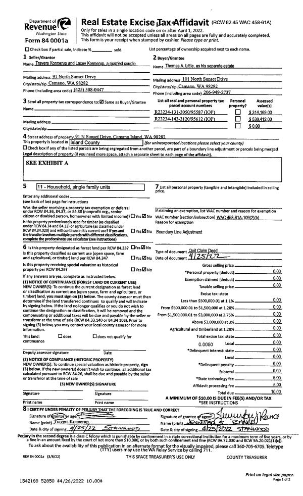
Property
Account |
| Property ID: | 309892 | Abbreviated Legal Description: | LOST LK GRV 1 LOT 32 BLK 6 |
| Geographic ID: | S7410-00-06032-0 | Agent Code: | |
| Type: | Real | | |
| Tax Area: | 510 - APPRAISER-Stan/Cam Schl Dist, improved & 1 acre or less | Land Use Code | 11 |
| Open Space: | N | DFL | N |
| Historic Property: | N | Remodel Property: | N |
| Multi-Family Redevelopment: | N | | |
| Township: | | Section: | |
| Range: | |
Location |
| Address: | 1569 LAKE DR CAMANO ISLAND, WA 98282 | Mapsco: | |
| Neighborhood: | Cycle 5 | Map ID: | 505 |
| Neighborhood CD: | 5 |
Owner |
| Name: | WATSON, RYLEE | Owner ID: | 315491 |
| Mailing Address: | 2719 148TH ST SOURTHWEST LYNNWOOD, WA 98087 | % Ownership: | 100.0000000000% |
| | | Exemptions: | |
Taxes and Assessment Details
Values
| (+) Improvement Homesite Value: | + | $0 | |
| (+) Improvement Non-Homesite Value: | + | $340,084 | |
| (+) Land Homesite Value: | + | $0 | |
| (+) Land Non-Homesite Value: | + | $290,000 | |
| (+) Curr Use (HS): | + | $0 | $0 |
| (+) Curr Use (NHS): | + | $0 | $0 |
| | | -------------------------- | |
| (=) Market Value: | = | $630,084 | |
| (–) Productivity Loss: | – | $0 | |
| | | -------------------------- | |
| (=) Subtotal: | = | $630,084 | |
| (+) Senior Appraised Value: | + | $0 | |
| (+) Non-Senior Appraised Value: | + | $630,084 | |
| | | -------------------------- | |
| (=) Total Appraised Value: | = | $630,084 | |
| (–) Senior Exemption Loss: | – | $0 | |
| (–) Exemption Loss: | – | $0 | |
| | | -------------------------- | |
| (=) Taxable Value: | = | $630,084 | |
Taxing Jurisdiction
| Owner: | WATSON, RYLEE | | |
| % Ownership: | 100.0000000000% | | |
| Total Value: | $630,084 | | |
| Tax Area: | 510 - APPRAISER-Stan/Cam Schl Dist, improved & 1 acre or less |
| CF | Conservation Futures | 0.0316035091 | $630,084 | $630,084 | $19.91 | | |
| EMS1 | Fire & Rescue Dist #1 Camano GEN (EMS) | 0.3677864386 | $630,084 | $630,084 | $231.74 | | |
| FIRE1 | Fire & Rescue Dist #1 Camano GEN | 1.2502910536 | $630,084 | $630,084 | $787.79 | | |
| FIRE1BOND | Fire & Rescue Dist #1 Camano BOND | 0.1570001679 | $630,084 | $630,084 | $98.92 | | |
| CE | County Current Expense | 0.3708482477 | $630,084 | $630,084 | $233.67 | | |
| CR | County Roads | 0.4584763726 | $630,084 | $630,084 | $288.88 | | |
| LCIB | Library Sno-Isle BOND (Camano Island) | 0.0396325772 | $630,084 | $630,084 | $24.97 | | |
| LIB | Library Sno-Isle GEN | 0.3153421757 | $630,084 | $630,084 | $198.69 | | |
| SCH205_401 | School 205-401 Enrichment | 1.2698420524 | $630,084 | $630,084 | $800.11 | | |
| SCH205BOND | School 205-401 BOND | 0.9396497583 | $630,084 | $630,084 | $592.06 | | |
| ST | State School | 1.3035497053 | $630,084 | $630,084 | $821.35 | | |
| ST2 | State School Part 2 | 0.8169543533 | $630,084 | $630,084 | $514.75 | | |
| | Total Tax Rate: | 7.3209764117 | | | | | |
| | | | | Taxes w/Current Exemptions: | $4,612.84 | | |
| | | | | Taxes w/o Exemptions: | $4,612.84 | | |
Improvement / Building
| Improvement #1: | RESIDENTIAL | State Code: | Y | 1920.0 sqft | Value: | $340,084 |
| Bathrooms: | 2.5 | Bedrooms: | 3 | | Ceiling: | DRYWALL PAINTED | Cooling: | HEAT PUMP/CONV/V | | Exterior Wall/Cover: | CEMENT FIBER | Floor Covering: | HARDWOOD/CARP 60-40 | | Floor Structure: | WOOD W/SUBFLOOR | Foundation: | CONCRETE | | Interior Finish: | DRYWALL PAINT | Plumbing Fixture Cnt: | 6 | | Roof Slope: | 6" IN 12" | Roof Structure/Cover: | CJ ASPHALT |
|
| | Type | Description | Class CD | Sub Class CD | Year Built | Area |
| | BAS | BASE/MAIN FLOOR | 3 | 0 | 2020 | 960.0 |
| | DWN | DOWNSTAIRS LIVING AREA | 3 | 0 | 2020 | 960.0 |
| | AGR | ATTACHED GARAGE | 3 | 0 | 2020 | 520.0 |
| | OWP | OPEN WOOD PORCH W/STEPS | 3 | 0 | 2020 | 200.0 |
| | OP4 | OPEN PORCH W/CEILING-ROOF | 3 | 0 | 2020 | 60.0 |
Sketch
Property Image
Land
| 1 | 15 | SQ (12001-21780) | 0.0000 | 0.00 | 0.00 | 0.00 | 1.00 | $290,000 | $0 |
Roll Value History
| 2026 | N/A | N/A | N/A | N/A | N/A |
| 2025 | $340,084 | $290,000 | $0 | $630,084 | $630,084 |
| 2024 | $342,805 | $280,000 | $0 | $622,805 | $622,805 |
| 2023 | $345,525 | $270,000 | $0 | $615,525 | $615,525 |
| 2022 | $316,169 | $270,000 | $0 | $586,169 | $586,169 |
| 2021 | $249,798 | $190,000 | $0 | $439,798 | $439,798 |
| 2020 | $220,884 | $150,000 | $0 | $370,884 | $370,884 |
| 2019 | $0 | $80,000 | $0 | $80,000 | $80,000 |
| 2018 | $0 | $80,000 | $0 | $80,000 | $80,000 |
| 2017 | $0 | $80,000 | $0 | $80,000 | $80,000 |
| 2016 | $0 | $60,000 | $0 | $60,000 | $60,000 |
| 2015 | $0 | $45,000 | $0 | $45,000 | $45,000 |
| 2014 | $0 | $45,000 | $0 | $45,000 | $45,000 |
| 2013 | $0 | $65,000 | $0 | $65,000 | $65,000 |
| 2012 | $0 | $65,000 | $0 | $65,000 | $65,000 |
| 2011 | $0 | $65,000 | $0 | $65,000 | $65,000 |
| 2010 | $0 | $65,000 | $0 | $65,000 | $65,000 |
| 2009 | $0 | $40,000 | $0 | $40,000 | $40,000 |
| 2008 | $0 | $40,000 | $0 | $40,000 | $40,000 |
| 2007 | $0 | $40,000 | $0 | $40,000 | $40,000 |
Deed and Sales History
| 1 | 02/11/2025 | WD | Warranty Deed | PENDLETON TTEE, AMANDA | WATSON, RYLEE | | | $663,000.00 | 62590 | 4582324 |
| 2 | 09/30/2020 | WD | Warranty Deed | BOOTS GENERAL CONTRACTING, INC | CRUICKSHANK TTEE, DAVID ALEXANDER | | | $475,000.00 | 45187 | 4499107 |
| 3 | 09/16/2019 | WD | Warranty Deed | WHITESELL, DAVID SCOTT | BOOTS GENERAL CONTRACTING, INC | | | $85,000.00 | 40357 | 4471810 |
| 4 | 05/01/1978 | OTHER | Other - Misc. Documents | Unknown | WHITESELL, DAVID S | | | $7,000.00 | 82443 | 333569 |
Payout Agreement
| No payout information available.. |