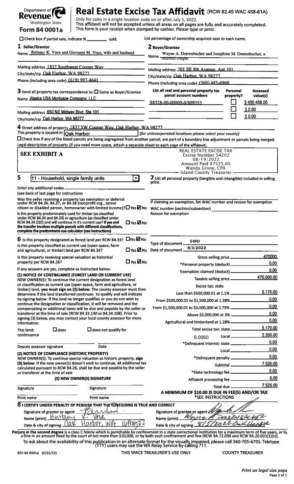
Property
Account |
| Property ID: | 310103 | Abbreviated Legal Description: | LOST LK GRV 2 LOT 5 BLK 2 |
| Geographic ID: | S7410-02-02005-0 | Agent Code: | |
| Type: | Real | | |
| Tax Area: | 510 - APPRAISER-Stan/Cam Schl Dist, improved & 1 acre or less | Land Use Code | 11 |
| Open Space: | N | DFL | N |
| Historic Property: | N | Remodel Property: | N |
| Multi-Family Redevelopment: | N | | |
| Township: | | Section: | |
| Range: | |
Location |
| Address: | 1394 GRAHAM DR CAMANO ISLAND, WA 98282 | Mapsco: | |
| Neighborhood: | Cycle 5 | Map ID: | 505 |
| Neighborhood CD: | 5 |
Owner |
| Name: | WEST, CAROLYN N | Owner ID: | 65458 |
| Mailing Address: | 1394 GRAHAM DR CAMANO ISLAND, WA 98282-8323 | % Ownership: | 100.0000000000% |
| | | Exemptions: | |
Taxes and Assessment Details
Values
| (+) Improvement Homesite Value: | + | $0 | |
| (+) Improvement Non-Homesite Value: | + | $340,616 | |
| (+) Land Homesite Value: | + | $0 | |
| (+) Land Non-Homesite Value: | + | $250,000 | |
| (+) Curr Use (HS): | + | $0 | $0 |
| (+) Curr Use (NHS): | + | $0 | $0 |
| | | -------------------------- | |
| (=) Market Value: | = | $590,616 | |
| (–) Productivity Loss: | – | $0 | |
| | | -------------------------- | |
| (=) Subtotal: | = | $590,616 | |
| (+) Senior Appraised Value: | + | $0 | |
| (+) Non-Senior Appraised Value: | + | $590,616 | |
| | | -------------------------- | |
| (=) Total Appraised Value: | = | $590,616 | |
| (–) Senior Exemption Loss: | – | $0 | |
| (–) Exemption Loss: | – | $0 | |
| | | -------------------------- | |
| (=) Taxable Value: | = | $590,616 | |
Taxing Jurisdiction
| Owner: | WEST, CAROLYN N | | |
| % Ownership: | 100.0000000000% | | |
| Total Value: | $590,616 | | |
| Tax Area: | 510 - APPRAISER-Stan/Cam Schl Dist, improved & 1 acre or less |
| CF | Conservation Futures | 0.0316035091 | $590,616 | $590,616 | $18.67 | | |
| EMS1 | Fire & Rescue Dist #1 Camano GEN (EMS) | 0.3677864386 | $590,616 | $590,616 | $217.22 | | |
| FIRE1 | Fire & Rescue Dist #1 Camano GEN | 1.2502910536 | $590,616 | $590,616 | $738.44 | | |
| FIRE1BOND | Fire & Rescue Dist #1 Camano BOND | 0.1570001679 | $590,616 | $590,616 | $92.73 | | |
| CE | County Current Expense | 0.3708482477 | $590,616 | $590,616 | $219.03 | | |
| CR | County Roads | 0.4584763726 | $590,616 | $590,616 | $270.78 | | |
| LCIB | Library Sno-Isle BOND (Camano Island) | 0.0396325772 | $590,616 | $590,616 | $23.41 | | |
| LIB | Library Sno-Isle GEN | 0.3153421757 | $590,616 | $590,616 | $186.25 | | |
| SCH205_401 | School 205-401 Enrichment | 1.2698420524 | $590,616 | $590,616 | $749.99 | | |
| SCH205BOND | School 205-401 BOND | 0.9396497583 | $590,616 | $590,616 | $554.97 | | |
| ST | State School | 1.3035497053 | $590,616 | $590,616 | $769.90 | | |
| ST2 | State School Part 2 | 0.8169543533 | $590,616 | $590,616 | $482.51 | | |
| | Total Tax Rate: | 7.3209764117 | | | | | |
| | | | | Taxes w/Current Exemptions: | $4,323.90 | | |
| | | | | Taxes w/o Exemptions: | $4,323.90 | | |
Improvement / Building
| Improvement #1: | RESIDENTIAL | State Code: | Y | 1600.0 sqft | Value: | $340,616 |
| Bathrooms: | 2 | Bedrooms: | 3 | | Ceiling: | DRYWALL PAINTED | Exterior Wall/Cover: | WOOD SIDING | | Floor Covering: | HARDWOOD/CARP 60-40 | Floor Structure: | WOOD W/SUBFLOOR | | Foundation: | CONCRETE | Heating: | FHA GAS | | Interior Finish: | DRYWALL PAINT | Plumbing Fixture Cnt: | 11 | | Roof Slope: | 6" IN 12" | Roof Structure/Cover: | CJ ASPHALT |
|
| | Type | Description | Class CD | Sub Class CD | Year Built | Area |
| | BAS | BASE/MAIN FLOOR | 3 | 0 | 2007 | 1600.0 |
| | OP3 | OPEN PORCH W/ROOF | 3 | 0 | 2007 | 16.0 |
| | AGR | ATTACHED GARAGE | 3 | 0 | 2007 | 506.0 |
| | OWP | OPEN WOOD PORCH W/STEPS | 3 | 0 | 2007 | 92.0 |
| | OWP | OPEN WOOD PORCH W/STEPS | 3 | 0 | 2007 | 120.0 |
| | OWR | OPEN WOOD PORCH W/STEPS/ROOF | 3 | 0 | 2007 | 48.0 |
| | UTY | STORAGE/UTILITY | 3 | 0 | 2007 | 144.0 |
Sketch
Property Image
Land
| 1 | 15 | SQ (12001-21780) | 0.0000 | 0.00 | 0.00 | 0.00 | 1.00 | $250,000 | $0 |
Roll Value History
| 2026 | N/A | N/A | N/A | N/A | N/A |
| 2025 | $340,616 | $250,000 | $0 | $590,616 | $590,616 |
| 2024 | $343,478 | $240,000 | $0 | $583,478 | $583,478 |
| 2023 | $346,532 | $240,000 | $0 | $586,532 | $586,532 |
| 2022 | $316,214 | $210,000 | $0 | $526,214 | $526,214 |
| 2021 | $262,190 | $170,000 | $0 | $432,190 | $432,190 |
| 2020 | $255,191 | $130,000 | $0 | $385,191 | $385,191 |
| 2019 | $185,313 | $150,000 | $0 | $335,313 | $335,313 |
| 2018 | $185,831 | $125,000 | $0 | $310,831 | $310,831 |
| 2017 | $186,869 | $90,000 | $0 | $276,869 | $276,869 |
| 2016 | $188,946 | $75,000 | $0 | $263,946 | $263,946 |
| 2015 | $196,877 | $52,000 | $0 | $248,877 | $248,877 |
| 2014 | $198,993 | $52,000 | $0 | $250,993 | $250,993 |
| 2013 | $201,110 | $52,000 | $0 | $253,110 | $253,110 |
| 2012 | $203,228 | $52,000 | $0 | $255,228 | $255,228 |
| 2011 | $205,347 | $65,000 | $0 | $270,347 | $270,347 |
| 2010 | $212,298 | $84,000 | $0 | $296,298 | $296,298 |
| 2009 | $211,456 | $90,000 | $0 | $301,456 | $301,456 |
| 2008 | $211,698 | $90,000 | $0 | $301,698 | $301,698 |
| 2007 | $213,996 | $90,000 | $0 | $303,996 | $303,996 |
Deed and Sales History
| 1 | 10/27/2006 | WD | Warranty Deed | KLEMPEL CONSTRUCTION INC, | WEST, CAROLYN N | | | $274,500.00 | 64660 | 4185691 |
| 2 | 10/31/2001 | WD | Warranty Deed | WELCH, FLOYD & BETTY | KLEMPEL CONSTRUCTION INC, | | | $32,000.00 | 14272 | 4002185 |
| 3 | 03/15/2000 | WD | Warranty Deed | WELCH, GREGORY & | WELCH, FLOYD & BETTY | | | $20,000.00 | 930 | 20004586 |
| 4 | 01/01/1995 | QCD | Quit Claim Deed | WELCH, FLOYD M | WELCH, GREGORY & | | | $0.00 | 50175 | 95000904 |
| 5 | 04/01/1990 | WD | Warranty Deed | REED, ALFRED R | WELCH, FLOYD M | | | $6,000.00 | 2114 | 90006877 |
| 6 | 01/01/1900 | OTHER | Other - Misc. Documents | Unknown | REED, ALFRED R | | | $0.00 | 0 | 0 |
Payout Agreement
| No payout information available.. |