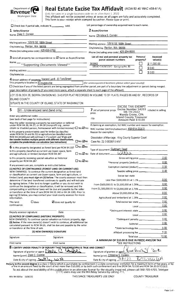
Property
Account |
| Property ID: | 310112 | Abbreviated Legal Description: | LOST LK GRV 2 LOT 6 BLK 2 |
| Geographic ID: | S7410-02-02006-0 | Agent Code: | |
| Type: | Real | | |
| Tax Area: | 510 - APPRAISER-Stan/Cam Schl Dist, improved & 1 acre or less | Land Use Code | 11 |
| Open Space: | N | DFL | N |
| Historic Property: | N | Remodel Property: | N |
| Multi-Family Redevelopment: | N | | |
| Township: | | Section: | |
| Range: | |
Location |
| Address: | 1398 GRAHAM DR CAMANO ISLAND, WA 98282 | Mapsco: | |
| Neighborhood: | Cycle 5 | Map ID: | 505 |
| Neighborhood CD: | 5 |
Owner |
| Name: | TEIFEL, YVONNE M | Owner ID: | 147480 |
| Mailing Address: | STEVEN D TEIFEL 1398 GRAHAM DR CAMANO ISLAND, WA 98282-8323 | % Ownership: | 100.0000000000% |
| | | Exemptions: | SNR/DSBL |
Taxes and Assessment Details
Values
| (+) Improvement Homesite Value: | + | $238,650 | |
| (+) Improvement Non-Homesite Value: | + | $0 | |
| (+) Land Homesite Value: | + | $250,000 | |
| (+) Land Non-Homesite Value: | + | $0 | |
| (+) Curr Use (HS): | + | $0 | $0 |
| (+) Curr Use (NHS): | + | $0 | $0 |
| | | -------------------------- | |
| (=) Market Value: | = | $488,650 | |
| (–) Productivity Loss: | – | $0 | |
| | | -------------------------- | |
| (=) Subtotal: | = | $488,650 | |
| (+) Senior Appraised Value: | + | $199,221 | |
| (+) Non-Senior Appraised Value: | + | $0 | |
| | | -------------------------- | |
| (=) Total Appraised Value: | = | $199,221 | |
| (–) Senior Exemption Loss: | – | $119,533 | |
| (–) Exemption Loss: | – | $0 | |
| | | -------------------------- | |
| (=) Taxable Value: | = | $79,688 | |
Taxing Jurisdiction
| Owner: | TEIFEL, YVONNE M | | |
| % Ownership: | 100.0000000000% | | |
| Total Value: | $488,650 | | |
| Tax Area: | 510 - APPRAISER-Stan/Cam Schl Dist, improved & 1 acre or less |
| CF | Conservation Futures | 0.0316035091 | $488,650 | $79,688 | $2.52 | | |
| EMS1 | Fire & Rescue Dist #1 Camano GEN (EMS) | 0.3677864386 | $488,650 | $79,688 | $29.31 | | |
| FIRE1 | Fire & Rescue Dist #1 Camano GEN | 1.2502910536 | $488,650 | $79,688 | $99.63 | | |
| FIRE1BOND | Fire & Rescue Dist #1 Camano BOND | 0.0000000000 | $488,650 | $0 | $0.00 | | |
| CE | County Current Expense | 0.3708482477 | $488,650 | $79,688 | $29.55 | | |
| CR | County Roads | 0.4584763726 | $488,650 | $79,688 | $36.54 | | |
| LCIB | Library Sno-Isle BOND (Camano Island) | 0.0000000000 | $488,650 | $0 | $0.00 | | |
| LIB | Library Sno-Isle GEN | 0.3153421757 | $488,650 | $79,688 | $25.13 | | |
| SCH205_401 | School 205-401 Enrichment | 0.0000000000 | $488,650 | $0 | $0.00 | | |
| SCH205BOND | School 205-401 BOND | 0.0000000000 | $488,650 | $0 | $0.00 | | |
| ST | State School | 1.3035497053 | $488,650 | $79,688 | $103.88 | | |
| ST2 | State School Part 2 | 0.0000000000 | $488,650 | $0 | $0.00 | | |
| | Total Tax Rate: | 4.0978975026 | | | | | |
| | | | | Taxes w/Current Exemptions: | $326.56 | | |
| | | | | Taxes w/o Exemptions: | $3,577.38 | | |
Improvement / Building
| Improvement #1: | RESIDENTIAL | State Code: | Y | 1418.5 sqft | Value: | $238,650 |
| Bathrooms: | 2 | Bedrooms: | 3 | | Ceiling: | DRYWALL PAINTED | Exterior Wall/Cover: | WOOD SIDING | | Floor Covering: | CARPET/VINYL 80-20 | Floor Structure: | WOOD W/SUBFLOOR | | Foundation: | CONCRETE | Heating: | FHA ELECTRIC | | Interior Finish: | DRYWALL PAINT | Plumbing Fixture Cnt: | 9 | | Roof Slope: | 5" IN 12" | Roof Structure/Cover: | CJ ASPHALT |
|
| | Type | Description | Class CD | Sub Class CD | Year Built | Area |
| | BAS | BASE/MAIN FLOOR | 3 | 0 | 1994 | 1418.5 |
| | OP4 | OPEN PORCH W/CEILING-ROOF | 3 | 0 | 1994 | 25.0 |
| | AGR | ATTACHED GARAGE | 3 | 0 | 1994 | 552.0 |
| | OWP | OPEN WOOD PORCH W/STEPS | 3 | 0 | 1994 | 212.0 |
Sketch
Property Image
Land
| 1 | 15 | SQ (12001-21780) | 0.0000 | 0.00 | 0.00 | 0.00 | 1.00 | $250,000 | $0 |
Roll Value History
| 2026 | N/A | N/A | N/A | N/A | N/A |
| 2025 | $238,650 | $250,000 | $0 | $488,650 | $79,688 |
| 2024 | $241,907 | $240,000 | $0 | $481,907 | $79,688 |
| 2023 | $245,166 | $240,000 | $0 | $485,166 | $79,688 |
| 2022 | $224,961 | $210,000 | $0 | $434,961 | $79,688 |
| 2021 | $193,054 | $170,000 | $0 | $363,054 | $79,688 |
| 2020 | $188,266 | $130,000 | $0 | $318,266 | $79,688 |
| 2019 | $136,282 | $150,000 | $0 | $286,282 | $79,688 |
| 2018 | $136,723 | $125,000 | $0 | $261,723 | $261,723 |
| 2017 | $137,577 | $90,000 | $0 | $227,577 | $79,688 |
| 2016 | $139,343 | $75,000 | $0 | $214,343 | $79,688 |
| 2015 | $145,390 | $52,000 | $0 | $197,390 | $78,956 |
| 2014 | $147,221 | $52,000 | $0 | $199,221 | $79,688 |
| 2013 | $149,053 | $52,000 | $0 | $201,053 | $71,982 |
| 2012 | $150,884 | $52,000 | $0 | $202,884 | $71,982 |
| 2011 | $152,716 | $65,000 | $0 | $217,716 | $71,982 |
| 2010 | $156,934 | $84,000 | $0 | $240,934 | $71,982 |
| 2009 | $168,631 | $90,000 | $0 | $258,631 | $71,982 |
| 2008 | $170,670 | $90,000 | $0 | $260,670 | $71,982 |
| 2007 | $172,708 | $90,000 | $0 | $262,708 | $71,982 |
Deed and Sales History
| 1 | 06/24/2002 | WD | Warranty Deed | EMMANUEL BAPTIST CHRUCH, | TEIFEL, STEVEN D | | | $170,000.00 | 22536 | 4024346 |
| 2 | 10/08/2001 | QCD | Quit Claim Deed | WELCH, FLOYD M | EMMANUEL BAPTIST CHRUCH, | | | $0.00 | 14023 | 4000270 |
| 3 | 09/01/1994 | QCD | Quit Claim Deed | WELCH, FLOYD M | WELCH, FLOYD M | | | $0.00 | 44065 | 94020969 |
| 4 | 04/01/1994 | WD | Warranty Deed | MADSEN, WILBUR O | WELCH, FLOYD M | | | $15,500.00 | 41778 | 94010563 |
| 5 | 11/01/1984 | REC | Real Estate Contract | WELCH, FLOYD M | MADSEN, WILBUR O | | | $10,500.00 | 50024 | 85000085 |
| 6 | 10/01/1983 | WD | Warranty Deed | MCCONNELL, GARY G | WELCH, FLOYD M | | | $8,000.00 | 33125 | 416661 |
| 7 | 03/01/1980 | EXECUTORD | Executor Deed | WELCH, FLOYD M | MCCONNELL, GARY G | | | $6,000.00 | 945 | 366576 |
| 8 | 01/01/1979 | OTHER | Other - Misc. Documents | Unknown | WELCH, FLOYD M | | | $2,000.00 | 90470 | 346709 |
Payout Agreement
| No payout information available.. |