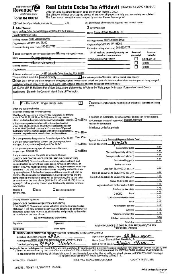
Property
Account |
| Property ID: | 31012 | Abbreviated Legal Description: | 101 - S/2 OF N/2 OF SE SW SE TGW & SUB TO EZ |
| Geographic ID: | R13301-041-3590 | Agent Code: | |
| Type: | Real | | |
| Tax Area: | 112 - APPRAISER-OH Schl Dist, outside OH, improved, greater than 1 acre | Land Use Code | 11 |
| Open Space: | N | DFL | N |
| Historic Property: | N | Remodel Property: | N |
| Multi-Family Redevelopment: | N | | |
| Township: | 33 | Section: | 01 |
| Range: | R1 |
Location |
| Address: | 4430 LYON RD OAK HARBOR, WA 98277 | Mapsco: | |
| Neighborhood: | Cycle 6 | Map ID: | 190 |
| Neighborhood CD: | 6 |
Owner |
| Name: | KEMPER JR, EDWARD L | Owner ID: | 71287 |
| Mailing Address: | 20006 E HICKOX RD MOUNT VERNON, WA 98274-7741 | % Ownership: | 100.0000000000% |
| | | Exemptions: | |
Taxes and Assessment Details
Values
| (+) Improvement Homesite Value: | + | $0 | |
| (+) Improvement Non-Homesite Value: | + | $38,847 | |
| (+) Land Homesite Value: | + | $0 | |
| (+) Land Non-Homesite Value: | + | $250,000 | |
| (+) Curr Use (HS): | + | $0 | $0 |
| (+) Curr Use (NHS): | + | $0 | $0 |
| | | -------------------------- | |
| (=) Market Value: | = | $288,847 | |
| (–) Productivity Loss: | – | $0 | |
| | | -------------------------- | |
| (=) Subtotal: | = | $288,847 | |
| (+) Senior Appraised Value: | + | $0 | |
| (+) Non-Senior Appraised Value: | + | $288,847 | |
| | | -------------------------- | |
| (=) Total Appraised Value: | = | $288,847 | |
| (–) Senior Exemption Loss: | – | $0 | |
| (–) Exemption Loss: | – | $0 | |
| | | -------------------------- | |
| (=) Taxable Value: | = | $288,847 | |
Taxing Jurisdiction
| Owner: | KEMPER JR, EDWARD L | | |
| % Ownership: | 100.0000000000% | | |
| Total Value: | $288,847 | | |
| Tax Area: | 112 - APPRAISER-OH Schl Dist, outside OH, improved, greater than 1 acre |
| CF | Conservation Futures | 0.0316035091 | $288,847 | $288,847 | $9.13 | | |
| CEM1 | Cemetery #1 | 0.0040320932 | $288,847 | $288,847 | $1.16 | | |
| FIRE2 | Fire & Rescue Dist #2 N Whidbey GEN | 0.5475949600 | $288,847 | $288,847 | $158.17 | | |
| HOBOND | Hospital BOND | 0.1910887512 | $288,847 | $288,847 | $55.20 | | |
| HOGEN | Hospital GEN | 0.3902502903 | $288,847 | $288,847 | $112.72 | | |
| CE | County Current Expense | 0.3708482477 | $288,847 | $288,847 | $107.12 | | |
| CR | County Roads | 0.4584763726 | $288,847 | $288,847 | $132.43 | | |
| ISLANDEMS | Hospital GEN (EMS) | 0.5000000000 | $288,847 | $288,847 | $144.42 | | |
| LIB | Library Sno-Isle GEN | 0.3153421757 | $288,847 | $288,847 | $91.09 | | |
| NWHIDPRMT | P & R N Whidbey GEN | 0.2004466701 | $288,847 | $288,847 | $57.90 | | |
| SCH201MO | School 201 Enrichment | 1.8559231640 | $288,847 | $288,847 | $536.08 | | |
| ST | State School | 1.3035497053 | $288,847 | $288,847 | $376.53 | | |
| ST2 | State School Part 2 | 0.8169543533 | $288,847 | $288,847 | $235.97 | | |
| | Total Tax Rate: | 6.9861102925 | | | | | |
| | | | | Taxes w/Current Exemptions: | $2,017.92 | | |
| | | | | Taxes w/o Exemptions: | $2,017.92 | | |
Improvement / Building
| Improvement #1: | MANUFACTURED HOME | State Code: | Y | 1344.0 sqft | Value: | $38,847 |
| Bathrooms: | 0 | Bedrooms: | 0 | | Ceiling: | PLASTER PAINTED | Cooling: | EVAP NO DUCT | | Exterior Wall/Cover: | VINYL | Floor Covering: | CARPET 100% | | Floor Structure: | SLAB ON GRADE | Foundation: | SLAB | | Heating: | FHA ELECTRIC | Interior Finish: | PLASTER | | Plumbing Fixture Cnt: | 1 | Roof Slope: | FLAT | | Roof Structure/Cover: | CJ ALUMINIUM HEAVY |   |   |
|
| | Type | Description | Class CD | Sub Class CD | Year Built | Area |
| | BAS | BASE/MAIN FLOOR | 3 | 0 | 1975 | 1344.0 |
| | UTY | STORAGE/UTILITY | 3 | 0 | 1975 | 640.0 |
| | OWP | OPEN WOOD PORCH W/STEPS | 3 | 0 | 1975 | 64.0 |
Sketch
Property Image
Land
| 1 | 18 | AC (02.01-03.00) | 2.5000 | 108900.00 | 0.00 | 0.00 | 1.00 | $250,000 | $0 |
Roll Value History
| 2026 | N/A | N/A | N/A | N/A | N/A |
| 2025 | $38,847 | $250,000 | $0 | $288,847 | $288,847 |
| 2024 | $41,354 | $230,000 | $0 | $271,354 | $271,354 |
| 2023 | $43,860 | $220,000 | $0 | $263,860 | $263,860 |
| 2022 | $43,118 | $210,000 | $0 | $253,118 | $253,118 |
| 2021 | $39,469 | $160,000 | $0 | $199,469 | $199,469 |
| 2020 | $40,228 | $130,000 | $0 | $170,228 | $170,228 |
| 2019 | $33,202 | $200,000 | $0 | $233,202 | $233,202 |
| 2018 | $34,712 | $170,000 | $0 | $204,712 | $204,712 |
| 2017 | $36,221 | $120,000 | $0 | $156,221 | $156,221 |
| 2016 | $19,020 | $120,000 | $0 | $139,020 | $139,020 |
| 2015 | $19,725 | $100,000 | $0 | $119,725 | $119,725 |
| 2014 | $21,134 | $75,000 | $0 | $96,134 | $96,134 |
| 2013 | $21,839 | $75,000 | $0 | $96,839 | $96,839 |
| 2012 | $23,248 | $102,000 | $0 | $125,248 | $125,248 |
| 2011 | $24,656 | $120,000 | $0 | $144,656 | $144,656 |
| 2010 | $34,015 | $120,000 | $0 | $154,015 | $154,015 |
| 2009 | $34,801 | $130,000 | $0 | $164,801 | $164,801 |
| 2008 | $35,177 | $118,000 | $0 | $153,177 | $153,177 |
| 2007 | $35,566 | $89,500 | $0 | $125,066 | $125,066 |
Deed and Sales History
| 1 | 03/01/1993 | OTHER | Other - Misc. Documents | KEMPER, EDWARD L | KEMPER, EDWARD L | | | $0.00 | 30943 | 0 |
| 2 | 07/01/1978 | OTHER | Other - Misc. Documents | KEMPER, EDWARD L | KEMPER, EDWARD L | | | $14,500.00 | 83478 | 0 |
| 3 | 01/01/1900 | OTHER | Other - Misc. Documents | SW, | KEMPER, EDWARD L | | | $19,500.00 | 0 | 0 |
| 4 | 01/01/1900 | OTHER | Other - Misc. Documents | Unknown | SW, | | | $0.00 | 834780 | 0 |
Payout Agreement
| No payout information available.. |