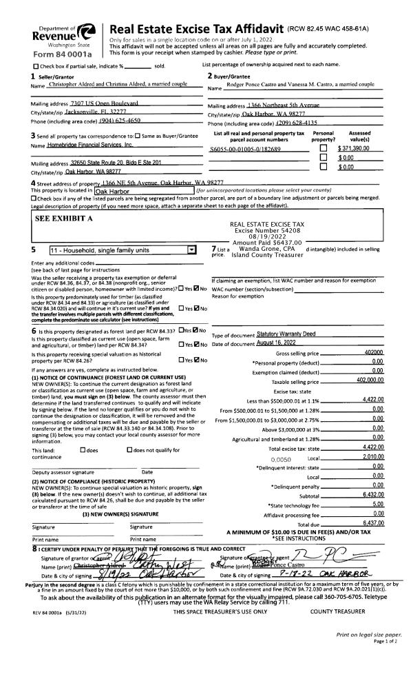
Property
Account |
| Property ID: | 310201 | Abbreviated Legal Description: | LOST LK GRV 2 LOT 15 BLK 2 |
| Geographic ID: | S7410-02-02015-0 | Agent Code: | |
| Type: | Real | | |
| Tax Area: | 510 - APPRAISER-Stan/Cam Schl Dist, improved & 1 acre or less | Land Use Code | 11 |
| Open Space: | N | DFL | N |
| Historic Property: | N | Remodel Property: | N |
| Multi-Family Redevelopment: | N | | |
| Township: | | Section: | |
| Range: | |
Location |
| Address: | 1454 GRAHAM DR CAMANO ISLAND, WA 98282 | Mapsco: | |
| Neighborhood: | Cycle 5 | Map ID: | 505 |
| Neighborhood CD: | 5 |
Owner |
| Name: | MOE, MARLA RAE | Owner ID: | 65468 |
| Mailing Address: | PETER G MOE 1383 HANSEN ST CAMANO ISLAND, WA 98282 | % Ownership: | 100.0000000000% |
| | | Exemptions: | |
Taxes and Assessment Details
Values
| (+) Improvement Homesite Value: | + | $0 | |
| (+) Improvement Non-Homesite Value: | + | $76,271 | |
| (+) Land Homesite Value: | + | $0 | |
| (+) Land Non-Homesite Value: | + | $250,000 | |
| (+) Curr Use (HS): | + | $0 | $0 |
| (+) Curr Use (NHS): | + | $0 | $0 |
| | | -------------------------- | |
| (=) Market Value: | = | $326,271 | |
| (–) Productivity Loss: | – | $0 | |
| | | -------------------------- | |
| (=) Subtotal: | = | $326,271 | |
| (+) Senior Appraised Value: | + | $0 | |
| (+) Non-Senior Appraised Value: | + | $326,271 | |
| | | -------------------------- | |
| (=) Total Appraised Value: | = | $326,271 | |
| (–) Senior Exemption Loss: | – | $0 | |
| (–) Exemption Loss: | – | $0 | |
| | | -------------------------- | |
| (=) Taxable Value: | = | $326,271 | |
Taxing Jurisdiction
| Owner: | MOE, MARLA RAE | | |
| % Ownership: | 100.0000000000% | | |
| Total Value: | $326,271 | | |
| Tax Area: | 510 - APPRAISER-Stan/Cam Schl Dist, improved & 1 acre or less |
| CF | Conservation Futures | 0.0316035091 | $326,271 | $326,271 | $10.31 | | |
| EMS1 | Fire & Rescue Dist #1 Camano GEN (EMS) | 0.3677864386 | $326,271 | $326,271 | $120.00 | | |
| FIRE1 | Fire & Rescue Dist #1 Camano GEN | 1.2502910536 | $326,271 | $326,271 | $407.93 | | |
| FIRE1BOND | Fire & Rescue Dist #1 Camano BOND | 0.1570001679 | $326,271 | $326,271 | $51.22 | | |
| CE | County Current Expense | 0.3708482477 | $326,271 | $326,271 | $121.00 | | |
| CR | County Roads | 0.4584763726 | $326,271 | $326,271 | $149.59 | | |
| LCIB | Library Sno-Isle BOND (Camano Island) | 0.0396325772 | $326,271 | $326,271 | $12.93 | | |
| LIB | Library Sno-Isle GEN | 0.3153421757 | $326,271 | $326,271 | $102.89 | | |
| SCH205_401 | School 205-401 Enrichment | 1.2698420524 | $326,271 | $326,271 | $414.31 | | |
| SCH205BOND | School 205-401 BOND | 0.9396497583 | $326,271 | $326,271 | $306.58 | | |
| ST | State School | 1.3035497053 | $326,271 | $326,271 | $425.31 | | |
| ST2 | State School Part 2 | 0.8169543533 | $326,271 | $326,271 | $266.55 | | |
| | Total Tax Rate: | 7.3209764117 | | | | | |
| | | | | Taxes w/Current Exemptions: | $2,388.62 | | |
| | | | | Taxes w/o Exemptions: | $2,388.62 | | |
Improvement / Building
| Improvement #1: | MANUFACTURED HOME | State Code: | Y | 1296.0 sqft | Value: | $76,271 |
| Bathrooms: | 0 | Bedrooms: | 0 | | Ceiling: | PLASTER PAINTED | Cooling: | EVAP NO DUCT | | Exterior Wall/Cover: | VINYL | Floor Covering: | CARPET 100% | | Floor Structure: | SLAB ON GRADE | Foundation: | SLAB | | Heating: | FHA ELECTRIC | Interior Finish: | PLASTER | | Plumbing Fixture Cnt: | 1 | Roof Slope: | FLAT | | Roof Structure/Cover: | CJ ALUMINIUM HEAVY |   |   |
|
| | Type | Description | Class CD | Sub Class CD | Year Built | Area |
| | BAS | BASE/MAIN FLOOR | 4 | 0 | 1987 | 1296.0 |
| | OWR | OPEN WOOD PORCH W/STEPS/ROOF | 4 | 0 | 1987 | 64.0 |
| | UTY | STORAGE/UTILITY | 4 | 0 | 1987 | 100.0 |
| | OWP | OPEN WOOD PORCH W/STEPS | 4 | 0 | 1987 | 128.0 |
Sketch
Property Image
Land
| 1 | 15 | SQ (12001-21780) | 0.0000 | 0.00 | 0.00 | 0.00 | 1.00 | $250,000 | $0 |
Roll Value History
| 2026 | N/A | N/A | N/A | N/A | N/A |
| 2025 | $76,271 | $250,000 | $0 | $326,271 | $326,271 |
| 2024 | $79,261 | $240,000 | $0 | $319,261 | $319,261 |
| 2023 | $71,523 | $240,000 | $0 | $311,523 | $311,523 |
| 2022 | $67,120 | $210,000 | $0 | $277,120 | $277,120 |
| 2021 | $41,212 | $170,000 | $0 | $211,212 | $211,212 |
| 2020 | $41,752 | $130,000 | $0 | $171,752 | $171,752 |
| 2019 | $34,944 | $150,000 | $0 | $184,944 | $184,944 |
| 2018 | $36,314 | $125,000 | $0 | $161,314 | $161,314 |
| 2017 | $37,685 | $90,000 | $0 | $127,685 | $127,685 |
| 2016 | $39,055 | $75,000 | $0 | $114,055 | $114,055 |
| 2015 | $33,806 | $52,000 | $0 | $85,806 | $85,806 |
| 2014 | $34,788 | $52,000 | $0 | $86,788 | $86,788 |
| 2013 | $35,770 | $52,000 | $0 | $87,770 | $87,770 |
| 2012 | $37,244 | $52,000 | $0 | $89,244 | $89,244 |
| 2011 | $38,226 | $65,000 | $0 | $103,226 | $103,226 |
| 2010 | $35,491 | $84,000 | $0 | $119,491 | $119,491 |
| 2009 | $34,882 | $90,000 | $0 | $124,882 | $124,882 |
| 2008 | $36,075 | $90,000 | $0 | $126,075 | $126,075 |
| 2007 | $36,110 | $90,000 | $0 | $126,110 | $126,110 |
Deed and Sales History
| 1 | 11/18/2009 | QCD | Quit Claim Deed | THOMAS, MARLA R | MOE, MARLA RAE | | | $0.00 | 92874 | 4264163 |
| 2 | 10/01/1996 | REC | Real Estate Contract | THOMAS, MARLA R | THOMAS, MARLA R | | | $0.00 | 63851 | 0 |
| 3 | 09/01/1991 | QCD | Quit Claim Deed | BRUNS, RAYMOND P | THOMAS, MARLA R | | | $0.00 | 13286 | 91014016 |
| 4 | 03/01/1989 | OTHER | Other - Misc. Documents | WILBURN, ROBERT C | BRUNS, RAYMOND P | | | $35,000.00 | 90757 | 0 |
| 5 | 04/01/1987 | OTHER | Other - Misc. Documents | WILBURN, ROBERT C | WILBURN, ROBERT C | | | $21,900.00 | 11111111 | 0 |
| 6 | 11/01/1979 | EXECUTORD | Executor Deed | NUNN, AUBREY D | WILBURN, ROBERT C | | | $3,000.00 | 95568 | 3620610 |
| 7 | 01/01/1900 | OTHER | Other - Misc. Documents | Unknown | NUNN, AUBREY D | | | $0.00 | 0 | 0 |
Payout Agreement
| No payout information available.. |