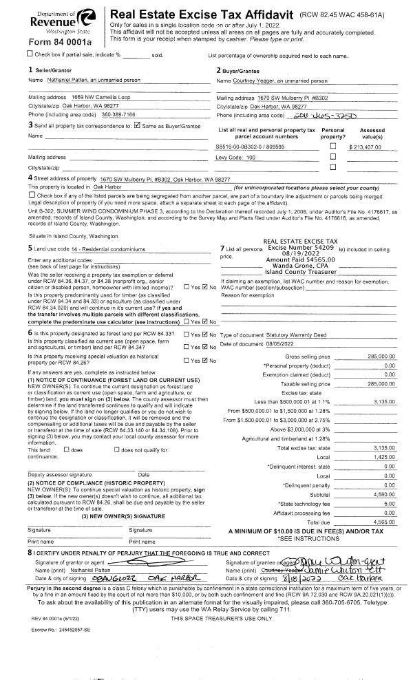
Property
Account |
| Property ID: | 310210 | Abbreviated Legal Description: | LOST LK GRV 2 LOT 16 BLK 2 |
| Geographic ID: | S7410-02-02016-0 | Agent Code: | |
| Type: | Real | | |
| Tax Area: | 510 - APPRAISER-Stan/Cam Schl Dist, improved & 1 acre or less | Land Use Code | 11 |
| Open Space: | N | DFL | N |
| Historic Property: | N | Remodel Property: | N |
| Multi-Family Redevelopment: | N | | |
| Township: | | Section: | |
| Range: | |
Location |
| Address: | 1460 GRAHAM DR CAMANO ISLAND, WA 98282 | Mapsco: | |
| Neighborhood: | Cycle 5 | Map ID: | 505 |
| Neighborhood CD: | 5 |
Owner |
| Name: | MCNETT JR, THOMAS A | Owner ID: | 291994 |
| Mailing Address: | JOYCE M MCNETT 1460 GRAHAM DR CAMANO ISLAND, WA 98282 | % Ownership: | 100.0000000000% |
| | | Exemptions: | |
Taxes and Assessment Details
Values
| (+) Improvement Homesite Value: | + | $0 | |
| (+) Improvement Non-Homesite Value: | + | $62,708 | |
| (+) Land Homesite Value: | + | $0 | |
| (+) Land Non-Homesite Value: | + | $250,000 | |
| (+) Curr Use (HS): | + | $0 | $0 |
| (+) Curr Use (NHS): | + | $0 | $0 |
| | | -------------------------- | |
| (=) Market Value: | = | $312,708 | |
| (–) Productivity Loss: | – | $0 | |
| | | -------------------------- | |
| (=) Subtotal: | = | $312,708 | |
| (+) Senior Appraised Value: | + | $0 | |
| (+) Non-Senior Appraised Value: | + | $312,708 | |
| | | -------------------------- | |
| (=) Total Appraised Value: | = | $312,708 | |
| (–) Senior Exemption Loss: | – | $0 | |
| (–) Exemption Loss: | – | $0 | |
| | | -------------------------- | |
| (=) Taxable Value: | = | $312,708 | |
Taxing Jurisdiction
| Owner: | MCNETT JR, THOMAS A | | |
| % Ownership: | 100.0000000000% | | |
| Total Value: | $312,708 | | |
| Tax Area: | 510 - APPRAISER-Stan/Cam Schl Dist, improved & 1 acre or less |
| CF | Conservation Futures | 0.0316035091 | $312,708 | $312,708 | $9.88 | | |
| EMS1 | Fire & Rescue Dist #1 Camano GEN (EMS) | 0.3677864386 | $312,708 | $312,708 | $115.01 | | |
| FIRE1 | Fire & Rescue Dist #1 Camano GEN | 1.2502910536 | $312,708 | $312,708 | $390.98 | | |
| FIRE1BOND | Fire & Rescue Dist #1 Camano BOND | 0.1570001679 | $312,708 | $312,708 | $49.10 | | |
| CE | County Current Expense | 0.3708482477 | $312,708 | $312,708 | $115.97 | | |
| CR | County Roads | 0.4584763726 | $312,708 | $312,708 | $143.37 | | |
| LCIB | Library Sno-Isle BOND (Camano Island) | 0.0396325772 | $312,708 | $312,708 | $12.39 | | |
| LIB | Library Sno-Isle GEN | 0.3153421757 | $312,708 | $312,708 | $98.61 | | |
| SCH205_401 | School 205-401 Enrichment | 1.2698420524 | $312,708 | $312,708 | $397.09 | | |
| SCH205BOND | School 205-401 BOND | 0.9396497583 | $312,708 | $312,708 | $293.84 | | |
| ST | State School | 1.3035497053 | $312,708 | $312,708 | $407.63 | | |
| ST2 | State School Part 2 | 0.8169543533 | $312,708 | $312,708 | $255.47 | | |
| | Total Tax Rate: | 7.3209764117 | | | | | |
| | | | | Taxes w/Current Exemptions: | $2,289.34 | | |
| | | | | Taxes w/o Exemptions: | $2,289.34 | | |
Improvement / Building
| Improvement #1: | MANUFACTURED HOME | State Code: | Y | 1248.0 sqft | Value: | $62,708 |
| Bathrooms: | 0 | Bedrooms: | 0 | | Ceiling: | PLASTER PAINTED | Cooling: | EVAP NO DUCT | | Exterior Wall/Cover: | VINYL | Floor Covering: | CARPET 100% | | Floor Structure: | SLAB ON GRADE | Foundation: | SLAB | | Heating: | FHA ELECTRIC | Interior Finish: | PLASTER | | Plumbing Fixture Cnt: | 1 | Roof Slope: | FLAT | | Roof Structure/Cover: | CJ ALUMINIUM HEAVY |   |   |
|
| | Type | Description | Class CD | Sub Class CD | Year Built | Area |
| | BAS | BASE/MAIN FLOOR | 4 | 0 | 1981 | 1248.0 |
| | OWP | OPEN WOOD PORCH W/STEPS | 4 | 0 | 1981 | 96.0 |
| | OWP | OPEN WOOD PORCH W/STEPS | 4 | 0 | 1981 | 96.0 |
| | DGR | DETACHED GARAGE | 4 | 0 | 1981 | 342.0 |
Sketch
Property Image
Land
| 1 | 15 | SQ (12001-21780) | 0.0000 | 0.00 | 0.00 | 0.00 | 1.00 | $250,000 | $0 |
Roll Value History
| 2026 | N/A | N/A | N/A | N/A | N/A |
| 2025 | $62,708 | $250,000 | $0 | $312,708 | $312,708 |
| 2024 | $65,559 | $240,000 | $0 | $305,559 | $305,559 |
| 2023 | $60,605 | $240,000 | $0 | $300,605 | $300,605 |
| 2022 | $57,926 | $210,000 | $0 | $267,926 | $267,926 |
| 2021 | $35,876 | $170,000 | $0 | $205,876 | $205,876 |
| 2020 | $36,972 | $130,000 | $0 | $166,972 | $166,972 |
| 2019 | $31,684 | $150,000 | $0 | $181,684 | $181,684 |
| 2018 | $33,175 | $125,000 | $0 | $158,175 | $158,175 |
| 2017 | $34,669 | $90,000 | $0 | $124,669 | $124,669 |
| 2016 | $36,907 | $75,000 | $0 | $111,907 | $111,907 |
| 2015 | $42,661 | $52,000 | $0 | $94,661 | $94,661 |
| 2014 | $44,126 | $52,000 | $0 | $96,126 | $96,126 |
| 2013 | $45,592 | $52,000 | $0 | $97,592 | $97,592 |
| 2012 | $47,057 | $52,000 | $0 | $99,057 | $99,057 |
| 2011 | $48,523 | $65,000 | $0 | $113,523 | $113,523 |
| 2010 | $59,322 | $84,000 | $0 | $143,322 | $143,322 |
| 2009 | $62,575 | $90,000 | $0 | $152,575 | $152,575 |
| 2008 | $63,562 | $90,000 | $0 | $153,562 | $153,562 |
| 2007 | $65,341 | $90,000 | $0 | $155,341 | $155,341 |
Deed and Sales History
| 1 | 09/26/2019 | WD | Warranty Deed | SANDERS, GENE E | MCNETT JR, THOMAS A | | | $174,900.00 | 40445 | 4472246 |
| 2 | 04/04/2008 | WD | Warranty Deed | COYLE, SHELLY A | SANDERS, GENE E | | | $186,000.00 | 80857 | 4225737 |
| 3 | 11/08/2007 | QCD | Quit Claim Deed | COYLE, SHELLY A | COYLE, SHELLY A | | | $0.00 | 73816 | 4216576 |
| 4 | 11/26/2004 | ESTSEPPROP | Establish Separate Property | COYLE, SHELLY A | COYLE, SHELLY A | | | $0.00 | 45661 | 4119855 |
| 5 | 11/24/2003 | WD | Warranty Deed | JACOBSEN, MOLLY | COYLE, SHELLY A | | | $99,000.00 | 35476 | 4085116 |
| 6 | 05/06/1998 | OTHER | Other - Misc. Documents | SMALLEY, J K | JACOBSEN, MOLLY | | | $92,500.00 | 81710 | 0 |
| 7 | 05/06/1998 | WD | Warranty Deed | JACOBSEN, MOLLY | JACOBSEN, MOLLY | | | $92,500.00 | 81710 | 98009133 |
| 8 | 06/01/1995 | OTHER | Other - Misc. Documents | SMALLEY, J K | SMALLEY, J K | | | $34,286.00 | 51834 | 0 |
| 9 | 05/01/1995 | WD | Warranty Deed | MITCHELL, EARL L | SMALLEY, J K | | | $50,714.00 | 51833 | 95008550 |
| 10 | 04/01/1992 | OTHER | Other - Misc. Documents | BARNETT, LARRY G | MITCHELL, EARL L | | | $0.00 | 21539 | 0 |
| 11 | 04/01/1992 | WD | Warranty Deed | MITCHELL, EARL L | MITCHELL, EARL L | | | $77,000.00 | 21540 | 92007407 |
| 12 | 03/01/1990 | WD | Warranty Deed | CAVANAGH, MARGARET H | BARNETT, LARRY G | | | $27,760.00 | 1283 | 90004105 |
| 13 | 03/01/1989 | OTHER | Other - Misc. Documents | CAVANAGH, MARGARET H | CAVANAGH, MARGARET H | | | $0.00 | 91124 | 0 |
| 14 | 11/01/1988 | OTHER | Other - Misc. Documents | CAVANAGH, WILLIAM J | CAVANAGH, MARGARET H | | | $0.00 | 62914 | 0 |
| 15 | 02/01/1981 | OTHER | Other - Misc. Documents | CAVANAGH, WILLIAM J | CAVANAGH, WILLIAM J | | | $33,285.00 | 0 | 0 |
| 16 | 01/01/1900 | OTHER | Other - Misc. Documents | SMALLEY, J KURT/CAROLYN S | CAVANAUGH, WILLIAM J | | | $0.00 | 0 | 0 |
| 17 | 01/01/1900 | OTHER | Other - Misc. Documents | Unknown | JACOBSEN, MOLLY | | | $0.00 | 81710 | 98009133 |
| 18 | 01/01/1900 | QCD | Quit Claim Deed | JACOBSEN, MOLLY | SMALLEY, J KURT/CAROLYN S | | | $0.00 | 0 | 0 |
| 19 | 01/01/1900 | OTHER | Other - Misc. Documents | CAVANAUGH, WILLIAM J | CAVANAGH, WILLIAM J | | | $0.00 | 0 | 0 |
Payout Agreement
| No payout information available.. |