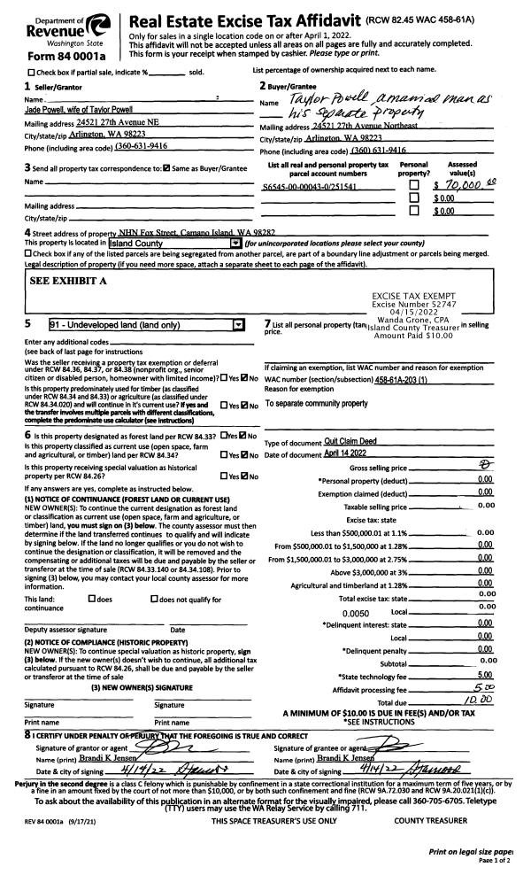
Property
Account |
| Property ID: | 310265 | Abbreviated Legal Description: | LOST LK GRV 2 LOTS 20 & 21 BLK 2 COMB 4/97 |
| Geographic ID: | S7410-02-02021-0 | Agent Code: | |
| Type: | Real | | |
| Tax Area: | 510 - APPRAISER-Stan/Cam Schl Dist, improved & 1 acre or less | Land Use Code | 11 |
| Open Space: | N | DFL | N |
| Historic Property: | N | Remodel Property: | N |
| Multi-Family Redevelopment: | N | | |
| Township: | | Section: | |
| Range: | |
Location |
| Address: | 38 BIRCH LN CAMANO ISLAND, WA 98282 | Mapsco: | |
| Neighborhood: | Cycle 5 | Map ID: | 505 |
| Neighborhood CD: | 5 |
Owner |
| Name: | CLEARY, KELSEY | Owner ID: | 297604 |
| Mailing Address: | CODY THORNTON 38 BIRCH LN CAMANO ISLAND, WA 98282 | % Ownership: | 100.0000000000% |
| | | Exemptions: | |
Taxes and Assessment Details
Values
| (+) Improvement Homesite Value: | + | $0 | |
| (+) Improvement Non-Homesite Value: | + | $318,931 | |
| (+) Land Homesite Value: | + | $0 | |
| (+) Land Non-Homesite Value: | + | $250,000 | |
| (+) Curr Use (HS): | + | $0 | $0 |
| (+) Curr Use (NHS): | + | $0 | $0 |
| | | -------------------------- | |
| (=) Market Value: | = | $568,931 | |
| (–) Productivity Loss: | – | $0 | |
| | | -------------------------- | |
| (=) Subtotal: | = | $568,931 | |
| (+) Senior Appraised Value: | + | $0 | |
| (+) Non-Senior Appraised Value: | + | $568,931 | |
| | | -------------------------- | |
| (=) Total Appraised Value: | = | $568,931 | |
| (–) Senior Exemption Loss: | – | $0 | |
| (–) Exemption Loss: | – | $0 | |
| | | -------------------------- | |
| (=) Taxable Value: | = | $568,931 | |
Taxing Jurisdiction
| Owner: | CLEARY, KELSEY | | |
| % Ownership: | 100.0000000000% | | |
| Total Value: | $568,931 | | |
| Tax Area: | 510 - APPRAISER-Stan/Cam Schl Dist, improved & 1 acre or less |
| CF | Conservation Futures | 0.0316035091 | $568,931 | $568,931 | $17.98 | | |
| EMS1 | Fire & Rescue Dist #1 Camano GEN (EMS) | 0.3677864386 | $568,931 | $568,931 | $209.25 | | |
| FIRE1 | Fire & Rescue Dist #1 Camano GEN | 1.2502910536 | $568,931 | $568,931 | $711.33 | | |
| FIRE1BOND | Fire & Rescue Dist #1 Camano BOND | 0.1570001679 | $568,931 | $568,931 | $89.32 | | |
| CE | County Current Expense | 0.3708482477 | $568,931 | $568,931 | $210.99 | | |
| CR | County Roads | 0.4584763726 | $568,931 | $568,931 | $260.84 | | |
| LCIB | Library Sno-Isle BOND (Camano Island) | 0.0396325772 | $568,931 | $568,931 | $22.55 | | |
| LIB | Library Sno-Isle GEN | 0.3153421757 | $568,931 | $568,931 | $179.41 | | |
| SCH205_401 | School 205-401 Enrichment | 1.2698420524 | $568,931 | $568,931 | $722.45 | | |
| SCH205BOND | School 205-401 BOND | 0.9396497583 | $568,931 | $568,931 | $534.60 | | |
| ST | State School | 1.3035497053 | $568,931 | $568,931 | $741.63 | | |
| ST2 | State School Part 2 | 0.8169543533 | $568,931 | $568,931 | $464.79 | | |
| | Total Tax Rate: | 7.3209764117 | | | | | |
| | | | | Taxes w/Current Exemptions: | $4,165.14 | | |
| | | | | Taxes w/o Exemptions: | $4,165.14 | | |
Improvement / Building
| Improvement #1: | RESIDENTIAL | State Code: | Y | 2411.0 sqft | Value: | $318,931 |
| Bathrooms: | 2 | Bedrooms: | 3 | | Ceiling: | DRYWALL PAINTED | Exterior Wall/Cover: | WOOD SIDING | | Floor Covering: | HARDWOOD/CARP 20-80 | Floor Structure: | WOOD W/SUBFLOOR | | Foundation: | CONCRETE | Heating: | WALL HEAT ELECTRIC | | Interior Finish: | DRYWALL PAINT | Plumbing Fixture Cnt: | 9 | | Roof Slope: | 4" IN 12" | Roof Structure/Cover: | CJ ASPHALT |
|
| | Type | Description | Class CD | Sub Class CD | Year Built | Area |
| | BAS | BASE/MAIN FLOOR | 3 | 0 | 1997 | 1771.0 |
| | OWP | OPEN WOOD PORCH W/STEPS | 3 | 0 | 1997 | 60.0 |
| | OWP | OPEN WOOD PORCH W/STEPS | 3 | 0 | 1997 | 160.0 |
| | OWC | OPEN WOOD PORCH W/STEPS/ROOF/C | 3 | 0 | 1997 | 81.0 |
| | OWP | OPEN WOOD PORCH W/STEPS | 3 | 0 | 1997 | 96.0 |
| | DGR | DETACHED GARAGE | 3 | 0 | 1997 | 1280.0 |
| | LOF | LOFT | 3 | 0 | 1997 | 640.0 |
Sketch
Property Image
Land
| 1 | 15 | SQ (12001-21780) | 0.0000 | 0.00 | 0.00 | 0.00 | 1.00 | $250,000 | $0 |
Roll Value History
| 2026 | N/A | N/A | N/A | N/A | N/A |
| 2025 | $318,931 | $250,000 | $0 | $568,931 | $568,931 |
| 2024 | $322,762 | $240,000 | $0 | $562,762 | $562,762 |
| 2023 | $326,595 | $240,000 | $0 | $566,595 | $566,595 |
| 2022 | $299,212 | $210,000 | $0 | $509,212 | $509,212 |
| 2021 | $251,137 | $170,000 | $0 | $421,137 | $421,137 |
| 2020 | $245,359 | $130,000 | $0 | $375,359 | $375,359 |
| 2019 | $189,424 | $150,000 | $0 | $339,424 | $339,424 |
| 2018 | $189,982 | $125,000 | $0 | $314,982 | $314,982 |
| 2017 | $191,092 | $90,000 | $0 | $281,092 | $281,092 |
| 2016 | $193,314 | $75,000 | $0 | $268,314 | $268,314 |
| 2015 | $199,870 | $52,000 | $0 | $251,870 | $251,870 |
| 2014 | $201,671 | $52,000 | $0 | $253,671 | $253,671 |
| 2013 | $203,473 | $52,000 | $0 | $255,473 | $255,473 |
| 2012 | $205,274 | $52,000 | $0 | $257,274 | $257,274 |
| 2011 | $207,075 | $65,000 | $0 | $272,075 | $272,075 |
| 2010 | $213,523 | $84,000 | $0 | $297,523 | $297,523 |
| 2009 | $214,483 | $90,000 | $0 | $304,483 | $304,483 |
| 2008 | $217,084 | $90,000 | $0 | $307,084 | $307,084 |
| 2007 | $219,616 | $90,000 | $0 | $309,616 | $309,616 |
Deed and Sales History
| 1 | 12/18/2020 | WD | Warranty Deed | CLEARY, CHAD R & KRISTIE M | CLEARY, KELSEY | | | $393,750.00 | 46428 | 4506882 |
| 2 | 09/01/1997 | WD | Warranty Deed | FERY, SHAWN R | CLEARY, CHAD R | | | $119,950.00 | 73200 | 97015069 |
| 3 | 09/01/1997 | 5 | DNU - Marriage License/Name Change | CLEARY, CHAD R | RAVEN, HOMES & | | | $0.00 | 73199 | 97015068 |
| 4 | 04/01/1997 | BLA | DNU - Boundary Line Adjustment | FERY, SHAWN & | FERY, SHAWN R | | | $0.00 | 67354 | 97003306 |
| 5 | 03/01/1997 | WD | Warranty Deed | FERY, SHAWN R | FERY, SHAWN & | | | $20,000.00 | 70733 | 97003298 |
| 6 | 03/01/1997 | QCD | Quit Claim Deed | HARMKE, CHARLES | FERY, SHAWN R | | | $0.00 | 70971 | 97004418 |
| 7 | 03/01/1984 | WD | Warranty Deed | STEVENSON, CAROLINE F | HARMKE, CHARLES | | | $3,500.00 | 42045 | 84000680 |
| 8 | 10/01/1978 | OTHER | Other - Misc. Documents | Unknown | STEVENSON, CAROLINE F | | | $0.00 | 85274 | 341991 |
Payout Agreement
| No payout information available.. |