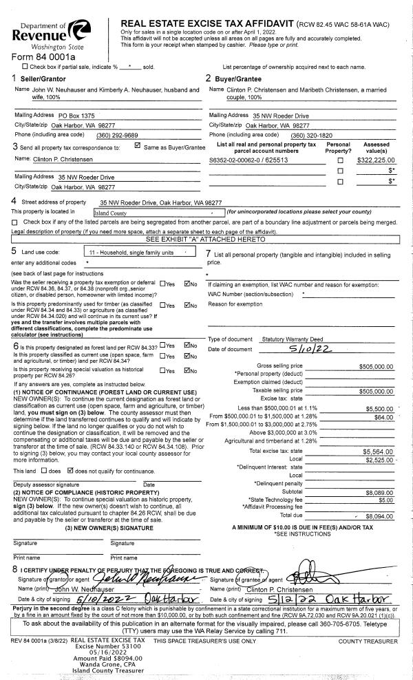
Property
Account |
| Property ID: | 310327 | Abbreviated Legal Description: | LOST LK GRV 2 LOT 27 BLK 2 |
| Geographic ID: | S7410-02-02027-0 | Agent Code: | |
| Type: | Real | | |
| Tax Area: | 510 - APPRAISER-Stan/Cam Schl Dist, improved & 1 acre or less | Land Use Code | 11 |
| Open Space: | N | DFL | N |
| Historic Property: | N | Remodel Property: | N |
| Multi-Family Redevelopment: | N | | |
| Township: | | Section: | |
| Range: | |
Location |
| Address: | 1449 RIDGE DR CAMANO ISLAND, WA 98282 | Mapsco: | |
| Neighborhood: | Cycle 5 | Map ID: | 505 |
| Neighborhood CD: | 5 |
Owner |
| Name: | STANG, HOLLY L | Owner ID: | 65479 |
| Mailing Address: | 1449 RIDGE DR CAMANO ISLAND, WA 98282-7615 | % Ownership: | 100.0000000000% |
| | | Exemptions: | |
Taxes and Assessment Details
Values
| (+) Improvement Homesite Value: | + | $0 | |
| (+) Improvement Non-Homesite Value: | + | $6,581 | |
| (+) Land Homesite Value: | + | $0 | |
| (+) Land Non-Homesite Value: | + | $250,000 | |
| (+) Curr Use (HS): | + | $0 | $0 |
| (+) Curr Use (NHS): | + | $0 | $0 |
| | | -------------------------- | |
| (=) Market Value: | = | $256,581 | |
| (–) Productivity Loss: | – | $0 | |
| | | -------------------------- | |
| (=) Subtotal: | = | $256,581 | |
| (+) Senior Appraised Value: | + | $0 | |
| (+) Non-Senior Appraised Value: | + | $256,581 | |
| | | -------------------------- | |
| (=) Total Appraised Value: | = | $256,581 | |
| (–) Senior Exemption Loss: | – | $0 | |
| (–) Exemption Loss: | – | $0 | |
| | | -------------------------- | |
| (=) Taxable Value: | = | $256,581 | |
Taxing Jurisdiction
| Owner: | STANG, HOLLY L | | |
| % Ownership: | 100.0000000000% | | |
| Total Value: | $256,581 | | |
| Tax Area: | 510 - APPRAISER-Stan/Cam Schl Dist, improved & 1 acre or less |
| CF | Conservation Futures | 0.0316035091 | $256,581 | $256,581 | $8.11 | | |
| EMS1 | Fire & Rescue Dist #1 Camano GEN (EMS) | 0.3677864386 | $256,581 | $256,581 | $94.37 | | |
| FIRE1 | Fire & Rescue Dist #1 Camano GEN | 1.2502910536 | $256,581 | $256,581 | $320.80 | | |
| FIRE1BOND | Fire & Rescue Dist #1 Camano BOND | 0.1570001679 | $256,581 | $256,581 | $40.28 | | |
| CE | County Current Expense | 0.3708482477 | $256,581 | $256,581 | $95.15 | | |
| CR | County Roads | 0.4584763726 | $256,581 | $256,581 | $117.64 | | |
| LCIB | Library Sno-Isle BOND (Camano Island) | 0.0396325772 | $256,581 | $256,581 | $10.17 | | |
| LIB | Library Sno-Isle GEN | 0.3153421757 | $256,581 | $256,581 | $80.91 | | |
| SCH205_401 | School 205-401 Enrichment | 1.2698420524 | $256,581 | $256,581 | $325.82 | | |
| SCH205BOND | School 205-401 BOND | 0.9396497583 | $256,581 | $256,581 | $241.10 | | |
| ST | State School | 1.3035497053 | $256,581 | $256,581 | $334.47 | | |
| ST2 | State School Part 2 | 0.8169543533 | $256,581 | $256,581 | $209.61 | | |
| | Total Tax Rate: | 7.3209764117 | | | | | |
| | | | | Taxes w/Current Exemptions: | $1,878.43 | | |
| | | | | Taxes w/o Exemptions: | $1,878.43 | | |
Improvement / Building
| Improvement #1: | MANUFACTURED HOME | State Code: | Y | 728.0 sqft | Value: | $6,581 |
| Bathrooms: | 0 | Bedrooms: | 0 | | Ceiling: | PLASTER PAINTED | Cooling: | EVAP NO DUCT | | Exterior Wall/Cover: | VINYL | Floor Covering: | CARPET 100% | | Floor Structure: | SLAB ON GRADE | Foundation: | SLAB | | Heating: | FHA ELECTRIC | Interior Finish: | PLASTER | | Plumbing Fixture Cnt: | 1 | Roof Slope: | FLAT | | Roof Structure/Cover: | CJ ALUMINIUM HEAVY |   |   |
|
| | Type | Description | Class CD | Sub Class CD | Year Built | Area |
| | BAS | BASE/MAIN FLOOR | 3 | 0 | 1979 | 728.0 |
| | OWR | OPEN WOOD PORCH W/STEPS/ROOF | 3 | 0 | 1979 | 96.0 |
Sketch
Property Image
Land
| 1 | 15 | SQ (12001-21780) | 0.0000 | 0.00 | 0.00 | 0.00 | 1.00 | $250,000 | $0 |
Roll Value History
| 2026 | N/A | N/A | N/A | N/A | N/A |
| 2025 | $6,581 | $250,000 | $0 | $256,581 | $256,581 |
| 2024 | $6,581 | $240,000 | $0 | $246,581 | $246,581 |
| 2023 | $7,239 | $240,000 | $0 | $247,239 | $247,239 |
| 2022 | $7,152 | $210,000 | $0 | $217,152 | $217,152 |
| 2021 | $6,388 | $170,000 | $0 | $176,388 | $176,388 |
| 2020 | $6,697 | $130,000 | $0 | $136,697 | $136,697 |
| 2019 | $5,471 | $150,000 | $0 | $155,471 | $155,471 |
| 2018 | $5,861 | $125,000 | $0 | $130,861 | $130,861 |
| 2017 | $6,057 | $90,000 | $0 | $96,057 | $96,057 |
| 2016 | $6,447 | $75,000 | $0 | $81,447 | $81,447 |
| 2015 | $10,633 | $52,000 | $0 | $62,633 | $62,633 |
| 2014 | $11,139 | $52,000 | $0 | $63,139 | $63,139 |
| 2013 | $11,476 | $52,000 | $0 | $63,476 | $63,476 |
| 2012 | $11,814 | $52,000 | $0 | $63,814 | $63,814 |
| 2011 | $12,151 | $65,000 | $0 | $77,151 | $77,151 |
| 2010 | $10,701 | $84,000 | $0 | $94,701 | $94,701 |
| 2009 | $13,820 | $90,000 | $0 | $103,820 | $103,820 |
| 2008 | $14,056 | $90,000 | $0 | $104,056 | $104,056 |
| 2007 | $14,471 | $90,000 | $0 | $104,471 | $104,471 |
Deed and Sales History
| 1 | 06/01/1994 | OTHER | Other - Misc. Documents | STANG, HOLLY L | STANG, HOLLY L | | | $10,446.00 | 42547 | 0 |
| 2 | 06/01/1994 | WD | Warranty Deed | MORLEY, DAVID R | STANG, HOLLY L | | | $36,554.00 | 42546 | 94014181 |
| 3 | 07/01/1991 | OTHER | Other - Misc. Documents | MORLEY, DAVID R | MORLEY, DAVID R | | | $10,980.00 | 12518 | 0 |
| 4 | 07/01/1991 | WD | Warranty Deed | CABANA, ALFRED E | MORLEY, DAVID R | | | $35,120.00 | 12519 | 91010714 |
| 5 | 11/01/1990 | OTHER | Other - Misc. Documents | CABANA, ALFRED E | CABANA, ALFRED E | | | $11,124.00 | 6098 | 0 |
| 6 | 10/01/1990 | WD | Warranty Deed | CAMERON, GLORIA | CABANA, ALFRED E | | | $31,376.00 | 6097 | 90020755 |
| 7 | 06/01/1981 | OTHER | Other - Misc. Documents | CAMERON, GLORIA | CAMERON, GLORIA | | | $1.00 | 11925 | 0 |
| 8 | 04/01/1981 | CD | DNU - Correction Deed | FRANK, VICTOR L | CAMERON, GLORIA | | | $1.00 | 11273 | 382333 |
| 9 | 08/01/1979 | TRUSTEED | Trustee's Deed | CAMCO, INVESTMENTS I | FRANK, VICTOR L | | | $7,500.00 | 94312 | 358095 |
| 10 | 04/01/1979 | OTHER | Other - Misc. Documents | CAMCO, INVESTMENTS I | CAMCO, INVESTMENTS I | | | $4,700.00 | 920620 | 3518740 |
| 11 | 04/01/1979 | OTHER | Other - Misc. Documents | CAMERON, GLORIA | CAMCO, INVESTMENTS I | | | $4,700.00 | 920620 | 3518740 |
| 12 | 01/01/1900 | OTHER | Other - Misc. Documents | Unknown | CAMERON, GLORIA | | | $13,165.00 | 0 | 0 |
Payout Agreement
| No payout information available.. |