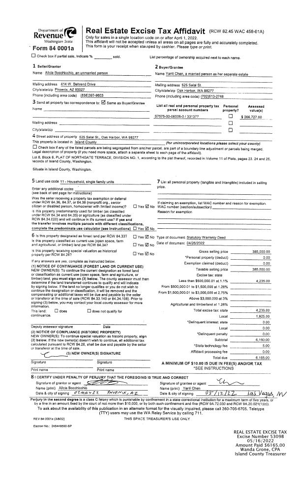
Property
Account |
| Property ID: | 310336 | Abbreviated Legal Description: | LOST LK GRV 2 LOT 28 BLK 2 |
| Geographic ID: | S7410-02-02028-0 | Agent Code: | |
| Type: | Real | | |
| Tax Area: | 510 - APPRAISER-Stan/Cam Schl Dist, improved & 1 acre or less | Land Use Code | 11 |
| Open Space: | N | DFL | N |
| Historic Property: | N | Remodel Property: | N |
| Multi-Family Redevelopment: | N | | |
| Township: | | Section: | |
| Range: | |
Location |
| Address: | 1445 RIDGE DR CAMANO ISLAND, WA 98282 | Mapsco: | |
| Neighborhood: | Cycle 5 | Map ID: | 505 |
| Neighborhood CD: | 5 |
Owner |
| Name: | PADGETT, TYLER J | Owner ID: | 271347 |
| Mailing Address: | JENNIFER E PADGETT 1445 RIDGE DR CAMANO ISLAND, WA 98282 | % Ownership: | 100.0000000000% |
| | | Exemptions: | |
Taxes and Assessment Details
Values
| (+) Improvement Homesite Value: | + | $0 | |
| (+) Improvement Non-Homesite Value: | + | $230,121 | |
| (+) Land Homesite Value: | + | $0 | |
| (+) Land Non-Homesite Value: | + | $250,000 | |
| (+) Curr Use (HS): | + | $0 | $0 |
| (+) Curr Use (NHS): | + | $0 | $0 |
| | | -------------------------- | |
| (=) Market Value: | = | $480,121 | |
| (–) Productivity Loss: | – | $0 | |
| | | -------------------------- | |
| (=) Subtotal: | = | $480,121 | |
| (+) Senior Appraised Value: | + | $0 | |
| (+) Non-Senior Appraised Value: | + | $480,121 | |
| | | -------------------------- | |
| (=) Total Appraised Value: | = | $480,121 | |
| (–) Senior Exemption Loss: | – | $0 | |
| (–) Exemption Loss: | – | $0 | |
| | | -------------------------- | |
| (=) Taxable Value: | = | $480,121 | |
Taxing Jurisdiction
| Owner: | PADGETT, TYLER J | | |
| % Ownership: | 100.0000000000% | | |
| Total Value: | $480,121 | | |
| Tax Area: | 510 - APPRAISER-Stan/Cam Schl Dist, improved & 1 acre or less |
| CF | Conservation Futures | 0.0316035091 | $480,121 | $480,121 | $15.17 | | |
| EMS1 | Fire & Rescue Dist #1 Camano GEN (EMS) | 0.3677864386 | $480,121 | $480,121 | $176.58 | | |
| FIRE1 | Fire & Rescue Dist #1 Camano GEN | 1.2502910536 | $480,121 | $480,121 | $600.29 | | |
| FIRE1BOND | Fire & Rescue Dist #1 Camano BOND | 0.1570001679 | $480,121 | $480,121 | $75.38 | | |
| CE | County Current Expense | 0.3708482477 | $480,121 | $480,121 | $178.05 | | |
| CR | County Roads | 0.4584763726 | $480,121 | $480,121 | $220.12 | | |
| LCIB | Library Sno-Isle BOND (Camano Island) | 0.0396325772 | $480,121 | $480,121 | $19.03 | | |
| LIB | Library Sno-Isle GEN | 0.3153421757 | $480,121 | $480,121 | $151.40 | | |
| SCH205_401 | School 205-401 Enrichment | 1.2698420524 | $480,121 | $480,121 | $609.68 | | |
| SCH205BOND | School 205-401 BOND | 0.9396497583 | $480,121 | $480,121 | $451.15 | | |
| ST | State School | 1.3035497053 | $480,121 | $480,121 | $625.86 | | |
| ST2 | State School Part 2 | 0.8169543533 | $480,121 | $480,121 | $392.24 | | |
| | Total Tax Rate: | 7.3209764117 | | | | | |
| | | | | Taxes w/Current Exemptions: | $3,514.95 | | |
| | | | | Taxes w/o Exemptions: | $3,514.95 | | |
Improvement / Building
| Improvement #1: | RESIDENTIAL | State Code: | Y | 1420.0 sqft | Value: | $230,121 |
| Bathrooms: | 2 | Bedrooms: | 2 | | Ceiling: | DRYWALL PAINTED | Exterior Wall/Cover: | WOOD SIDING | | Floor Covering: | CARPET/VINYL 20-80 | Floor Structure: | WOOD W/SUBFLOOR | | Foundation: | CONCRETE | Heating: | BASEBOARD ELECTRIC | | Interior Finish: | DRYWALL PAINT | Plumbing Fixture Cnt: | 9 | | Roof Slope: | 8" IN 12" | Roof Structure/Cover: | CJ ALUMINIUM HEAVY |
|
| | Type | Description | Class CD | Sub Class CD | Year Built | Area |
| | BAS | BASE/MAIN FLOOR | 3 | 0 | 1983 | 1108.0 |
| | OWP | OPEN WOOD PORCH W/STEPS | 3 | 0 | 1983 | 476.0 |
| | OWR | OPEN WOOD PORCH W/STEPS/ROOF | 3 | 0 | 1983 | 192.0 |
| | UTY | STORAGE/UTILITY | 3 | 0 | 1983 | 78.0 |
| | DGR | DETACHED GARAGE | 3 | 0 | 1983 | 572.0 |
| | LOF | LOFT | 3 | 0 | 1983 | 312.0 |
Sketch
Property Image
Land
| 1 | 15 | SQ (12001-21780) | 0.0000 | 0.00 | 0.00 | 0.00 | 1.00 | $250,000 | $0 |
Roll Value History
| 2026 | N/A | N/A | N/A | N/A | N/A |
| 2025 | $230,121 | $250,000 | $0 | $480,121 | $480,121 |
| 2024 | $237,790 | $240,000 | $0 | $477,790 | $477,790 |
| 2023 | $240,908 | $240,000 | $0 | $480,908 | $480,908 |
| 2022 | $220,969 | $210,000 | $0 | $430,969 | $430,969 |
| 2021 | $191,679 | $170,000 | $0 | $361,679 | $361,679 |
| 2020 | $186,956 | $130,000 | $0 | $316,956 | $316,956 |
| 2019 | $134,313 | $150,000 | $0 | $284,313 | $284,313 |
| 2018 | $134,736 | $125,000 | $0 | $259,736 | $84,911 |
| 2017 | $135,583 | $90,000 | $0 | $225,583 | $84,911 |
| 2016 | $137,278 | $75,000 | $0 | $212,278 | $84,911 |
| 2015 | $97,701 | $52,000 | $0 | $149,701 | $149,701 |
| 2014 | $99,073 | $52,000 | $0 | $151,073 | $151,073 |
| 2013 | $100,443 | $52,000 | $0 | $152,443 | $152,443 |
| 2012 | $101,816 | $52,000 | $0 | $153,816 | $153,816 |
| 2011 | $103,185 | $65,000 | $0 | $168,185 | $168,185 |
| 2010 | $109,506 | $84,000 | $0 | $193,506 | $193,506 |
| 2009 | $115,736 | $90,000 | $0 | $205,736 | $205,736 |
| 2008 | $115,749 | $90,000 | $0 | $205,749 | $205,749 |
| 2007 | $117,227 | $90,000 | $0 | $207,227 | $207,227 |
Deed and Sales History
| 1 | 07/06/2015 | WD | Warranty Deed | ROBERTS, ROBIN H | PADGETT, TYLER J | | | $210,000.00 | 20380 | 4381812 |
| 2 | 03/01/1990 | WD | Warranty Deed | DAVID, KEN R | ROBERTS, ROBIN H | | | $61,000.00 | 1537 | 90004938 |
| 3 | 07/01/1984 | WD | Warranty Deed | KVAM, ERIC L | DAVID, KEN R | | | $52,000.00 | 42126 | 84000997 |
| 4 | 01/01/1982 | TRUSTEED | Trustee's Deed | VIRGIL, ROY L | KVAM, ERIC L | | | $5,000.00 | 20232 | 392633 |
| 5 | 01/01/1900 | OTHER | Other - Misc. Documents | Unknown | VIRGIL, ROY L | | | $0.00 | 0 | 0 |
Payout Agreement
| No payout information available.. |