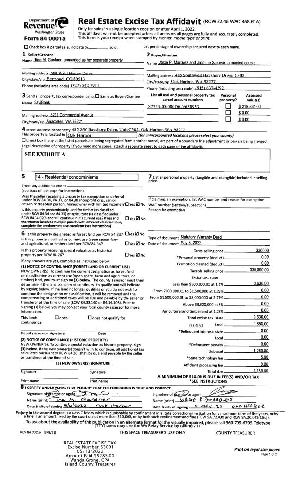
Property
Account |
| Property ID: | 310434 | Abbreviated Legal Description: | LOST LK GRV 2 LOT 5 BLK 3 |
| Geographic ID: | S7410-02-03005-0 | Agent Code: | |
| Type: | Real | | |
| Tax Area: | 510 - APPRAISER-Stan/Cam Schl Dist, improved & 1 acre or less | Land Use Code | 11 |
| Open Space: | N | DFL | N |
| Historic Property: | N | Remodel Property: | N |
| Multi-Family Redevelopment: | N | | |
| Township: | | Section: | |
| Range: | |
Location |
| Address: | 1466 RIDGE DR CAMANO ISLAND, WA 98282 | Mapsco: | |
| Neighborhood: | Cycle 5 | Map ID: | 505 |
| Neighborhood CD: | 5 |
Owner |
| Name: | BOYD, MARIE A | Owner ID: | 258534 |
| Mailing Address: | 1466 RIDGE DR CAMANO ISLAND, WA 98282-7615 | % Ownership: | 100.0000000000% |
| | | Exemptions: | SNR/DSBL |
Taxes and Assessment Details
Values
| (+) Improvement Homesite Value: | + | $192,629 | |
| (+) Improvement Non-Homesite Value: | + | $0 | |
| (+) Land Homesite Value: | + | $250,000 | |
| (+) Land Non-Homesite Value: | + | $0 | |
| (+) Curr Use (HS): | + | $0 | $0 |
| (+) Curr Use (NHS): | + | $0 | $0 |
| | | -------------------------- | |
| (=) Market Value: | = | $442,629 | |
| (–) Productivity Loss: | – | $0 | |
| | | -------------------------- | |
| (=) Subtotal: | = | $442,629 | |
| (+) Senior Appraised Value: | + | $231,212 | |
| (+) Non-Senior Appraised Value: | + | $0 | |
| | | -------------------------- | |
| (=) Total Appraised Value: | = | $231,212 | |
| (–) Senior Exemption Loss: | – | $138,727 | |
| (–) Exemption Loss: | – | $0 | |
| | | -------------------------- | |
| (=) Taxable Value: | = | $92,485 | |
Taxing Jurisdiction
| Owner: | BOYD, MARIE A | | |
| % Ownership: | 100.0000000000% | | |
| Total Value: | $442,629 | | |
| Tax Area: | 510 - APPRAISER-Stan/Cam Schl Dist, improved & 1 acre or less |
| CF | Conservation Futures | 0.0316035091 | $442,629 | $92,485 | $2.92 | | |
| EMS1 | Fire & Rescue Dist #1 Camano GEN (EMS) | 0.3677864386 | $442,629 | $92,485 | $34.01 | | |
| FIRE1 | Fire & Rescue Dist #1 Camano GEN | 1.2502910536 | $442,629 | $92,485 | $115.63 | | |
| FIRE1BOND | Fire & Rescue Dist #1 Camano BOND | 0.0000000000 | $442,629 | $0 | $0.00 | | |
| CE | County Current Expense | 0.3708482477 | $442,629 | $92,485 | $34.30 | | |
| CR | County Roads | 0.4584763726 | $442,629 | $92,485 | $42.40 | | |
| LCIB | Library Sno-Isle BOND (Camano Island) | 0.0000000000 | $442,629 | $0 | $0.00 | | |
| LIB | Library Sno-Isle GEN | 0.3153421757 | $442,629 | $92,485 | $29.16 | | |
| SCH205_401 | School 205-401 Enrichment | 0.0000000000 | $442,629 | $0 | $0.00 | | |
| SCH205BOND | School 205-401 BOND | 0.0000000000 | $442,629 | $0 | $0.00 | | |
| ST | State School | 1.3035497053 | $442,629 | $92,485 | $120.56 | | |
| ST2 | State School Part 2 | 0.0000000000 | $442,629 | $0 | $0.00 | | |
| | Total Tax Rate: | 4.0978975026 | | | | | |
| | | | | Taxes w/Current Exemptions: | $378.98 | | |
| | | | | Taxes w/o Exemptions: | $3,240.48 | | |
Improvement / Building
| Improvement #1: | RESIDENTIAL | State Code: | Y | 1043.5 sqft | Value: | $192,629 |
| Bathrooms: | 2 | Bedrooms: | 3 | | Ceiling: | DRYWALL PAINTED | Exterior Wall/Cover: | CEMENT FIBER | | Floor Covering: | CARPET/VINYL 80-20 | Floor Structure: | WOOD W/SUBFLOOR | | Foundation: | CONCRETE | Heating: | WALL HEAT ELECTRIC | | Interior Finish: | DRYWALL PAINT | Plumbing Fixture Cnt: | 8 | | Roof Slope: | 4" IN 12" | Roof Structure/Cover: | CJ ASPHALT |
|
| | Type | Description | Class CD | Sub Class CD | Year Built | Area |
| | BAS | BASE/MAIN FLOOR | 3 | 0 | 1998 | 1043.5 |
| | AGR | ATTACHED GARAGE | 3 | 0 | 1998 | 550.0 |
| | OWP | OPEN WOOD PORCH W/STEPS | 3 | 0 | 1998 | 203.6 |
| | OWP | OPEN WOOD PORCH W/STEPS | 3 | 0 | 1998 | 36.0 |
Sketch
Property Image
Land
| 1 | 15 | SQ (12001-21780) | 0.0000 | 0.00 | 0.00 | 0.00 | 1.00 | $250,000 | $0 |
Roll Value History
| 2026 | N/A | N/A | N/A | N/A | N/A |
| 2025 | $192,629 | $250,000 | $0 | $442,629 | $92,485 |
| 2024 | $195,057 | $240,000 | $0 | $435,057 | $92,485 |
| 2023 | $197,489 | $240,000 | $0 | $437,489 | $92,485 |
| 2022 | $181,035 | $210,000 | $0 | $391,035 | $92,485 |
| 2021 | $155,504 | $170,000 | $0 | $325,504 | $92,485 |
| 2020 | $151,181 | $130,000 | $0 | $281,181 | $92,485 |
| 2019 | $105,894 | $150,000 | $0 | $255,894 | $92,485 |
| 2018 | $106,212 | $125,000 | $0 | $231,212 | $92,485 |
| 2017 | $106,779 | $90,000 | $0 | $196,779 | $196,779 |
| 2016 | $108,050 | $75,000 | $0 | $183,050 | $183,050 |
| 2015 | $111,972 | $52,000 | $0 | $163,972 | $163,972 |
| 2014 | $113,260 | $52,000 | $0 | $165,260 | $165,260 |
| 2013 | $114,547 | $52,000 | $0 | $166,547 | $166,547 |
| 2012 | $115,835 | $52,000 | $0 | $167,835 | $167,835 |
| 2011 | $117,124 | $65,000 | $0 | $182,124 | $182,124 |
| 2010 | $121,764 | $84,000 | $0 | $205,764 | $205,764 |
| 2009 | $124,396 | $90,000 | $0 | $214,396 | $214,396 |
| 2008 | $124,553 | $90,000 | $0 | $214,553 | $214,553 |
| 2007 | $125,978 | $90,000 | $0 | $215,978 | $215,978 |
Deed and Sales History
| 1 | 07/11/2012 | WD | Warranty Deed | KEATING, PETER H | BOYD, MARIE A | | | $155,500.00 | 8194 | 4319050 |
| 2 | 05/14/2004 | WD | Warranty Deed | MCMARTIN, DAVID | KEATING, PETER H | | | $156,000.00 | 42113 | 4101124 |
| 3 | 09/08/1998 | WD | Warranty Deed | WITHERS, JOHN & | MCMARTIN, DAVID | | | $104,950.00 | 83702 | 98019342 |
| 4 | 06/01/1996 | WD | Warranty Deed | NYLAND, ORWALD E | WITHERS, JOHN & | | | $20,000.00 | 62221 | 96011012 |
| 5 | 08/01/1988 | WD | Warranty Deed | NYLAND, ORWALD E | NYLAND, ORWALD E | | | $7,500.00 | 83035 | 88011314 |
| 6 | 08/01/1988 | QCD | Quit Claim Deed | WELCH, FLOYD M | NYLAND, ORWALD E | | | $0.00 | 83036 | 88011315 |
| 7 | 08/01/1986 | WD | Warranty Deed | HIGHLAND, ROBERT W | WELCH, FLOYD M | | | $5,000.00 | 62144 | 86009958 |
| 8 | 01/01/1900 | OTHER | Other - Misc. Documents | Unknown | HIGHLAND, ROBERT W | | | $0.00 | 0 | 0 |
Payout Agreement
| No payout information available.. |