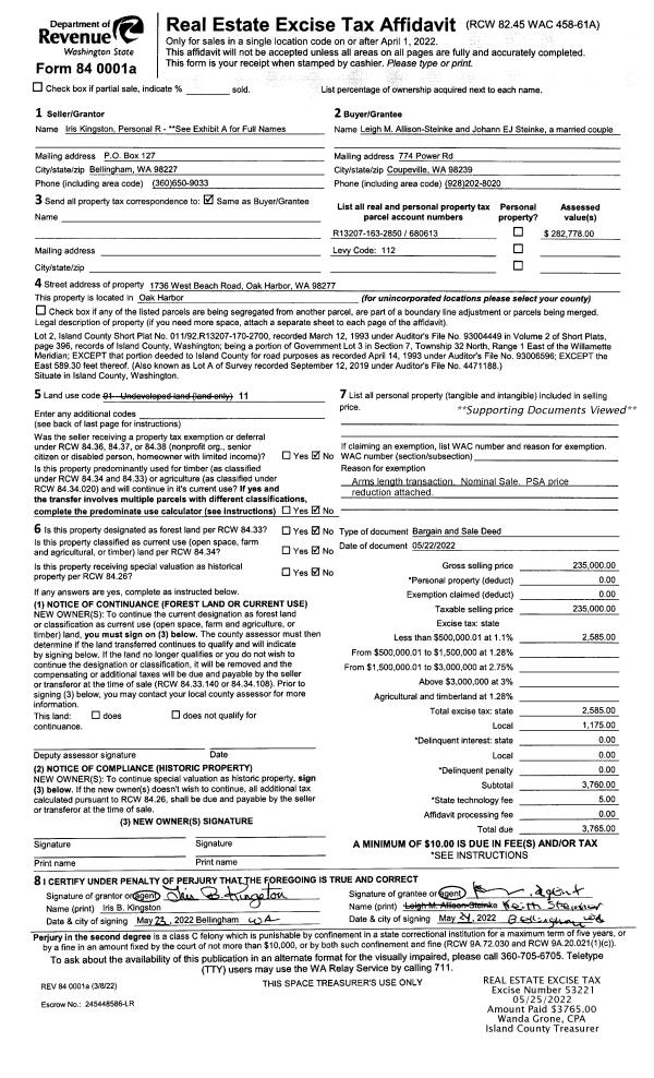
Property
Account |
| Property ID: | 310568 | Abbreviated Legal Description: | LOST LK GRV 2 LOT 2 BLK 4 |
| Geographic ID: | S7410-02-04002-0 | Agent Code: | |
| Type: | Real | | |
| Tax Area: | 510 - APPRAISER-Stan/Cam Schl Dist, improved & 1 acre or less | Land Use Code | 11 |
| Open Space: | N | DFL | N |
| Historic Property: | N | Remodel Property: | N |
| Multi-Family Redevelopment: | N | | |
| Township: | | Section: | |
| Range: | |
Location |
| Address: | 1851 LAKE DR CAMANO ISLAND, WA 98282 | Mapsco: | |
| Neighborhood: | Cycle 5 | Map ID: | 505 |
| Neighborhood CD: | 5 |
Owner |
| Name: | WESTBROOK, LORRAINE | Owner ID: | 264923 |
| Mailing Address: | 1851 LAKE DR CAMANO ISLAND, WA 98282 | % Ownership: | 100.0000000000% |
| | | Exemptions: | |
Taxes and Assessment Details
Values
| (+) Improvement Homesite Value: | + | $0 | |
| (+) Improvement Non-Homesite Value: | + | $137,131 | |
| (+) Land Homesite Value: | + | $0 | |
| (+) Land Non-Homesite Value: | + | $290,000 | |
| (+) Curr Use (HS): | + | $0 | $0 |
| (+) Curr Use (NHS): | + | $0 | $0 |
| | | -------------------------- | |
| (=) Market Value: | = | $427,131 | |
| (–) Productivity Loss: | – | $0 | |
| | | -------------------------- | |
| (=) Subtotal: | = | $427,131 | |
| (+) Senior Appraised Value: | + | $0 | |
| (+) Non-Senior Appraised Value: | + | $427,131 | |
| | | -------------------------- | |
| (=) Total Appraised Value: | = | $427,131 | |
| (–) Senior Exemption Loss: | – | $0 | |
| (–) Exemption Loss: | – | $0 | |
| | | -------------------------- | |
| (=) Taxable Value: | = | $427,131 | |
Taxing Jurisdiction
| Owner: | WESTBROOK, LORRAINE | | |
| % Ownership: | 100.0000000000% | | |
| Total Value: | $427,131 | | |
| Tax Area: | 510 - APPRAISER-Stan/Cam Schl Dist, improved & 1 acre or less |
| CF | Conservation Futures | 0.0316035091 | $427,131 | $427,131 | $13.50 | | |
| EMS1 | Fire & Rescue Dist #1 Camano GEN (EMS) | 0.3677864386 | $427,131 | $427,131 | $157.09 | | |
| FIRE1 | Fire & Rescue Dist #1 Camano GEN | 1.2502910536 | $427,131 | $427,131 | $534.04 | | |
| FIRE1BOND | Fire & Rescue Dist #1 Camano BOND | 0.1570001679 | $427,131 | $427,131 | $67.06 | | |
| CE | County Current Expense | 0.3708482477 | $427,131 | $427,131 | $158.40 | | |
| CR | County Roads | 0.4584763726 | $427,131 | $427,131 | $195.83 | | |
| LCIB | Library Sno-Isle BOND (Camano Island) | 0.0396325772 | $427,131 | $427,131 | $16.93 | | |
| LIB | Library Sno-Isle GEN | 0.3153421757 | $427,131 | $427,131 | $134.69 | | |
| SCH205_401 | School 205-401 Enrichment | 1.2698420524 | $427,131 | $427,131 | $542.39 | | |
| SCH205BOND | School 205-401 BOND | 0.9396497583 | $427,131 | $427,131 | $401.35 | | |
| ST | State School | 1.3035497053 | $427,131 | $427,131 | $556.79 | | |
| ST2 | State School Part 2 | 0.8169543533 | $427,131 | $427,131 | $348.95 | | |
| | Total Tax Rate: | 7.3209764117 | | | | | |
| | | | | Taxes w/Current Exemptions: | $3,127.02 | | |
| | | | | Taxes w/o Exemptions: | $3,127.02 | | |
Improvement / Building
| Improvement #1: | RESIDENTIAL | State Code: | Y | 976.0 sqft | Value: | $137,131 |
| Bathrooms: | 1 | Bedrooms: | 3 | | Ceiling: | BEAM PAINTED | Exterior Wall/Cover: | PLY/HARDBOARD T-111 | | Floor Covering: | HARDWOOD/CARP 20-80 | Floor Structure: | WOOD W/SUBFLOOR | | Foundation: | CONCRETE BLOCKS | Heating: | BASEBOARD ELECTRIC | | Interior Finish: | DRYWALL PAINT | Plumbing Fixture Cnt: | 5 | | Roof Slope: | 12" IN 12" | Roof Structure/Cover: | BEAM WOOD SHAKES |
|
| | Type | Description | Class CD | Sub Class CD | Year Built | Area |
| | BAS | BASE/MAIN FLOOR | 3 | 0 | 1968 | 520.0 |
| | DWN | DOWNSTAIRS LIVING AREA | 3 | 0 | 1968 | 336.0 |
| | OWP | OPEN WOOD PORCH W/STEPS | 3 | 0 | 1968 | 856.0 |
| | LOF | LOFT | 3 | 0 | 1968 | 120.0 |
Sketch
Property Image
Land
| 1 | 15 | SQ (12001-21780) | 0.0000 | 0.00 | 0.00 | 0.00 | 1.00 | $290,000 | $0 |
Roll Value History
| 2026 | N/A | N/A | N/A | N/A | N/A |
| 2025 | $137,131 | $290,000 | $0 | $427,131 | $427,131 |
| 2024 | $139,472 | $280,000 | $0 | $419,472 | $419,472 |
| 2023 | $141,457 | $270,000 | $0 | $411,457 | $411,457 |
| 2022 | $129,883 | $270,000 | $0 | $399,883 | $399,883 |
| 2021 | $108,251 | $190,000 | $0 | $298,251 | $298,251 |
| 2020 | $105,871 | $150,000 | $0 | $255,871 | $255,871 |
| 2019 | $76,118 | $180,000 | $0 | $256,118 | $256,118 |
| 2018 | $76,384 | $150,000 | $0 | $226,384 | $226,384 |
| 2017 | $76,919 | $100,000 | $0 | $176,919 | $176,919 |
| 2016 | $77,987 | $100,000 | $0 | $177,987 | $177,987 |
| 2015 | $41,136 | $52,000 | $0 | $93,136 | $93,136 |
| 2014 | $41,927 | $52,000 | $0 | $93,927 | $93,927 |
| 2013 | $42,718 | $64,000 | $0 | $106,718 | $106,718 |
| 2012 | $43,510 | $64,000 | $0 | $107,510 | $107,510 |
| 2011 | $44,299 | $80,000 | $0 | $124,299 | $124,299 |
| 2010 | $47,747 | $90,000 | $0 | $137,747 | $137,747 |
| 2009 | $42,518 | $90,000 | $0 | $132,518 | $132,518 |
| 2008 | $43,193 | $115,000 | $0 | $158,193 | $158,193 |
| 2007 | $43,868 | $115,000 | $0 | $158,868 | $158,868 |
Deed and Sales History
| 1 | 12/09/2013 | QCD | Quit Claim Deed | WESTBROOK, PHILLIP E | WESTBROOK, LORRAINE | | | $0.00 | 14076 | 4354230 |
| 2 | 07/15/2011 | WD | Warranty Deed | WESTBROOK, RUTH M | WESTBROOK, PHILLIP E | | | $0.00 | 5001 | 4298335 |
| 3 | 02/01/1993 | QCD | Quit Claim Deed | WESTBROOK, ELMER | WESTBROOK, RUTH | | | $0.00 | 30576 | 93003081 |
| 4 | 07/01/1984 | WD | Warranty Deed | MARTIN, RICHARD N | WESTBROOK, ELMER | | | $34,900.00 | 42181 | 84001157 |
| 5 | 01/01/1900 | OTHER | Other - Misc. Documents | Unknown | MARTIN, RICHARD N | | | $0.00 | 0 | 0 |
Payout Agreement
| No payout information available.. |