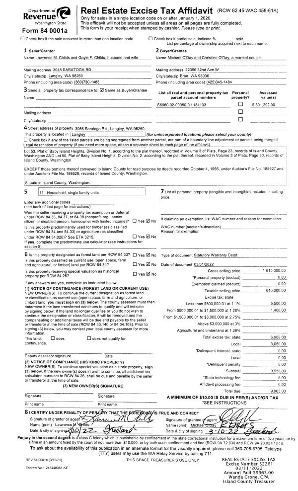
Property
Account |
| Property ID: | 310817 | Abbreviated Legal Description: | LOST LK GRV 3 LOTS 1 & 2 BLK 2 |
| Geographic ID: | S7410-03-02001-0 | Agent Code: | |
| Type: | Real | | |
| Tax Area: | 510 - APPRAISER-Stan/Cam Schl Dist, improved & 1 acre or less | Land Use Code | 11 |
| Open Space: | N | DFL | N |
| Historic Property: | N | Remodel Property: | N |
| Multi-Family Redevelopment: | N | | |
| Township: | | Section: | |
| Range: | |
Location |
| Address: | 29 BIRCH LN CAMANO ISLAND, WA 98282 | Mapsco: | |
| Neighborhood: | Cycle 5 | Map ID: | 505 |
| Neighborhood CD: | 5 |
Owner |
| Name: | CHERRY JTWROS, NANCY | Owner ID: | 308349 |
| Mailing Address: | VANESSA FOX JTWROS 29 BIRCH LANE CAMANO ISLAND, WA 98282 | % Ownership: | 100.0000000000% |
| | | Exemptions: | SNR/DSBL |
Taxes and Assessment Details
Values
| (+) Improvement Homesite Value: | + | $65,481 | |
| (+) Improvement Non-Homesite Value: | + | $0 | |
| (+) Land Homesite Value: | + | $250,000 | |
| (+) Land Non-Homesite Value: | + | $0 | |
| (+) Curr Use (HS): | + | $0 | $0 |
| (+) Curr Use (NHS): | + | $0 | $0 |
| | | -------------------------- | |
| (=) Market Value: | = | $315,481 | |
| (–) Productivity Loss: | – | $0 | |
| | | -------------------------- | |
| (=) Subtotal: | = | $315,481 | |
| (+) Senior Appraised Value: | + | $303,372 | |
| (+) Non-Senior Appraised Value: | + | $0 | |
| | | -------------------------- | |
| (=) Total Appraised Value: | = | $303,372 | |
| (–) Senior Exemption Loss: | – | $182,023 | |
| (–) Exemption Loss: | – | $0 | |
| | | -------------------------- | |
| (=) Taxable Value: | = | $121,349 | |
Taxing Jurisdiction
| Owner: | CHERRY JTWROS, NANCY | | |
| % Ownership: | 100.0000000000% | | |
| Total Value: | $315,481 | | |
| Tax Area: | 510 - APPRAISER-Stan/Cam Schl Dist, improved & 1 acre or less |
| CF | Conservation Futures | 0.0316035091 | $315,481 | $121,349 | $3.84 | | |
| EMS1 | Fire & Rescue Dist #1 Camano GEN (EMS) | 0.3677864386 | $315,481 | $121,349 | $44.63 | | |
| FIRE1 | Fire & Rescue Dist #1 Camano GEN | 1.2502910536 | $315,481 | $121,349 | $151.72 | | |
| FIRE1BOND | Fire & Rescue Dist #1 Camano BOND | 0.0000000000 | $315,481 | $0 | $0.00 | | |
| CE | County Current Expense | 0.3708482477 | $315,481 | $121,349 | $45.00 | | |
| CR | County Roads | 0.4584763726 | $315,481 | $121,349 | $55.64 | | |
| LCIB | Library Sno-Isle BOND (Camano Island) | 0.0000000000 | $315,481 | $0 | $0.00 | | |
| LIB | Library Sno-Isle GEN | 0.3153421757 | $315,481 | $121,349 | $38.27 | | |
| SCH205_401 | School 205-401 Enrichment | 0.0000000000 | $315,481 | $0 | $0.00 | | |
| SCH205BOND | School 205-401 BOND | 0.0000000000 | $315,481 | $0 | $0.00 | | |
| ST | State School | 1.3035497053 | $315,481 | $121,349 | $158.18 | | |
| ST2 | State School Part 2 | 0.0000000000 | $315,481 | $0 | $0.00 | | |
| | Total Tax Rate: | 4.0978975026 | | | | | |
| | | | | Taxes w/Current Exemptions: | $497.28 | | |
| | | | | Taxes w/o Exemptions: | $2,309.62 | | |
Improvement / Building
| Improvement #1: | MANUFACTURED HOME | State Code: | Y | 1248.0 sqft | Value: | $65,481 |
| Bathrooms: | 0 | Bedrooms: | 0 | | Ceiling: | PLASTER PAINTED | Cooling: | EVAP NO DUCT | | Exterior Wall/Cover: | VINYL | Floor Covering: | CARPET 100% | | Floor Structure: | SLAB ON GRADE | Foundation: | SLAB | | Heating: | FHA ELECTRIC | Interior Finish: | PLASTER | | Plumbing Fixture Cnt: | 1 | Roof Slope: | FLAT | | Roof Structure/Cover: | CJ ALUMINIUM HEAVY |   |   |
|
| | Type | Description | Class CD | Sub Class CD | Year Built | Area |
| | BAS | BASE/MAIN FLOOR | 4 | 0 | 1976 | 1248.0 |
| | OWR | OPEN WOOD PORCH W/STEPS/ROOF | 4 | 0 | 1976 | 96.0 |
| | DGR | DETACHED GARAGE | 4 | 0 | 1976 | 448.0 |
| | OWP | OPEN WOOD PORCH W/STEPS | 4 | 0 | 1976 | 32.0 |
Sketch
Property Image
Land
| 1 | 16 | AC (00.51-01.00) | 0.0000 | 0.00 | 0.00 | 0.00 | 1.00 | $250,000 | $0 |
Roll Value History
| 2026 | N/A | N/A | N/A | N/A | N/A |
| 2025 | $65,481 | $250,000 | $0 | $315,481 | $121,349 |
| 2024 | $68,337 | $240,000 | $0 | $308,337 | $121,349 |
| 2023 | $63,372 | $240,000 | $0 | $303,372 | $121,349 |
| 2022 | $60,689 | $210,000 | $0 | $270,689 | $270,689 |
| 2021 | $50,568 | $170,000 | $0 | $220,568 | $220,568 |
| 2020 | $51,081 | $130,000 | $0 | $181,081 | $181,081 |
| 2019 | $44,575 | $150,000 | $0 | $194,575 | $194,575 |
| 2018 | $45,884 | $125,000 | $0 | $170,884 | $170,884 |
| 2017 | $19,210 | $90,000 | $0 | $109,210 | $109,210 |
| 2016 | $19,922 | $75,000 | $0 | $94,922 | $94,922 |
| 2015 | $27,100 | $52,000 | $0 | $79,100 | $79,100 |
| 2014 | $27,664 | $52,000 | $0 | $79,664 | $79,664 |
| 2013 | $34,520 | $52,000 | $0 | $86,520 | $86,520 |
| 2012 | $35,649 | $52,000 | $0 | $87,649 | $87,649 |
| 2011 | $37,343 | $65,000 | $0 | $102,343 | $102,343 |
| 2010 | $38,374 | $84,000 | $0 | $122,374 | $122,374 |
| 2009 | $38,906 | $90,000 | $0 | $128,906 | $128,906 |
| 2008 | $39,085 | $90,000 | $0 | $129,085 | $129,085 |
| 2007 | $39,872 | $90,000 | $0 | $129,872 | $129,872 |
Deed and Sales History
| 1 | 05/06/2023 | WD | Warranty Deed | AA133, LLC | CHERRY JTWROS, NANCY | | | $272,000.00 | 56662 | 4559479 |
| 2 | 04/06/2023 | DEEDINLIEU | Deed In Lieu Of Foreclosure | SHIN, SAECHUL | AA133, LLC | | | $0.00 | 56365 | 4558659 |
| 3 | 04/06/2018 | WD | Warranty Deed | AA133 LLC | SHIN, SAECHUL | | | $189,950.00 | 33626 | 4442372 |
| 4 | 06/06/2017 | SPWARDEED | Special Warranty Deed | SECRETARY OF HOUSING AND URBAN DEVELOPMENT | AA133 LLC | | | $0.00 | 29745 | 4424270 |
| 5 | 10/17/2014 | WD | Warranty Deed | JP MORGAN CHASE BANK NATIONAL ASSOCIATION | SECRETARY OF HOUSING AND URBAN DEVELOPMENT | | | $106,800.00 | 28728 | 4420108 |
| 6 | 09/23/2014 | TRUSTEED | Trustee's Deed | OTTOSON, BRENT C & JILL R | JP MORGAN CHASE BANK NATIONAL ASSOCIATION | | | $0.00 | 16974 | 4366256 |
| 7 | 08/01/1997 | OTHER | Other - Misc. Documents | OTTOSON, BRENT C | OTTOSON, BRENT C | | | $35,000.00 | 72697 | 0 |
| 8 | 07/01/1997 | WD | Warranty Deed | HENRY, RICHARD S | OTTOSIN, BRENT C | | | $64,500.00 | 72696 | 97012783 |
| 9 | 07/01/1997 | WD | Warranty Deed | OTTOSIN, BRENT C | OTTOSON, BRENT C | | | $64,500.00 | 72696 | 97012783 |
| 10 | 10/01/1991 | OTHER | Other - Misc. Documents | HENRY, RICHARD S | HENRY, RICHARD S | | | $0.00 | 64529 | 91016132 |
| 11 | 09/01/1985 | OTHER | Other - Misc. Documents | HENRY, RICHARD S | HENRY, RICHARD S | | | $26,000.00 | 52542 | 0 |
| 12 | 08/01/1985 | REC | Real Estate Contract | BARTH, LAWRENCE E | HENRY, RICHARD S | | | $15,350.00 | 52544 | 85010037 |
| 13 | 01/01/1900 | OTHER | Other - Misc. Documents | BARTH, LAWRENCE E | BARTH, LAWRENCE E | | | $0.00 | 0 | 0 |
| 14 | 01/01/1900 | OTHER | Other - Misc. Documents | Unknown | BARTH, LAWRENCE E | | | $0.00 | 0 | 0 |
Payout Agreement
| No payout information available.. |