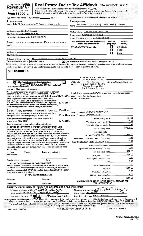
Property
Account |
| Property ID: | 310862 | Abbreviated Legal Description: | LOST LK GRV 3 LOT 6 BLK 2 |
| Geographic ID: | S7410-03-02006-0 | Agent Code: | |
| Type: | Real | | |
| Tax Area: | 510 - APPRAISER-Stan/Cam Schl Dist, improved & 1 acre or less | Land Use Code | 11 |
| Open Space: | N | DFL | N |
| Historic Property: | N | Remodel Property: | N |
| Multi-Family Redevelopment: | N | | |
| Township: | | Section: | |
| Range: | |
Location |
| Address: | 1522 GRAHAM DR CAMANO ISLAND, WA 98282 | Mapsco: | |
| Neighborhood: | Cycle 5 | Map ID: | 505 |
| Neighborhood CD: | 5 |
Owner |
| Name: | KLEIN, NICHOLAS | Owner ID: | 65530 |
| Mailing Address: | 1522 GRAHAM DR CAMANO ISLAND, WA 98282-8385 | % Ownership: | 100.0000000000% |
| | | Exemptions: | |
Taxes and Assessment Details
Values
| (+) Improvement Homesite Value: | + | $0 | |
| (+) Improvement Non-Homesite Value: | + | $250,965 | |
| (+) Land Homesite Value: | + | $0 | |
| (+) Land Non-Homesite Value: | + | $250,000 | |
| (+) Curr Use (HS): | + | $0 | $0 |
| (+) Curr Use (NHS): | + | $0 | $0 |
| | | -------------------------- | |
| (=) Market Value: | = | $500,965 | |
| (–) Productivity Loss: | – | $0 | |
| | | -------------------------- | |
| (=) Subtotal: | = | $500,965 | |
| (+) Senior Appraised Value: | + | $0 | |
| (+) Non-Senior Appraised Value: | + | $500,965 | |
| | | -------------------------- | |
| (=) Total Appraised Value: | = | $500,965 | |
| (–) Senior Exemption Loss: | – | $0 | |
| (–) Exemption Loss: | – | $0 | |
| | | -------------------------- | |
| (=) Taxable Value: | = | $500,965 | |
Taxing Jurisdiction
| Owner: | KLEIN, NICHOLAS | | |
| % Ownership: | 100.0000000000% | | |
| Total Value: | $500,965 | | |
| Tax Area: | 510 - APPRAISER-Stan/Cam Schl Dist, improved & 1 acre or less |
| CF | Conservation Futures | 0.0316035091 | $500,965 | $500,965 | $15.83 | | |
| EMS1 | Fire & Rescue Dist #1 Camano GEN (EMS) | 0.3677864386 | $500,965 | $500,965 | $184.25 | | |
| FIRE1 | Fire & Rescue Dist #1 Camano GEN | 1.2502910536 | $500,965 | $500,965 | $626.35 | | |
| FIRE1BOND | Fire & Rescue Dist #1 Camano BOND | 0.1570001679 | $500,965 | $500,965 | $78.65 | | |
| CE | County Current Expense | 0.3708482477 | $500,965 | $500,965 | $185.78 | | |
| CR | County Roads | 0.4584763726 | $500,965 | $500,965 | $229.68 | | |
| LCIB | Library Sno-Isle BOND (Camano Island) | 0.0396325772 | $500,965 | $500,965 | $19.85 | | |
| LIB | Library Sno-Isle GEN | 0.3153421757 | $500,965 | $500,965 | $157.98 | | |
| SCH205_401 | School 205-401 Enrichment | 1.2698420524 | $500,965 | $500,965 | $636.15 | | |
| SCH205BOND | School 205-401 BOND | 0.9396497583 | $500,965 | $500,965 | $470.73 | | |
| ST | State School | 1.3035497053 | $500,965 | $500,965 | $653.03 | | |
| ST2 | State School Part 2 | 0.8169543533 | $500,965 | $500,965 | $409.27 | | |
| | Total Tax Rate: | 7.3209764117 | | | | | |
| | | | | Taxes w/Current Exemptions: | $3,667.55 | | |
| | | | | Taxes w/o Exemptions: | $3,667.55 | | |
Improvement / Building
| Improvement #1: | RESIDENTIAL | State Code: | Y | 1858.0 sqft | Value: | $250,965 |
| Bathrooms: | 3 | Bedrooms: | 3 | | Ceiling: | DRY WALL SPRAYED | Exterior Wall/Cover: | PLY/HARDBOARD T-111 | | Floor Covering: | CARPET/VINYL 80-20 | Floor Structure: | WOOD W/SUBFLOOR | | Foundation: | CONCRETE | Heating: | FHA ELECTRIC | | Interior Finish: | DRYWALL PAINT | Plumbing Fixture Cnt: | 13 | | Roof Slope: | 3" IN 12" | Roof Structure/Cover: | CJ ASPHALT |
|
| | Type | Description | Class CD | Sub Class CD | Year Built | Area |
| | BAS | BASE/MAIN FLOOR | 3 | 0 | 1979 | 1234.0 |
| | DWN | DOWNSTAIRS LIVING AREA | 3 | 0 | 1979 | 624.0 |
| | BGR | BASEMENT GARAGE | 3 | 0 | 1979 | 528.0 |
| | OWP | OPEN WOOD PORCH W/STEPS | 3 | 0 | 1979 | 56.0 |
| | OWP | OPEN WOOD PORCH W/STEPS | 3 | 0 | 1979 | 480.0 |
| | OWP | OPEN WOOD PORCH W/STEPS | 3 | 0 | 1979 | 144.0 |
Sketch
Property Image
Land
| 1 | 15 | SQ (12001-21780) | 0.0000 | 0.00 | 0.00 | 0.00 | 1.00 | $250,000 | $0 |
Roll Value History
| 2026 | N/A | N/A | N/A | N/A | N/A |
| 2025 | $250,965 | $250,000 | $0 | $500,965 | $500,965 |
| 2024 | $254,489 | $240,000 | $0 | $494,489 | $494,489 |
| 2023 | $258,010 | $240,000 | $0 | $498,010 | $498,010 |
| 2022 | $236,819 | $210,000 | $0 | $446,819 | $446,819 |
| 2021 | $197,609 | $170,000 | $0 | $367,609 | $367,609 |
| 2020 | $192,633 | $130,000 | $0 | $322,633 | $322,633 |
| 2019 | $142,544 | $150,000 | $0 | $292,544 | $292,544 |
| 2018 | $143,030 | $125,000 | $0 | $268,030 | $268,030 |
| 2017 | $144,004 | $90,000 | $0 | $234,004 | $234,004 |
| 2016 | $145,950 | $75,000 | $0 | $220,950 | $220,950 |
| 2015 | $115,771 | $52,000 | $0 | $167,771 | $167,771 |
| 2014 | $117,609 | $52,000 | $0 | $169,609 | $169,609 |
| 2013 | $119,446 | $52,000 | $0 | $171,446 | $171,446 |
| 2012 | $121,284 | $52,000 | $0 | $173,284 | $173,284 |
| 2011 | $123,122 | $65,000 | $0 | $188,122 | $188,122 |
| 2010 | $131,250 | $84,000 | $0 | $215,250 | $215,250 |
| 2009 | $137,393 | $90,000 | $0 | $227,393 | $227,393 |
| 2008 | $139,210 | $90,000 | $0 | $229,210 | $229,210 |
| 2007 | $141,026 | $90,000 | $0 | $231,026 | $231,026 |
Deed and Sales History
| 1 | 07/29/2002 | WD | Warranty Deed | PEARCE, RODNEY C | KLEIN, NICHOLAS | | | $142,000.00 | 23023 | 4027275 |
| 2 | 10/22/1998 | WD | Warranty Deed | GILLENWATER, LEON G | PEARCE, RODNEY C | | | $138,000.00 | 84332 | 98023657 |
| 3 | 02/01/1987 | WD | Warranty Deed | FISCHER, AVA L | GILLENWATER, LEON G | | | $47,000.00 | 70495 | 87003015 |
| 4 | 02/01/1984 | QCD | Quit Claim Deed | FISCHER, AVA L | FISCHER, AVA L | | | $0.00 | 40398 | 421084 |
| 5 | 02/01/1984 | WD | Warranty Deed | ERWIN, TOMMY D | FISCHER, AVA L | | | $0.00 | 40397 | 421083 |
| 6 | 07/01/1979 | TRUSTEED | Trustee's Deed | JOHNSON, PAUL W | ERWIN, TOMMY D | | | $6,000.00 | 93491 | 355773 |
| 7 | 04/01/1979 | OTHER | Other - Misc. Documents | Unknown | JOHNSON, PAUL W | | | $4,400.00 | 918510 | 3512660 |
Payout Agreement
| No payout information available.. |