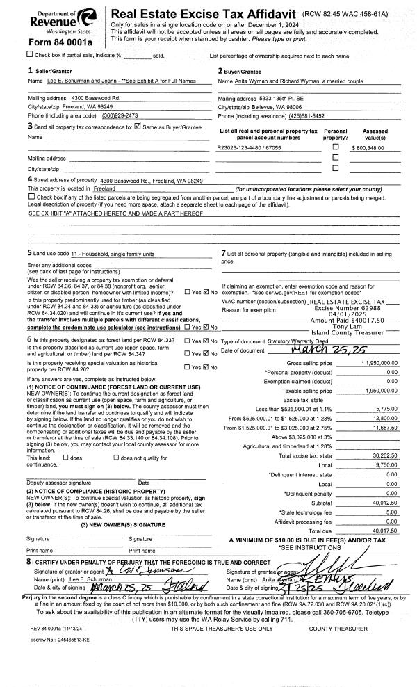
Property
Account |
| Property ID: | 311273 | Abbreviated Legal Description: | LOST LK GRV 4 LOT 5 BLK 1 |
| Geographic ID: | S7410-04-01005-0 | Agent Code: | |
| Type: | Real | | |
| Tax Area: | 510 - APPRAISER-Stan/Cam Schl Dist, improved & 1 acre or less | Land Use Code | 11 |
| Open Space: | N | DFL | N |
| Historic Property: | N | Remodel Property: | N |
| Multi-Family Redevelopment: | N | | |
| Township: | | Section: | |
| Range: | |
Location |
| Address: | 8 CYPRESS LN CAMANO ISLAND, WA 98282 | Mapsco: | |
| Neighborhood: | Cycle 5 | Map ID: | 505 |
| Neighborhood CD: | 5 |
Owner |
| Name: | ANDRADES, ANDREA L FERNANDEZ | Owner ID: | 314604 |
| Mailing Address: | 8 CYPRESS LN CAMANO ISLAND, WA 98282 | % Ownership: | 100.0000000000% |
| | | Exemptions: | |
Taxes and Assessment Details
Values
| (+) Improvement Homesite Value: | + | $0 | |
| (+) Improvement Non-Homesite Value: | + | $247,898 | |
| (+) Land Homesite Value: | + | $0 | |
| (+) Land Non-Homesite Value: | + | $250,000 | |
| (+) Curr Use (HS): | + | $0 | $0 |
| (+) Curr Use (NHS): | + | $0 | $0 |
| | | -------------------------- | |
| (=) Market Value: | = | $497,898 | |
| (–) Productivity Loss: | – | $0 | |
| | | -------------------------- | |
| (=) Subtotal: | = | $497,898 | |
| (+) Senior Appraised Value: | + | $0 | |
| (+) Non-Senior Appraised Value: | + | $497,898 | |
| | | -------------------------- | |
| (=) Total Appraised Value: | = | $497,898 | |
| (–) Senior Exemption Loss: | – | $0 | |
| (–) Exemption Loss: | – | $0 | |
| | | -------------------------- | |
| (=) Taxable Value: | = | $497,898 | |
Taxing Jurisdiction
| Owner: | ANDRADES, ANDREA L FERNANDEZ | | |
| % Ownership: | 100.0000000000% | | |
| Total Value: | $497,898 | | |
| Tax Area: | 510 - APPRAISER-Stan/Cam Schl Dist, improved & 1 acre or less |
| CF | Conservation Futures | 0.0316035091 | $497,898 | $497,898 | $15.74 | | |
| EMS1 | Fire & Rescue Dist #1 Camano GEN (EMS) | 0.3677864386 | $497,898 | $497,898 | $183.12 | | |
| FIRE1 | Fire & Rescue Dist #1 Camano GEN | 1.2502910536 | $497,898 | $497,898 | $622.52 | | |
| FIRE1BOND | Fire & Rescue Dist #1 Camano BOND | 0.1570001679 | $497,898 | $497,898 | $78.17 | | |
| CE | County Current Expense | 0.3708482477 | $497,898 | $497,898 | $184.64 | | |
| CR | County Roads | 0.4584763726 | $497,898 | $497,898 | $228.27 | | |
| LCIB | Library Sno-Isle BOND (Camano Island) | 0.0396325772 | $497,898 | $497,898 | $19.73 | | |
| LIB | Library Sno-Isle GEN | 0.3153421757 | $497,898 | $497,898 | $157.01 | | |
| SCH205_401 | School 205-401 Enrichment | 1.2698420524 | $497,898 | $497,898 | $632.25 | | |
| SCH205BOND | School 205-401 BOND | 0.9396497583 | $497,898 | $497,898 | $467.85 | | |
| ST | State School | 1.3035497053 | $497,898 | $497,898 | $649.03 | | |
| ST2 | State School Part 2 | 0.8169543533 | $497,898 | $497,898 | $406.76 | | |
| | Total Tax Rate: | 7.3209764117 | | | | | |
| | | | | Taxes w/Current Exemptions: | $3,645.09 | | |
| | | | | Taxes w/o Exemptions: | $3,645.09 | | |
Improvement / Building
| Improvement #1: | RESIDENTIAL | State Code: | Y | 1315.0 sqft | Value: | $247,898 |
| Bathrooms: | 1.5 | Bedrooms: | 3 | | Ceiling: | DRYWALL PAINTED | Exterior Wall/Cover: | CEMENT FIBER | | Floor Covering: | CARPET/VINYL 80-20 | Floor Structure: | WOOD W/SUBFLOOR | | Foundation: | CONCRETE | Heating: | FHA GAS | | Interior Finish: | DRYWALL PAINT | Plumbing Fixture Cnt: | 9 | | Roof Slope: | 4" IN 12" | Roof Structure/Cover: | CJ ASPHALT |
|
| | Type | Description | Class CD | Sub Class CD | Year Built | Area |
| | BAS | BASE/MAIN FLOOR | 3 | 0 | 1993 | 1315.0 |
| | AGR | ATTACHED GARAGE | 3 | 0 | 1993 | 528.0 |
| | OWP | OPEN WOOD PORCH W/STEPS | 3 | 0 | 1993 | 142.5 |
| | OWP | OPEN WOOD PORCH W/STEPS | 3 | 0 | 1993 | 160.0 |
Sketch
| No sketches available for this property. |
Property Image
Land
| 1 | 15 | SQ (12001-21780) | 0.0000 | 0.00 | 0.00 | 0.00 | 1.00 | $250,000 | $0 |
Roll Value History
| 2026 | N/A | N/A | N/A | N/A | N/A |
| 2025 | $247,898 | $250,000 | $0 | $497,898 | $497,898 |
| 2024 | $252,547 | $240,000 | $0 | $492,547 | $492,547 |
| 2023 | $255,617 | $240,000 | $0 | $495,617 | $89,785 |
| 2022 | $234,247 | $210,000 | $0 | $444,247 | $89,785 |
| 2021 | $191,600 | $170,000 | $0 | $361,600 | $89,785 |
| 2020 | $186,535 | $130,000 | $0 | $316,535 | $89,785 |
| 2019 | $133,232 | $150,000 | $0 | $283,232 | $89,785 |
| 2018 | $133,642 | $125,000 | $0 | $258,642 | $89,785 |
| 2017 | $134,462 | $90,000 | $0 | $224,462 | $89,785 |
| 2016 | $136,102 | $75,000 | $0 | $211,102 | $211,102 |
| 2015 | $129,445 | $52,000 | $0 | $181,445 | $181,445 |
| 2014 | $131,123 | $52,000 | $0 | $183,123 | $183,123 |
| 2013 | $132,802 | $52,000 | $0 | $184,802 | $184,802 |
| 2012 | $134,479 | $52,000 | $0 | $186,479 | $186,479 |
| 2011 | $136,157 | $65,000 | $0 | $201,157 | $124,720 |
| 2010 | $140,094 | $84,000 | $0 | $224,094 | $124,720 |
| 2009 | $147,581 | $90,000 | $0 | $237,581 | $124,720 |
| 2008 | $149,376 | $90,000 | $0 | $239,376 | $74,720 |
| 2007 | $151,168 | $90,000 | $0 | $241,168 | $74,720 |
Deed and Sales History
| 1 | 10/17/2024 | WD | Warranty Deed | SANDBERG, CHRISTOPHER R PR | ANDRADES, ANDREA L FERNANDEZ | | | $480,000.00 | 61641 | 4578522 |
| 2 | 04/24/2014 | QCD | Quit Claim Deed | QUINN, MARLENE J | SANDBERG, CARL ROBERT | | | $120,000.00 | 15094 | 4358653 |
| 3 | 08/21/2007 | WD | Warranty Deed | QUINN, MARLENE J | QUINN, MARLENE J | | | $0.00 | 72900 | 4210468 |
| 4 | 07/01/1995 | REC | Real Estate Contract | KINDRED, GERTRUDE C | QUINN, MARLENE J | | | $75,000.00 | 80253 | 98001198 |
| 5 | 05/01/1995 | WD | Warranty Deed | KINDRED, GERTRUDE C | KINDRED, GERTRUDE C | | | $117,000.00 | 51785 | 95008367 |
| 6 | 05/01/1995 | QCD | Quit Claim Deed | LAMBERTSON, ROBERT F | KINDRED, GERTRUDE C | | | $0.00 | 51782 | 95008362 |
| 7 | 05/01/1992 | WD | Warranty Deed | WELCH, STEVEN C | LAMBERTSON, ROBERT F | | | $15,000.00 | 21766 | 92008379 |
| 8 | 08/01/1987 | QCD | Quit Claim Deed | WELCH, FLOYD M | WELCH, STEVEN C | | | $0.00 | 72322 | 87010514 |
| 9 | 09/01/1986 | WD | Warranty Deed | MOORE, ROBERTA | WELCH, FLOYD M | | | $5,000.00 | 62617 | 86011910 |
| 10 | 08/01/1982 | OTHER | Other - Misc. Documents | HIGHLAND, ROBERTA | MOORE, ROBERTA | | | $0.00 | 59616 | 0 |
| 11 | 01/01/1900 | OTHER | Other - Misc. Documents | Unknown | HIGHLAND, ROBERTA | | | $0.00 | 0 | 0 |
Payout Agreement
| No payout information available.. |