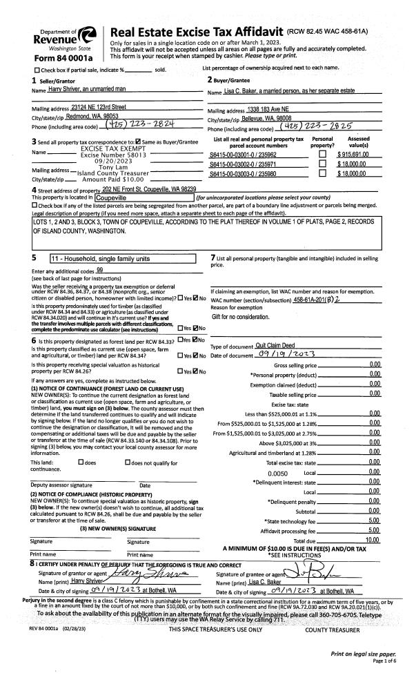
Property
Account |
| Property ID: | 31138 | Abbreviated Legal Description: | 19 - NW SW SW EX W/2 |
| Geographic ID: | R13301-099-0490 | Agent Code: | |
| Type: | Real | | |
| Tax Area: | 112 - APPRAISER-OH Schl Dist, outside OH, improved, greater than 1 acre | Land Use Code | 11 |
| Open Space: | N | DFL | N |
| Historic Property: | N | Remodel Property: | N |
| Multi-Family Redevelopment: | N | | |
| Township: | 33 | Section: | 01 |
| Range: | R1 |
Location |
| Address: | 4494 MONKEY HILL RD OAK HARBOR, WA 98277 | Mapsco: | |
| Neighborhood: | Cycle 6 | Map ID: | 189 |
| Neighborhood CD: | 6 |
Owner |
| Name: | LIND, SHARON F | Owner ID: | 304074 |
| Mailing Address: | 4494 MONKEY HILL RD OAK HARBOR, WA 98277 | % Ownership: | 100.0000000000% |
| | | Exemptions: | |
Taxes and Assessment Details
Values
| (+) Improvement Homesite Value: | + | $0 | |
| (+) Improvement Non-Homesite Value: | + | $326,900 | |
| (+) Land Homesite Value: | + | $0 | |
| (+) Land Non-Homesite Value: | + | $300,000 | |
| (+) Curr Use (HS): | + | $0 | $0 |
| (+) Curr Use (NHS): | + | $0 | $0 |
| | | -------------------------- | |
| (=) Market Value: | = | $626,900 | |
| (–) Productivity Loss: | – | $0 | |
| | | -------------------------- | |
| (=) Subtotal: | = | $626,900 | |
| (+) Senior Appraised Value: | + | $0 | |
| (+) Non-Senior Appraised Value: | + | $626,900 | |
| | | -------------------------- | |
| (=) Total Appraised Value: | = | $626,900 | |
| (–) Senior Exemption Loss: | – | $0 | |
| (–) Exemption Loss: | – | $0 | |
| | | -------------------------- | |
| (=) Taxable Value: | = | $626,900 | |
Taxing Jurisdiction
| Owner: | LIND, SHARON F | | |
| % Ownership: | 100.0000000000% | | |
| Total Value: | $626,900 | | |
| Tax Area: | 112 - APPRAISER-OH Schl Dist, outside OH, improved, greater than 1 acre |
| CF | Conservation Futures | 0.0316035091 | $626,900 | $626,900 | $19.81 | | |
| CEM1 | Cemetery #1 | 0.0040320932 | $626,900 | $626,900 | $2.53 | | |
| FIRE2 | Fire & Rescue Dist #2 N Whidbey GEN | 0.5475949600 | $626,900 | $626,900 | $343.29 | | |
| HOBOND | Hospital BOND | 0.1910887512 | $626,900 | $626,900 | $119.79 | | |
| HOGEN | Hospital GEN | 0.3902502903 | $626,900 | $626,900 | $244.65 | | |
| CE | County Current Expense | 0.3708482477 | $626,900 | $626,900 | $232.48 | | |
| CR | County Roads | 0.4584763726 | $626,900 | $626,900 | $287.42 | | |
| ISLANDEMS | Hospital GEN (EMS) | 0.5000000000 | $626,900 | $626,900 | $313.45 | | |
| LIB | Library Sno-Isle GEN | 0.3153421757 | $626,900 | $626,900 | $197.69 | | |
| NWHIDPRMT | P & R N Whidbey GEN | 0.2004466701 | $626,900 | $626,900 | $125.66 | | |
| SCH201MO | School 201 Enrichment | 1.8559231640 | $626,900 | $626,900 | $1,163.48 | | |
| ST | State School | 1.3035497053 | $626,900 | $626,900 | $817.20 | | |
| ST2 | State School Part 2 | 0.8169543533 | $626,900 | $626,900 | $512.15 | | |
| | Total Tax Rate: | 6.9861102925 | | | | | |
| | | | | Taxes w/Current Exemptions: | $4,379.60 | | |
| | | | | Taxes w/o Exemptions: | $4,379.60 | | |
Improvement / Building
| Improvement #1: | RESIDENTIAL | State Code: | Y | 1938.0 sqft | Value: | $326,900 |
| Bathrooms: | 2 | Bedrooms: | 4 | | Ceiling: | DRY WALL SPRAYED | Exterior Wall/Cover: | PLY/HARDBOARD T-111 | | Floor Covering: | CARPET 100% | Floor Structure: | WOOD W/SUBFLOOR | | Foundation: | CONCRETE BLOCKS | Heating: | FHA OIL | | Interior Finish: | DRYWALL PAINT | Plumbing Fixture Cnt: | 9 | | Roof Slope: | 5" IN 12" | Roof Structure/Cover: | STEEL TERNE |
|
| | Type | Description | Class CD | Sub Class CD | Year Built | Area |
| | BAS | BASE/MAIN FLOOR | 3 | 0 | 1973 | 1938.0 |
| | OP4 | OPEN PORCH W/CEILING-ROOF | 3 | 0 | 1973 | 24.0 |
| | AGR | ATTACHED GARAGE | 3 | 0 | 1973 | 538.0 |
| | OWR | OPEN WOOD PORCH W/STEPS/ROOF | 3 | 0 | 1973 | 400.0 |
| | oPOL | POLE BARN | 3 | 0 | 1973 | 0.0 |
Sketch
Property Image
Land
| 1 | 32 | AC (03.01-09.99) | 5.0000 | 0.00 | 0.00 | 0.00 | 1.00 | $300,000 | $0 |
Roll Value History
| 2026 | N/A | N/A | N/A | N/A | N/A |
| 2025 | $326,900 | $300,000 | $0 | $626,900 | $626,900 |
| 2024 | $331,230 | $280,000 | $0 | $611,230 | $611,230 |
| 2023 | $335,559 | $270,000 | $0 | $605,559 | $605,559 |
| 2022 | $300,440 | $240,000 | $0 | $540,440 | $540,440 |
| 2021 | $265,370 | $175,000 | $0 | $440,370 | $440,370 |
| 2020 | $259,513 | $140,000 | $0 | $399,513 | $399,513 |
| 2019 | $199,613 | $200,000 | $0 | $399,613 | $399,613 |
| 2018 | $200,235 | $175,000 | $0 | $375,235 | $375,235 |
| 2017 | $201,476 | $140,000 | $0 | $341,476 | $341,476 |
| 2016 | $157,055 | $140,000 | $0 | $297,055 | $297,055 |
| 2015 | $159,540 | $120,000 | $0 | $279,540 | $279,540 |
| 2014 | $162,026 | $112,500 | $0 | $274,526 | $274,526 |
| 2013 | $164,513 | $112,500 | $0 | $277,013 | $277,013 |
| 2012 | $166,998 | $112,500 | $0 | $279,498 | $279,498 |
| 2011 | $169,484 | $125,000 | $0 | $294,484 | $294,484 |
| 2010 | $175,986 | $125,000 | $0 | $300,986 | $300,986 |
| 2009 | $183,710 | $125,000 | $0 | $308,710 | $308,710 |
| 2008 | $191,739 | $144,645 | $0 | $336,384 | $336,384 |
| 2007 | $193,251 | $145,785 | $0 | $339,036 | $339,036 |
Deed and Sales History
| 1 | 04/29/2022 | WD | Warranty Deed | ALBERT, SHAWN | LIND, SHARON F | | | $700,000.00 | 52967 | 4544643 |
| 2 | 09/08/2016 | ESTSEPPROP | Establish Separate Property | ALBERT, SHAWN | ALBERT, SHAWN | | | $0.00 | 26136 | 4407377 |
| 3 | 09/08/2016 | QCD | Quit Claim Deed | S. ALBERT CONSTRUCTION, LLC | ALBERT, SHAWN | | | $0.00 | 26135 | 4407376 |
| 4 | 05/28/2014 | QCD | Quit Claim Deed | ALBERT, SHAWN RAY | S. ALBERT CONSTRUCTION, LLC | | | $0.00 | 15413 | 4359961 |
| 5 | 06/02/2009 | PRD | Personal Representatives Deed | ALBERT, DORIS E | ALBERT, SHAWN RAY | | | $0.00 | 91357 | 4254067 |
| 6 | 11/29/1999 | OTHER | Other - Misc. Documents | ALBERT, DONALD E | ALBERT, DORIS E | | | $0.00 | 68489 | 99024048 |
| 7 | 07/01/1979 | WD | Warranty Deed | SNYDER, THEODORE S | ALBERT, DONALD E | | | $76,634.00 | 93600 | 356011 |
Payout Agreement
| No payout information available.. |