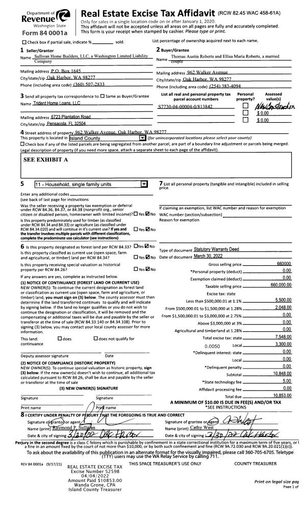
Property
Account |
| Property ID: | 311638 | Abbreviated Legal Description: | LOST LK GRV 4 LOT 14 BLK 2 |
| Geographic ID: | S7410-04-02014-0 | Agent Code: | |
| Type: | Real | | |
| Tax Area: | 510 - APPRAISER-Stan/Cam Schl Dist, improved & 1 acre or less | Land Use Code | 11 |
| Open Space: | N | DFL | N |
| Historic Property: | N | Remodel Property: | N |
| Multi-Family Redevelopment: | N | | |
| Township: | | Section: | |
| Range: | |
Location |
| Address: | 1667 VINE MAPLE LN CAMANO ISLAND, WA 98282 | Mapsco: | |
| Neighborhood: | Cycle 5 | Map ID: | 511 |
| Neighborhood CD: | 5 |
Owner |
| Name: | BRISBIN, CATHERINE A | Owner ID: | 65606 |
| Mailing Address: | 1667 VINE MAPLE LN CAMANO ISLAND, WA 98282-7516 | % Ownership: | 100.0000000000% |
| | | Exemptions: | SNR/DSBL |
Taxes and Assessment Details
Values
| (+) Improvement Homesite Value: | + | $182,395 | |
| (+) Improvement Non-Homesite Value: | + | $0 | |
| (+) Land Homesite Value: | + | $250,000 | |
| (+) Land Non-Homesite Value: | + | $0 | |
| (+) Curr Use (HS): | + | $0 | $0 |
| (+) Curr Use (NHS): | + | $0 | $0 |
| | | -------------------------- | |
| (=) Market Value: | = | $432,395 | |
| (–) Productivity Loss: | – | $0 | |
| | | -------------------------- | |
| (=) Subtotal: | = | $432,395 | |
| (+) Senior Appraised Value: | + | $426,999 | |
| (+) Non-Senior Appraised Value: | + | $0 | |
| | | -------------------------- | |
| (=) Total Appraised Value: | = | $426,999 | |
| (–) Senior Exemption Loss: | – | $256,199 | |
| (–) Exemption Loss: | – | $0 | |
| | | -------------------------- | |
| (=) Taxable Value: | = | $170,800 | |
Taxing Jurisdiction
| Owner: | BRISBIN, CATHERINE A | | |
| % Ownership: | 100.0000000000% | | |
| Total Value: | $432,395 | | |
| Tax Area: | 510 - APPRAISER-Stan/Cam Schl Dist, improved & 1 acre or less |
| CF | Conservation Futures | 0.0316035091 | $432,395 | $170,800 | $5.40 | | |
| EMS1 | Fire & Rescue Dist #1 Camano GEN (EMS) | 0.3677864386 | $432,395 | $170,800 | $62.82 | | |
| FIRE1 | Fire & Rescue Dist #1 Camano GEN | 1.2502910536 | $432,395 | $170,800 | $213.55 | | |
| FIRE1BOND | Fire & Rescue Dist #1 Camano BOND | 0.0000000000 | $432,395 | $0 | $0.00 | | |
| CE | County Current Expense | 0.3708482477 | $432,395 | $170,800 | $63.34 | | |
| CR | County Roads | 0.4584763726 | $432,395 | $170,800 | $78.31 | | |
| LCIB | Library Sno-Isle BOND (Camano Island) | 0.0000000000 | $432,395 | $0 | $0.00 | | |
| LIB | Library Sno-Isle GEN | 0.3153421757 | $432,395 | $170,800 | $53.86 | | |
| SCH205_401 | School 205-401 Enrichment | 0.0000000000 | $432,395 | $0 | $0.00 | | |
| SCH205BOND | School 205-401 BOND | 0.0000000000 | $432,395 | $0 | $0.00 | | |
| ST | State School | 1.3035497053 | $432,395 | $170,800 | $222.65 | | |
| ST2 | State School Part 2 | 0.0000000000 | $432,395 | $0 | $0.00 | | |
| | Total Tax Rate: | 4.0978975026 | | | | | |
| | | | | Taxes w/Current Exemptions: | $699.93 | | |
| | | | | Taxes w/o Exemptions: | $3,165.56 | | |
Improvement / Building
| Improvement #1: | RESIDENTIAL | State Code: | Y | 1024.0 sqft | Value: | $182,395 |
| Bathrooms: | 1 | Bedrooms: | 3 | | Ceiling: | DRYWALL PAINTED | Exterior Wall/Cover: | PLY/HARDBOARD T-111 | | Floor Covering: | CARPET/VINYL 80-20 | Floor Structure: | WOOD W/SUBFLOOR | | Foundation: | CONCRETE | Heating: | (NONE) | | Interior Finish: | DRYWALL PAINT | Plumbing Fixture Cnt: | 6 | | Roof Slope: | 4" IN 12" | Roof Structure/Cover: | CJ ASPHALT |
|
| | Type | Description | Class CD | Sub Class CD | Year Built | Area |
| | BAS | BASE/MAIN FLOOR | 3 | 0 | 1991 | 1024.0 |
| | UB8 | BASEMENT UNFINISHED 8" | 3 | 0 | 1991 | 150.0 |
| | AGR | ATTACHED GARAGE | 3 | 0 | 1991 | 480.0 |
| | OWP | OPEN WOOD PORCH W/STEPS | 3 | 0 | 1991 | 48.0 |
| | OWR | OPEN WOOD PORCH W/STEPS/ROOF | 3 | 0 | 1991 | 160.0 |
Sketch
Property Image
Land
| 1 | 15 | SQ (12001-21780) | 0.0000 | 0.00 | 0.00 | 0.00 | 1.00 | $250,000 | $0 |
Roll Value History
| 2026 | N/A | N/A | N/A | N/A | N/A |
| 2025 | $182,395 | $250,000 | $0 | $432,395 | $170,800 |
| 2024 | $184,697 | $240,000 | $0 | $424,697 | $169,879 |
| 2023 | $186,999 | $240,000 | $0 | $426,999 | $170,800 |
| 2022 | $171,415 | $210,000 | $0 | $381,415 | $381,415 |
| 2021 | $149,450 | $170,000 | $0 | $319,450 | $319,450 |
| 2020 | $145,692 | $130,000 | $0 | $275,692 | $275,692 |
| 2019 | $103,692 | $150,000 | $0 | $253,692 | $253,692 |
| 2018 | $104,009 | $125,000 | $0 | $229,009 | $229,009 |
| 2017 | $104,648 | $90,000 | $0 | $194,648 | $194,648 |
| 2016 | $105,923 | $75,000 | $0 | $180,923 | $180,923 |
| 2015 | $99,050 | $52,000 | $0 | $151,050 | $151,050 |
| 2014 | $100,330 | $52,000 | $0 | $152,330 | $152,330 |
| 2013 | $101,612 | $52,000 | $0 | $153,612 | $153,612 |
| 2012 | $102,893 | $52,000 | $0 | $154,893 | $154,893 |
| 2011 | $104,174 | $65,000 | $0 | $169,174 | $169,174 |
| 2010 | $106,918 | $84,000 | $0 | $190,918 | $190,918 |
| 2009 | $108,971 | $90,000 | $0 | $198,971 | $198,971 |
| 2008 | $110,523 | $90,000 | $0 | $200,523 | $200,523 |
| 2007 | $112,078 | $90,000 | $0 | $202,078 | $202,078 |
Deed and Sales History
| 1 | 06/12/2002 | WD | Warranty Deed | FORTNEY, JASON T | BRISBIN, CATHERINE A | | | $142,000.00 | 22329 | 4023273 |
| 2 | 06/01/1996 | WD | Warranty Deed | PAVISH, CHRISTOPHER L | FORTNEY, JASON T | | | $105,000.00 | 62053 | 96010214 |
| 3 | 07/01/1991 | WD | Warranty Deed | HUNTINGTON, JAMES | PAVISH, CHRISTOPHER L | | | $84,950.00 | 12736 | 91011632 |
| 4 | 07/01/1990 | QCD | Quit Claim Deed | JOHNSON, DAVID B | HUNTINGTON, JAMES | | | $0.00 | 4632 | 90015346 |
| 5 | 07/01/1990 | WD | Warranty Deed | HUNTINGTON, JAMES | JOHNSON, DAVID B | | | $12,800.00 | 4633 | 90015347 |
| 6 | 02/01/1986 | QCD | Quit Claim Deed | KINNEAR, KENNETH E | HUNTINGTON, JAMES | | | $0.00 | 60950 | 86012067 |
| 7 | 04/01/1979 | TRUSTEED | Trustee's Deed | MILTIMORE, JAMES | KINNEAR, KENNETH E | | | $0.00 | 59200 | 356000 |
| 8 | 01/01/1900 | OTHER | Other - Misc. Documents | Unknown | MILTIMORE, JAMES | | | $0.00 | 0 | 0 |
Payout Agreement
| No payout information available.. |