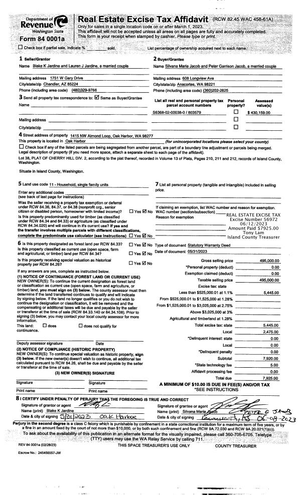
Property
Account |
| Property ID: | 31165 | Abbreviated Legal Description: | 80 - N/2 NW SW SE TGW SUB EZ EX WELL & WATER SYSTEM QC TO LYONS RD COMM ASSOC (NOT LOC) A22189-AF#400561 |
| Geographic ID: | R13301-115-2940 | Agent Code: | |
| Type: | Real | | |
| Tax Area: | 112 - APPRAISER-OH Schl Dist, outside OH, improved, greater than 1 acre | Land Use Code | 11 |
| Open Space: | N | DFL | N |
| Historic Property: | N | Remodel Property: | N |
| Multi-Family Redevelopment: | N | | |
| Township: | 33 | Section: | 01 |
| Range: | R1 |
Location |
| Address: | 4487 LYON RD OAK HARBOR, WA 98277 | Mapsco: | |
| Neighborhood: | Cycle 6 | Map ID: | 190 |
| Neighborhood CD: | 6 |
Owner |
| Name: | BERTELSON, CLIFFORD N | Owner ID: | 24584 |
| Mailing Address: | 4487 LYON RD OAK HARBOR, WA 98277-9716 | % Ownership: | 100.0000000000% |
| | | Exemptions: | |
Taxes and Assessment Details
Values
| (+) Improvement Homesite Value: | + | $0 | |
| (+) Improvement Non-Homesite Value: | + | $39,923 | |
| (+) Land Homesite Value: | + | $0 | |
| (+) Land Non-Homesite Value: | + | $300,000 | |
| (+) Curr Use (HS): | + | $0 | $0 |
| (+) Curr Use (NHS): | + | $0 | $0 |
| | | -------------------------- | |
| (=) Market Value: | = | $339,923 | |
| (–) Productivity Loss: | – | $0 | |
| | | -------------------------- | |
| (=) Subtotal: | = | $339,923 | |
| (+) Senior Appraised Value: | + | $0 | |
| (+) Non-Senior Appraised Value: | + | $339,923 | |
| | | -------------------------- | |
| (=) Total Appraised Value: | = | $339,923 | |
| (–) Senior Exemption Loss: | – | $0 | |
| (–) Exemption Loss: | – | $0 | |
| | | -------------------------- | |
| (=) Taxable Value: | = | $339,923 | |
Taxing Jurisdiction
| Owner: | BERTELSON, CLIFFORD N | | |
| % Ownership: | 100.0000000000% | | |
| Total Value: | $339,923 | | |
| Tax Area: | 112 - APPRAISER-OH Schl Dist, outside OH, improved, greater than 1 acre |
| CF | Conservation Futures | 0.0316035091 | $339,923 | $339,923 | $10.74 | | |
| CEM1 | Cemetery #1 | 0.0040320932 | $339,923 | $339,923 | $1.37 | | |
| FIRE2 | Fire & Rescue Dist #2 N Whidbey GEN | 0.5475949600 | $339,923 | $339,923 | $186.14 | | |
| HOBOND | Hospital BOND | 0.1910887512 | $339,923 | $339,923 | $64.96 | | |
| HOGEN | Hospital GEN | 0.3902502903 | $339,923 | $339,923 | $132.66 | | |
| CE | County Current Expense | 0.3708482477 | $339,923 | $339,923 | $126.06 | | |
| CR | County Roads | 0.4584763726 | $339,923 | $339,923 | $155.85 | | |
| ISLANDEMS | Hospital GEN (EMS) | 0.5000000000 | $339,923 | $339,923 | $169.96 | | |
| LIB | Library Sno-Isle GEN | 0.3153421757 | $339,923 | $339,923 | $107.19 | | |
| NWHIDPRMT | P & R N Whidbey GEN | 0.2004466701 | $339,923 | $339,923 | $68.14 | | |
| SCH201MO | School 201 Enrichment | 1.8559231640 | $339,923 | $339,923 | $630.87 | | |
| ST | State School | 1.3035497053 | $339,923 | $339,923 | $443.11 | | |
| ST2 | State School Part 2 | 0.8169543533 | $339,923 | $339,923 | $277.70 | | |
| | Total Tax Rate: | 6.9861102925 | | | | | |
| | | | | Taxes w/Current Exemptions: | $2,374.75 | | |
| | | | | Taxes w/o Exemptions: | $2,374.75 | | |
Improvement / Building
| Improvement #1: | MANUFACTURED HOME | State Code: | Y | 1152.0 sqft | Value: | $39,923 |
| Bathrooms: | 0 | Bedrooms: | 0 | | Ceiling: | PLASTER PAINTED | Cooling: | EVAP NO DUCT | | Exterior Wall/Cover: | VINYL | Floor Covering: | CARPET 100% | | Floor Structure: | SLAB ON GRADE | Foundation: | SLAB | | Heating: | FHA ELECTRIC | Interior Finish: | PLASTER | | Plumbing Fixture Cnt: | 1 | Roof Slope: | FLAT | | Roof Structure/Cover: | CJ ALUMINIUM HEAVY |   |   |
|
| | Type | Description | Class CD | Sub Class CD | Year Built | Area |
| | BAS | BASE/MAIN FLOOR | 3 | 0 | 1974 | 1152.0 |
| | oPOL | POLE BARN | 3 | 0 | 1974 | 0.0 |
| | OWP | OPEN WOOD PORCH W/STEPS | 3 | 0 | 1974 | 256.0 |
Sketch
Property Image
Land
| 1 | 32 | AC (03.01-09.99) | 5.0000 | 0.00 | 0.00 | 0.00 | 1.00 | $300,000 | $0 |
Roll Value History
| 2026 | N/A | N/A | N/A | N/A | N/A |
| 2025 | $39,923 | $300,000 | $0 | $339,923 | $339,923 |
| 2024 | $42,127 | $280,000 | $0 | $322,127 | $322,127 |
| 2023 | $44,332 | $270,000 | $0 | $314,332 | $314,332 |
| 2022 | $41,535 | $240,000 | $0 | $281,535 | $281,535 |
| 2021 | $38,507 | $175,000 | $0 | $213,507 | $213,507 |
| 2020 | $39,140 | $140,000 | $0 | $179,140 | $175,808 |
| 2019 | $33,304 | $200,000 | $0 | $233,304 | $175,808 |
| 2018 | $34,557 | $175,000 | $0 | $209,557 | $175,808 |
| 2017 | $35,808 | $140,000 | $0 | $175,808 | $175,808 |
| 2016 | $17,037 | $140,000 | $0 | $157,037 | $157,037 |
| 2015 | $17,938 | $120,000 | $0 | $137,938 | $137,938 |
| 2014 | $18,390 | $113,000 | $0 | $131,390 | $131,390 |
| 2013 | $19,292 | $112,500 | $0 | $131,792 | $131,792 |
| 2012 | $19,743 | $112,500 | $0 | $132,243 | $132,243 |
| 2011 | $20,645 | $125,000 | $0 | $145,645 | $145,645 |
| 2010 | $33,300 | $125,000 | $0 | $158,300 | $158,300 |
| 2009 | $34,531 | $125,000 | $0 | $159,531 | $159,531 |
| 2008 | $35,415 | $142,500 | $0 | $177,915 | $177,915 |
| 2007 | $36,266 | $142,500 | $0 | $178,766 | $178,766 |
Deed and Sales History
| 1 | 06/01/1980 | OTHER | Other - Misc. Documents | BERTELSON, CLIFFORD N | BERTELSON, CLIFFORD N | | | $12,000.00 | 1999 | 0 |
| 2 | 06/01/1980 | REC | Real Estate Contract | REF:, AFF#4019 1 | BERTELSON, CLIFFORD N | | | $37,950.00 | 1999 | 369951 |
| 3 | 01/01/1900 | OTHER | Other - Misc. Documents | WILSEY, THOMAS O | REF:, AFF#4019 1 | | | $0.00 | 0 | 0 |
| 4 | 01/01/1900 | OTHER | Other - Misc. Documents | WILSEY, THOMAS O | WILSEY, THOMAS O | | | $10,030.00 | 0 | 0 |
| 5 | 01/01/1900 | OTHER | Other - Misc. Documents | Unknown | WILSEY, THOMAS O | | | $0.00 | 0 | 0 |
Payout Agreement
| No payout information available.. |