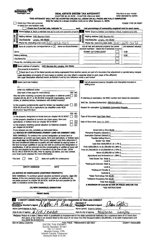
Property
Account |
| Property ID: | 311674 | Abbreviated Legal Description: | LOST LK GRV 4 LOT 18 BLK 2 |
| Geographic ID: | S7410-04-02018-0 | Agent Code: | |
| Type: | Real | | |
| Tax Area: | 510 - APPRAISER-Stan/Cam Schl Dist, improved & 1 acre or less | Land Use Code | 11 |
| Open Space: | N | DFL | N |
| Historic Property: | N | Remodel Property: | N |
| Multi-Family Redevelopment: | N | | |
| Township: | | Section: | |
| Range: | |
Location |
| Address: | 1672 ASPEN DR CAMANO ISLAND, WA 98282 | Mapsco: | |
| Neighborhood: | Cycle 5 | Map ID: | 511 |
| Neighborhood CD: | 5 |
Owner |
| Name: | FRESHOUR, MELODY | Owner ID: | 312915 |
| Mailing Address: | 1672 ASPEN DR CAMANO ISLAND, WA 98282 | % Ownership: | 100.0000000000% |
| | | Exemptions: | |
Taxes and Assessment Details
Values
| (+) Improvement Homesite Value: | + | $0 | |
| (+) Improvement Non-Homesite Value: | + | $240,138 | |
| (+) Land Homesite Value: | + | $0 | |
| (+) Land Non-Homesite Value: | + | $250,000 | |
| (+) Curr Use (HS): | + | $0 | $0 |
| (+) Curr Use (NHS): | + | $0 | $0 |
| | | -------------------------- | |
| (=) Market Value: | = | $490,138 | |
| (–) Productivity Loss: | – | $0 | |
| | | -------------------------- | |
| (=) Subtotal: | = | $490,138 | |
| (+) Senior Appraised Value: | + | $0 | |
| (+) Non-Senior Appraised Value: | + | $490,138 | |
| | | -------------------------- | |
| (=) Total Appraised Value: | = | $490,138 | |
| (–) Senior Exemption Loss: | – | $0 | |
| (–) Exemption Loss: | – | $0 | |
| | | -------------------------- | |
| (=) Taxable Value: | = | $490,138 | |
Taxing Jurisdiction
| Owner: | FRESHOUR, MELODY | | |
| % Ownership: | 100.0000000000% | | |
| Total Value: | $490,138 | | |
| Tax Area: | 510 - APPRAISER-Stan/Cam Schl Dist, improved & 1 acre or less |
| CF | Conservation Futures | 0.0316035091 | $490,138 | $490,138 | $15.49 | | |
| EMS1 | Fire & Rescue Dist #1 Camano GEN (EMS) | 0.3677864386 | $490,138 | $490,138 | $180.27 | | |
| FIRE1 | Fire & Rescue Dist #1 Camano GEN | 1.2502910536 | $490,138 | $490,138 | $612.82 | | |
| FIRE1BOND | Fire & Rescue Dist #1 Camano BOND | 0.1570001679 | $490,138 | $490,138 | $76.95 | | |
| CE | County Current Expense | 0.3708482477 | $490,138 | $490,138 | $181.77 | | |
| CR | County Roads | 0.4584763726 | $490,138 | $490,138 | $224.72 | | |
| LCIB | Library Sno-Isle BOND (Camano Island) | 0.0396325772 | $490,138 | $490,138 | $19.43 | | |
| LIB | Library Sno-Isle GEN | 0.3153421757 | $490,138 | $490,138 | $154.56 | | |
| SCH205_401 | School 205-401 Enrichment | 1.2698420524 | $490,138 | $490,138 | $622.40 | | |
| SCH205BOND | School 205-401 BOND | 0.9396497583 | $490,138 | $490,138 | $460.56 | | |
| ST | State School | 1.3035497053 | $490,138 | $490,138 | $638.92 | | |
| ST2 | State School Part 2 | 0.8169543533 | $490,138 | $490,138 | $400.42 | | |
| | Total Tax Rate: | 7.3209764117 | | | | | |
| | | | | Taxes w/Current Exemptions: | $3,588.31 | | |
| | | | | Taxes w/o Exemptions: | $3,588.31 | | |
Improvement / Building
| Improvement #1: | RESIDENTIAL | State Code: | Y | 1155.4 sqft | Value: | $240,138 |
| Bathrooms: | 2 | Bedrooms: | 2 | | Ceiling: | DRYWALL PAINTED | Cooling: | HEAT PUMP/CONV/V | | Exterior Wall/Cover: | CEMENT FIBER | Floor Covering: | CARPET/VINYL 60-40 | | Floor Structure: | WOOD W/SUBFLOOR | Foundation: | SLAB | | Interior Finish: | DRYWALL PAINT | Plumbing Fixture Cnt: | 9 | | Roof Slope: | 12" IN 12" | Roof Structure/Cover: | CJ ASPHALT |
|
| | Type | Description | Class CD | Sub Class CD | Year Built | Area |
| | BAS | BASE/MAIN FLOOR | 3 | 0 | 2024 | 579.2 |
| | UPS | UPPER STORY | 3 | 0 | 2024 | 576.2 |
| | OP4 | OPEN PORCH W/CEILING-ROOF | 3 | 0 | 2024 | 63.1 |
Sketch
Property Image
Land
| 1 | 15 | SQ (12001-21780) | 0.0000 | 0.00 | 0.00 | 0.00 | 1.00 | $250,000 | $0 |
Roll Value History
| 2026 | N/A | N/A | N/A | N/A | N/A |
| 2025 | $240,138 | $250,000 | $0 | $490,138 | $490,138 |
| 2024 | $232,192 | $240,000 | $0 | $472,192 | $472,192 |
| 2023 | $0 | $120,000 | $0 | $120,000 | $120,000 |
| 2022 | $0 | $115,000 | $0 | $115,000 | $115,000 |
| 2021 | $0 | $45,000 | $0 | $45,000 | $45,000 |
| 2020 | $0 | $45,000 | $0 | $45,000 | $45,000 |
| 2019 | $0 | $45,000 | $0 | $45,000 | $45,000 |
| 2018 | $0 | $45,000 | $0 | $45,000 | $45,000 |
| 2017 | $0 | $45,000 | $0 | $45,000 | $45,000 |
| 2016 | $0 | $45,000 | $0 | $45,000 | $45,000 |
| 2015 | $0 | $45,000 | $0 | $45,000 | $45,000 |
| 2014 | $0 | $45,000 | $0 | $45,000 | $45,000 |
| 2013 | $0 | $45,000 | $0 | $45,000 | $45,000 |
| 2012 | $0 | $45,000 | $0 | $45,000 | $45,000 |
| 2011 | $0 | $45,000 | $0 | $45,000 | $45,000 |
| 2010 | $0 | $45,000 | $0 | $45,000 | $45,000 |
| 2009 | $0 | $45,000 | $0 | $45,000 | $45,000 |
| 2008 | $0 | $45,000 | $0 | $45,000 | $45,000 |
| 2007 | $0 | $45,000 | $0 | $45,000 | $45,000 |
Deed and Sales History
| 1 | 06/20/2024 | WD | Warranty Deed | RAEBURN HOMES, LLC | FRESHOUR, MELODY | | | $525,000.00 | 60454 | 4573890 |
| 2 | 08/02/2023 | WD | Warranty Deed | WILSON, TYLER | RAEBURN HOMES, LLC | | | $60,000.00 | 57598 | 4563351 |
| 3 | 11/15/2019 | QCD | Quit Claim Deed | GLASPY TTEE, JEFFREY R | WILSON, TYLER | | | $15,855.00 | 41373 | 4477004 |
| 4 | 01/17/2018 | QCD | Quit Claim Deed | GLASPY, JEFF | GLASPY TTEE, JEFFREY R | | | $0.00 | 33424 | 4441460 |
| 5 | 01/24/2017 | WD | Warranty Deed | MOORE, DONNA-MAY I | GLASPY, JEFF | | | $15,000.00 | 27896 | 4416107 |
| 6 | 03/12/2009 | PRD | Personal Representatives Deed | HANGA, DORENE M | MOORE, DONNA-MAY I | | | $0.00 | 90538 | 4246382 |
| 7 | 01/01/1900 | OTHER | Other - Misc. Documents | Unknown | HANGA, DORENE M | | | $0.00 | 0 | 0 |
Payout Agreement
| No payout information available.. |