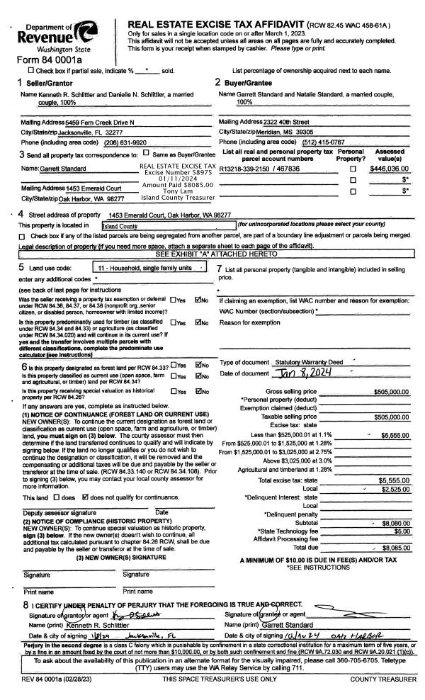
Property
Account |
| Property ID: | 311754 | Abbreviated Legal Description: | LOST LK GRV 4 LOT 26 BLK 2 |
| Geographic ID: | S7410-04-02026-0 | Agent Code: | |
| Type: | Real | | |
| Tax Area: | 510 - APPRAISER-Stan/Cam Schl Dist, improved & 1 acre or less | Land Use Code | 11 |
| Open Space: | N | DFL | N |
| Historic Property: | N | Remodel Property: | N |
| Multi-Family Redevelopment: | N | | |
| Township: | | Section: | |
| Range: | |
Location |
| Address: | 1626 ASPEN DR CAMANO ISLAND, WA 98282 | Mapsco: | |
| Neighborhood: | Cycle 5 | Map ID: | 511 |
| Neighborhood CD: | 5 |
Owner |
| Name: | DOWNEY, NELSON | Owner ID: | 310311 |
| Mailing Address: | 1626 ASPEN DR CAMANO ISLAND, WA 98282 | % Ownership: | 100.0000000000% |
| | | Exemptions: | |
Taxes and Assessment Details
Values
| (+) Improvement Homesite Value: | + | $0 | |
| (+) Improvement Non-Homesite Value: | + | $240,157 | |
| (+) Land Homesite Value: | + | $0 | |
| (+) Land Non-Homesite Value: | + | $250,000 | |
| (+) Curr Use (HS): | + | $0 | $0 |
| (+) Curr Use (NHS): | + | $0 | $0 |
| | | -------------------------- | |
| (=) Market Value: | = | $490,157 | |
| (–) Productivity Loss: | – | $0 | |
| | | -------------------------- | |
| (=) Subtotal: | = | $490,157 | |
| (+) Senior Appraised Value: | + | $0 | |
| (+) Non-Senior Appraised Value: | + | $490,157 | |
| | | -------------------------- | |
| (=) Total Appraised Value: | = | $490,157 | |
| (–) Senior Exemption Loss: | – | $0 | |
| (–) Exemption Loss: | – | $0 | |
| | | -------------------------- | |
| (=) Taxable Value: | = | $490,157 | |
Taxing Jurisdiction
| Owner: | DOWNEY, NELSON | | |
| % Ownership: | 100.0000000000% | | |
| Total Value: | $490,157 | | |
| Tax Area: | 510 - APPRAISER-Stan/Cam Schl Dist, improved & 1 acre or less |
| CF | Conservation Futures | 0.0316035091 | $490,157 | $490,157 | $15.49 | | |
| EMS1 | Fire & Rescue Dist #1 Camano GEN (EMS) | 0.3677864386 | $490,157 | $490,157 | $180.27 | | |
| FIRE1 | Fire & Rescue Dist #1 Camano GEN | 1.2502910536 | $490,157 | $490,157 | $612.84 | | |
| FIRE1BOND | Fire & Rescue Dist #1 Camano BOND | 0.1570001679 | $490,157 | $490,157 | $76.95 | | |
| CE | County Current Expense | 0.3708482477 | $490,157 | $490,157 | $181.77 | | |
| CR | County Roads | 0.4584763726 | $490,157 | $490,157 | $224.73 | | |
| LCIB | Library Sno-Isle BOND (Camano Island) | 0.0396325772 | $490,157 | $490,157 | $19.43 | | |
| LIB | Library Sno-Isle GEN | 0.3153421757 | $490,157 | $490,157 | $154.57 | | |
| SCH205_401 | School 205-401 Enrichment | 1.2698420524 | $490,157 | $490,157 | $622.42 | | |
| SCH205BOND | School 205-401 BOND | 0.9396497583 | $490,157 | $490,157 | $460.58 | | |
| ST | State School | 1.3035497053 | $490,157 | $490,157 | $638.94 | | |
| ST2 | State School Part 2 | 0.8169543533 | $490,157 | $490,157 | $400.44 | | |
| | Total Tax Rate: | 7.3209764117 | | | | | |
| | | | | Taxes w/Current Exemptions: | $3,588.43 | | |
| | | | | Taxes w/o Exemptions: | $3,588.43 | | |
Improvement / Building
| Improvement #1: | RESIDENTIAL | State Code: | Y | 1296.4 sqft | Value: | $240,157 |
| Bathrooms: | 2 | Bedrooms: | 2 | | Ceiling: | DRYWALL PAINTED | Exterior Wall/Cover: | WOOD SIDING | | Floor Covering: | CARPET/VINYL 80-20 | Floor Structure: | WOOD W/SUBFLOOR | | Foundation: | CONCRETE | Heating: | BASEBOARD ELECTRIC | | Interior Finish: | DRYWALL PAINT | Plumbing Fixture Cnt: | 9 | | Roof Slope: | 5" IN 12" | Roof Structure/Cover: | CJ ASPHALT |
|
| | Type | Description | Class CD | Sub Class CD | Year Built | Area |
| | BAS | BASE/MAIN FLOOR | 3 | 0 | 1969 | 1296.4 |
| | OWP | OPEN WOOD PORCH W/STEPS | 3 | 0 | 1969 | 32.0 |
| | OWC | OPEN WOOD PORCH W/STEPS/ROOF/C | 3 | 0 | 1969 | 36.0 |
| | OWP | OPEN WOOD PORCH W/STEPS | 3 | 0 | 1969 | 64.0 |
Sketch
Property Image
Land
| 1 | 15 | SQ (12001-21780) | 0.0000 | 0.00 | 0.00 | 0.00 | 1.00 | $250,000 | $0 |
Roll Value History
| 2026 | N/A | N/A | N/A | N/A | N/A |
| 2025 | $240,157 | $250,000 | $0 | $490,157 | $490,157 |
| 2024 | $247,304 | $240,000 | $0 | $487,304 | $487,304 |
| 2023 | $263,191 | $240,000 | $0 | $503,191 | $503,191 |
| 2022 | $240,280 | $210,000 | $0 | $450,280 | $450,280 |
| 2021 | $96,812 | $170,000 | $0 | $266,812 | $266,812 |
| 2020 | $95,032 | $130,000 | $0 | $225,032 | $225,032 |
| 2019 | $67,811 | $150,000 | $0 | $217,811 | $217,811 |
| 2018 | $68,148 | $125,000 | $0 | $193,148 | $193,148 |
| 2017 | $68,823 | $90,000 | $0 | $158,823 | $158,823 |
| 2016 | $70,172 | $75,000 | $0 | $145,172 | $145,172 |
| 2015 | $72,764 | $52,000 | $0 | $124,764 | $124,764 |
| 2014 | $74,121 | $52,000 | $0 | $126,121 | $126,121 |
| 2013 | $75,480 | $52,000 | $0 | $127,480 | $127,480 |
| 2012 | $76,836 | $52,000 | $0 | $128,836 | $128,836 |
| 2011 | $78,193 | $65,000 | $0 | $143,193 | $143,193 |
| 2010 | $86,356 | $84,000 | $0 | $170,356 | $170,356 |
| 2009 | $90,339 | $90,000 | $0 | $180,339 | $180,339 |
| 2008 | $91,717 | $90,000 | $0 | $181,717 | $181,717 |
| 2007 | $93,095 | $90,000 | $0 | $183,095 | $183,095 |
Deed and Sales History
| 1 | 10/02/2023 | QCD | Quit Claim Deed | DOWNEY, TAMMY | DOWNEY, NELSON | | | $0.00 | 58157 | 4565355 |
| 2 | 09/27/2023 | WD | Warranty Deed | THOMPSON TTEE, DENISE A | DOWNEY, NELSON | | | $475,000.00 | 58156 | 4565354 |
| 3 | 05/19/2021 | WD | Warranty Deed | UBHI, TONY | THOMPSON TTEE, DENISE A | | | $453,000.00 | 48389 | 4520145 |
| 4 | 11/04/2020 | WD | Warranty Deed | DOUGLASS, FRED M | UBHI, TONY | | | $165,000.00 | 45566 | 4501548 |
| 5 | 10/22/2001 | QCD | Quit Claim Deed | DOUGLASS, FRED M | DOUGLASS, FRED M | | | $0.00 | 14199 | 4001589 |
| 6 | 07/01/1992 | DECREE | Divorce Decree/Legal Separation | ORMAN, HELEN J | DOUGLASS, FRED M | | | $0.00 | 23066 | 92014920 |
| 7 | 05/01/1983 | QCD | Quit Claim Deed | DOUGLASS, FRED M | ORMAN, HELEN J | | | $0.00 | 31421 | 410194 |
| 8 | 05/01/1983 | WD | Warranty Deed | ORMAN, HELEN J | DOUGLASS, FRED M | | | $45,000.00 | 31420 | 410193 |
| 9 | 01/01/1900 | OTHER | Other - Misc. Documents | Unknown | ORMAN, HELEN J | | | $0.00 | 0 | 0 |
Payout Agreement
| No payout information available.. |