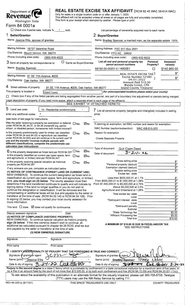
Property
Account |
| Property ID: | 311807 | Abbreviated Legal Description: | LOST LK GRV 4 LOT 5 BLK 3 |
| Geographic ID: | S7410-04-03005-0 | Agent Code: | |
| Type: | Real | | |
| Tax Area: | 510 - APPRAISER-Stan/Cam Schl Dist, improved & 1 acre or less | Land Use Code | 11 |
| Open Space: | N | DFL | N |
| Historic Property: | N | Remodel Property: | N |
| Multi-Family Redevelopment: | N | | |
| Township: | | Section: | |
| Range: | |
Location |
| Address: | 1698 VINE MAPLE LN CAMANO ISLAND, WA 98282 | Mapsco: | |
| Neighborhood: | Cycle 5 | Map ID: | 511 |
| Neighborhood CD: | 5 |
Owner |
| Name: | SUTTON, RYAN D | Owner ID: | 292066 |
| Mailing Address: | AVERIL A SUTTON 1698 VINE MAPLE LN CAMANO ISLAND, WA 98282 | % Ownership: | 100.0000000000% |
| | | Exemptions: | |
Taxes and Assessment Details
Values
| (+) Improvement Homesite Value: | + | $0 | |
| (+) Improvement Non-Homesite Value: | + | $280,374 | |
| (+) Land Homesite Value: | + | $0 | |
| (+) Land Non-Homesite Value: | + | $250,000 | |
| (+) Curr Use (HS): | + | $0 | $0 |
| (+) Curr Use (NHS): | + | $0 | $0 |
| | | -------------------------- | |
| (=) Market Value: | = | $530,374 | |
| (–) Productivity Loss: | – | $0 | |
| | | -------------------------- | |
| (=) Subtotal: | = | $530,374 | |
| (+) Senior Appraised Value: | + | $0 | |
| (+) Non-Senior Appraised Value: | + | $530,374 | |
| | | -------------------------- | |
| (=) Total Appraised Value: | = | $530,374 | |
| (–) Senior Exemption Loss: | – | $0 | |
| (–) Exemption Loss: | – | $0 | |
| | | -------------------------- | |
| (=) Taxable Value: | = | $530,374 | |
Taxing Jurisdiction
| Owner: | SUTTON, RYAN D | | |
| % Ownership: | 100.0000000000% | | |
| Total Value: | $530,374 | | |
| Tax Area: | 510 - APPRAISER-Stan/Cam Schl Dist, improved & 1 acre or less |
| CF | Conservation Futures | 0.0316035091 | $530,374 | $530,374 | $16.76 | | |
| EMS1 | Fire & Rescue Dist #1 Camano GEN (EMS) | 0.3677864386 | $530,374 | $530,374 | $195.06 | | |
| FIRE1 | Fire & Rescue Dist #1 Camano GEN | 1.2502910536 | $530,374 | $530,374 | $663.12 | | |
| FIRE1BOND | Fire & Rescue Dist #1 Camano BOND | 0.1570001679 | $530,374 | $530,374 | $83.27 | | |
| CE | County Current Expense | 0.3708482477 | $530,374 | $530,374 | $196.69 | | |
| CR | County Roads | 0.4584763726 | $530,374 | $530,374 | $243.16 | | |
| LCIB | Library Sno-Isle BOND (Camano Island) | 0.0396325772 | $530,374 | $530,374 | $21.02 | | |
| LIB | Library Sno-Isle GEN | 0.3153421757 | $530,374 | $530,374 | $167.25 | | |
| SCH205_401 | School 205-401 Enrichment | 1.2698420524 | $530,374 | $530,374 | $673.49 | | |
| SCH205BOND | School 205-401 BOND | 0.9396497583 | $530,374 | $530,374 | $498.37 | | |
| ST | State School | 1.3035497053 | $530,374 | $530,374 | $691.37 | | |
| ST2 | State School Part 2 | 0.8169543533 | $530,374 | $530,374 | $433.29 | | |
| | Total Tax Rate: | 7.3209764117 | | | | | |
| | | | | Taxes w/Current Exemptions: | $3,882.85 | | |
| | | | | Taxes w/o Exemptions: | $3,882.85 | | |
Improvement / Building
| Improvement #1: | RESIDENTIAL | State Code: | Y | 1533.0 sqft | Value: | $280,374 |
| Bathrooms: | 2 | Bedrooms: | 2 | | Ceiling: | DRYWALL PAINTED | Exterior Wall/Cover: | PLY/HARDBOARD T-111 | | Floor Covering: | CARPET/VINYL 20-80 | Floor Structure: | WOOD W/SUBFLOOR | | Foundation: | CONCRETE | Heating: | FHA GAS | | Interior Finish: | DRYWALL PAINT | Plumbing Fixture Cnt: | 9 | | Roof Slope: | 5" IN 12" | Roof Structure/Cover: | CJ ASPHALT |
|
| | Type | Description | Class CD | Sub Class CD | Year Built | Area |
| | BAS | BASE/MAIN FLOOR | 3 | 0 | 1996 | 1533.0 |
| | OP4 | OPEN PORCH W/CEILING-ROOF | 3 | 0 | 1996 | 45.0 |
| | AGR | ATTACHED GARAGE | 3 | 0 | 1996 | 483.0 |
| | UTY | STORAGE/UTILITY | 3 | 0 | 1996 | 240.0 |
| | UTY | STORAGE/UTILITY | 3 | 0 | 1996 | 96.0 |
Sketch
Property Image
Land
| 1 | 15 | SQ (12001-21780) | 0.0000 | 0.00 | 0.00 | 0.00 | 1.00 | $250,000 | $0 |
Roll Value History
| 2026 | N/A | N/A | N/A | N/A | N/A |
| 2025 | $280,374 | $250,000 | $0 | $530,374 | $530,374 |
| 2024 | $283,826 | $240,000 | $0 | $523,826 | $523,826 |
| 2023 | $287,275 | $240,000 | $0 | $527,275 | $527,275 |
| 2022 | $263,264 | $210,000 | $0 | $473,264 | $473,264 |
| 2021 | $215,088 | $170,000 | $0 | $385,088 | $385,088 |
| 2020 | $209,561 | $130,000 | $0 | $339,561 | $339,561 |
| 2019 | $152,540 | $150,000 | $0 | $302,540 | $302,540 |
| 2018 | $152,987 | $125,000 | $0 | $277,987 | $277,987 |
| 2017 | $153,882 | $90,000 | $0 | $243,882 | $243,882 |
| 2016 | $155,672 | $75,000 | $0 | $230,672 | $230,672 |
| 2015 | $152,242 | $52,000 | $0 | $204,242 | $204,242 |
| 2014 | $154,038 | $52,000 | $0 | $206,038 | $206,038 |
| 2013 | $155,836 | $52,000 | $0 | $207,836 | $207,836 |
| 2012 | $157,632 | $52,000 | $0 | $209,632 | $209,632 |
| 2011 | $159,429 | $65,000 | $0 | $224,429 | $224,429 |
| 2010 | $167,165 | $84,000 | $0 | $251,165 | $251,165 |
| 2009 | $174,750 | $90,000 | $0 | $264,750 | $264,750 |
| 2008 | $177,253 | $90,000 | $0 | $267,253 | $267,253 |
| 2007 | $179,745 | $90,000 | $0 | $269,745 | $269,745 |
Deed and Sales History
| 1 | 09/25/2019 | QCD | Quit Claim Deed | SUTTON, RYAN | SUTTON, RYAN D | | | $0.00 | 40529 | 4472554 |
| 2 | 06/25/2008 | WD | Warranty Deed | DEVEREAUX, JEREME D | SUTTON, RYAN | | | $255,500.00 | 81994 | 4233975 |
| 3 | 04/22/2003 | WD | Warranty Deed | IHLER, LILA M | DEVEREAUX, JEREME D | | | $170,000.00 | 31689 | 4056236 |
| 4 | 01/12/1999 | WD | Warranty Deed | HUBBELL, JAMES D | IHLER, LILA M | | | $143,000.00 | 90219 | 99001318 |
| 5 | 06/01/1995 | QCD | Quit Claim Deed | HUBBELL, JAMES D | HUBBELL, JAMES D | | | $0.00 | 52187 | 95010108 |
| 6 | 05/01/1992 | DECREE | Divorce Decree/Legal Separation | HUBBELL, JAMES D | HUBBELL, JAMES D | | | $0.00 | 54236 | 95019579 |
| 7 | 02/01/1967 | EXECUTORD | Executor Deed | COE, ROBERT C | HUBBELL, JAMES D | | | $0.00 | 26052 | 0 |
| 8 | 01/01/1900 | OTHER | Other - Misc. Documents | Unknown | COE, ROBERT C | | | $0.00 | 0 | 0 |
Payout Agreement
| No payout information available.. |