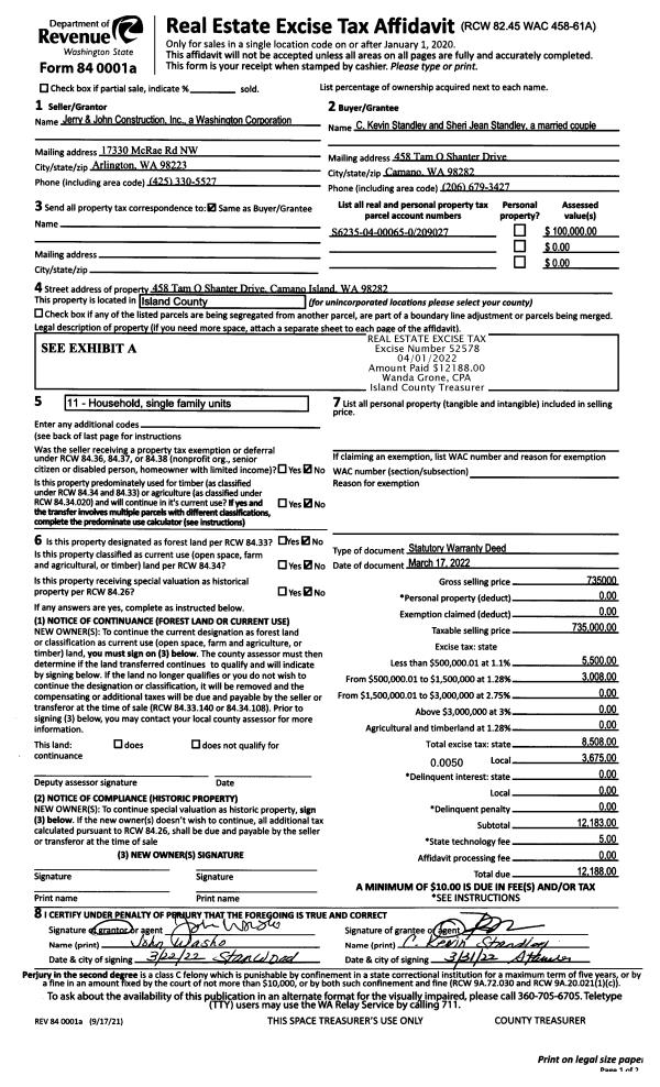
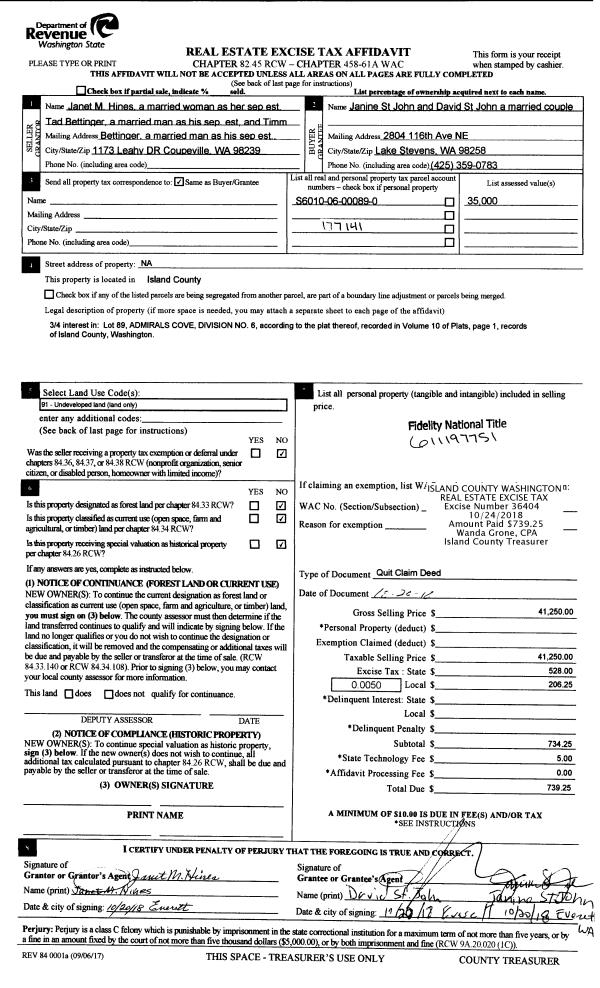
Property
Account |
| Property ID: | 311870 | Abbreviated Legal Description: | LOST LK GRV 4 LOT 12 BLK 3 |
| Geographic ID: | S7410-04-03012-0 | Agent Code: | |
| Type: | Real | | |
| Tax Area: | 510 - APPRAISER-Stan/Cam Schl Dist, improved & 1 acre or less | Land Use Code | 11 |
| Open Space: | N | DFL | N |
| Historic Property: | N | Remodel Property: | N |
| Multi-Family Redevelopment: | N | | |
| Township: | | Section: | |
| Range: | |
Location |
| Address: | 1666 VINE MAPLE LN CAMANO ISLAND, WA 98282 | Mapsco: | |
| Neighborhood: | Cycle 5 | Map ID: | 511 |
| Neighborhood CD: | 5 |
Owner |
| Name: | OLCOTT, CATHERINE N.D. | Owner ID: | 310036 |
| Mailing Address: | 1666 VINE MAPLE LN CAMANO ISLAND, WA 98282 | % Ownership: | 100.0000000000% |
| | | Exemptions: | |
Taxes and Assessment Details
Values
| (+) Improvement Homesite Value: | + | $0 | |
| (+) Improvement Non-Homesite Value: | + | $222,680 | |
| (+) Land Homesite Value: | + | $0 | |
| (+) Land Non-Homesite Value: | + | $250,000 | |
| (+) Curr Use (HS): | + | $0 | $0 |
| (+) Curr Use (NHS): | + | $0 | $0 |
| | | -------------------------- | |
| (=) Market Value: | = | $472,680 | |
| (–) Productivity Loss: | – | $0 | |
| | | -------------------------- | |
| (=) Subtotal: | = | $472,680 | |
| (+) Senior Appraised Value: | + | $0 | |
| (+) Non-Senior Appraised Value: | + | $472,680 | |
| | | -------------------------- | |
| (=) Total Appraised Value: | = | $472,680 | |
| (–) Senior Exemption Loss: | – | $0 | |
| (–) Exemption Loss: | – | $0 | |
| | | -------------------------- | |
| (=) Taxable Value: | = | $472,680 | |
Taxing Jurisdiction
| Owner: | OLCOTT, CATHERINE N.D. | | |
| % Ownership: | 100.0000000000% | | |
| Total Value: | $472,680 | | |
| Tax Area: | 510 - APPRAISER-Stan/Cam Schl Dist, improved & 1 acre or less |
| CF | Conservation Futures | 0.0316035091 | $472,680 | $472,680 | $14.94 | | |
| EMS1 | Fire & Rescue Dist #1 Camano GEN (EMS) | 0.3677864386 | $472,680 | $472,680 | $173.85 | | |
| FIRE1 | Fire & Rescue Dist #1 Camano GEN | 1.2502910536 | $472,680 | $472,680 | $590.99 | | |
| FIRE1BOND | Fire & Rescue Dist #1 Camano BOND | 0.1570001679 | $472,680 | $472,680 | $74.21 | | |
| CE | County Current Expense | 0.3708482477 | $472,680 | $472,680 | $175.29 | | |
| CR | County Roads | 0.4584763726 | $472,680 | $472,680 | $216.71 | | |
| LCIB | Library Sno-Isle BOND (Camano Island) | 0.0396325772 | $472,680 | $472,680 | $18.73 | | |
| LIB | Library Sno-Isle GEN | 0.3153421757 | $472,680 | $472,680 | $149.06 | | |
| SCH205_401 | School 205-401 Enrichment | 1.2698420524 | $472,680 | $472,680 | $600.23 | | |
| SCH205BOND | School 205-401 BOND | 0.9396497583 | $472,680 | $472,680 | $444.15 | | |
| ST | State School | 1.3035497053 | $472,680 | $472,680 | $616.16 | | |
| ST2 | State School Part 2 | 0.8169543533 | $472,680 | $472,680 | $386.16 | | |
| | Total Tax Rate: | 7.3209764117 | | | | | |
| | | | | Taxes w/Current Exemptions: | $3,460.48 | | |
| | | | | Taxes w/o Exemptions: | $3,460.48 | | |
Improvement / Building
| Improvement #1: | RESIDENTIAL | State Code: | Y | 1316.5 sqft | Value: | $222,680 |
| Bathrooms: | 2 | Bedrooms: | 3 | | Ceiling: | DRYWALL PAINTED | Exterior Wall/Cover: | CEMENT FIBER | | Floor Covering: | HARDWOOD/CARP 20-80 | Floor Structure: | SLAB ON GRADE | | Foundation: | CONCRETE | Heating: | WALL HEAT ELECTRIC | | Interior Finish: | DRYWALL PAINT | Plumbing Fixture Cnt: | 9 | | Roof Slope: | 5" IN 12" | Roof Structure/Cover: | CJ ASPHALT |
|
| | Type | Description | Class CD | Sub Class CD | Year Built | Area |
| | BAS | BASE/MAIN FLOOR | 3 | 0 | 1997 | 1316.5 |
| | OP1 | OPEN PORCH SLAB | 3 | 0 | 1997 | 224.0 |
| | OP4 | OPEN PORCH W/CEILING-ROOF | 3 | 0 | 1997 | 12.2 |
| | AGR | ATTACHED GARAGE | 3 | 0 | 1997 | 400.0 |
Sketch
Property Image
Land
| 1 | 15 | SQ (12001-21780) | 0.0000 | 0.00 | 0.00 | 0.00 | 1.00 | $250,000 | $0 |
Roll Value History
| 2026 | N/A | N/A | N/A | N/A | N/A |
| 2025 | $222,680 | $250,000 | $0 | $472,680 | $472,680 |
| 2024 | $225,490 | $240,000 | $0 | $465,490 | $465,490 |
| 2023 | $228,300 | $240,000 | $0 | $468,300 | $468,300 |
| 2022 | $209,265 | $210,000 | $0 | $419,265 | $419,265 |
| 2021 | $184,186 | $170,000 | $0 | $354,186 | $354,186 |
| 2020 | $179,127 | $130,000 | $0 | $309,127 | $309,127 |
| 2019 | $127,819 | $150,000 | $0 | $277,819 | $277,819 |
| 2018 | $128,196 | $125,000 | $0 | $253,196 | $253,196 |
| 2017 | $128,946 | $90,000 | $0 | $218,946 | $218,946 |
| 2016 | $130,446 | $75,000 | $0 | $205,446 | $205,446 |
| 2015 | $115,904 | $52,000 | $0 | $167,904 | $167,904 |
| 2014 | $117,336 | $52,000 | $0 | $169,336 | $169,336 |
| 2013 | $118,766 | $52,000 | $0 | $170,766 | $170,766 |
| 2012 | $120,198 | $52,000 | $0 | $172,198 | $172,198 |
| 2011 | $121,628 | $65,000 | $0 | $186,628 | $186,628 |
| 2010 | $124,733 | $84,000 | $0 | $208,733 | $208,733 |
| 2009 | $130,495 | $90,000 | $0 | $220,495 | $220,495 |
| 2008 | $131,975 | $90,000 | $0 | $221,975 | $221,975 |
| 2007 | $133,468 | $90,000 | $0 | $223,468 | $223,468 |
Deed and Sales History
| 1 | 09/01/2023 | PRD | Personal Representatives Deed | STOLL, MAUREEN | OLCOTT, CATHERINE N.D. | | | $0.00 | 57950 | 4564596 |
| 2 | 09/07/2018 | WD | Warranty Deed | FISHER, MATTHEW RUSSELL | STOLL, MAUREEN | | | $330,000.00 | 35912 | 4451809 |
| 3 | 11/24/2015 | WD | Warranty Deed | URBANGUERILLAFILMS, INC. | FISHER, MATTHEW RUSSELL | | | $222,500.00 | 22321 | 4390279 |
| 4 | 04/22/2015 | SPWARDEED | Special Warranty Deed | BANK OF NEW YORK | URBANGUERILLAFILMS, INC. | | | $110,250.00 | 19453 | 4377874 |
| 5 | 11/19/2014 | TRUSTEED | Trustee's Deed | GERGICH III, JOHN E | BANK OF NEW YORK | | | $0.00 | 17627 | 4368772 |
| 6 | 04/25/2006 | 5 | DNU - Marriage License/Name Change | GERGICH, III, J | GERGICH III, JOHN E | | | $0.00 | 62010 | 4169720 |
| 7 | 11/01/1997 | WD | Warranty Deed | JONES, DARRYL R | GERGICH, III, J | | | $123,275.00 | 74118 | 97019778 |
| 8 | 08/01/1997 | WD | Warranty Deed | BOGGS, RAYMOND | JONES, DARRYL R | | | $24,500.00 | 72830 | 97013448 |
Payout Agreement
| No payout information available.. |