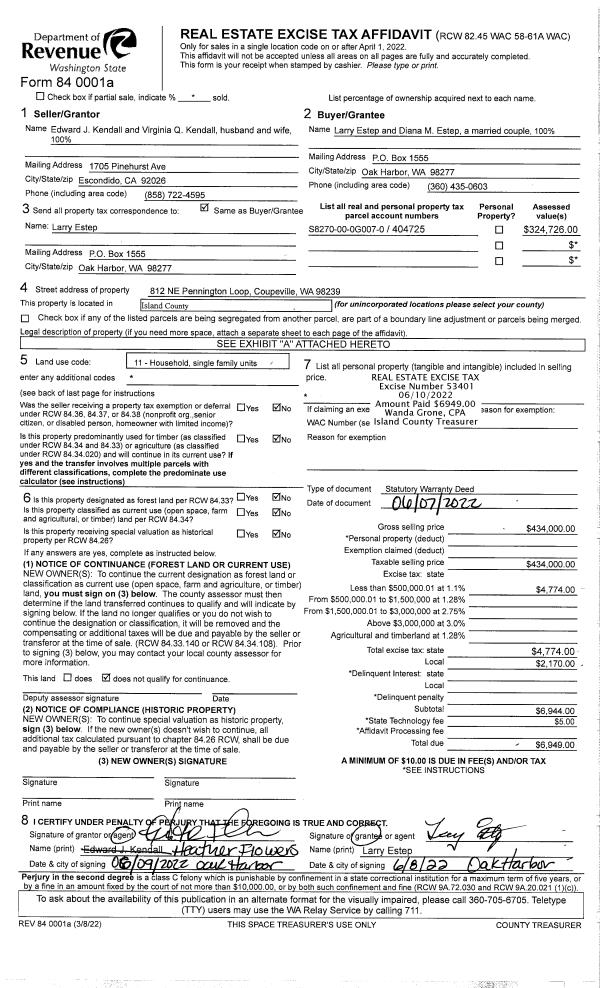
Property
Account |
| Property ID: | 312003 | Abbreviated Legal Description: | LOST LK GRV 4 LOT 25 BLK 3 |
| Geographic ID: | S7410-04-03025-0 | Agent Code: | |
| Type: | Real | | |
| Tax Area: | 510 - APPRAISER-Stan/Cam Schl Dist, improved & 1 acre or less | Land Use Code | 11 |
| Open Space: | N | DFL | N |
| Historic Property: | N | Remodel Property: | N |
| Multi-Family Redevelopment: | N | | |
| Township: | | Section: | |
| Range: | |
Location |
| Address: | 1633 SPRUCE RIDGE DR CAMANO ISLAND, WA 98282 | Mapsco: | |
| Neighborhood: | Cycle 5 | Map ID: | 511 |
| Neighborhood CD: | 5 |
Owner |
| Name: | GUERRA, LLODIA | Owner ID: | 65641 |
| Mailing Address: | JORGE GUERRA 1633 SPRUCE RIDGE DR CAMANO ISLAND, WA 98282 | % Ownership: | 100.0000000000% |
| | | Exemptions: | |
Taxes and Assessment Details
Values
| (+) Improvement Homesite Value: | + | $0 | |
| (+) Improvement Non-Homesite Value: | + | $180,798 | |
| (+) Land Homesite Value: | + | $0 | |
| (+) Land Non-Homesite Value: | + | $250,000 | |
| (+) Curr Use (HS): | + | $0 | $0 |
| (+) Curr Use (NHS): | + | $0 | $0 |
| | | -------------------------- | |
| (=) Market Value: | = | $430,798 | |
| (–) Productivity Loss: | – | $0 | |
| | | -------------------------- | |
| (=) Subtotal: | = | $430,798 | |
| (+) Senior Appraised Value: | + | $0 | |
| (+) Non-Senior Appraised Value: | + | $430,798 | |
| | | -------------------------- | |
| (=) Total Appraised Value: | = | $430,798 | |
| (–) Senior Exemption Loss: | – | $0 | |
| (–) Exemption Loss: | – | $0 | |
| | | -------------------------- | |
| (=) Taxable Value: | = | $430,798 | |
Taxing Jurisdiction
| Owner: | GUERRA, LLODIA | | |
| % Ownership: | 100.0000000000% | | |
| Total Value: | $430,798 | | |
| Tax Area: | 510 - APPRAISER-Stan/Cam Schl Dist, improved & 1 acre or less |
| CF | Conservation Futures | 0.0316035091 | $430,798 | $430,798 | $13.61 | | |
| EMS1 | Fire & Rescue Dist #1 Camano GEN (EMS) | 0.3677864386 | $430,798 | $430,798 | $158.44 | | |
| FIRE1 | Fire & Rescue Dist #1 Camano GEN | 1.2502910536 | $430,798 | $430,798 | $538.62 | | |
| FIRE1BOND | Fire & Rescue Dist #1 Camano BOND | 0.1570001679 | $430,798 | $430,798 | $67.64 | | |
| CE | County Current Expense | 0.3708482477 | $430,798 | $430,798 | $159.76 | | |
| CR | County Roads | 0.4584763726 | $430,798 | $430,798 | $197.51 | | |
| LCIB | Library Sno-Isle BOND (Camano Island) | 0.0396325772 | $430,798 | $430,798 | $17.07 | | |
| LIB | Library Sno-Isle GEN | 0.3153421757 | $430,798 | $430,798 | $135.85 | | |
| SCH205_401 | School 205-401 Enrichment | 1.2698420524 | $430,798 | $430,798 | $547.05 | | |
| SCH205BOND | School 205-401 BOND | 0.9396497583 | $430,798 | $430,798 | $404.80 | | |
| ST | State School | 1.3035497053 | $430,798 | $430,798 | $561.57 | | |
| ST2 | State School Part 2 | 0.8169543533 | $430,798 | $430,798 | $351.94 | | |
| | Total Tax Rate: | 7.3209764117 | | | | | |
| | | | | Taxes w/Current Exemptions: | $3,153.86 | | |
| | | | | Taxes w/o Exemptions: | $3,153.86 | | |
Improvement / Building
| Improvement #1: | MANUFACTURED HOME | State Code: | Y | 1674.0 sqft | Value: | $180,798 |
| Bathrooms: | 0 | Bedrooms: | 0 | | Ceiling: | PLASTER PAINTED | Cooling: | EVAP NO DUCT | | Exterior Wall/Cover: | VINYL | Floor Covering: | CARPET 100% | | Floor Structure: | SLAB ON GRADE | Foundation: | SLAB | | Heating: | FHA ELECTRIC | Interior Finish: | PLASTER | | Plumbing Fixture Cnt: | 1 | Roof Slope: | FLAT | | Roof Structure/Cover: | CJ ALUMINIUM HEAVY |   |   |
|
| | Type | Description | Class CD | Sub Class CD | Year Built | Area |
| | BAS | BASE/MAIN FLOOR | 4 | 0 | 2007 | 1674.0 |
| | OWP | OPEN WOOD PORCH W/STEPS | 4 | 0 | 2007 | 192.0 |
| | OWP | OPEN WOOD PORCH W/STEPS | 4 | 0 | 2007 | 64.0 |
| | DGR | DETACHED GARAGE | 4 | 0 | 2007 | 576.0 |
Sketch
Property Image
Land
| 1 | 15 | SQ (12001-21780) | 0.0000 | 0.00 | 0.00 | 0.00 | 1.00 | $250,000 | $0 |
Roll Value History
| 2026 | N/A | N/A | N/A | N/A | N/A |
| 2025 | $180,798 | $250,000 | $0 | $430,798 | $430,798 |
| 2024 | $182,733 | $240,000 | $0 | $422,733 | $422,733 |
| 2023 | $164,147 | $240,000 | $0 | $404,147 | $404,147 |
| 2022 | $151,514 | $210,000 | $0 | $361,514 | $361,514 |
| 2021 | $128,328 | $170,000 | $0 | $298,328 | $298,328 |
| 2020 | $126,300 | $130,000 | $0 | $256,300 | $256,300 |
| 2019 | $104,567 | $150,000 | $0 | $254,567 | $254,567 |
| 2018 | $105,579 | $125,000 | $0 | $230,579 | $230,579 |
| 2017 | $107,606 | $90,000 | $0 | $197,606 | $197,606 |
| 2016 | $108,619 | $75,000 | $0 | $183,619 | $183,619 |
| 2015 | $119,772 | $52,000 | $0 | $171,772 | $171,772 |
| 2014 | $121,513 | $52,000 | $0 | $173,513 | $173,513 |
| 2013 | $122,384 | $52,000 | $0 | $174,384 | $174,384 |
| 2012 | $123,254 | $52,000 | $0 | $175,254 | $175,254 |
| 2011 | $124,995 | $65,000 | $0 | $189,995 | $189,995 |
| 2010 | $124,560 | $84,000 | $0 | $208,560 | $208,560 |
| 2009 | $129,596 | $90,000 | $0 | $219,596 | $219,596 |
| 2008 | $132,012 | $90,000 | $0 | $222,012 | $222,012 |
| 2007 | $134,689 | $89,792 | $0 | $224,481 | $224,481 |
Deed and Sales History
| 1 | 04/27/2006 | WD | Warranty Deed | WILLIAMSON, MANFORD H | GUERRA, LLODIA | | | $49,000.00 | 62381 | 4171984 |
| 2 | 01/01/1900 | OTHER | Other - Misc. Documents | Unknown | WILLIAMSON, MANFORD H | | | $0.00 | 0 | 0 |
Payout Agreement
| No payout information available.. |