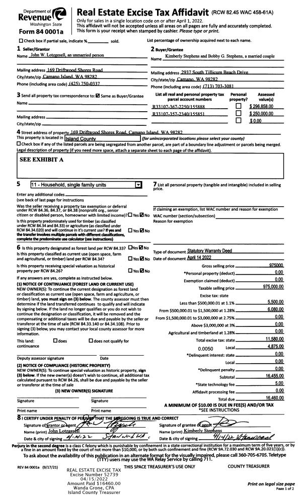
Property
Account |
| Property ID: | 312236 | Abbreviated Legal Description: | LOST LK GRV 4 LOT 5 BLK 5 |
| Geographic ID: | S7410-04-05005-0 | Agent Code: | |
| Type: | Real | | |
| Tax Area: | 510 - APPRAISER-Stan/Cam Schl Dist, improved & 1 acre or less | Land Use Code | 11 |
| Open Space: | N | DFL | N |
| Historic Property: | N | Remodel Property: | N |
| Multi-Family Redevelopment: | N | | |
| Township: | | Section: | |
| Range: | |
Location |
| Address: | 1593 LAKE DR CAMANO ISLAND, WA 98282 | Mapsco: | |
| Neighborhood: | Cycle 5 | Map ID: | 505 |
| Neighborhood CD: | 5 |
Owner |
| Name: | TANNER, JOSEPH G | Owner ID: | 289773 |
| Mailing Address: | 23500 SE 252ND CT MAPLE VALLEY, WA 98038 | % Ownership: | 100.0000000000% |
| | | Exemptions: | |
Taxes and Assessment Details
Values
| (+) Improvement Homesite Value: | + | $0 | |
| (+) Improvement Non-Homesite Value: | + | $417,623 | |
| (+) Land Homesite Value: | + | $0 | |
| (+) Land Non-Homesite Value: | + | $290,000 | |
| (+) Curr Use (HS): | + | $0 | $0 |
| (+) Curr Use (NHS): | + | $0 | $0 |
| | | -------------------------- | |
| (=) Market Value: | = | $707,623 | |
| (–) Productivity Loss: | – | $0 | |
| | | -------------------------- | |
| (=) Subtotal: | = | $707,623 | |
| (+) Senior Appraised Value: | + | $0 | |
| (+) Non-Senior Appraised Value: | + | $707,623 | |
| | | -------------------------- | |
| (=) Total Appraised Value: | = | $707,623 | |
| (–) Senior Exemption Loss: | – | $0 | |
| (–) Exemption Loss: | – | $0 | |
| | | -------------------------- | |
| (=) Taxable Value: | = | $707,623 | |
Taxing Jurisdiction
| Owner: | TANNER, JOSEPH G | | |
| % Ownership: | 100.0000000000% | | |
| Total Value: | $707,623 | | |
| Tax Area: | 510 - APPRAISER-Stan/Cam Schl Dist, improved & 1 acre or less |
| CF | Conservation Futures | 0.0316035091 | $707,623 | $707,623 | $22.36 | | |
| EMS1 | Fire & Rescue Dist #1 Camano GEN (EMS) | 0.3677864386 | $707,623 | $707,623 | $260.25 | | |
| FIRE1 | Fire & Rescue Dist #1 Camano GEN | 1.2502910536 | $707,623 | $707,623 | $884.73 | | |
| FIRE1BOND | Fire & Rescue Dist #1 Camano BOND | 0.1570001679 | $707,623 | $707,623 | $111.10 | | |
| CE | County Current Expense | 0.3708482477 | $707,623 | $707,623 | $262.42 | | |
| CR | County Roads | 0.4584763726 | $707,623 | $707,623 | $324.43 | | |
| LCIB | Library Sno-Isle BOND (Camano Island) | 0.0396325772 | $707,623 | $707,623 | $28.04 | | |
| LIB | Library Sno-Isle GEN | 0.3153421757 | $707,623 | $707,623 | $223.14 | | |
| SCH205_401 | School 205-401 Enrichment | 1.2698420524 | $707,623 | $707,623 | $898.57 | | |
| SCH205BOND | School 205-401 BOND | 0.9396497583 | $707,623 | $707,623 | $664.92 | | |
| ST | State School | 1.3035497053 | $707,623 | $707,623 | $922.42 | | |
| ST2 | State School Part 2 | 0.8169543533 | $707,623 | $707,623 | $578.10 | | |
| | Total Tax Rate: | 7.3209764117 | | | | | |
| | | | | Taxes w/Current Exemptions: | $5,180.48 | | |
| | | | | Taxes w/o Exemptions: | $5,180.48 | | |
Improvement / Building
| Improvement #1: | RESIDENTIAL | State Code: | Y | 1762.0 sqft | Value: | $417,623 |
| Bathrooms: | 2.5 | Bedrooms: | 3 | | Ceiling: | DRYWALL PAINTED | Exterior Wall/Cover: | CEMENT FIBER | | Floor Covering: | CARPET/VINYL 20-80 | Floor Structure: | WOOD W/SUBFLOOR | | Foundation: | CONCRETE | Heating: | FHA ELECTRIC | | Interior Finish: | DRYWALL PAINT | Plumbing Fixture Cnt: | 13 | | Roof Slope: | 12" IN 12" | Roof Structure/Cover: | CJ ALUMINIUM HEAVY |
|
| | Type | Description | Class CD | Sub Class CD | Year Built | Area |
| | BAS | BASE/MAIN FLOOR | 4 | 0 | 2020 | 1062.0 |
| | UPS | UPPER STORY | 4 | 0 | 2020 | 364.0 |
| | LOF | LOFT | 4 | 0 | 2020 | 336.0 |
| | DGR | DETACHED GARAGE | 4 | 0 | 2020 | 676.0 |
| | OWP | OPEN WOOD PORCH W/STEPS | 4 | 0 | 2020 | 260.0 |
| | OWR | OPEN WOOD PORCH W/STEPS/ROOF | 4 | 0 | 2020 | 20.0 |
Sketch
Property Image
Land
| 1 | 15 | SQ (12001-21780) | 0.0000 | 0.00 | 0.00 | 0.00 | 1.00 | $290,000 | $0 |
Roll Value History
| 2026 | N/A | N/A | N/A | N/A | N/A |
| 2025 | $417,623 | $290,000 | $0 | $707,623 | $707,623 |
| 2024 | $420,962 | $280,000 | $0 | $700,962 | $700,962 |
| 2023 | $424,303 | $270,000 | $0 | $694,303 | $694,303 |
| 2022 | $388,240 | $270,000 | $0 | $658,240 | $658,240 |
| 2021 | $268,966 | $45,000 | $0 | $313,966 | $313,966 |
| 2020 | $49,212 | $45,000 | $0 | $94,212 | $94,212 |
| 2019 | $0 | $45,000 | $0 | $45,000 | $45,000 |
| 2018 | $0 | $45,000 | $0 | $45,000 | $45,000 |
| 2017 | $0 | $45,000 | $0 | $45,000 | $45,000 |
| 2016 | $0 | $45,000 | $0 | $45,000 | $45,000 |
| 2015 | $19,930 | $52,000 | $0 | $71,930 | $71,930 |
| 2014 | $21,004 | $52,000 | $0 | $73,004 | $73,004 |
| 2013 | $21,542 | $64,000 | $0 | $85,542 | $85,542 |
| 2012 | $22,616 | $64,000 | $0 | $86,616 | $86,616 |
| 2011 | $23,690 | $80,000 | $0 | $103,690 | $103,690 |
| 2010 | $24,392 | $90,000 | $0 | $114,392 | $114,392 |
| 2009 | $27,489 | $90,000 | $0 | $117,489 | $117,489 |
| 2008 | $27,900 | $90,000 | $0 | $117,900 | $117,900 |
| 2007 | $28,457 | $90,000 | $0 | $118,457 | $118,457 |
Deed and Sales History
| 1 | 05/07/2019 | QCD | Quit Claim Deed | TANNER, MICHAEL E | TANNER, JOSEPH G | | | $0.00 | 38514 | 4463413 |
| 2 | 11/17/2006 | WD | Warranty Deed | BENNETT, MICHAEL A | TANNER, MICHAEL E | | | $145,000.00 | 64977 | 4187723 |
| 3 | 07/17/2000 | WD | Warranty Deed | PHILLIPS, F J | BENNETT, MICHAEL | | | $96,000.00 | 2703 | 0 |
| 4 | 07/17/2000 | WD | Warranty Deed | BENNETT, MICHAEL | BENNETT, MICHAEL A | | | $96,000.00 | 2703 | 20012785 |
| 5 | 08/01/1990 | OTHER | Other - Misc. Documents | PHILLIPS, F J | PHILLIPS, F J | | | $17,984.00 | 4947 | 0 |
| 6 | 08/01/1990 | WD | Warranty Deed | PHILLIPS, F J | PHILLIPS, F J | | | $59,516.00 | 4948 | 90016452 |
| 7 | 08/01/1990 | QCD | Quit Claim Deed | KULENKAMP, DONALD L | PHILLIPS, F J | | | $0.00 | 4949 | 90016454 |
| 8 | 06/01/1979 | OTHER | Other - Misc. Documents | KULENKAMP, DONALD L | KULENKAMP, DONALD L | | | $19,000.00 | 93572 | 0 |
| 9 | 06/01/1979 | TRUSTEED | Trustee's Deed | SOLLENBERGER, HAROLD | KULENKAMP, DONALD L | | | $17,000.00 | 93571 | 355953 |
| 10 | 01/01/1900 | OTHER | Other - Misc. Documents | SOLLENBERGER, HAROLD | SOLLENBERGER, HAROLD | | | $0.00 | 0 | 0 |
| 11 | 01/01/1900 | OTHER | Other - Misc. Documents | Unknown | SOLLENBERGER, HAROLD | | | $0.00 | 0 | 0 |
Payout Agreement
| No payout information available.. |