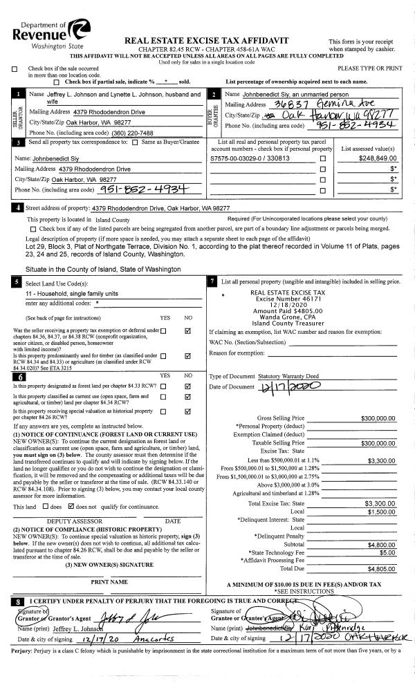
Property
Account |
| Property ID: | 312245 | Abbreviated Legal Description: | LOST LK GRV 4 LOT 6 BLK 5 |
| Geographic ID: | S7410-04-05006-0 | Agent Code: | |
| Type: | Real | | |
| Tax Area: | 510 - APPRAISER-Stan/Cam Schl Dist, improved & 1 acre or less | Land Use Code | 11 |
| Open Space: | N | DFL | N |
| Historic Property: | N | Remodel Property: | N |
| Multi-Family Redevelopment: | N | | |
| Township: | | Section: | |
| Range: | |
Location |
| Address: | 1597 LAKE DR CAMANO ISLAND, WA 98282 | Mapsco: | |
| Neighborhood: | Cycle 5 | Map ID: | 511 |
| Neighborhood CD: | 5 |
Owner |
| Name: | SLIKER, JAMES M | Owner ID: | 296237 |
| Mailing Address: | SATIN-DESEREE M ARNETT 1597 LAKE DR CAMANO ISLAND, WA 98282 | % Ownership: | 100.0000000000% |
| | | Exemptions: | |
Taxes and Assessment Details
Values
| (+) Improvement Homesite Value: | + | $0 | |
| (+) Improvement Non-Homesite Value: | + | $76,300 | |
| (+) Land Homesite Value: | + | $0 | |
| (+) Land Non-Homesite Value: | + | $290,000 | |
| (+) Curr Use (HS): | + | $0 | $0 |
| (+) Curr Use (NHS): | + | $0 | $0 |
| | | -------------------------- | |
| (=) Market Value: | = | $366,300 | |
| (–) Productivity Loss: | – | $0 | |
| | | -------------------------- | |
| (=) Subtotal: | = | $366,300 | |
| (+) Senior Appraised Value: | + | $0 | |
| (+) Non-Senior Appraised Value: | + | $366,300 | |
| | | -------------------------- | |
| (=) Total Appraised Value: | = | $366,300 | |
| (–) Senior Exemption Loss: | – | $0 | |
| (–) Exemption Loss: | – | $0 | |
| | | -------------------------- | |
| (=) Taxable Value: | = | $366,300 | |
Taxing Jurisdiction
| Owner: | SLIKER, JAMES M | | |
| % Ownership: | 100.0000000000% | | |
| Total Value: | $366,300 | | |
| Tax Area: | 510 - APPRAISER-Stan/Cam Schl Dist, improved & 1 acre or less |
| CF | Conservation Futures | 0.0316035091 | $366,300 | $366,300 | $11.58 | | |
| EMS1 | Fire & Rescue Dist #1 Camano GEN (EMS) | 0.3677864386 | $366,300 | $366,300 | $134.72 | | |
| FIRE1 | Fire & Rescue Dist #1 Camano GEN | 1.2502910536 | $366,300 | $366,300 | $457.98 | | |
| FIRE1BOND | Fire & Rescue Dist #1 Camano BOND | 0.1570001679 | $366,300 | $366,300 | $57.51 | | |
| CE | County Current Expense | 0.3708482477 | $366,300 | $366,300 | $135.84 | | |
| CR | County Roads | 0.4584763726 | $366,300 | $366,300 | $167.94 | | |
| LCIB | Library Sno-Isle BOND (Camano Island) | 0.0396325772 | $366,300 | $366,300 | $14.52 | | |
| LIB | Library Sno-Isle GEN | 0.3153421757 | $366,300 | $366,300 | $115.51 | | |
| SCH205_401 | School 205-401 Enrichment | 1.2698420524 | $366,300 | $366,300 | $465.14 | | |
| SCH205BOND | School 205-401 BOND | 0.9396497583 | $366,300 | $366,300 | $344.19 | | |
| ST | State School | 1.3035497053 | $366,300 | $366,300 | $477.49 | | |
| ST2 | State School Part 2 | 0.8169543533 | $366,300 | $366,300 | $299.25 | | |
| | Total Tax Rate: | 7.3209764117 | | | | | |
| | | | | Taxes w/Current Exemptions: | $2,681.67 | | |
| | | | | Taxes w/o Exemptions: | $2,681.67 | | |
Improvement / Building
| Improvement #1: | MANUFACTURED HOME | State Code: | Y | 1152.0 sqft | Value: | $76,300 |
| Bathrooms: | 2 | Bedrooms: | 3 | | Ceiling: | PLASTER PAINTED | Cooling: | EVAP NO DUCT | | Exterior Wall/Cover: | VINYL | Floor Covering: | CARPET/VINYL 80-20 | | Floor Structure: | SLAB ON GRADE | Foundation: | SLAB | | Heating: | FHA ELECTRIC | Interior Finish: | PLASTER | | Plumbing Fixture Cnt: | 1 | Roof Slope: | FLAT | | Roof Structure/Cover: | CJ ALUMINIUM HEAVY |   |   |
|
| | Type | Description | Class CD | Sub Class CD | Year Built | Area |
| | BAS | BASE/MAIN FLOOR | 4 | 0 | 1984 | 1152.0 |
| | DGR | DETACHED GARAGE | 4 | 0 | 1984 | 400.0 |
| | OWR | OPEN WOOD PORCH W/STEPS/ROOF | 4 | 0 | 1984 | 48.0 |
| | OWP | OPEN WOOD PORCH W/STEPS | 4 | 0 | 1984 | 144.0 |
Sketch
Property Image
Land
| 1 | 15 | SQ (12001-21780) | 0.0000 | 0.00 | 0.00 | 0.00 | 1.00 | $290,000 | $0 |
Roll Value History
| 2026 | N/A | N/A | N/A | N/A | N/A |
| 2025 | $76,300 | $290,000 | $0 | $366,300 | $366,300 |
| 2024 | $78,900 | $280,000 | $0 | $358,900 | $358,900 |
| 2023 | $72,177 | $270,000 | $0 | $342,177 | $342,177 |
| 2022 | $68,350 | $270,000 | $0 | $338,350 | $338,350 |
| 2021 | $40,814 | $190,000 | $0 | $230,814 | $230,814 |
| 2020 | $41,728 | $150,000 | $0 | $191,728 | $191,728 |
| 2019 | $25,967 | $150,000 | $0 | $175,967 | $175,967 |
| 2018 | $27,334 | $125,000 | $0 | $152,334 | $152,334 |
| 2017 | $28,701 | $90,000 | $0 | $118,701 | $118,701 |
| 2016 | $30,067 | $75,000 | $0 | $105,067 | $105,067 |
| 2015 | $37,150 | $52,000 | $0 | $89,150 | $89,150 |
| 2014 | $38,225 | $52,000 | $0 | $90,225 | $90,225 |
| 2013 | $39,836 | $64,000 | $0 | $103,836 | $103,836 |
| 2012 | $40,911 | $64,000 | $0 | $104,911 | $104,911 |
| 2011 | $41,985 | $80,000 | $0 | $121,985 | $121,985 |
| 2010 | $39,469 | $90,000 | $0 | $129,469 | $129,469 |
| 2009 | $41,868 | $90,000 | $0 | $131,868 | $131,868 |
| 2008 | $43,579 | $90,000 | $0 | $133,579 | $133,579 |
| 2007 | $45,165 | $90,000 | $0 | $135,165 | $135,165 |
Deed and Sales History
| 1 | 09/11/2020 | WD | Warranty Deed | CHAUDHRY, SAPNA V | SLIKER, JAMES M | | | $307,500.00 | 44888 | 4497471 |
| 2 | 08/01/2006 | WD | Warranty Deed | KANTZER, LARRY L | CHAUDHRY, SAPNA V | | | $158,000.00 | 63383 | 4178049 |
| 3 | 03/30/2001 | QCD | Quit Claim Deed | KANTZER, WALTER J | KANTZER, LARRY L | | | $79,723.00 | 11004 | 20028410 |
| 4 | 03/01/1994 | OTHER | Other - Misc. Documents | KANTZER, WALTER J | KANTZER, WALTER J | | | $0.00 | 41217 | 0 |
| 5 | 06/01/1993 | OTHER | Other - Misc. Documents | KANTZER, WALTER J | KANTZER, WALTER J | | | $45,000.00 | 32296 | 0 |
| 6 | 06/01/1993 | WD | Warranty Deed | KANTZER, WALTER J | KANTZER, WALTER J | | | $30,000.00 | 32295 | 93011894 |
| 7 | 07/01/1991 | QCD | Quit Claim Deed | BURTIS, LINDA C | KANTZER, WALTER J | | | $0.00 | 41218 | 94007701 |
| 8 | 09/01/1989 | OTHER | Other - Misc. Documents | BERKEY, WANDA C | BURTIS, LINDA C | | | $23,768.00 | 94017 | 0 |
| 9 | 09/01/1989 | WD | Warranty Deed | BURTIS, LINDA C | BURTIS, LINDA C | | | $27,232.00 | 94018 | 89013300 |
| 10 | 02/01/1985 | WD | Warranty Deed | CORBETT, BASIL O | BERKEY, WANDA C | | | $35,500.00 | 50350 | 85001625 |
| 11 | 10/01/1983 | WD | Warranty Deed | NORDINE, ROY E | CORBETT, BASIL O | | | $16,000.00 | 32942 | 415906 |
| 12 | 01/01/1900 | OTHER | Other - Misc. Documents | Unknown | NORDINE, ROY E | | | $0.00 | 0 | 0 |
Payout Agreement
| No payout information available.. |