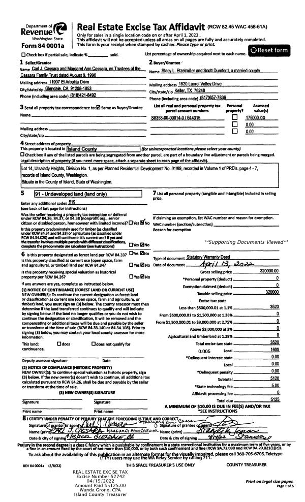
Property
Account |
| Property ID: | 312272 | Abbreviated Legal Description: | LOST LK GRV 4 LOT 9 BLK 5 |
| Geographic ID: | S7410-04-05009-0 | Agent Code: | |
| Type: | Real | | |
| Tax Area: | 510 - APPRAISER-Stan/Cam Schl Dist, improved & 1 acre or less | Land Use Code | 11 |
| Open Space: | N | DFL | N |
| Historic Property: | N | Remodel Property: | N |
| Multi-Family Redevelopment: | N | | |
| Township: | | Section: | |
| Range: | |
Location |
| Address: | | Mapsco: | |
| Neighborhood: | Cycle 5 | Map ID: | 511 |
| Neighborhood CD: | 5 |
Owner |
| Name: | NORCHEK, GARNET J | Owner ID: | 2481 |
| Mailing Address: | PO BOX 6056 EDMONDS, WA 98026-0056 | % Ownership: | 100.0000000000% |
| | | Exemptions: | |
Taxes and Assessment Details
Values
| (+) Improvement Homesite Value: | + | $0 | |
| (+) Improvement Non-Homesite Value: | + | $1 | |
| (+) Land Homesite Value: | + | $0 | |
| (+) Land Non-Homesite Value: | + | $120,000 | |
| (+) Curr Use (HS): | + | $0 | $0 |
| (+) Curr Use (NHS): | + | $0 | $0 |
| | | -------------------------- | |
| (=) Market Value: | = | $120,001 | |
| (–) Productivity Loss: | – | $0 | |
| | | -------------------------- | |
| (=) Subtotal: | = | $120,001 | |
| (+) Senior Appraised Value: | + | $0 | |
| (+) Non-Senior Appraised Value: | + | $120,001 | |
| | | -------------------------- | |
| (=) Total Appraised Value: | = | $120,001 | |
| (–) Senior Exemption Loss: | – | $0 | |
| (–) Exemption Loss: | – | $0 | |
| | | -------------------------- | |
| (=) Taxable Value: | = | $120,001 | |
Taxing Jurisdiction
| Owner: | NORCHEK, GARNET J | | |
| % Ownership: | 100.0000000000% | | |
| Total Value: | $120,001 | | |
| Tax Area: | 510 - APPRAISER-Stan/Cam Schl Dist, improved & 1 acre or less |
| CF | Conservation Futures | 0.0316035091 | $120,001 | $120,001 | $3.79 | | |
| EMS1 | Fire & Rescue Dist #1 Camano GEN (EMS) | 0.3677864386 | $120,001 | $120,001 | $44.13 | | |
| FIRE1 | Fire & Rescue Dist #1 Camano GEN | 1.2502910536 | $120,001 | $120,001 | $150.04 | | |
| FIRE1BOND | Fire & Rescue Dist #1 Camano BOND | 0.1570001679 | $120,001 | $120,001 | $18.84 | | |
| CE | County Current Expense | 0.3708482477 | $120,001 | $120,001 | $44.50 | | |
| CR | County Roads | 0.4584763726 | $120,001 | $120,001 | $55.02 | | |
| LCIB | Library Sno-Isle BOND (Camano Island) | 0.0396325772 | $120,001 | $120,001 | $4.76 | | |
| LIB | Library Sno-Isle GEN | 0.3153421757 | $120,001 | $120,001 | $37.84 | | |
| SCH205_401 | School 205-401 Enrichment | 1.2698420524 | $120,001 | $120,001 | $152.38 | | |
| SCH205BOND | School 205-401 BOND | 0.9396497583 | $120,001 | $120,001 | $112.76 | | |
| ST | State School | 1.3035497053 | $120,001 | $120,001 | $156.43 | | |
| ST2 | State School Part 2 | 0.8169543533 | $120,001 | $120,001 | $98.04 | | |
| | Total Tax Rate: | 7.3209764117 | | | | | |
| | | | | Taxes w/Current Exemptions: | $878.53 | | |
| | | | | Taxes w/o Exemptions: | $878.53 | | |
Improvement / Building
| Improvement #1: | RESIDENTIAL | State Code: | Y | 0.0 sqft | Value: | $1 |
Sketch
| No sketches available for this property. |
Property Image
Land
| 1 | 14 | SQ (08001-12000) | 0.0000 | 0.00 | 0.00 | 0.00 | 1.00 | $120,000 | $0 |
Roll Value History
| 2026 | N/A | N/A | N/A | N/A | N/A |
| 2025 | $1 | $120,000 | $0 | $120,001 | $120,001 |
| 2024 | $1 | $110,000 | $0 | $110,001 | $110,001 |
| 2023 | $1 | $120,000 | $0 | $120,001 | $120,001 |
| 2022 | $1 | $115,000 | $0 | $115,001 | $115,001 |
| 2021 | $1 | $45,000 | $0 | $45,001 | $45,001 |
| 2020 | $1 | $45,000 | $0 | $45,001 | $45,001 |
| 2019 | $1 | $45,000 | $0 | $45,001 | $45,001 |
| 2018 | $1 | $45,000 | $0 | $45,001 | $45,001 |
| 2017 | $1 | $45,000 | $0 | $45,001 | $45,001 |
| 2016 | $1 | $45,000 | $0 | $45,001 | $45,001 |
| 2015 | $1,560 | $52,000 | $0 | $53,560 | $53,560 |
| 2014 | $1,560 | $52,000 | $0 | $53,560 | $53,560 |
| 2013 | $1,560 | $36,000 | $0 | $37,560 | $37,560 |
| 2012 | $1,560 | $36,000 | $0 | $37,560 | $37,560 |
| 2011 | $1,560 | $45,000 | $0 | $46,560 | $46,560 |
| 2010 | $1,560 | $45,000 | $0 | $46,560 | $46,560 |
| 2009 | $1,560 | $45,000 | $0 | $46,560 | $46,560 |
| 2008 | $1,560 | $45,000 | $0 | $46,560 | $46,560 |
| 2007 | $1,560 | $45,000 | $0 | $46,560 | $46,560 |
Deed and Sales History
| 1 | 08/01/1997 | WD | Warranty Deed | Unknown | NORCHEK, GARNET | | | $5,000.00 | 72928 | 97013964 |
| 2 | 08/01/1997 | WD | Warranty Deed | FRASHER, PHILIP G | NORCHEK, GARNET | | | $5,000.00 | 72928 | 97013964 |
| 3 | 01/01/1900 | OTHER | Other - Misc. Documents | NORCHEK, GARNET | FRASHER, PHILIP G | | | $0.00 | 0 | 0 |
Payout Agreement
| No payout information available.. |