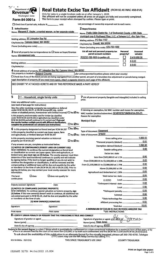
Property
Account |
| Property ID: | 312307 | Abbreviated Legal Description: | LOST LK GRV 4 LOT 12 BLK 5 |
| Geographic ID: | S7410-04-05012-0 | Agent Code: | |
| Type: | Real | | |
| Tax Area: | 510 - APPRAISER-Stan/Cam Schl Dist, improved & 1 acre or less | Land Use Code | 11 |
| Open Space: | N | DFL | N |
| Historic Property: | N | Remodel Property: | N |
| Multi-Family Redevelopment: | N | | |
| Township: | | Section: | |
| Range: | |
Location |
| Address: | 1521 SILVER FIR DR CAMANO ISLAND, WA 98282 | Mapsco: | |
| Neighborhood: | Cycle 5 | Map ID: | 511 |
| Neighborhood CD: | 5 |
Owner |
| Name: | AGLEDAL, ROSS L | Owner ID: | 181132 |
| Mailing Address: | MELISSA A BEDKER 1521 SILVER FIR DR CAMANO ISLAND, WA 98282-7624 | % Ownership: | 100.0000000000% |
| | | Exemptions: | |
Taxes and Assessment Details
Values
| (+) Improvement Homesite Value: | + | $0 | |
| (+) Improvement Non-Homesite Value: | + | $250,947 | |
| (+) Land Homesite Value: | + | $0 | |
| (+) Land Non-Homesite Value: | + | $250,000 | |
| (+) Curr Use (HS): | + | $0 | $0 |
| (+) Curr Use (NHS): | + | $0 | $0 |
| | | -------------------------- | |
| (=) Market Value: | = | $500,947 | |
| (–) Productivity Loss: | – | $0 | |
| | | -------------------------- | |
| (=) Subtotal: | = | $500,947 | |
| (+) Senior Appraised Value: | + | $0 | |
| (+) Non-Senior Appraised Value: | + | $500,947 | |
| | | -------------------------- | |
| (=) Total Appraised Value: | = | $500,947 | |
| (–) Senior Exemption Loss: | – | $0 | |
| (–) Exemption Loss: | – | $0 | |
| | | -------------------------- | |
| (=) Taxable Value: | = | $500,947 | |
Taxing Jurisdiction
| Owner: | AGLEDAL, ROSS L | | |
| % Ownership: | 100.0000000000% | | |
| Total Value: | $500,947 | | |
| Tax Area: | 510 - APPRAISER-Stan/Cam Schl Dist, improved & 1 acre or less |
| CF | Conservation Futures | 0.0316035091 | $500,947 | $500,947 | $15.83 | | |
| EMS1 | Fire & Rescue Dist #1 Camano GEN (EMS) | 0.3677864386 | $500,947 | $500,947 | $184.24 | | |
| FIRE1 | Fire & Rescue Dist #1 Camano GEN | 1.2502910536 | $500,947 | $500,947 | $626.33 | | |
| FIRE1BOND | Fire & Rescue Dist #1 Camano BOND | 0.1570001679 | $500,947 | $500,947 | $78.65 | | |
| CE | County Current Expense | 0.3708482477 | $500,947 | $500,947 | $185.78 | | |
| CR | County Roads | 0.4584763726 | $500,947 | $500,947 | $229.67 | | |
| LCIB | Library Sno-Isle BOND (Camano Island) | 0.0396325772 | $500,947 | $500,947 | $19.85 | | |
| LIB | Library Sno-Isle GEN | 0.3153421757 | $500,947 | $500,947 | $157.97 | | |
| SCH205_401 | School 205-401 Enrichment | 1.2698420524 | $500,947 | $500,947 | $636.12 | | |
| SCH205BOND | School 205-401 BOND | 0.9396497583 | $500,947 | $500,947 | $470.71 | | |
| ST | State School | 1.3035497053 | $500,947 | $500,947 | $653.01 | | |
| ST2 | State School Part 2 | 0.8169543533 | $500,947 | $500,947 | $409.25 | | |
| | Total Tax Rate: | 7.3209764117 | | | | | |
| | | | | Taxes w/Current Exemptions: | $3,667.41 | | |
| | | | | Taxes w/o Exemptions: | $3,667.41 | | |
Improvement / Building
| Improvement #1: | RESIDENTIAL | State Code: | Y | 1474.0 sqft | Value: | $250,947 |
| Bathrooms: | 2 | Bedrooms: | 3 | | Ceiling: | DRY WALL SPRAYED | Exterior Wall/Cover: | VINYL | | Floor Covering: | CARPET/VINYL 80-20 | Floor Structure: | WOOD W/SUBFLOOR | | Foundation: | CONCRETE | Heating: | WALL HEAT ELECTRIC | | Interior Finish: | DRYWALL PAINT | Plumbing Fixture Cnt: | 9 | | Roof Slope: | 5" IN 12" | Roof Structure/Cover: | CJ ASPHALT |
|
| | Type | Description | Class CD | Sub Class CD | Year Built | Area |
| | BAS | BASE/MAIN FLOOR | 3 | 0 | 2000 | 1474.0 |
| | AGR | ATTACHED GARAGE | 3 | 0 | 2000 | 400.0 |
| | OWP | OPEN WOOD PORCH W/STEPS | 3 | 0 | 2000 | 120.0 |
Sketch
Property Image
Land
| 1 | 14 | SQ (08001-12000) | 0.0000 | 0.00 | 0.00 | 0.00 | 1.00 | $250,000 | $0 |
Roll Value History
| 2026 | N/A | N/A | N/A | N/A | N/A |
| 2025 | $250,947 | $250,000 | $0 | $500,947 | $500,947 |
| 2024 | $254,034 | $240,000 | $0 | $494,034 | $494,034 |
| 2023 | $257,123 | $240,000 | $0 | $497,123 | $497,123 |
| 2022 | $235,624 | $210,000 | $0 | $445,624 | $445,624 |
| 2021 | $195,853 | $170,000 | $0 | $365,853 | $365,853 |
| 2020 | $190,787 | $130,000 | $0 | $320,787 | $320,787 |
| 2019 | $138,104 | $150,000 | $0 | $288,104 | $288,104 |
| 2018 | $138,518 | $125,000 | $0 | $263,518 | $263,518 |
| 2017 | $139,348 | $90,000 | $0 | $229,348 | $229,348 |
| 2016 | $141,007 | $75,000 | $0 | $216,007 | $216,007 |
| 2015 | $139,702 | $52,000 | $0 | $191,702 | $191,702 |
| 2014 | $141,366 | $52,000 | $0 | $193,366 | $193,366 |
| 2013 | $143,029 | $52,000 | $0 | $195,029 | $195,029 |
| 2012 | $144,692 | $52,000 | $0 | $196,692 | $196,692 |
| 2011 | $146,354 | $65,000 | $0 | $211,354 | $211,354 |
| 2010 | $150,576 | $84,000 | $0 | $234,576 | $234,576 |
| 2009 | $156,931 | $90,000 | $0 | $246,931 | $246,931 |
| 2008 | $158,647 | $90,000 | $0 | $248,647 | $248,647 |
| 2007 | $158,687 | $90,000 | $0 | $248,687 | $248,687 |
Deed and Sales History
| 1 | 01/31/2000 | WD | Warranty Deed | HOMES, INC, SUNDBERG | AGLEDAL, ROSS L | | | $140,500.00 | 432 | 20002174 |
| 2 | 07/23/1999 | WD | Warranty Deed | WEBSTER, ROBERT L | HOMES, INC, SUNDBERG | | | $19,500.00 | 93241 | 99018698 |
| 3 | 08/01/1995 | WD | Warranty Deed | WEBSTER, LELAND R | WEBSTER, ROBERT L | | | $0.00 | 53129 | 95014417 |
| 4 | 01/01/1900 | OTHER | Other - Misc. Documents | Unknown | WEBSTER, LELAND R | | | $0.00 | 0 | 0 |
Payout Agreement
| No payout information available.. |