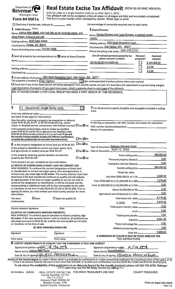
Property
Account |
| Property ID: | 312478 | Abbreviated Legal Description: | LOST LK GRV 4 LOTS 29 & 30 BLK 5 |
| Geographic ID: | S7410-04-05029-0 | Agent Code: | |
| Type: | Real | | |
| Tax Area: | 510 - APPRAISER-Stan/Cam Schl Dist, improved & 1 acre or less | Land Use Code | 11 |
| Open Space: | N | DFL | N |
| Historic Property: | N | Remodel Property: | N |
| Multi-Family Redevelopment: | N | | |
| Township: | | Section: | |
| Range: | |
Location |
| Address: | 1569 SILVER FIR DR CAMANO ISLAND, WA 98282 | Mapsco: | |
| Neighborhood: | Cycle 5 | Map ID: | 505 |
| Neighborhood CD: | 5 |
Owner |
| Name: | SHARP, JOHN M | Owner ID: | 274380 |
| Mailing Address: | CONNIE A SHARP 1569 SILVER FIR DR CAMANO ISLAND, WA 98282 | % Ownership: | 100.0000000000% |
| | | Exemptions: | |
Taxes and Assessment Details
Values
| (+) Improvement Homesite Value: | + | $0 | |
| (+) Improvement Non-Homesite Value: | + | $558,545 | |
| (+) Land Homesite Value: | + | $0 | |
| (+) Land Non-Homesite Value: | + | $290,000 | |
| (+) Curr Use (HS): | + | $0 | $0 |
| (+) Curr Use (NHS): | + | $0 | $0 |
| | | -------------------------- | |
| (=) Market Value: | = | $848,545 | |
| (–) Productivity Loss: | – | $0 | |
| | | -------------------------- | |
| (=) Subtotal: | = | $848,545 | |
| (+) Senior Appraised Value: | + | $0 | |
| (+) Non-Senior Appraised Value: | + | $848,545 | |
| | | -------------------------- | |
| (=) Total Appraised Value: | = | $848,545 | |
| (–) Senior Exemption Loss: | – | $0 | |
| (–) Exemption Loss: | – | $0 | |
| | | -------------------------- | |
| (=) Taxable Value: | = | $848,545 | |
Taxing Jurisdiction
| Owner: | SHARP, JOHN M | | |
| % Ownership: | 100.0000000000% | | |
| Total Value: | $848,545 | | |
| Tax Area: | 510 - APPRAISER-Stan/Cam Schl Dist, improved & 1 acre or less |
| CF | Conservation Futures | 0.0316035091 | $848,545 | $848,545 | $26.82 | | |
| EMS1 | Fire & Rescue Dist #1 Camano GEN (EMS) | 0.3677864386 | $848,545 | $848,545 | $312.08 | | |
| FIRE1 | Fire & Rescue Dist #1 Camano GEN | 1.2502910536 | $848,545 | $848,545 | $1,060.93 | | |
| FIRE1BOND | Fire & Rescue Dist #1 Camano BOND | 0.1570001679 | $848,545 | $848,545 | $133.22 | | |
| CE | County Current Expense | 0.3708482477 | $848,545 | $848,545 | $314.68 | | |
| CR | County Roads | 0.4584763726 | $848,545 | $848,545 | $389.04 | | |
| LCIB | Library Sno-Isle BOND (Camano Island) | 0.0396325772 | $848,545 | $848,545 | $33.63 | | |
| LIB | Library Sno-Isle GEN | 0.3153421757 | $848,545 | $848,545 | $267.58 | | |
| SCH205_401 | School 205-401 Enrichment | 1.2698420524 | $848,545 | $848,545 | $1,077.52 | | |
| SCH205BOND | School 205-401 BOND | 0.9396497583 | $848,545 | $848,545 | $797.34 | | |
| ST | State School | 1.3035497053 | $848,545 | $848,545 | $1,106.12 | | |
| ST2 | State School Part 2 | 0.8169543533 | $848,545 | $848,545 | $693.22 | | |
| | Total Tax Rate: | 7.3209764117 | | | | | |
| | | | | Taxes w/Current Exemptions: | $6,212.18 | | |
| | | | | Taxes w/o Exemptions: | $6,212.18 | | |
Improvement / Building
| Improvement #1: | RESIDENTIAL | State Code: | Y | 2584.6 sqft | Value: | $558,545 |
| Bathrooms: | 2 | Bedrooms: | 3 | | Ceiling: | DRYWALL PAINTED | Cooling: | HEAT PUMP/CONV/V | | Exterior Wall/Cover: | CEMENT FIBER | Floor Covering: | HARDWOOD/CARP 60-40 | | Floor Structure: | WOOD W/SUBFLOOR | Foundation: | CONCRETE | | Interior Finish: | DRYWALL PAINT | Plumbing Fixture Cnt: | 12 | | Roof Slope: | 5" IN 12" | Roof Structure/Cover: | CJ ASPHALT |
|
| | Type | Description | Class CD | Sub Class CD | Year Built | Area |
| | BAS | BASE/MAIN FLOOR | 4 | 0 | 1997 | 2584.6 |
| | OP4 | OPEN PORCH W/CEILING-ROOF | 4 | 0 | 1997 | 56.0 |
| | AGR | ATTACHED GARAGE | 4 | 0 | 1997 | 1148.6 |
| | OWP | OPEN WOOD PORCH W/STEPS | 4 | 0 | 1997 | 955.5 |
| | OWC | OPEN WOOD PORCH W/STEPS/ROOF/C | 4 | 0 | 1997 | 444.6 |
| | UTY | STORAGE/UTILITY | 4 | 0 | 1997 | 120.0 |
| | oPRS | PIER RESDK | 4 | 0 | 1997 | 268.0 |
Sketch
Property Image
Land
| 1 | 17 | AC (01.01-02.00) | 0.0000 | 0.00 | 0.00 | 0.00 | 1.00 | $290,000 | $0 |
Roll Value History
| 2026 | N/A | N/A | N/A | N/A | N/A |
| 2025 | $558,545 | $290,000 | $0 | $848,545 | $848,545 |
| 2024 | $565,287 | $280,000 | $0 | $845,287 | $845,287 |
| 2023 | $572,030 | $270,000 | $0 | $842,030 | $842,030 |
| 2022 | $525,101 | $270,000 | $0 | $795,101 | $795,101 |
| 2021 | $367,556 | $190,000 | $0 | $557,556 | $557,556 |
| 2020 | $358,999 | $150,000 | $0 | $508,999 | $508,999 |
| 2019 | $280,815 | $180,000 | $0 | $460,815 | $460,815 |
| 2018 | $281,680 | $150,000 | $0 | $431,680 | $431,680 |
| 2017 | $283,330 | $100,000 | $0 | $383,330 | $383,330 |
| 2016 | $286,787 | $100,000 | $0 | $386,787 | $386,787 |
| 2015 | $283,752 | $64,000 | $0 | $347,752 | $347,752 |
| 2014 | $287,254 | $64,000 | $0 | $351,254 | $351,254 |
| 2013 | $290,757 | $64,000 | $0 | $354,757 | $354,757 |
| 2012 | $294,261 | $64,000 | $0 | $358,261 | $358,261 |
| 2011 | $297,763 | $80,000 | $0 | $377,763 | $377,763 |
| 2010 | $304,916 | $90,000 | $0 | $394,916 | $394,916 |
| 2009 | $354,088 | $90,000 | $0 | $444,088 | $444,088 |
| 2008 | $366,641 | $90,000 | $0 | $456,641 | $456,641 |
| 2007 | $370,959 | $90,000 | $0 | $460,959 | $460,959 |
Deed and Sales History
| 1 | 04/12/2016 | QCD | Quit Claim Deed | PAYTON, CONNIE A | SHARP, JOHN M | | | $0.00 | 23836 | 4397305 |
| 2 | 11/22/2011 | PRD | Personal Representatives Deed | PAYTON, RANDAL H / CONNIE A | PAYTON, CONNIE A | | | $0.00 | 6353 | 4306100 |
| 3 | 06/01/1996 | WD | Warranty Deed | KALLSTROM, SHIRLEY M | PAYTON, RANDAL H | | | $49,950.00 | 62069 | 96010297 |
| 4 | 02/01/1994 | OTHER | Other - Misc. Documents | KALLSTROM, SHIRLEY M | KALLSTROM, SHIRLEY M | | | $0.00 | 65760 | 94001989 |
| 5 | 08/01/1993 | WD | Warranty Deed | SWEET, MARVIN D | KALLSTROM, SHIRLEY M | | | $15,000.00 | 33171 | 93016417 |
| 6 | 01/01/1900 | OTHER | Other - Misc. Documents | Unknown | SWEET, MARVIN D | | | $0.00 | 0 | 0 |
Payout Agreement
| No payout information available.. |