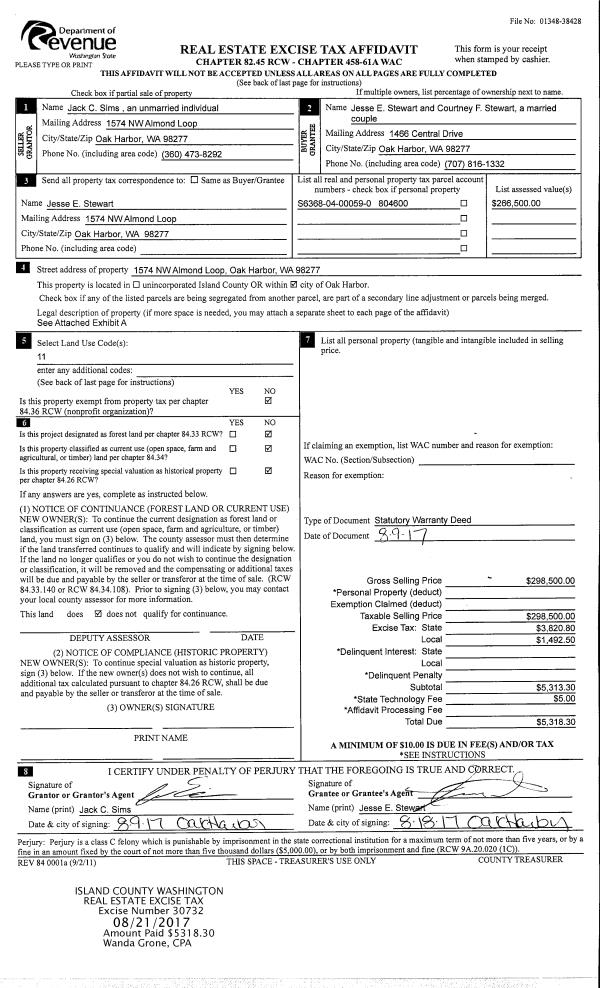
Property
Account |
| Property ID: | 312664 | Abbreviated Legal Description: | LOST LK GRV 4 LOT 49 BLK 5 |
| Geographic ID: | S7410-04-05049-0 | Agent Code: | |
| Type: | Real | | |
| Tax Area: | 519 - APPRAISER-Stan/Cam Schl Dist, vacant & 50 acres or less | Land Use Code | 99 |
| Open Space: | N | DFL | N |
| Historic Property: | N | Remodel Property: | N |
| Multi-Family Redevelopment: | N | | |
| Township: | | Section: | |
| Range: | |
Location |
| Address: | | Mapsco: | |
| Neighborhood: | Cycle 5 | Map ID: | 505 |
| Neighborhood CD: | 5 |
Owner |
| Name: | STEVENSON, BRETT | Owner ID: | 310335 |
| Mailing Address: | 3416 34TH AVE W UNIT A SEATTLE, WA 98199 | % Ownership: | 100.0000000000% |
| | | Exemptions: | |
Taxes and Assessment Details
Values
| (+) Improvement Homesite Value: | + | $0 | |
| (+) Improvement Non-Homesite Value: | + | $0 | |
| (+) Land Homesite Value: | + | $0 | |
| (+) Land Non-Homesite Value: | + | $135,000 | |
| (+) Curr Use (HS): | + | $0 | $0 |
| (+) Curr Use (NHS): | + | $0 | $0 |
| | | -------------------------- | |
| (=) Market Value: | = | $135,000 | |
| (–) Productivity Loss: | – | $0 | |
| | | -------------------------- | |
| (=) Subtotal: | = | $135,000 | |
| (+) Senior Appraised Value: | + | $0 | |
| (+) Non-Senior Appraised Value: | + | $135,000 | |
| | | -------------------------- | |
| (=) Total Appraised Value: | = | $135,000 | |
| (–) Senior Exemption Loss: | – | $0 | |
| (–) Exemption Loss: | – | $0 | |
| | | -------------------------- | |
| (=) Taxable Value: | = | $135,000 | |
Taxing Jurisdiction
| Owner: | STEVENSON, BRETT | | |
| % Ownership: | 100.0000000000% | | |
| Total Value: | $135,000 | | |
| Tax Area: | 519 - APPRAISER-Stan/Cam Schl Dist, vacant & 50 acres or less |
| CF | Conservation Futures | 0.0316035091 | $135,000 | $135,000 | $4.27 | | |
| EMS1 | Fire & Rescue Dist #1 Camano GEN (EMS) | 0.3677864386 | $135,000 | $135,000 | $49.65 | | |
| CE | County Current Expense | 0.3708482477 | $135,000 | $135,000 | $50.06 | | |
| CR | County Roads | 0.4584763726 | $135,000 | $135,000 | $61.89 | | |
| LCIB | Library Sno-Isle BOND (Camano Island) | 0.0396325772 | $135,000 | $135,000 | $5.35 | | |
| LIB | Library Sno-Isle GEN | 0.3153421757 | $135,000 | $135,000 | $42.57 | | |
| SCH205_401 | School 205-401 Enrichment | 1.2698420524 | $135,000 | $135,000 | $171.43 | | |
| SCH205BOND | School 205-401 BOND | 0.9396497583 | $135,000 | $135,000 | $126.85 | | |
| ST | State School | 1.3035497053 | $135,000 | $135,000 | $175.98 | | |
| ST2 | State School Part 2 | 0.8169543533 | $135,000 | $135,000 | $110.29 | | |
| | Total Tax Rate: | 5.9136851902 | | | | | |
| | | | | Taxes w/Current Exemptions: | $798.34 | | |
| | | | | Taxes w/o Exemptions: | $798.34 | | |
Improvement / Building
Sketch
| No sketches available for this property. |
Property Image
Land
| 1 | 15 | SQ (12001-21780) | 0.0000 | 0.00 | 0.00 | 0.00 | 1.00 | $135,000 | $0 |
Roll Value History
| 2026 | N/A | N/A | N/A | N/A | N/A |
| 2025 | $0 | $135,000 | $0 | $135,000 | $135,000 |
| 2024 | $0 | $130,000 | $0 | $130,000 | $130,000 |
| 2023 | $0 | $130,000 | $0 | $130,000 | $130,000 |
| 2022 | $0 | $115,000 | $0 | $115,000 | $115,000 |
| 2021 | $0 | $80,000 | $0 | $80,000 | $80,000 |
| 2020 | $0 | $80,000 | $0 | $80,000 | $80,000 |
| 2019 | $0 | $80,000 | $0 | $80,000 | $80,000 |
| 2018 | $0 | $80,000 | $0 | $80,000 | $80,000 |
| 2017 | $0 | $80,000 | $0 | $80,000 | $80,000 |
| 2016 | $0 | $60,000 | $0 | $60,000 | $60,000 |
| 2015 | $0 | $45,000 | $0 | $45,000 | $45,000 |
| 2014 | $0 | $45,000 | $0 | $45,000 | $45,000 |
| 2013 | $0 | $65,000 | $0 | $65,000 | $65,000 |
| 2012 | $0 | $65,000 | $0 | $65,000 | $65,000 |
| 2011 | $0 | $65,000 | $0 | $65,000 | $65,000 |
| 2010 | $0 | $65,000 | $0 | $65,000 | $65,000 |
| 2009 | $0 | $70,000 | $0 | $70,000 | $70,000 |
| 2008 | $0 | $70,000 | $0 | $70,000 | $70,000 |
| 2007 | $0 | $70,000 | $0 | $70,000 | $70,000 |
Deed and Sales History
| 1 | 10/06/2023 | WD | Warranty Deed | BOULTON, DOUGLAS H | STEVENSON, BRETT | | | $120,000.00 | 58220 | 4565631 |
|   | |
| 2 | 07/06/2020 | WD | Warranty Deed | REDDING, ROBERT S | BOULTON, DOUGLAS H | | | $157,500.00 | 43729 | 4490913 |
|   | |
| 3 | 07/20/2017 | TRUSTEED | Trustee's Deed | NORDINE, ROY E | REDDING, ROBERT S | | | $80,000.00 | 30334 | 4426883 |
|   | |
| 4 | 05/05/2008 | QCD | Quit Claim Deed | NORDINE, MAMIE M | NORDINE, ROY E | | | $0.00 | 81137 | 4227986 |
| 5 | 02/08/2000 | OTHER | Other - Misc. Documents | NORDINE, ROY E | NORDINE, MAMIE M | | | $0.00 | 68586 | 20003084 |
| 6 | 01/01/1900 | OTHER | Other - Misc. Documents | Unknown | NORDINE, ROY E | | | $0.00 | 0 | 0 |
Payout Agreement
| No payout information available.. |