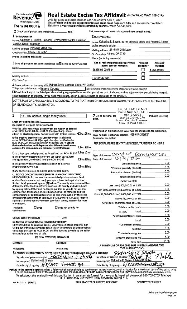
Property
Account |
| Property ID: | 312691 | Abbreviated Legal Description: | LOST LK GRV 5 LOTS 3 & 4 BLK 1 |
| Geographic ID: | S7410-05-01003-0 | Agent Code: | |
| Type: | Real | | |
| Tax Area: | 510 - APPRAISER-Stan/Cam Schl Dist, improved & 1 acre or less | Land Use Code | 11 |
| Open Space: | N | DFL | N |
| Historic Property: | N | Remodel Property: | N |
| Multi-Family Redevelopment: | N | | |
| Township: | | Section: | |
| Range: | |
Location |
| Address: | 1692 OAK RIDGE DR CAMANO ISLAND, WA 98282 | Mapsco: | |
| Neighborhood: | Cycle 5 | Map ID: | 511 |
| Neighborhood CD: | 5 |
Owner |
| Name: | CLINE, JAMES B & DARLENE | Owner ID: | 65703 |
| Mailing Address: | 1692 OAK RIDGE DR CAMANO ISLAND, WA 98282-8384 | % Ownership: | 100.0000000000% |
| | | Exemptions: | |
Taxes and Assessment Details
Values
| (+) Improvement Homesite Value: | + | $0 | |
| (+) Improvement Non-Homesite Value: | + | $303,362 | |
| (+) Land Homesite Value: | + | $0 | |
| (+) Land Non-Homesite Value: | + | $250,000 | |
| (+) Curr Use (HS): | + | $0 | $0 |
| (+) Curr Use (NHS): | + | $0 | $0 |
| | | -------------------------- | |
| (=) Market Value: | = | $553,362 | |
| (–) Productivity Loss: | – | $0 | |
| | | -------------------------- | |
| (=) Subtotal: | = | $553,362 | |
| (+) Senior Appraised Value: | + | $0 | |
| (+) Non-Senior Appraised Value: | + | $553,362 | |
| | | -------------------------- | |
| (=) Total Appraised Value: | = | $553,362 | |
| (–) Senior Exemption Loss: | – | $0 | |
| (–) Exemption Loss: | – | $0 | |
| | | -------------------------- | |
| (=) Taxable Value: | = | $553,362 | |
Taxing Jurisdiction
| Owner: | CLINE, JAMES B & DARLENE | | |
| % Ownership: | 100.0000000000% | | |
| Total Value: | $553,362 | | |
| Tax Area: | 510 - APPRAISER-Stan/Cam Schl Dist, improved & 1 acre or less |
| CF | Conservation Futures | 0.0316035091 | $553,362 | $553,362 | $17.49 | | |
| EMS1 | Fire & Rescue Dist #1 Camano GEN (EMS) | 0.3677864386 | $553,362 | $553,362 | $203.52 | | |
| FIRE1 | Fire & Rescue Dist #1 Camano GEN | 1.2502910536 | $553,362 | $553,362 | $691.86 | | |
| FIRE1BOND | Fire & Rescue Dist #1 Camano BOND | 0.1570001679 | $553,362 | $553,362 | $86.88 | | |
| CE | County Current Expense | 0.3708482477 | $553,362 | $553,362 | $205.21 | | |
| CR | County Roads | 0.4584763726 | $553,362 | $553,362 | $253.70 | | |
| LCIB | Library Sno-Isle BOND (Camano Island) | 0.0396325772 | $553,362 | $553,362 | $21.93 | | |
| LIB | Library Sno-Isle GEN | 0.3153421757 | $553,362 | $553,362 | $174.50 | | |
| SCH205_401 | School 205-401 Enrichment | 1.2698420524 | $553,362 | $553,362 | $702.68 | | |
| SCH205BOND | School 205-401 BOND | 0.9396497583 | $553,362 | $553,362 | $519.97 | | |
| ST | State School | 1.3035497053 | $553,362 | $553,362 | $721.33 | | |
| ST2 | State School Part 2 | 0.8169543533 | $553,362 | $553,362 | $452.07 | | |
| | Total Tax Rate: | 7.3209764117 | | | | | |
| | | | | Taxes w/Current Exemptions: | $4,051.14 | | |
| | | | | Taxes w/o Exemptions: | $4,051.14 | | |
Improvement / Building
| Improvement #1: | RESIDENTIAL | State Code: | Y | 2288.0 sqft | Value: | $303,362 |
| Bathrooms: | 3 | Bedrooms: | 4 | | Ceiling: | DRY WALL SPRAYED | Cooling: | HEAT PUMP/CONV/V | | Exterior Wall/Cover: | SHINGLE | Floor Covering: | CARPET/VINYL 80-20 | | Floor Structure: | WOOD W/SUBFLOOR | Foundation: | CONCRETE | | Interior Finish: | DRYWALL PAINT | Plumbing Fixture Cnt: | 12 | | Roof Slope: | 4" IN 12" | Roof Structure/Cover: | CJ ASPHALT |
|
| | Type | Description | Class CD | Sub Class CD | Year Built | Area |
| | BAS | BASE/MAIN FLOOR | 3 | 0 | 1980 | 1144.0 |
| | DWN | DOWNSTAIRS LIVING AREA | 3 | 0 | 1980 | 1144.0 |
| | OWR | OPEN WOOD PORCH W/STEPS/ROOF | 3 | 0 | 1980 | 420.0 |
| | AGR | ATTACHED GARAGE | 3 | 0 | 1980 | 364.0 |
| | OWP | OPEN WOOD PORCH W/STEPS | 3 | 0 | 1980 | 192.0 |
| | OWR | OPEN WOOD PORCH W/STEPS/ROOF | 3 | 0 | 1980 | 124.0 |
| | DGR | DETACHED GARAGE | 3 | 0 | 1980 | 1080.0 |
Sketch
Property Image
Land
| 1 | 15 | SQ (12001-21780) | 0.0000 | 0.00 | 0.00 | 0.00 | 1.00 | $250,000 | $0 |
Roll Value History
| 2026 | N/A | N/A | N/A | N/A | N/A |
| 2025 | $303,362 | $250,000 | $0 | $553,362 | $553,362 |
| 2024 | $307,873 | $240,000 | $0 | $547,873 | $547,873 |
| 2023 | $312,384 | $240,000 | $0 | $552,384 | $552,384 |
| 2022 | $286,945 | $210,000 | $0 | $496,945 | $496,945 |
| 2021 | $231,749 | $170,000 | $0 | $401,749 | $401,749 |
| 2020 | $226,785 | $130,000 | $0 | $356,785 | $356,785 |
| 2019 | $174,923 | $150,000 | $0 | $324,923 | $324,923 |
| 2018 | $175,574 | $125,000 | $0 | $300,574 | $300,574 |
| 2017 | $176,873 | $90,000 | $0 | $266,873 | $266,873 |
| 2016 | $179,475 | $75,000 | $0 | $254,475 | $254,475 |
| 2015 | $160,018 | $52,000 | $0 | $212,018 | $212,018 |
| 2014 | $162,033 | $52,000 | $0 | $214,033 | $214,033 |
| 2013 | $164,047 | $52,000 | $0 | $216,047 | $216,047 |
| 2012 | $166,060 | $52,000 | $0 | $218,060 | $218,060 |
| 2011 | $168,076 | $65,000 | $0 | $233,076 | $233,076 |
| 2010 | $175,784 | $84,000 | $0 | $259,784 | $259,784 |
| 2009 | $183,096 | $90,000 | $0 | $273,096 | $273,096 |
| 2008 | $158,420 | $90,000 | $0 | $248,420 | $248,420 |
| 2007 | $170,094 | $95,678 | $0 | $265,772 | $265,772 |
Deed and Sales History
| 1 | 06/04/2002 | CPADC | Comm Prop Agmnt & Death Cert | CLINE, JAMES B | CLINE, DARLENE K | | | $0.00 | 61802 | 4573254 |
| 2 | 09/24/2007 | BLA | DNU - Boundary Line Adjustment | CLINE, JAMES B | CLINE, JAMES B & DARLENE | | | $0.00 | 80371 | 4212001 |
| 3 | 10/01/1979 | CD | DNU - Correction Deed | STRASSBURG, PAUL G | CLINE, JAMES B | | | $5,000.00 | 94887 | 359884 |
| 4 | 01/01/1900 | OTHER | Other - Misc. Documents | Unknown | STRASSBURG, PAUL G | | | $0.00 | 0 | 0 |
Payout Agreement
| No payout information available.. |