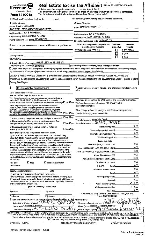
Property
Account |
| Property ID: | 312799 | Abbreviated Legal Description: | LOST LK GRV 5 LOT 13 BLK 1 |
| Geographic ID: | S7410-05-01013-0 | Agent Code: | |
| Type: | Real | | |
| Tax Area: | 510 - APPRAISER-Stan/Cam Schl Dist, improved & 1 acre or less | Land Use Code | 11 |
| Open Space: | N | DFL | N |
| Historic Property: | N | Remodel Property: | N |
| Multi-Family Redevelopment: | N | | |
| Township: | | Section: | |
| Range: | |
Location |
| Address: | 1638 OAK RIDGE DR CAMANO ISLAND, WA 98282 | Mapsco: | |
| Neighborhood: | Cycle 5 | Map ID: | 511 |
| Neighborhood CD: | 5 |
Owner |
| Name: | SWANSON, RONALD | Owner ID: | 277731 |
| Mailing Address: | ROSEMARY P SWANSON 1638 OAK RIDGE DR CAMANO ISLAND, WA 98282 | % Ownership: | 100.0000000000% |
| | | Exemptions: | |
Taxes and Assessment Details
Values
| (+) Improvement Homesite Value: | + | $0 | |
| (+) Improvement Non-Homesite Value: | + | $419,501 | |
| (+) Land Homesite Value: | + | $0 | |
| (+) Land Non-Homesite Value: | + | $250,000 | |
| (+) Curr Use (HS): | + | $0 | $0 |
| (+) Curr Use (NHS): | + | $0 | $0 |
| | | -------------------------- | |
| (=) Market Value: | = | $669,501 | |
| (–) Productivity Loss: | – | $0 | |
| | | -------------------------- | |
| (=) Subtotal: | = | $669,501 | |
| (+) Senior Appraised Value: | + | $0 | |
| (+) Non-Senior Appraised Value: | + | $669,501 | |
| | | -------------------------- | |
| (=) Total Appraised Value: | = | $669,501 | |
| (–) Senior Exemption Loss: | – | $0 | |
| (–) Exemption Loss: | – | $0 | |
| | | -------------------------- | |
| (=) Taxable Value: | = | $669,501 | |
Taxing Jurisdiction
| Owner: | SWANSON, RONALD | | |
| % Ownership: | 100.0000000000% | | |
| Total Value: | $669,501 | | |
| Tax Area: | 510 - APPRAISER-Stan/Cam Schl Dist, improved & 1 acre or less |
| CF | Conservation Futures | 0.0316035091 | $669,501 | $669,501 | $21.16 | | |
| EMS1 | Fire & Rescue Dist #1 Camano GEN (EMS) | 0.3677864386 | $669,501 | $669,501 | $246.23 | | |
| FIRE1 | Fire & Rescue Dist #1 Camano GEN | 1.2502910536 | $669,501 | $669,501 | $837.07 | | |
| FIRE1BOND | Fire & Rescue Dist #1 Camano BOND | 0.1570001679 | $669,501 | $669,501 | $105.11 | | |
| CE | County Current Expense | 0.3708482477 | $669,501 | $669,501 | $248.28 | | |
| CR | County Roads | 0.4584763726 | $669,501 | $669,501 | $306.95 | | |
| LCIB | Library Sno-Isle BOND (Camano Island) | 0.0396325772 | $669,501 | $669,501 | $26.53 | | |
| LIB | Library Sno-Isle GEN | 0.3153421757 | $669,501 | $669,501 | $211.12 | | |
| SCH205_401 | School 205-401 Enrichment | 1.2698420524 | $669,501 | $669,501 | $850.16 | | |
| SCH205BOND | School 205-401 BOND | 0.9396497583 | $669,501 | $669,501 | $629.10 | | |
| ST | State School | 1.3035497053 | $669,501 | $669,501 | $872.73 | | |
| ST2 | State School Part 2 | 0.8169543533 | $669,501 | $669,501 | $546.95 | | |
| | Total Tax Rate: | 7.3209764117 | | | | | |
| | | | | Taxes w/Current Exemptions: | $4,901.39 | | |
| | | | | Taxes w/o Exemptions: | $4,901.39 | | |
Improvement / Building
| Improvement #1: | RESIDENTIAL | State Code: | Y | 1964.0 sqft | Value: | $419,501 |
| Bathrooms: | 2.5 | Bedrooms: | 2 | | Ceiling: | DRYWALL PAINTED | Exterior Wall/Cover: | CEMENT FIBER | | Floor Covering: | HARDWOOD/CARP 20-80 | Floor Structure: | WOOD W/SUBFLOOR | | Foundation: | CONCRETE | Heating: | FHA GAS | | Interior Finish: | DRYWALL PAINT | Plumbing Fixture Cnt: | 18 | | Roof Slope: | 6" IN 12" | Roof Structure/Cover: | CJ ASPHALT |
|
| | Type | Description | Class CD | Sub Class CD | Year Built | Area |
| | BAS | BASE/MAIN FLOOR | 4 | 0 | 2007 | 1112.0 |
| | OWC | OPEN WOOD PORCH W/STEPS/ROOF/C | 4 | 0 | 2007 | 60.0 |
| | OWC | OPEN WOOD PORCH W/STEPS/ROOF/C | 4 | 0 | 2007 | 216.0 |
| | DWN | DOWNSTAIRS LIVING AREA | 4 | 0 | 2007 | 852.0 |
| | AGR | ATTACHED GARAGE | 4 | 0 | 2007 | 576.0 |
Sketch
Property Image
Land
| 1 | 15 | SQ (12001-21780) | 0.0000 | 0.00 | 0.00 | 0.00 | 1.00 | $250,000 | $0 |
Roll Value History
| 2026 | N/A | N/A | N/A | N/A | N/A |
| 2025 | $419,501 | $250,000 | $0 | $669,501 | $669,501 |
| 2024 | $424,421 | $240,000 | $0 | $664,421 | $664,421 |
| 2023 | $429,343 | $240,000 | $0 | $669,343 | $669,343 |
| 2022 | $393,231 | $210,000 | $0 | $603,231 | $603,231 |
| 2021 | $345,818 | $170,000 | $0 | $515,818 | $515,818 |
| 2020 | $334,323 | $130,000 | $0 | $464,323 | $464,323 |
| 2019 | $224,120 | $150,000 | $0 | $374,120 | $374,120 |
| 2018 | $224,734 | $125,000 | $0 | $349,734 | $349,734 |
| 2017 | $225,538 | $90,000 | $0 | $315,538 | $315,538 |
| 2016 | $198,883 | $75,000 | $0 | $273,883 | $273,883 |
| 2015 | $198,885 | $52,000 | $0 | $250,885 | $250,885 |
| 2014 | $201,041 | $52,000 | $0 | $253,041 | $253,041 |
| 2013 | $203,197 | $52,000 | $0 | $255,197 | $255,197 |
| 2012 | $205,354 | $52,000 | $0 | $257,354 | $257,354 |
| 2011 | $258,703 | $65,000 | $0 | $323,703 | $323,703 |
| 2010 | $266,980 | $84,000 | $0 | $350,980 | $350,980 |
| 2009 | $275,175 | $90,000 | $0 | $365,175 | $365,175 |
| 2008 | $275,381 | $90,000 | $0 | $365,381 | $365,381 |
| 2007 | $279,904 | $88,391 | $0 | $368,295 | $368,295 |
Deed and Sales History
| 1 | 12/02/2016 | WD | Warranty Deed | FOGG, STEPHEN W | SWANSON, RONALD | | | $359,000.00 | 27177 | 4412666 |
| 2 | 03/21/2008 | WD | Warranty Deed | SUNDBERG HOMES INC, | FOGG, STEPHEN W | | | $359,000.00 | 80729 | 4224892 |
| 3 | 11/23/2004 | WD | Warranty Deed | JOHNSON, CURTIS A | SUNDBERG HOMES INC, | | | $15,000.00 | 415571 | 4119311 |
| 4 | 06/17/1998 | WD | Warranty Deed | COLE, CHARLES T | JOHNSON, CURTIS A | | | $12,000.00 | 82394 | 98012452 |
| 5 | 07/01/1993 | OTHER | Other - Misc. Documents | BRAND, LYNNE M | COLE, CHARLES T | | | $0.00 | 65464 | 0 |
Payout Agreement
| No payout information available.. |