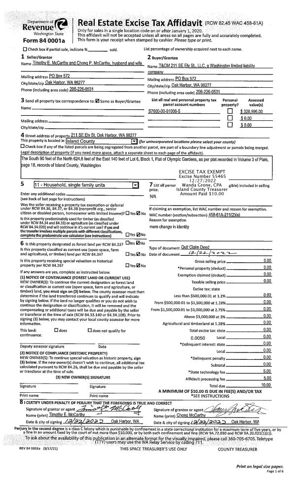
Property
Account |
| Property ID: | 312860 | Abbreviated Legal Description: | LOST LK GRV 5 LOT 20 BLK 1 C |
| Geographic ID: | S7410-05-01020-0 | Agent Code: | |
| Type: | Real | | |
| Tax Area: | 519 - APPRAISER-Stan/Cam Schl Dist, vacant & 50 acres or less | Land Use Code | 99 |
| Open Space: | N | DFL | N |
| Historic Property: | N | Remodel Property: | N |
| Multi-Family Redevelopment: | N | | |
| Township: | | Section: | |
| Range: | |
Location |
| Address: | | Mapsco: | |
| Neighborhood: | Cycle 5 | Map ID: | 511 |
| Neighborhood CD: | 5 |
Owner |
| Name: | KOCH, CRAIG | Owner ID: | 282743 |
| Mailing Address: | PO BOX 1361 STANWOOD, WA 98292 | % Ownership: | 100.0000000000% |
| | | Exemptions: | |
Taxes and Assessment Details
Values
| (+) Improvement Homesite Value: | + | $0 | |
| (+) Improvement Non-Homesite Value: | + | $0 | |
| (+) Land Homesite Value: | + | $0 | |
| (+) Land Non-Homesite Value: | + | $120,000 | |
| (+) Curr Use (HS): | + | $0 | $0 |
| (+) Curr Use (NHS): | + | $0 | $0 |
| | | -------------------------- | |
| (=) Market Value: | = | $120,000 | |
| (–) Productivity Loss: | – | $0 | |
| | | -------------------------- | |
| (=) Subtotal: | = | $120,000 | |
| (+) Senior Appraised Value: | + | $0 | |
| (+) Non-Senior Appraised Value: | + | $120,000 | |
| | | -------------------------- | |
| (=) Total Appraised Value: | = | $120,000 | |
| (–) Senior Exemption Loss: | – | $0 | |
| (–) Exemption Loss: | – | $0 | |
| | | -------------------------- | |
| (=) Taxable Value: | = | $120,000 | |
Taxing Jurisdiction
| Owner: | KOCH, CRAIG | | |
| % Ownership: | 100.0000000000% | | |
| Total Value: | $120,000 | | |
| Tax Area: | 519 - APPRAISER-Stan/Cam Schl Dist, vacant & 50 acres or less |
| CF | Conservation Futures | 0.0316035091 | $120,000 | $120,000 | $3.79 | | |
| EMS1 | Fire & Rescue Dist #1 Camano GEN (EMS) | 0.3677864386 | $120,000 | $120,000 | $44.13 | | |
| CE | County Current Expense | 0.3708482477 | $120,000 | $120,000 | $44.50 | | |
| CR | County Roads | 0.4584763726 | $120,000 | $120,000 | $55.02 | | |
| LCIB | Library Sno-Isle BOND (Camano Island) | 0.0396325772 | $120,000 | $120,000 | $4.76 | | |
| LIB | Library Sno-Isle GEN | 0.3153421757 | $120,000 | $120,000 | $37.84 | | |
| SCH205_401 | School 205-401 Enrichment | 1.2698420524 | $120,000 | $120,000 | $152.38 | | |
| SCH205BOND | School 205-401 BOND | 0.9396497583 | $120,000 | $120,000 | $112.76 | | |
| ST | State School | 1.3035497053 | $120,000 | $120,000 | $156.43 | | |
| ST2 | State School Part 2 | 0.8169543533 | $120,000 | $120,000 | $98.03 | | |
| | Total Tax Rate: | 5.9136851902 | | | | | |
| | | | | Taxes w/Current Exemptions: | $709.64 | | |
| | | | | Taxes w/o Exemptions: | $709.64 | | |
Improvement / Building
| Improvement #1: | RESIDENTIAL | State Code: | Y | 0.0 sqft | Value: | $0 |
| Bathrooms: | 0 | Bedrooms: | 0 | | Ceiling: | (NONE) | Exterior Wall/Cover: | (NONE) | | Floor Covering: | (NONE) | Floor Structure: | (NONE) | | Foundation: | (NONE) | Heating: | (NONE) | | Interior Finish: | (NONE) | Plumbing Fixture Cnt: | 0 | | Roof Slope: | (NONE) | Roof Structure/Cover: | (NONE) |
|
| | Type | Description | Class CD | Sub Class CD | Year Built | Area |
| | BAS | BASE/MAIN FLOOR | 3 | 0 | 2024 | 0.0 |
| | AGR | ATTACHED GARAGE | 3 | 0 | 2024 | 0.0 |
| | OWP | OPEN WOOD PORCH W/STEPS | 3 | 0 | 2024 | 0.0 |
| | OWR | OPEN WOOD PORCH W/STEPS/ROOF | 3 | 0 | 2024 | 0.0 |
Sketch
| No sketches available for this property. |
Property Image
Land
| 1 | 15 | SQ (12001-21780) | 0.5300 | 23086.80 | 0.00 | 0.00 | 1.00 | $120,000 | $0 |
Roll Value History
| 2026 | N/A | N/A | N/A | N/A | N/A |
| 2025 | $0 | $120,000 | $0 | $120,000 | $120,000 |
| 2024 | $0 | $110,000 | $0 | $110,000 | $110,000 |
| 2023 | $0 | $120,000 | $0 | $120,000 | $120,000 |
| 2022 | $0 | $115,000 | $0 | $115,000 | $115,000 |
| 2021 | $0 | $45,000 | $0 | $45,000 | $45,000 |
| 2020 | $0 | $45,000 | $0 | $45,000 | $45,000 |
| 2019 | $0 | $5,000 | $0 | $5,000 | $5,000 |
| 2018 | $0 | $5,000 | $0 | $5,000 | $5,000 |
| 2017 | $0 | $5,000 | $0 | $5,000 | $5,000 |
| 2016 | $0 | $5,000 | $0 | $5,000 | $5,000 |
| 2015 | $0 | $9,000 | $0 | $9,000 | $9,000 |
| 2014 | $0 | $9,000 | $0 | $9,000 | $9,000 |
| 2013 | $0 | $9,000 | $0 | $9,000 | $9,000 |
| 2012 | $0 | $9,000 | $0 | $9,000 | $9,000 |
| 2011 | $0 | $9,000 | $0 | $9,000 | $9,000 |
| 2010 | $0 | $9,000 | $0 | $9,000 | $9,000 |
| 2009 | $0 | $21,000 | $0 | $21,000 | $21,000 |
| 2008 | $0 | $21,000 | $0 | $21,000 | $21,000 |
| 2007 | $0 | $15,000 | $0 | $15,000 | $15,000 |
Deed and Sales History
| 1 | 06/29/2022 | QCD | Quit Claim Deed | KOCH, SANDY | KOCH, CRAIG | | | $0.00 | 53903 | 4548753 |
| 2 | 06/29/2022 | WD | Warranty Deed | CHANG, MARK S | KOCH, CRAIG | | | $46,000.00 | 53902 | 4548752 |
| 3 | 07/07/2015 | WD | Warranty Deed | GOBEN, RICHARD T | CHANG, MARK S | | | $8,500.00 | 20497 | 4382266 |
| 4 | 03/26/2012 | WD | Warranty Deed | MORGAN, HENRY J | GOBEN, RICHARD T | | | $5,000.00 | 7250 | 4312622 |
| 5 | 02/02/2005 | QCD | Quit Claim Deed | BOGES, CAROLE A | MORGAN, HENRY J | | | $0.00 | 54599 | 4147584 |
| 6 | 02/02/2005 | QCD | Quit Claim Deed | BOGES, CAROLE A | BOGES, CAROLE A | | | $0.00 | 54598 | 4147583 |
| 7 | 07/01/1997 | QCD | Quit Claim Deed | GOBEN, WILLIAM T | BOGES, CAROLE A | | | $0.00 | 72531 | 97011972 |
| 8 | 10/01/1996 | WD | Warranty Deed | GOBEN, RICHARD T | GOBEN, WILLIAM T | | | $6,000.00 | 63905 | 96018899 |
| 9 | 07/01/1990 | WD | Warranty Deed | PAPPE, FLORENCE E | GOBEN, RICHARD T | | | $5,000.00 | 4090 | 90013370 |
| 10 | 09/01/1981 | TRUSTEED | Trustee's Deed | ATIENZA, ISAAC M | PAPPE, FLORENCE E | | | $3,750.00 | 13093 | 388596 |
| 11 | 01/01/1900 | OTHER | Other - Misc. Documents | Unknown | ATIENZA, ISAAC M | | | $0.00 | 0 | 0 |
Payout Agreement
| No payout information available.. |