Property
Account |
| Property ID: | 31290 | Abbreviated Legal Description: | 47 - BG 400'N OF SECR W/2 NW SE N400' W330' S400' E330' TPB EX E30' FOR RD |
| Geographic ID: | R13301-193-3080 | Agent Code: | |
| Type: | Real | | |
| Tax Area: | 112 - APPRAISER-OH Schl Dist, outside OH, improved, greater than 1 acre | Land Use Code | 11 |
| Open Space: | N | DFL | N |
| Historic Property: | N | Remodel Property: | N |
| Multi-Family Redevelopment: | N | | |
| Township: | 33 | Section: | 01 |
| Range: | R1 |
Location |
| Address: | 4541 LYON RD OAK HARBOR, WA 98277 | Mapsco: | |
| Neighborhood: | Cycle 6 | Map ID: | 190 |
| Neighborhood CD: | 6 |
Owner |
| Name: | FORREST, AUSTIN | Owner ID: | 302235 |
| Mailing Address: | ANABEL FORREST 4541 LYON RD OAK HARBOR, WA 98277 | % Ownership: | 100.0000000000% |
| | | Exemptions: | |
Taxes and Assessment Details
Values
| (+) Improvement Homesite Value: | + | $0 | |
| (+) Improvement Non-Homesite Value: | + | $255,793 | |
| (+) Land Homesite Value: | + | $0 | |
| (+) Land Non-Homesite Value: | + | $250,000 | |
| (+) Curr Use (HS): | + | $0 | $0 |
| (+) Curr Use (NHS): | + | $0 | $0 |
| | | -------------------------- | |
| (=) Market Value: | = | $505,793 | |
| (–) Productivity Loss: | – | $0 | |
| | | -------------------------- | |
| (=) Subtotal: | = | $505,793 | |
| (+) Senior Appraised Value: | + | $0 | |
| (+) Non-Senior Appraised Value: | + | $505,793 | |
| | | -------------------------- | |
| (=) Total Appraised Value: | = | $505,793 | |
| (–) Senior Exemption Loss: | – | $0 | |
| (–) Exemption Loss: | – | $0 | |
| | | -------------------------- | |
| (=) Taxable Value: | = | $505,793 | |
Taxing Jurisdiction
| Owner: | FORREST, AUSTIN | | |
| % Ownership: | 100.0000000000% | | |
| Total Value: | $505,793 | | |
| Tax Area: | 112 - APPRAISER-OH Schl Dist, outside OH, improved, greater than 1 acre |
| CF | Conservation Futures | 0.0316035091 | $505,793 | $505,793 | $15.98 | | |
| CEM1 | Cemetery #1 | 0.0040320932 | $505,793 | $505,793 | $2.04 | | |
| FIRE2 | Fire & Rescue Dist #2 N Whidbey GEN | 0.5475949600 | $505,793 | $505,793 | $276.97 | | |
| HOBOND | Hospital BOND | 0.1910887512 | $505,793 | $505,793 | $96.65 | | |
| HOGEN | Hospital GEN | 0.3902502903 | $505,793 | $505,793 | $197.39 | | |
| CE | County Current Expense | 0.3708482477 | $505,793 | $505,793 | $187.57 | | |
| CR | County Roads | 0.4584763726 | $505,793 | $505,793 | $231.89 | | |
| ISLANDEMS | Hospital GEN (EMS) | 0.5000000000 | $505,793 | $505,793 | $252.90 | | |
| LIB | Library Sno-Isle GEN | 0.3153421757 | $505,793 | $505,793 | $159.50 | | |
| NWHIDPRMT | P & R N Whidbey GEN | 0.2004466701 | $505,793 | $505,793 | $101.38 | | |
| SCH201MO | School 201 Enrichment | 1.8559231640 | $505,793 | $505,793 | $938.71 | | |
| ST | State School | 1.3035497053 | $505,793 | $505,793 | $659.33 | | |
| ST2 | State School Part 2 | 0.8169543533 | $505,793 | $505,793 | $413.21 | | |
| | Total Tax Rate: | 6.9861102925 | | | | | |
| | | | | Taxes w/Current Exemptions: | $3,533.52 | | |
| | | | | Taxes w/o Exemptions: | $3,533.52 | | |
Improvement / Building
| Improvement #1: | MANUFACTURED HOME | State Code: | Y | 1782.0 sqft | Value: | $115,016 |
| Bathrooms: | 0 | Bedrooms: | 0 | | Ceiling: | PLASTER PAINTED | Cooling: | EVAP NO DUCT | | Exterior Wall/Cover: | VINYL | Floor Covering: | CARPET 100% | | Floor Structure: | SLAB ON GRADE | Foundation: | SLAB | | Heating: | FHA ELECTRIC | Interior Finish: | PLASTER | | Plumbing Fixture Cnt: | 1 | Roof Slope: | FLAT | | Roof Structure/Cover: | CJ ALUMINIUM HEAVY |   |   |
|
| | Type | Description | Class CD | Sub Class CD | Year Built | Area |
| | BAS | BASE/MAIN FLOOR | 4 | 0 | 1992 | 1782.0 |
| | OWR | OPEN WOOD PORCH W/STEPS/ROOF | 4 | 0 | 1992 | 155.0 |
| | OWP | OPEN WOOD PORCH W/STEPS | 4 | 0 | 1992 | 440.0 |
| Improvement #2: | RESIDENTIAL | State Code: | Y | 848.0 sqft | Value: | $140,777 |
| Bathrooms: | 1 | Bedrooms: | 1 | | Ceiling: | DRYWALL PAINTED | Exterior Wall/Cover: | EXT WALL/COV MH METL | | Floor Covering: | CARPET/VINYL 60-40 | Floor Structure: | SLAB ON GRADE | | Foundation: | SLAB | Heating: | BASEBOARD ELECTRIC | | Interior Finish: | DRYWALL PAINT | Plumbing Fixture Cnt: | 4 | | Roof Slope: | 3" IN 12" | Roof Structure/Cover: | CJ ALUMINIUM HEAVY |
|
| | Type | Description | Class CD | Sub Class CD | Year Built | Area |
| | BAS | BASE/MAIN FLOOR | 3 | 0 | 1992 | 848.0 |
| | ENP | ENCLOSED PORCH | 3 | 0 | 1992 | 96.0 |
| | AGR | ATTACHED GARAGE | 3 | 0 | 1992 | 1216.0 |
| | UTY | STORAGE/UTILITY | 3 | 0 | 1992 | 150.0 |
| | CPD | OPEN CARPORT DIRT FLOOR | 3 | 0 | 1992 | 216.0 |
Sketch
Property Image
Land
| 1 | 18 | AC (02.01-03.00) | 2.7500 | 119790.00 | 0.00 | 0.00 | 1.00 | $250,000 | $0 |
Roll Value History
| 2026 | N/A | N/A | N/A | N/A | N/A |
| 2025 | $255,793 | $250,000 | $0 | $505,793 | $505,793 |
| 2024 | $265,575 | $230,000 | $0 | $495,575 | $495,575 |
| 2023 | $255,240 | $220,000 | $0 | $475,240 | $475,240 |
| 2022 | $239,287 | $210,000 | $0 | $449,287 | $449,287 |
| 2021 | $128,358 | $160,000 | $0 | $288,358 | $288,358 |
| 2020 | $128,371 | $130,000 | $0 | $258,371 | $258,371 |
| 2019 | $113,113 | $200,000 | $0 | $313,113 | $313,113 |
| 2018 | $114,983 | $170,000 | $0 | $284,983 | $284,983 |
| 2017 | $115,919 | $120,000 | $0 | $235,919 | $235,919 |
| 2016 | $113,236 | $120,000 | $0 | $233,236 | $233,236 |
| 2015 | $115,223 | $100,000 | $0 | $215,223 | $215,223 |
| 2014 | $117,209 | $75,000 | $0 | $192,209 | $192,209 |
| 2013 | $119,196 | $75,000 | $0 | $194,196 | $194,196 |
| 2012 | $120,188 | $102,000 | $0 | $222,188 | $222,188 |
| 2011 | $122,176 | $120,000 | $0 | $242,176 | $242,176 |
| 2010 | $130,392 | $120,000 | $0 | $250,392 | $250,392 |
| 2009 | $134,802 | $130,000 | $0 | $264,802 | $264,802 |
| 2008 | $139,496 | $118,000 | $0 | $257,496 | $257,496 |
| 2007 | $143,935 | $89,500 | $0 | $233,435 | $233,435 |
Deed and Sales History
| 1 | 11/23/2021 | WD | Warranty Deed | BAKER, JOHN H | FORREST, AUSTIN | | | $520,000.00 | 51188 | 4535139 |
| 2 | 07/12/2016 | WD | Warranty Deed | BEASLEY, RICHARD N / MRYNA J | BAKER, JOHN H | | | $300,000.00 | 25380 | 4403809 |
| 3 | 01/01/1992 | OTHER | Other - Misc. Documents | KLIEMAN, EDWARD L | BEASLEY, RICHARD N | | | $0.00 | 11111111 | 0 |
| 4 | 01/01/1992 | WD | Warranty Deed | BEASLEY, RICHARD N | BEASLEY, RICHARD N | | | $18,000.00 | 20353 | 92001609 |
| 5 | 12/01/1991 | QCD | Quit Claim Deed | KLIEMAN, EDWARD L | KLIEMAN, EDWARD L | | | $0.00 | 20352 | 92001608 |
| 6 | 07/01/1980 | CD | DNU - Correction Deed | KLIEMAN, EDWARD L | KLIEMAN, EDWARD L | | | $1,500.00 | 10377 | 379197 |
| 7 | 01/01/1900 | OTHER | Other - Misc. Documents | Unknown | KLIEMAN, EDWARD L | | | $0.00 | 0 | 0 |
Payout Agreement
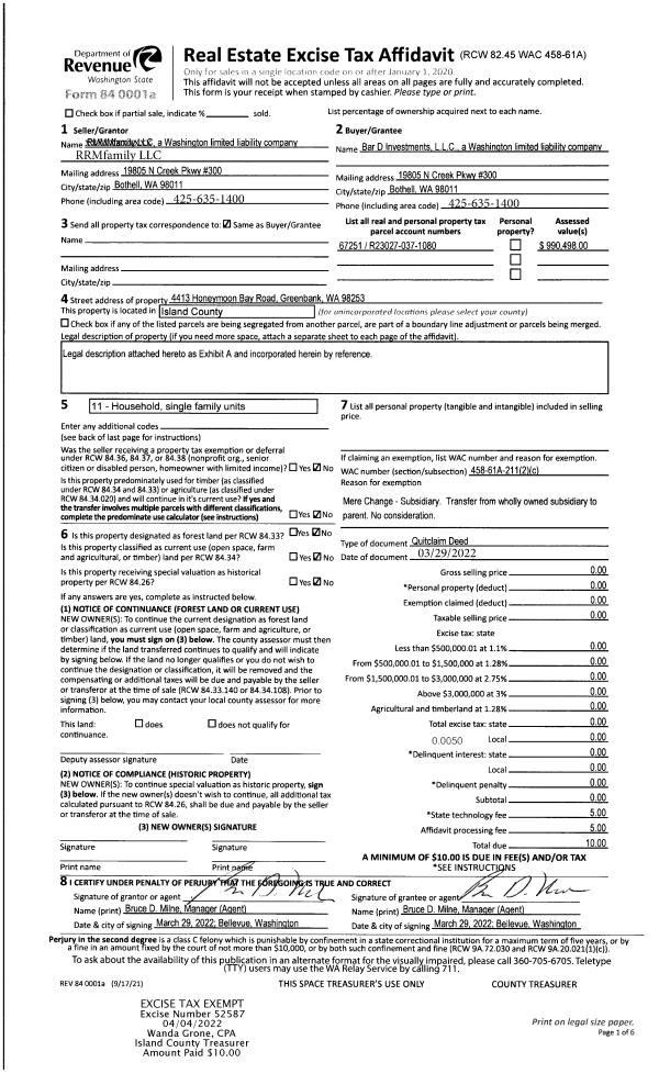
| No payout information available.. |